Votre e-mail a été envoyé.
Certaines informations ont été traduites automatiquement.
Informations principales
- Très bien situé à proximité de l'autoroute 91
- Unités flexibles avec portes d'entrepôt sur toute la hauteur et portes de camion au niveau du sol
- Paysage luxuriant et unités bien situées
Caractéristiques
Tous les espaces disponibles(5)
Afficher les loyers en
- Espace
- Surface
- Durée
- Loyer
- Type de bien
- Aménagement
- Disponible
Reception - Window Office - 2 Restrooms - Coffee Bar - Large Open Work Area - Ground-Level Truck Door - Approximately 1,147 sq. ft. of Full-Height Warehouse - Part of a Professionally Managed Business Park
- Le loyer ne comprend pas les services publics, les frais immobiliers ou les services de l’immeuble.
- Peut être associé à un ou plusieurs espaces supplémentaires pour obtenir jusqu’à 451 m² d’espace adjacent.
- Toilettes privées
- Bar à café
- Comprend 119 m² d’espace de bureau dédié
- Aire de réception
- Window Office
- Porte de camion au niveau du sol
Reception - 2 Window Offices - 2 Restrooms - Coffee Bar - Open Work Area - Ground-Level Truck Door Approximately - 1,014 sq. ft. of Full-Height Warehouse - Part of a Professionally Managed Business Park
- Le loyer ne comprend pas les services publics, les frais immobiliers ou les services de l’immeuble.
- Peut être associé à un ou plusieurs espaces supplémentaires pour obtenir jusqu’à 451 m² d’espace adjacent.
- Toilettes privées
- 2 toilettes
- Comprend 131 m² d’espace de bureau dédié
- Aire de réception
- Bureaux à 2 fenêtres
- Espace de travail ouvert
Reception - 3 Window Offices - 2 Restrooms - Coffee Bar - Large Open Work Area - Ground-Level Truck Door - Approximately 1,024 sq. ft. of Full-Height Warehouse Part of a Professionally Managed Business Park
- Le loyer ne comprend pas les services publics, les frais immobiliers ou les services de l’immeuble.
- Aire de réception
- Comprend 130 m² d’espace de bureau dédié
- Toilettes privées
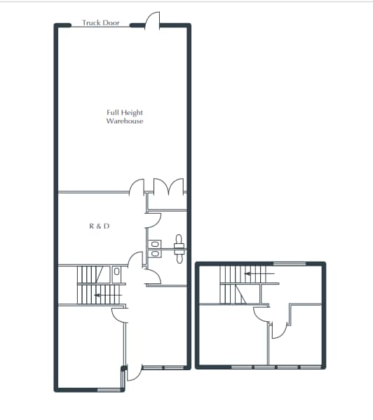
Reception - 3 Window Offices - 2 Restrooms - Coffee Bar - Storage Closet - Ground-Level Truck Door - Approximately 304 sq. ft. of R&D - Approximately 896 sq. ft. of Full-Height Warehouse - Part of a Professionally Managed Business Park
- Le loyer ne comprend pas les services publics, les frais immobiliers ou les services de l’immeuble.
- Aire de réception
- Comprend 114 m² d’espace de bureau dédié
- Toilettes privées
Reception - Window Office - Interior Office - Restroom - Coffee Bar - Ground-Level Truck Door - Approximately 1,440 sq. ft. of Full-Height Warehouse - Part of a Professionally Managed Business Park
- Le loyer ne comprend pas les services publics, les frais immobiliers ou les services de l’immeuble.
- Aire de réception
- Window Office - Interior Office
- Ground-Level Truck Door
- Comprend 45 m² d’espace de bureau dédié
- Toilettes privées
- Coffee Bar
| Espace | Surface | Durée | Loyer | Type de bien | Aménagement | Disponible |
| 1er étage – 507 | 225 m² | 3 Ans | 154,23 € /m²/an 12,85 € /m²/mois 34 776 € /an 2 898 € /mois | Local d’activités | Construction achevée | Maintenant |
| 1er étage – 508 | 225 m² | 3 Ans | 154,23 € /m²/an 12,85 € /m²/mois 34 776 € /an 2 898 € /mois | Local d’activités | Construction achevée | Maintenant |
| 1er étage – 509 | 225 m² | 3 Ans | 154,23 € /m²/an 12,85 € /m²/mois 34 776 € /an 2 898 € /mois | Local d’activités | Construction achevée | Maintenant |
| 1er étage – 511 | 225 m² | 3 Ans | 154,23 € /m²/an 12,85 € /m²/mois 34 776 € /an 2 898 € /mois | Local d’activités | Construction achevée | Maintenant |
| 1er étage – 513 | 178 m² | 3 Ans | 154,23 € /m²/an 12,85 € /m²/mois 27 511 € /an 2 293 € /mois | Local d’activités | - | Maintenant |
1er étage – 507
| Surface |
| 225 m² |
| Durée |
| 3 Ans |
| Loyer |
| 154,23 € /m²/an 12,85 € /m²/mois 34 776 € /an 2 898 € /mois |
| Type de bien |
| Local d’activités |
| Aménagement |
| Construction achevée |
| Disponible |
| Maintenant |
1er étage – 508
| Surface |
| 225 m² |
| Durée |
| 3 Ans |
| Loyer |
| 154,23 € /m²/an 12,85 € /m²/mois 34 776 € /an 2 898 € /mois |
| Type de bien |
| Local d’activités |
| Aménagement |
| Construction achevée |
| Disponible |
| Maintenant |
1er étage – 509
| Surface |
| 225 m² |
| Durée |
| 3 Ans |
| Loyer |
| 154,23 € /m²/an 12,85 € /m²/mois 34 776 € /an 2 898 € /mois |
| Type de bien |
| Local d’activités |
| Aménagement |
| Construction achevée |
| Disponible |
| Maintenant |
1er étage – 511
| Surface |
| 225 m² |
| Durée |
| 3 Ans |
| Loyer |
| 154,23 € /m²/an 12,85 € /m²/mois 34 776 € /an 2 898 € /mois |
| Type de bien |
| Local d’activités |
| Aménagement |
| Construction achevée |
| Disponible |
| Maintenant |
1er étage – 513
| Surface |
| 178 m² |
| Durée |
| 3 Ans |
| Loyer |
| 154,23 € /m²/an 12,85 € /m²/mois 27 511 € /an 2 293 € /mois |
| Type de bien |
| Local d’activités |
| Aménagement |
| - |
| Disponible |
| Maintenant |
1er étage – 507
| Surface | 225 m² |
| Durée | 3 Ans |
| Loyer | 154,23 € /m²/an |
| Type de bien | Local d’activités |
| Aménagement | Construction achevée |
| Disponible | Maintenant |
Reception - Window Office - 2 Restrooms - Coffee Bar - Large Open Work Area - Ground-Level Truck Door - Approximately 1,147 sq. ft. of Full-Height Warehouse - Part of a Professionally Managed Business Park
- Le loyer ne comprend pas les services publics, les frais immobiliers ou les services de l’immeuble.
- Comprend 119 m² d’espace de bureau dédié
- Peut être associé à un ou plusieurs espaces supplémentaires pour obtenir jusqu’à 451 m² d’espace adjacent.
- Aire de réception
- Toilettes privées
- Window Office
- Bar à café
- Porte de camion au niveau du sol
1er étage – 508
| Surface | 225 m² |
| Durée | 3 Ans |
| Loyer | 154,23 € /m²/an |
| Type de bien | Local d’activités |
| Aménagement | Construction achevée |
| Disponible | Maintenant |
Reception - 2 Window Offices - 2 Restrooms - Coffee Bar - Open Work Area - Ground-Level Truck Door Approximately - 1,014 sq. ft. of Full-Height Warehouse - Part of a Professionally Managed Business Park
- Le loyer ne comprend pas les services publics, les frais immobiliers ou les services de l’immeuble.
- Comprend 131 m² d’espace de bureau dédié
- Peut être associé à un ou plusieurs espaces supplémentaires pour obtenir jusqu’à 451 m² d’espace adjacent.
- Aire de réception
- Toilettes privées
- Bureaux à 2 fenêtres
- 2 toilettes
- Espace de travail ouvert
1er étage – 509
| Surface | 225 m² |
| Durée | 3 Ans |
| Loyer | 154,23 € /m²/an |
| Type de bien | Local d’activités |
| Aménagement | Construction achevée |
| Disponible | Maintenant |
Reception - 3 Window Offices - 2 Restrooms - Coffee Bar - Large Open Work Area - Ground-Level Truck Door - Approximately 1,024 sq. ft. of Full-Height Warehouse Part of a Professionally Managed Business Park
- Le loyer ne comprend pas les services publics, les frais immobiliers ou les services de l’immeuble.
- Comprend 130 m² d’espace de bureau dédié
- Aire de réception
- Toilettes privées
1er étage – 511
| Surface | 225 m² |
| Durée | 3 Ans |
| Loyer | 154,23 € /m²/an |
| Type de bien | Local d’activités |
| Aménagement | Construction achevée |
| Disponible | Maintenant |
Reception - 3 Window Offices - 2 Restrooms - Coffee Bar - Storage Closet - Ground-Level Truck Door - Approximately 304 sq. ft. of R&D - Approximately 896 sq. ft. of Full-Height Warehouse - Part of a Professionally Managed Business Park
- Le loyer ne comprend pas les services publics, les frais immobiliers ou les services de l’immeuble.
- Comprend 114 m² d’espace de bureau dédié
- Aire de réception
- Toilettes privées
1er étage – 513
| Surface | 178 m² |
| Durée | 3 Ans |
| Loyer | 154,23 € /m²/an |
| Type de bien | Local d’activités |
| Aménagement | - |
| Disponible | Maintenant |
Reception - Window Office - Interior Office - Restroom - Coffee Bar - Ground-Level Truck Door - Approximately 1,440 sq. ft. of Full-Height Warehouse - Part of a Professionally Managed Business Park
- Le loyer ne comprend pas les services publics, les frais immobiliers ou les services de l’immeuble.
- Comprend 45 m² d’espace de bureau dédié
- Aire de réception
- Toilettes privées
- Window Office - Interior Office
- Coffee Bar
- Ground-Level Truck Door
Aperçu du bien
Le centre d'affaires de North Pointe est un immeuble de bureau/flexible composé de 5 bâtiments d'un ou deux étages totalisant 114 619 pieds carrés. La propriété est bien entretenue avec un paysage attrayant et les caractéristiques du plan d'étage comprennent de nombreuses fenêtres, un système CVC contrôlé séparément, une connexion Internet haut débit, des toilettes privées, des puits de lumière, un dégagement de 18 pieds, des portes de camion de 12 pieds x 12 pieds et des finitions intérieures haut de gamme. Le centre d'affaires de North Pointe bénéficie d'un accès immédiat à l'autoroute 91 à Weir et à Gypsum Canyon Roads. C'est l'endroit idéal pour les entreprises qui ont besoin d'un accès pratique à quatre comtés : Los Angeles, Riverside, San Bernardino et Orange.
Informations sur l’immeuble
Présenté par
22605 La Palma Ave
Hum, une erreur s’est produite lors de l’envoi de votre message. Veuillez réessayer.
Merci ! Votre message a été envoyé.













