Votre e-mail a été envoyé.
Certaines informations ont été traduites automatiquement.
Tous les espaces disponibles(6)
Afficher les loyers en
- Espace
- Surface
- Durée
- Loyer
- Type de bien
- Aménagement
- Disponible
CAM Is $10.00 PSF. Includes janitorial service
- Le loyer ne comprend pas les services publics, les frais immobiliers ou les services de l’immeuble.
- Plan d’étage avec bureaux fermés
The Cam for 2026 is $10.00 psf
- Le loyer ne comprend pas les services publics, les frais immobiliers ou les services de l’immeuble.
- Convient pour 6 à 12 personnes
Operating Expenses are $10.00 psf, includes janitorial services
- Le loyer ne comprend pas les services publics, les frais immobiliers ou les services de l’immeuble.
- Convient pour 2 à 6 personnes
- Plan d’étage avec bureaux fermés
Operating Expenses are $10.00 psf, includes janitorial services
- Le loyer ne comprend pas les services publics, les frais immobiliers ou les services de l’immeuble.
- Convient pour 3 à 9 personnes
- Plan d’étage avec bureaux fermés
Executive Suite. All inclusive $500.00 per month
- Le loyer comprend les services publics, les services de l’immeuble et les frais immobiliers.
- Convient pour 1 personne
Operating Expenses are $10.00 psf, includes janitorial services
- Le loyer ne comprend pas les services publics, les frais immobiliers ou les services de l’immeuble.
- Convient pour 4 à 10 personnes
- Plan d’étage avec bureaux fermés
| Espace | Surface | Durée | Loyer | Type de bien | Aménagement | Disponible |
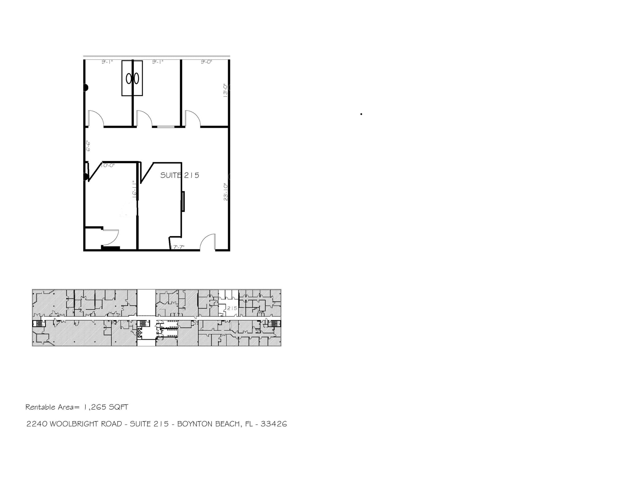
| 2e étage, bureau 215 | 118 m² | 3-10 Ans | 174,43 € /m²/an 14,54 € /m²/mois 20 499 € /an 1 708 € /mois | Médical | - | Maintenant |
| 2e étage, bureau 240 | 175 m² | 3-10 Ans | 174,43 € /m²/an 14,54 € /m²/mois 30 547 € /an 2 546 € /mois | Bureau | - | Maintenant |
| 3e étage, bureau 306 | 61 m² | 3-10 Ans | 174,43 € /m²/an 14,54 € /m²/mois 10 647 € /an 887,23 € /mois | Bureau | - | Maintenant |
| 3e étage, bureau 347 | 98 m² | 3-10 Ans | 174,43 € /m²/an 14,54 € /m²/mois 17 015 € /an 1 418 € /mois | Bureau | - | Maintenant |
| 3e étage, bureau 351 | 12 m² | 1-3 Ans | 413,12 € /m²/an 34,43 € /m²/mois 5 143 € /an 428,58 € /mois | Bureau | - | Maintenant |
| 4e étage, bureau 411 | 115 m² | 3-10 Ans | 174,43 € /m²/an 14,54 € /m²/mois 20 013 € /an 1 668 € /mois | Bureau | - | Maintenant |
2e étage, bureau 215
| Surface |
| 118 m² |
| Durée |
| 3-10 Ans |
| Loyer |
| 174,43 € /m²/an 14,54 € /m²/mois 20 499 € /an 1 708 € /mois |
| Type de bien |
| Médical |
| Aménagement |
| - |
| Disponible |
| Maintenant |
2e étage, bureau 240
| Surface |
| 175 m² |
| Durée |
| 3-10 Ans |
| Loyer |
| 174,43 € /m²/an 14,54 € /m²/mois 30 547 € /an 2 546 € /mois |
| Type de bien |
| Bureau |
| Aménagement |
| - |
| Disponible |
| Maintenant |
3e étage, bureau 306
| Surface |
| 61 m² |
| Durée |
| 3-10 Ans |
| Loyer |
| 174,43 € /m²/an 14,54 € /m²/mois 10 647 € /an 887,23 € /mois |
| Type de bien |
| Bureau |
| Aménagement |
| - |
| Disponible |
| Maintenant |
3e étage, bureau 347
| Surface |
| 98 m² |
| Durée |
| 3-10 Ans |
| Loyer |
| 174,43 € /m²/an 14,54 € /m²/mois 17 015 € /an 1 418 € /mois |
| Type de bien |
| Bureau |
| Aménagement |
| - |
| Disponible |
| Maintenant |
3e étage, bureau 351
| Surface |
| 12 m² |
| Durée |
| 1-3 Ans |
| Loyer |
| 413,12 € /m²/an 34,43 € /m²/mois 5 143 € /an 428,58 € /mois |
| Type de bien |
| Bureau |
| Aménagement |
| - |
| Disponible |
| Maintenant |
4e étage, bureau 411
| Surface |
| 115 m² |
| Durée |
| 3-10 Ans |
| Loyer |
| 174,43 € /m²/an 14,54 € /m²/mois 20 013 € /an 1 668 € /mois |
| Type de bien |
| Bureau |
| Aménagement |
| - |
| Disponible |
| Maintenant |
2e étage, bureau 215
| Surface | 118 m² |
| Durée | 3-10 Ans |
| Loyer | 174,43 € /m²/an |
| Type de bien | Médical |
| Aménagement | - |
| Disponible | Maintenant |
CAM Is $10.00 PSF. Includes janitorial service
- Le loyer ne comprend pas les services publics, les frais immobiliers ou les services de l’immeuble.
- Plan d’étage avec bureaux fermés
2e étage, bureau 240
| Surface | 175 m² |
| Durée | 3-10 Ans |
| Loyer | 174,43 € /m²/an |
| Type de bien | Bureau |
| Aménagement | - |
| Disponible | Maintenant |
The Cam for 2026 is $10.00 psf
- Le loyer ne comprend pas les services publics, les frais immobiliers ou les services de l’immeuble.
- Convient pour 6 à 12 personnes
3e étage, bureau 306
| Surface | 61 m² |
| Durée | 3-10 Ans |
| Loyer | 174,43 € /m²/an |
| Type de bien | Bureau |
| Aménagement | - |
| Disponible | Maintenant |
Operating Expenses are $10.00 psf, includes janitorial services
- Le loyer ne comprend pas les services publics, les frais immobiliers ou les services de l’immeuble.
- Plan d’étage avec bureaux fermés
- Convient pour 2 à 6 personnes
3e étage, bureau 347
| Surface | 98 m² |
| Durée | 3-10 Ans |
| Loyer | 174,43 € /m²/an |
| Type de bien | Bureau |
| Aménagement | - |
| Disponible | Maintenant |
Operating Expenses are $10.00 psf, includes janitorial services
- Le loyer ne comprend pas les services publics, les frais immobiliers ou les services de l’immeuble.
- Plan d’étage avec bureaux fermés
- Convient pour 3 à 9 personnes
3e étage, bureau 351
| Surface | 12 m² |
| Durée | 1-3 Ans |
| Loyer | 413,12 € /m²/an |
| Type de bien | Bureau |
| Aménagement | - |
| Disponible | Maintenant |
Executive Suite. All inclusive $500.00 per month
- Le loyer comprend les services publics, les services de l’immeuble et les frais immobiliers.
- Convient pour 1 personne
4e étage, bureau 411
| Surface | 115 m² |
| Durée | 3-10 Ans |
| Loyer | 174,43 € /m²/an |
| Type de bien | Bureau |
| Aménagement | - |
| Disponible | Maintenant |
Operating Expenses are $10.00 psf, includes janitorial services
- Le loyer ne comprend pas les services publics, les frais immobiliers ou les services de l’immeuble.
- Plan d’étage avec bureaux fermés
- Convient pour 4 à 10 personnes
Caractéristiques
- Accès 24 h/24
- Ligne d’autobus
- Property Manager sur place
- Système de sécurité
- Signalisation
Informations sur l’immeuble
Occupants
- Étage
- Nom de l’occupant
- Secteur d’activité
- 2e
- Accessible Home Health Care
- Santé et assistance sociale
- 2e
- Bella Albertson, LLC
- Services
- 3e
- Berger Commercial Realty Corp/CORFAC International
- Immobilier
- 2e
- Frankl & Kominsky Injury Lawyers
- Services professionnels, scientifiques et techniques
- 3e
- Fresenius Management Services, Inc
- Services
- 3e
- Materetsky Financial Group
- Finance et assurances
- 2e
- Sealand Insurance Corp
- Finance et assurances
- 2e
- The Rx Helper
- Enseigne
- 4e
- University Cancer Institute
- Santé et assistance sociale
- 4e
- Veronica R Motiram Mdp
- Santé et assistance sociale
Présenté par
Woolbright Professional Building | 2240 W Woolbright Rd
Hum, une erreur s’est produite lors de l’envoi de votre message. Veuillez réessayer.
Merci ! Votre message a été envoyé.





