Votre e-mail a été envoyé.
Certaines informations ont été traduites automatiquement.
Informations principales
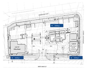
- New Construction Mixed-Use Project in the heart of Templeton
- Prime Location near Downtown Templeton with easy access to Highway 101
- Flexible Office & Retail Options across three buildings
- Modern Farmstyle Architecture with strong street presence
- Delivery Scheduled for Fall 2026 – construction underway
- Ample On-Site Parking with approximately 70 spaces
Disponibilité de l’espace (3)
Afficher le tarif en
- Espace
- Surface
- Durée
- Loyer
- Type de loyer
| Espace | Surface | Durée | Loyer | Type de loyer | ||
| 1er étage, bureau Building 1 | 318 m² | Négociable | Sur demande Sur demande Sur demande Sur demande | À déterminer | ||
| 1er étage, bureau Building 2 | 73 – 115 m² | Négociable | Sur demande Sur demande Sur demande Sur demande | À déterminer | ||
| 1er étage, bureau Building 3 | 109 – 258 m² | Négociable | Sur demande Sur demande Sur demande Sur demande | À déterminer |
1er étage, bureau Building 1
Construction commenced, framing up! Delivery Fall 2026. Be a part of the newest commercial projects in Templeton. The Stockyards on Main! Modern farm style architecture with close proximity to Downtown Templeton and Highway 101. On-site parking with multiple retail and office options. Delivered as one large open space in bare shell form, ready for improvements.
1er étage, bureau Building 2
Construction commenced, framing up! Delivery Fall 2026. Be a part of the newest commercial projects in Templeton. The Stockyards on Main! Modern farm style architecture with close proximity to Downtown Templeton and Highway 101. On-site parking with multiple retail and office options. Delivered in bare shell form, ready for improvements.
1er étage, bureau Building 3
Construction commenced, framing up! Delivery Fall 2026. Be a part of the newest commercial projects in Templeton. The Stockyards on Main! Modern farm style architecture with close proximity to Downtown Templeton and Highway 101. On-site parking with multiple retail and office options. Delivered in bare shell form, ready for improvements.
Types de loyers
Le montant et le type de loyer que l’occupant (locataire) est tenu de payer au propriétaire (bailleur) sur la durée du bail sont négociés avant la signature du bail par les deux parties. Le type de loyer varie selon les services fournis. Par exemple, le prix d’un loyer triple net est habituellement inférieur à celui d’un bail à service complet puisque l’occupant est tenu d’assumer des dépenses supplémentaires par rapport au loyer de base. Contacter le broker chargé de l’annonce pour bien comprendre les coûts associés ou les dépenses supplémentaires pour chaque type de loyer.
1. Service complet: Un loyer qui comprend des services d’immeuble standards normaux fournis par le propriétaire dans le cadre d’une location annuelle de base.
2. Double net (NN): L’occupant paie seulement deux des frais de l’immeuble. Le propriétaire et l’occupant déterminent ces frais spécifiques avant la signature du bail.
3. Triple net (NNN): Un bail selon lequel l’occupant est responsable de tous les frais liés à sa part proportionnelle d’occupation de l’immeuble.
4. Brut modifié: Le brut modifié est un type général de bail dans lequel l’occupant est en général responsable de sa part proportionnelle d’une ou de plusieurs dépenses. C’est le propriétaire qui paie les frais restants. Consultez la liste ci-dessous pour connaître les structures de loyers bruts modifiés les plus courantes : 4. Plus services publics: Un type de bail brut modifié, où l’occupant est responsable à hauteur de sa part proportionnelle des services publics en plus du loyer. 4. Plus nettoyage: Un type de bail brut modifié, où l’occupant est responsable à hauteur de sa part proportionnelle du nettoyage en plus du loyer. 4. Plus électricité: Un type de bail brut modifié, où l’occupant est responsable à hauteur de sa part proportionnelle du coût de la consommation électrique en plus du loyer. 4. Plus électricité et nettoyage: Un type de bail brut modifié, où l’occupant est responsable à hauteur de sa part proportionnelle du coût de la consommation électrique et du nettoyage en plus du loyer. 4. Plus services publics et charges: Un type de bail brut modifié où l’occupant est responsable à hauteur de sa part proportionnelle des services publics et du coût de nettoyage en plus du loyer. 4. Bail industriel brut: Un type de bail brut modifié dans lequel l’occupant paie un ou plusieurs des frais en plus du loyer. Le propriétaire et l’occupant déterminent ces frais spécifiques avant la signature du bail.
5. Électricité à la charge de l’occupant: Le propriétaire paie pour tous les services et l’occupant est responsable de sa propre utilisation de l’éclairage et des prises électriques dans l’espace qu’il occupe.
6. Négociable ou sur demande: Cette option est utilisée lorsque le contact de location n’indique pas le type de loyer ou de service.
7. À déterminer: À déterminer : utilisé pour les immeubles dont le type de services ou de loyer n’est pas connu, souvent quand l’immeuble n’est pas encore construit.
Plan du site
Informations sur l’immeuble
| Espace total disponible | 692 m² | Surface commerciale utile | 929 m² |
| Min. Divisible | 73 m² | Année de construction | 2026 |
| Type de bien | Local commercial | Statut de la construction | En construction |
| Sous-type de bien | Bien à usage mixte |
| Espace total disponible | 692 m² |
| Min. Divisible | 73 m² |
| Type de bien | Local commercial |
| Sous-type de bien | Bien à usage mixte |
| Surface commerciale utile | 929 m² |
| Année de construction | 2026 |
| Statut de la construction | En construction |
À propos du bien
Construction commenced, framing up! Delivery Fall 2026. Be a part of the newest commercial projects in Templeton. The Stockyards on Main! Modern farm style architecture with close proximity to Downtown Templeton and Highway 101. On-site parking with multiple retail and office options.
Principaux commerces à proximité
Présenté par
Templeton Ranch | 221 N Main St
Hum, une erreur s’est produite lors de l’envoi de votre message. Veuillez réessayer.
Merci ! Votre message a été envoyé.












