Votre e-mail a été envoyé.
Certaines informations ont été traduites automatiquement.
Informations principales
- C/O for Public Parking & Storage
- Also Available for Sale
- Target tenants: Storage, Parking, Contractors, HVAC contractors, Lumber yards, Plumbers companies, Electricians companies
Caractéristiques
Tous les espaces disponibles(2)
Afficher les loyers en
- Espace
- Surface
- Durée
- Loyer
- Type de bien
- État
- Disponible
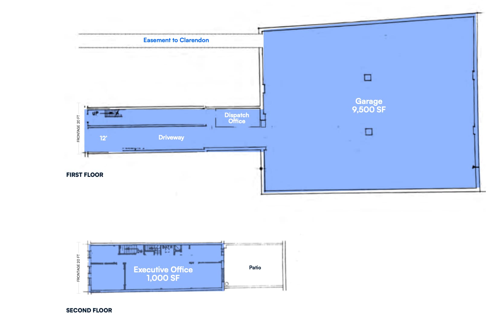
C/O for Public Parking & Storage Garage Ceiling Height: 13.5 FT Prime East Flatbush Public Parking & Storage Space: 9,500 SF Executive Office Space: 1,000 SF Dispatch Office Space: 100 SF Target tenants: Storage, Parking, Contractors, HVAC contractors, Lumber yards, Plumbers companies, Electricians companies Available for Sale
- Peut être associé à un ou plusieurs espaces supplémentaires pour obtenir jusqu’à 975 m² d’espace adjacent.
- 1 accès plain-pied
C/O for Public Parking & Storage Garage Ceiling Height: 13.5 FT Prime East Flatbush Public Parking & Storage Space: 9,500 SF Executive Office Space: 1,000 SF Dispatch Office Space: 100 SF Target tenants: Storage, Parking, Contractors, HVAC contractors, Lumber yards, Plumbers companies, Electricians companies Available for Sale
- Entièrement aménagé comme Bureau standard
- Convient pour 3 à 8 personnes
- 1 accès plain-pied
- Plan d’étage avec bureaux fermés
- Peut être associé à un ou plusieurs espaces supplémentaires pour obtenir jusqu’à 975 m² d’espace adjacent.
| Espace | Surface | Durée | Loyer | Type de bien | État | Disponible |
| 1er étage | 883 m² | Négociable | Sur demande Sur demande Sur demande Sur demande | Local d’activités | Espace brut | Maintenant |
| 2e étage | 93 m² | Négociable | Sur demande Sur demande Sur demande Sur demande | Bureau | Construction achevée | Maintenant |
1er étage
| Surface |
| 883 m² |
| Durée |
| Négociable |
| Loyer |
| Sur demande Sur demande Sur demande Sur demande |
| Type de bien |
| Local d’activités |
| État |
| Espace brut |
| Disponible |
| Maintenant |
2e étage
| Surface |
| 93 m² |
| Durée |
| Négociable |
| Loyer |
| Sur demande Sur demande Sur demande Sur demande |
| Type de bien |
| Bureau |
| État |
| Construction achevée |
| Disponible |
| Maintenant |
1er étage
| Surface | 883 m² |
| Durée | Négociable |
| Loyer | Sur demande |
| Type de bien | Local d’activités |
| État | Espace brut |
| Disponible | Maintenant |
C/O for Public Parking & Storage Garage Ceiling Height: 13.5 FT Prime East Flatbush Public Parking & Storage Space: 9,500 SF Executive Office Space: 1,000 SF Dispatch Office Space: 100 SF Target tenants: Storage, Parking, Contractors, HVAC contractors, Lumber yards, Plumbers companies, Electricians companies Available for Sale
- Peut être associé à un ou plusieurs espaces supplémentaires pour obtenir jusqu’à 975 m² d’espace adjacent.
- 1 accès plain-pied
2e étage
| Surface | 93 m² |
| Durée | Négociable |
| Loyer | Sur demande |
| Type de bien | Bureau |
| État | Construction achevée |
| Disponible | Maintenant |
C/O for Public Parking & Storage Garage Ceiling Height: 13.5 FT Prime East Flatbush Public Parking & Storage Space: 9,500 SF Executive Office Space: 1,000 SF Dispatch Office Space: 100 SF Target tenants: Storage, Parking, Contractors, HVAC contractors, Lumber yards, Plumbers companies, Electricians companies Available for Sale
- Entièrement aménagé comme Bureau standard
- Plan d’étage avec bureaux fermés
- Convient pour 3 à 8 personnes
- Peut être associé à un ou plusieurs espaces supplémentaires pour obtenir jusqu’à 975 m² d’espace adjacent.
- 1 accès plain-pied
Aperçu du bien
Located in the East Flatbush neighborhood of Brooklyn between Flatbush Ave & E 22nd St near the Cortelyou Rd subway station. Nearest Transit: Q train at Cortelyou Rd and the 5 & 2 train at Beverly Rd. The B41, B49, BM4, BM3, B103, BM1, & BM2 bus lines. Nearby tenants include Tex’s Chicken & Burgers, Golden Blue Bar & Restaurant, St Marc Bakery, Angelo's Pizza, China Dragon, El Rancho Dominicano, Wing Hing, District8, Angelo's Pizza, Hayati Baklava, China Tang Kitchen, 11 Parishes Restaurant, The Sandwich Spot, Flatbush Pharmacy, Luxury Glam Spa, Cricket Wireless Authorized Retailer, Fancy Buffet, and more!
Informations sur l’immeuble
Présenté par
2179 Clarendon Rd
Hum, une erreur s’est produite lors de l’envoi de votre message. Veuillez réessayer.
Merci ! Votre message a été envoyé.








