Votre e-mail a été envoyé.
Certaines informations ont été traduites automatiquement.
Informations principales sur le parc
- Le nouveau parc médical/administratif d'Old Saybrook - Atlas Commons
- ADT - 61 126 sur l'I-95
- Suites contiguës allant de 2 000 à 10 606 pieds carrés
- Directement à côté de la sortie 67 de l'I-95
- Entouré de nombreuses commodités de la région, notamment des boutiques, des restaurants, un accès au train et plus encore
- Allocation d'amélioration généreuse pour les locataires
Faits sur le parc
Tous les espaces disponibles(3)
Afficher les loyers en
- Espace
- Surface
- Durée
- Loyer
- Type de bien
- Aménagement
- Disponible
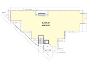
5,303 SF Available on the 1st Floor
- Entièrement aménagé comme Bureau standard
- Convient pour 14 à 43 personnes
- Climatisation centrale
- 5,303 SF Available on the 1st Floor
- Principalement open space
- Espace en excellent état
- New Construction
- Directly off I-95 at Exit 67
Part of Atlas Business Park, this brand new construction office space is perfect for a variety of medical office uses.
- Partiellement aménagé comme Cabinet médical standard
- Convient pour 6 à 19 personnes
- Ventilation et chauffage centraux
- De nombreuses commodités de la région
- Plan d’étage avec bureaux fermés
- Espace en excellent état
- Généreuse allocation d'amélioration pour les locataires
| Espace | Surface | Durée | Loyer | Type de bien | Aménagement | Disponible |
| 1er étage, bureau Bldg 2 | 493 m² | Négociable | Sur demande Sur demande Sur demande Sur demande | Bureaux/Médical | Construction achevée | Maintenant |
| 2e étage, bureau Bldg 2 - #213 | 217 m² | 1-10 Ans | Sur demande Sur demande Sur demande Sur demande | Bureaux/Médical | Construction partielle | 120 jours |
213 Elm St - 1er étage – Bureau Bldg 2
213 Elm St - 2e étage – Bureau Bldg 2 - #213
- Espace
- Surface
- Durée
- Loyer
- Type de bien
- Aménagement
- Disponible
Medical Office space for Lease in new construction building.
- Le loyer ne comprend pas les services publics, les frais immobiliers ou les services de l’immeuble.
- Principalement open space
- Espace en excellent état
- New Construction
- 1,955 SF Available on the 2nd Floor
- Entièrement aménagé comme Bureau standard
- Convient pour 5 à 16 personnes
- Climatisation centrale
- Generous Tenant Improvement Allowance
- Directly off I-95 at Exit 67
| Espace | Surface | Durée | Loyer | Type de bien | Aménagement | Disponible |
| 2e étage, bureau Bldg 1 - #215 | 182 m² | Négociable | 224,92 € /m²/an 18,74 € /m²/mois 40 852 € /an 3 404 € /mois | Bureaux/Médical | Construction achevée | Maintenant |
215 Elm St - 2e étage – Bureau Bldg 1 - #215
213 Elm St - 1er étage – Bureau Bldg 2
| Surface | 493 m² |
| Durée | Négociable |
| Loyer | Sur demande |
| Type de bien | Bureaux/Médical |
| Aménagement | Construction achevée |
| Disponible | Maintenant |
5,303 SF Available on the 1st Floor
- Entièrement aménagé comme Bureau standard
- Principalement open space
- Convient pour 14 à 43 personnes
- Espace en excellent état
- Climatisation centrale
- New Construction
- 5,303 SF Available on the 1st Floor
- Directly off I-95 at Exit 67
213 Elm St - 2e étage – Bureau Bldg 2 - #213
| Surface | 217 m² |
| Durée | 1-10 Ans |
| Loyer | Sur demande |
| Type de bien | Bureaux/Médical |
| Aménagement | Construction partielle |
| Disponible | 120 jours |
Part of Atlas Business Park, this brand new construction office space is perfect for a variety of medical office uses.
- Partiellement aménagé comme Cabinet médical standard
- Plan d’étage avec bureaux fermés
- Convient pour 6 à 19 personnes
- Espace en excellent état
- Ventilation et chauffage centraux
- Généreuse allocation d'amélioration pour les locataires
- De nombreuses commodités de la région
215 Elm St - 2e étage – Bureau Bldg 1 - #215
| Surface | 182 m² |
| Durée | Négociable |
| Loyer | 224,92 € /m²/an |
| Type de bien | Bureaux/Médical |
| Aménagement | Construction achevée |
| Disponible | Maintenant |
Medical Office space for Lease in new construction building.
- Le loyer ne comprend pas les services publics, les frais immobiliers ou les services de l’immeuble.
- Entièrement aménagé comme Bureau standard
- Principalement open space
- Convient pour 5 à 16 personnes
- Espace en excellent état
- Climatisation centrale
- New Construction
- Generous Tenant Improvement Allowance
- 1,955 SF Available on the 2nd Floor
- Directly off I-95 at Exit 67
Vue d’ensemble du parc
O, R&L Commercial a le plaisir de présenter un tout nouvel espace de bureau médical avec des suites de 2 000 à 10 606 pieds carrés contiguës situé à Atlas Commons, le plus récent parc médical/de bureaux d'Old Saybrook situé au 215 Elm Street. Rejoignez Hartford Healthcare et Connecticut GI dans ce parc de bureaux de 2 bâtiments. De généreuses allocations d'amélioration pour les locataires sont accordées. L'établissement se trouve juste à côté de l'I-95, à la sortie 67 et est entouré de nombreuses commodités de la région, notamment des boutiques, des restaurants et bien plus encore. Taux de location : 24,50 $/SF NNN
- Climatisation
- Visibilité de l’autoroute
Présenté par
Atlas Commons | Old Saybrook, CT 06475
Hum, une erreur s’est produite lors de l’envoi de votre message. Veuillez réessayer.
Merci ! Votre message a été envoyé.













