Votre e-mail a été envoyé.
Building C 2135 Sheppard Ave E Local commercial | 232–5 853 m² | 4 étoiles | À louer | Toronto, ON M2J 1W6



Certaines informations ont été traduites automatiquement.
Informations principales
- Trafic quotidien intense
- Accès autoroutier
- Transport en commun
Disponibilité de l’espace (3)
Afficher le tarif en
- Espace
- Surface
- Durée
- Loyer
- Type de loyer
| Espace | Surface | Durée | Loyer | Type de loyer | ||
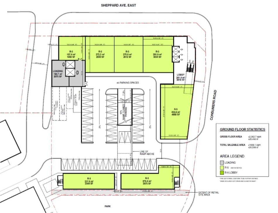
| 1er étage | 2 917 m² | 1-10 Ans | Sur demande Sur demande Sur demande Sur demande | Négociable | ||
| 1er étage | 232 – 279 m² | 10-15 Ans | Sur demande Sur demande Sur demande Sur demande | Négociable | ||
| 2e étage | 2 657 m² | 1-10 Ans | Sur demande Sur demande Sur demande Sur demande | Négociable |
1er étage
Will work with retailers to help build out space. Rents & Timing are currently to be determined. Plans are subject to change, please contact the listing brokers with any questions.
- Peut être associé à un ou plusieurs espaces supplémentaires pour obtenir jusqu’à 5 574 m² d’espace adjacent.
- Climatisation centrale
- Trafic quotidien intense
1er étage
Will work with retailers to help build out space. Rents & Timing are currently to be determined. Plans are subject to change, please contact the listing brokers with any questions.
- Climatisation centrale
- Trafic quotidien intense
2e étage
Will work with retailers to help build out space. Rents & Timing are currently to be determined. Plans are subject to change, please contact the listing brokers with any questions.
- Peut être associé à un ou plusieurs espaces supplémentaires pour obtenir jusqu’à 5 574 m² d’espace adjacent.
- Climatisation centrale
- Trafic quotidien intense
Types de loyers
Le montant et le type de loyer que l’occupant (locataire) est tenu de payer au propriétaire (bailleur) sur la durée du bail sont négociés avant la signature du bail par les deux parties. Le type de loyer varie selon les services fournis. Par exemple, le prix d’un loyer triple net est habituellement inférieur à celui d’un bail à service complet puisque l’occupant est tenu d’assumer des dépenses supplémentaires par rapport au loyer de base. Contacter le broker chargé de l’annonce pour bien comprendre les coûts associés ou les dépenses supplémentaires pour chaque type de loyer.
1. Service complet: Un loyer qui comprend des services d’immeuble standards normaux fournis par le propriétaire dans le cadre d’une location annuelle de base.
2. Double net (NN): L’occupant paie seulement deux des frais de l’immeuble. Le propriétaire et l’occupant déterminent ces frais spécifiques avant la signature du bail.
3. Triple net (NNN): Un bail selon lequel l’occupant est responsable de tous les frais liés à sa part proportionnelle d’occupation de l’immeuble.
4. Brut modifié: Le brut modifié est un type général de bail dans lequel l’occupant est en général responsable de sa part proportionnelle d’une ou de plusieurs dépenses. C’est le propriétaire qui paie les frais restants. Consultez la liste ci-dessous pour connaître les structures de loyers bruts modifiés les plus courantes : 4. Plus services publics: Un type de bail brut modifié, où l’occupant est responsable à hauteur de sa part proportionnelle des services publics en plus du loyer. 4. Plus nettoyage: Un type de bail brut modifié, où l’occupant est responsable à hauteur de sa part proportionnelle du nettoyage en plus du loyer. 4. Plus électricité: Un type de bail brut modifié, où l’occupant est responsable à hauteur de sa part proportionnelle du coût de la consommation électrique en plus du loyer. 4. Plus électricité et nettoyage: Un type de bail brut modifié, où l’occupant est responsable à hauteur de sa part proportionnelle du coût de la consommation électrique et du nettoyage en plus du loyer. 4. Plus services publics et charges: Un type de bail brut modifié où l’occupant est responsable à hauteur de sa part proportionnelle des services publics et du coût de nettoyage en plus du loyer. 4. Bail industriel brut: Un type de bail brut modifié dans lequel l’occupant paie un ou plusieurs des frais en plus du loyer. Le propriétaire et l’occupant déterminent ces frais spécifiques avant la signature du bail.
5. Électricité à la charge de l’occupant: Le propriétaire paie pour tous les services et l’occupant est responsable de sa propre utilisation de l’éclairage et des prises électriques dans l’espace qu’il occupe.
6. Négociable ou sur demande: Cette option est utilisée lorsque le contact de location n’indique pas le type de loyer ou de service.
7. À déterminer: À déterminer : utilisé pour les immeubles dont le type de services ou de loyer n’est pas connu, souvent quand l’immeuble n’est pas encore construit.
Informations sur l’immeuble
| Espace total disponible | 5 853 m² | Surface commerciale utile | 7 897 m² |
| Min. Divisible | 232 m² | Année de construction | 2028 |
| Max. Contigu | 5 574 m² | Ratio de stationnement | 0,55/1 000 m² |
| Type de bien | Local commercial | Statut de la construction | Avant-projet |
| Sous-type de bien | Immeuble de commerce |
| Espace total disponible | 5 853 m² |
| Min. Divisible | 232 m² |
| Max. Contigu | 5 574 m² |
| Type de bien | Local commercial |
| Sous-type de bien | Immeuble de commerce |
| Surface commerciale utile | 7 897 m² |
| Année de construction | 2028 |
| Ratio de stationnement | 0,55/1 000 m² |
| Statut de la construction | Avant-projet |
À propos du bien
REMARQUE : LES PLANS SONT SUJETS À MODIFICATION. VEUILLEZ ENREGISTRER VOTRE INTÉRÊT AUPRÈS DU COURTIER INSCRITEUR Jusqu'à 60 000 pieds carrés d'espace commercial disponible situé à l'angle sud-ouest de l'avenue Sheppard Est et. Consumers Road, juste à l'est du centre commercial Fairview, à proximité de l'autoroute 401, de l'autoroute 404 et de la Don Valley Parkway. Il y a un niveau de stationnement en surface et deux niveaux de stationnement en terrasse, pour un total d'environ 170 places dédiées à la composante commerciale du développement. Enfin, cet établissement est juste à côté d'un arrêt de LRT proposé à Sheppard and Consumers.
- Trains de banlieue
- Intersection avec signalisation
Principaux commerces à proximité
Présenté par
Building C | 2135 Sheppard Ave E
Hum, une erreur s’est produite lors de l’envoi de votre message. Veuillez réessayer.
Merci ! Votre message a été envoyé.





