Votre e-mail a été envoyé.
Certaines informations ont été traduites automatiquement.
Informations principales
- Belle propriété bordée d'arbres avec de vastes lignes de fenêtres
- Salon Republic sur place avec une variété de services liés à la beauté
- Accès à l'autoroute 101 à quelques minutes
- Grande cour avec coin salon extérieur et café sur place
- Situé sur le boulevard Ventura avec de nombreux restaurants, banques et commerces
Tous les espaces disponibles(13)
Afficher les loyers en
- Espace
- Surface
- Durée
- Loyer
- Type de bien
- Aménagement
- Disponible
Ground Floor Unit with High Ceilings. Corner Office with 7 private offices, Conference Room, 4 Work Stations, Kitchen, and enclosed reception.
- Le loyer comprend les services publics, les services de l’immeuble et les frais immobiliers.
- 7 bureaux privés
- 4 postes de travail
- Hauts plafonds
- Entièrement aménagé comme Bureau standard
- 1 salle de conférence
- Espace en excellent état
- High Ceilings
One Large Office with Separate Reception and Kitchen
- Le loyer comprend les services publics, les services de l’immeuble et les frais immobiliers.
- 1 bureau privé
- Espace en excellent état
- Entièrement aménagé comme Bureau de services professionnels
- 1 poste de travail
- Le loyer comprend les services publics, les services de l’immeuble et les frais immobiliers.
- Plan d’étage avec bureaux fermés
- Entièrement aménagé comme Bureau standard
- Espace en excellent état
- Le loyer comprend les services publics, les services de l’immeuble et les frais immobiliers.
- Espace en excellent état
- Entièrement aménagé comme Bureau standard
- Le loyer comprend les services publics, les services de l’immeuble et les frais immobiliers.
- Plan d’étage avec bureaux fermés
- Entièrement aménagé comme Bureau standard
- Espace en excellent état
- Le loyer comprend les services publics, les services de l’immeuble et les frais immobiliers.
- Espace en excellent état
- Entièrement aménagé comme Bureau standard
Spec Suite! Move-in Ready Office with LVT, new LED lights and kitchen.
- Le loyer comprend les services publics, les services de l’immeuble et les frais immobiliers.
- 1 salle de conférence
- 3 bureaux privés
- Espace en excellent état
- Le loyer comprend les services publics, les services de l’immeuble et les frais immobiliers.
- Espace en excellent état
- Entièrement aménagé comme Bureau standard
5 Private Window Offices, 2 Large Open Bullpen Areas. Contiguous with Suite 320 for 9,538 RSF
- Le loyer comprend les services publics, les services de l’immeuble et les frais immobiliers.
- 5 bureaux privés
- Espace en excellent état
- Entièrement aménagé comme Bureau standard
- 1 salle de conférence
- Peut être associé à un ou plusieurs espaces supplémentaires pour obtenir jusqu’à 886 m² d’espace adjacent.
Formerly Law Firm with 7 Private Offices, Large Conference Room, Break Room, File Room, 5 Built-In Work Stations. Contiguous with Suite 302 for 9,538 RSF
- Le loyer comprend les services publics, les services de l’immeuble et les frais immobiliers.
- Espace en excellent état
- Entièrement aménagé comme Bureau standard
- Peut être associé à un ou plusieurs espaces supplémentaires pour obtenir jusqu’à 886 m² d’espace adjacent.
8 Private Offices, 1 Conference Room, Bull Pen, and Kitchen
- Le loyer comprend les services publics, les services de l’immeuble et les frais immobiliers.
- 8 bureaux privés
- Espace en excellent état
- Entièrement aménagé comme Bureau standard
- 1 salle de conférence
Spec Suite! Move-in ready space newly constructed with new flooring and LED lights. 4 window offices, 1 Utility Room.
- Le loyer comprend les services publics, les services de l’immeuble et les frais immobiliers.
- Espace en excellent état
- 4 bureaux privés
4 Private Offices with Kitchen
- Le loyer comprend les services publics, les services de l’immeuble et les frais immobiliers.
- 4 bureaux privés
- Entièrement aménagé comme Bureau standard
- Espace en excellent état
| Espace | Surface | Durée | Loyer | Type de bien | Aménagement | Disponible |
| 1er étage, bureau 140 | 283 m² | 3-7 Ans | 221,10 € /m²/an 18,43 € /m²/mois 62 465 € /an 5 205 € /mois | Bureau | Construction achevée | Maintenant |
| 2e étage, bureau 200 | 83 m² | 3-5 Ans | 221,10 € /m²/an 18,43 € /m²/mois 18 405 € /an 1 534 € /mois | Bureau | Construction achevée | Maintenant |
| 2e étage, bureau 203 | 160 m² | 3-5 Ans | 221,10 € /m²/an 18,43 € /m²/mois 35 392 € /an 2 949 € /mois | Bureau | Construction achevée | Maintenant |
| 2e étage, bureau 215 | 174 m² | 3-5 Ans | 221,10 € /m²/an 18,43 € /m²/mois 38 370 € /an 3 198 € /mois | Bureau | Construction achevée | Maintenant |
| 2e étage, bureau 222 | 429 m² | 3-10 Ans | 221,10 € /m²/an 18,43 € /m²/mois 94 755 € /an 7 896 € /mois | Bureau | Construction achevée | Maintenant |
| 2e étage, bureau 225 | 160 m² | 3-5 Ans | 221,10 € /m²/an 18,43 € /m²/mois 35 269 € /an 2 939 € /mois | Bureau | Construction achevée | Maintenant |
| 2e étage, bureau 229 | 113 m² | 3-5 Ans | 221,10 € /m²/an 18,43 € /m²/mois 25 039 € /an 2 087 € /mois | Bureau | Meublé et équipé | Maintenant |
| 3e étage, bureau 300 | 616 m² | 3-7 Ans | 221,10 € /m²/an 18,43 € /m²/mois 136 124 € /an 11 344 € /mois | Bureau | Construction achevée | Maintenant |
| 3e étage, bureau 302 | 510 m² | 3-7 Ans | 221,10 € /m²/an 18,43 € /m²/mois 112 728 € /an 9 394 € /mois | Bureau | Construction achevée | Maintenant |
| 3e étage, bureau 320 | 376 m² | 3-7 Ans | 221,10 € /m²/an 18,43 € /m²/mois 83 191 € /an 6 933 € /mois | Bureau | Construction achevée | Maintenant |
| 3e étage, bureau 327 | 324 m² | 3-7 Ans | 221,10 € /m²/an 18,43 € /m²/mois 71 647 € /an 5 971 € /mois | Bureau | Construction achevée | Maintenant |
| 3e étage, bureau 328 | 141 m² | 3-5 Ans | 221,10 € /m²/an 18,43 € /m²/mois 31 119 € /an 2 593 € /mois | Bureau | Meublé et équipé | Maintenant |
| 3e étage, bureau 350 | 142 m² | 3-5 Ans | 221,10 € /m²/an 18,43 € /m²/mois 31 407 € /an 2 617 € /mois | Bureau | Construction achevée | Maintenant |
1er étage, bureau 140
| Surface |
| 283 m² |
| Durée |
| 3-7 Ans |
| Loyer |
| 221,10 € /m²/an 18,43 € /m²/mois 62 465 € /an 5 205 € /mois |
| Type de bien |
| Bureau |
| Aménagement |
| Construction achevée |
| Disponible |
| Maintenant |
2e étage, bureau 200
| Surface |
| 83 m² |
| Durée |
| 3-5 Ans |
| Loyer |
| 221,10 € /m²/an 18,43 € /m²/mois 18 405 € /an 1 534 € /mois |
| Type de bien |
| Bureau |
| Aménagement |
| Construction achevée |
| Disponible |
| Maintenant |
2e étage, bureau 203
| Surface |
| 160 m² |
| Durée |
| 3-5 Ans |
| Loyer |
| 221,10 € /m²/an 18,43 € /m²/mois 35 392 € /an 2 949 € /mois |
| Type de bien |
| Bureau |
| Aménagement |
| Construction achevée |
| Disponible |
| Maintenant |
2e étage, bureau 215
| Surface |
| 174 m² |
| Durée |
| 3-5 Ans |
| Loyer |
| 221,10 € /m²/an 18,43 € /m²/mois 38 370 € /an 3 198 € /mois |
| Type de bien |
| Bureau |
| Aménagement |
| Construction achevée |
| Disponible |
| Maintenant |
2e étage, bureau 222
| Surface |
| 429 m² |
| Durée |
| 3-10 Ans |
| Loyer |
| 221,10 € /m²/an 18,43 € /m²/mois 94 755 € /an 7 896 € /mois |
| Type de bien |
| Bureau |
| Aménagement |
| Construction achevée |
| Disponible |
| Maintenant |
2e étage, bureau 225
| Surface |
| 160 m² |
| Durée |
| 3-5 Ans |
| Loyer |
| 221,10 € /m²/an 18,43 € /m²/mois 35 269 € /an 2 939 € /mois |
| Type de bien |
| Bureau |
| Aménagement |
| Construction achevée |
| Disponible |
| Maintenant |
2e étage, bureau 229
| Surface |
| 113 m² |
| Durée |
| 3-5 Ans |
| Loyer |
| 221,10 € /m²/an 18,43 € /m²/mois 25 039 € /an 2 087 € /mois |
| Type de bien |
| Bureau |
| Aménagement |
| Meublé et équipé |
| Disponible |
| Maintenant |
3e étage, bureau 300
| Surface |
| 616 m² |
| Durée |
| 3-7 Ans |
| Loyer |
| 221,10 € /m²/an 18,43 € /m²/mois 136 124 € /an 11 344 € /mois |
| Type de bien |
| Bureau |
| Aménagement |
| Construction achevée |
| Disponible |
| Maintenant |
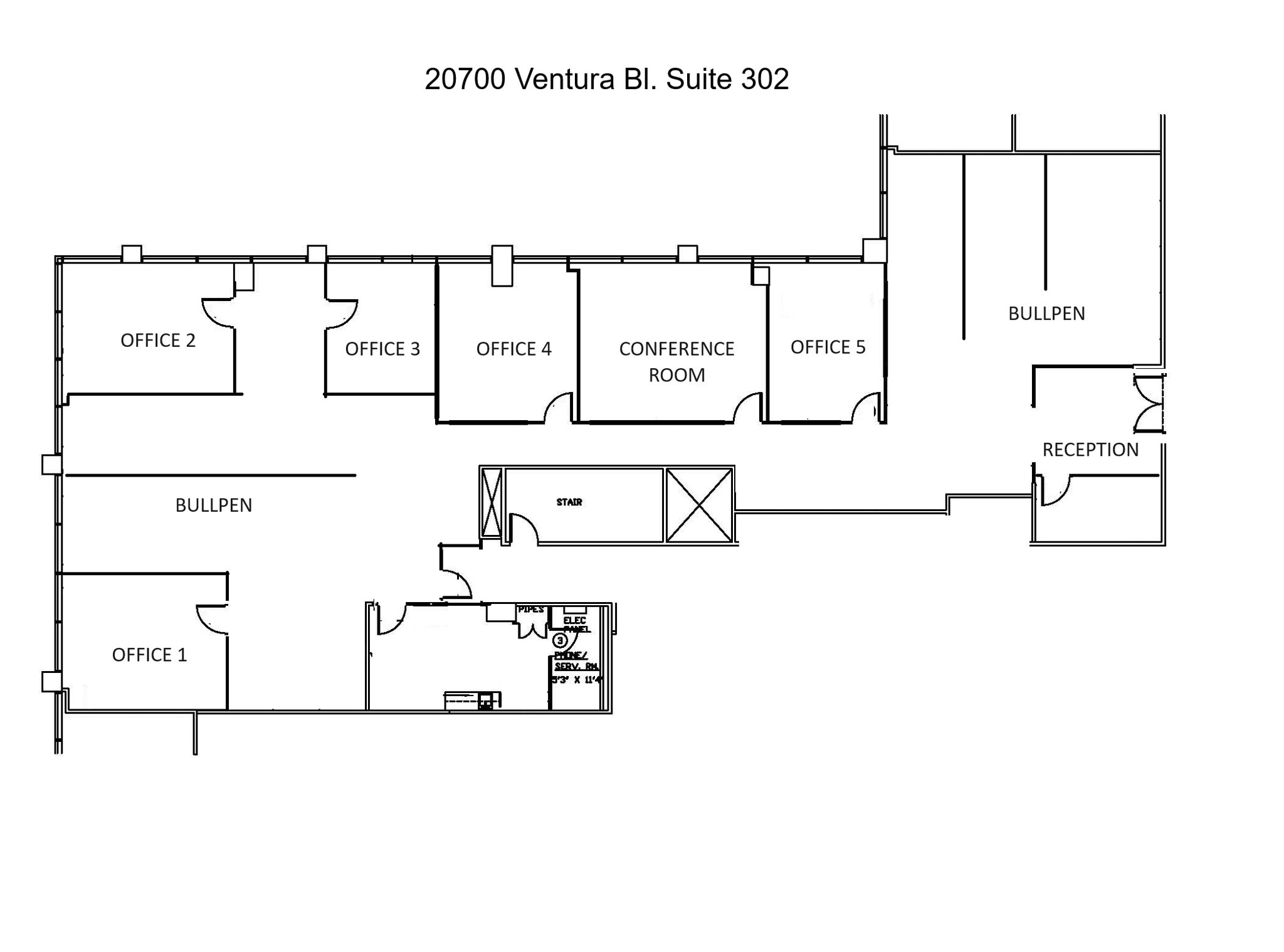
3e étage, bureau 302
| Surface |
| 510 m² |
| Durée |
| 3-7 Ans |
| Loyer |
| 221,10 € /m²/an 18,43 € /m²/mois 112 728 € /an 9 394 € /mois |
| Type de bien |
| Bureau |
| Aménagement |
| Construction achevée |
| Disponible |
| Maintenant |
3e étage, bureau 320
| Surface |
| 376 m² |
| Durée |
| 3-7 Ans |
| Loyer |
| 221,10 € /m²/an 18,43 € /m²/mois 83 191 € /an 6 933 € /mois |
| Type de bien |
| Bureau |
| Aménagement |
| Construction achevée |
| Disponible |
| Maintenant |
3e étage, bureau 327
| Surface |
| 324 m² |
| Durée |
| 3-7 Ans |
| Loyer |
| 221,10 € /m²/an 18,43 € /m²/mois 71 647 € /an 5 971 € /mois |
| Type de bien |
| Bureau |
| Aménagement |
| Construction achevée |
| Disponible |
| Maintenant |
3e étage, bureau 328
| Surface |
| 141 m² |
| Durée |
| 3-5 Ans |
| Loyer |
| 221,10 € /m²/an 18,43 € /m²/mois 31 119 € /an 2 593 € /mois |
| Type de bien |
| Bureau |
| Aménagement |
| Meublé et équipé |
| Disponible |
| Maintenant |
3e étage, bureau 350
| Surface |
| 142 m² |
| Durée |
| 3-5 Ans |
| Loyer |
| 221,10 € /m²/an 18,43 € /m²/mois 31 407 € /an 2 617 € /mois |
| Type de bien |
| Bureau |
| Aménagement |
| Construction achevée |
| Disponible |
| Maintenant |
1er étage, bureau 140
| Surface | 283 m² |
| Durée | 3-7 Ans |
| Loyer | 221,10 € /m²/an |
| Type de bien | Bureau |
| Aménagement | Construction achevée |
| Disponible | Maintenant |
Ground Floor Unit with High Ceilings. Corner Office with 7 private offices, Conference Room, 4 Work Stations, Kitchen, and enclosed reception.
- Le loyer comprend les services publics, les services de l’immeuble et les frais immobiliers.
- Entièrement aménagé comme Bureau standard
- 7 bureaux privés
- 1 salle de conférence
- 4 postes de travail
- Espace en excellent état
- Hauts plafonds
- High Ceilings
2e étage, bureau 200
| Surface | 83 m² |
| Durée | 3-5 Ans |
| Loyer | 221,10 € /m²/an |
| Type de bien | Bureau |
| Aménagement | Construction achevée |
| Disponible | Maintenant |
One Large Office with Separate Reception and Kitchen
- Le loyer comprend les services publics, les services de l’immeuble et les frais immobiliers.
- Entièrement aménagé comme Bureau de services professionnels
- 1 bureau privé
- 1 poste de travail
- Espace en excellent état
2e étage, bureau 203
| Surface | 160 m² |
| Durée | 3-5 Ans |
| Loyer | 221,10 € /m²/an |
| Type de bien | Bureau |
| Aménagement | Construction achevée |
| Disponible | Maintenant |
- Le loyer comprend les services publics, les services de l’immeuble et les frais immobiliers.
- Entièrement aménagé comme Bureau standard
- Plan d’étage avec bureaux fermés
- Espace en excellent état
2e étage, bureau 215
| Surface | 174 m² |
| Durée | 3-5 Ans |
| Loyer | 221,10 € /m²/an |
| Type de bien | Bureau |
| Aménagement | Construction achevée |
| Disponible | Maintenant |
- Le loyer comprend les services publics, les services de l’immeuble et les frais immobiliers.
- Entièrement aménagé comme Bureau standard
- Espace en excellent état
2e étage, bureau 222
| Surface | 429 m² |
| Durée | 3-10 Ans |
| Loyer | 221,10 € /m²/an |
| Type de bien | Bureau |
| Aménagement | Construction achevée |
| Disponible | Maintenant |
- Le loyer comprend les services publics, les services de l’immeuble et les frais immobiliers.
- Entièrement aménagé comme Bureau standard
- Plan d’étage avec bureaux fermés
- Espace en excellent état
2e étage, bureau 225
| Surface | 160 m² |
| Durée | 3-5 Ans |
| Loyer | 221,10 € /m²/an |
| Type de bien | Bureau |
| Aménagement | Construction achevée |
| Disponible | Maintenant |
- Le loyer comprend les services publics, les services de l’immeuble et les frais immobiliers.
- Entièrement aménagé comme Bureau standard
- Espace en excellent état
2e étage, bureau 229
| Surface | 113 m² |
| Durée | 3-5 Ans |
| Loyer | 221,10 € /m²/an |
| Type de bien | Bureau |
| Aménagement | Meublé et équipé |
| Disponible | Maintenant |
Spec Suite! Move-in Ready Office with LVT, new LED lights and kitchen.
- Le loyer comprend les services publics, les services de l’immeuble et les frais immobiliers.
- 3 bureaux privés
- 1 salle de conférence
- Espace en excellent état
3e étage, bureau 300
| Surface | 616 m² |
| Durée | 3-7 Ans |
| Loyer | 221,10 € /m²/an |
| Type de bien | Bureau |
| Aménagement | Construction achevée |
| Disponible | Maintenant |
- Le loyer comprend les services publics, les services de l’immeuble et les frais immobiliers.
- Entièrement aménagé comme Bureau standard
- Espace en excellent état
3e étage, bureau 302
| Surface | 510 m² |
| Durée | 3-7 Ans |
| Loyer | 221,10 € /m²/an |
| Type de bien | Bureau |
| Aménagement | Construction achevée |
| Disponible | Maintenant |
5 Private Window Offices, 2 Large Open Bullpen Areas. Contiguous with Suite 320 for 9,538 RSF
- Le loyer comprend les services publics, les services de l’immeuble et les frais immobiliers.
- Entièrement aménagé comme Bureau standard
- 5 bureaux privés
- 1 salle de conférence
- Espace en excellent état
- Peut être associé à un ou plusieurs espaces supplémentaires pour obtenir jusqu’à 886 m² d’espace adjacent.
3e étage, bureau 320
| Surface | 376 m² |
| Durée | 3-7 Ans |
| Loyer | 221,10 € /m²/an |
| Type de bien | Bureau |
| Aménagement | Construction achevée |
| Disponible | Maintenant |
Formerly Law Firm with 7 Private Offices, Large Conference Room, Break Room, File Room, 5 Built-In Work Stations. Contiguous with Suite 302 for 9,538 RSF
- Le loyer comprend les services publics, les services de l’immeuble et les frais immobiliers.
- Entièrement aménagé comme Bureau standard
- Espace en excellent état
- Peut être associé à un ou plusieurs espaces supplémentaires pour obtenir jusqu’à 886 m² d’espace adjacent.
3e étage, bureau 327
| Surface | 324 m² |
| Durée | 3-7 Ans |
| Loyer | 221,10 € /m²/an |
| Type de bien | Bureau |
| Aménagement | Construction achevée |
| Disponible | Maintenant |
8 Private Offices, 1 Conference Room, Bull Pen, and Kitchen
- Le loyer comprend les services publics, les services de l’immeuble et les frais immobiliers.
- Entièrement aménagé comme Bureau standard
- 8 bureaux privés
- 1 salle de conférence
- Espace en excellent état
3e étage, bureau 328
| Surface | 141 m² |
| Durée | 3-5 Ans |
| Loyer | 221,10 € /m²/an |
| Type de bien | Bureau |
| Aménagement | Meublé et équipé |
| Disponible | Maintenant |
Spec Suite! Move-in ready space newly constructed with new flooring and LED lights. 4 window offices, 1 Utility Room.
- Le loyer comprend les services publics, les services de l’immeuble et les frais immobiliers.
- 4 bureaux privés
- Espace en excellent état
3e étage, bureau 350
| Surface | 142 m² |
| Durée | 3-5 Ans |
| Loyer | 221,10 € /m²/an |
| Type de bien | Bureau |
| Aménagement | Construction achevée |
| Disponible | Maintenant |
4 Private Offices with Kitchen
- Le loyer comprend les services publics, les services de l’immeuble et les frais immobiliers.
- Entièrement aménagé comme Bureau standard
- 4 bureaux privés
- Espace en excellent état
Aperçu du bien
Le 20700 Ventura Blvd est un complexe de bureaux de trois étages situé au cœur de Woodland Hills, à quelques minutes de l'autoroute 101. L'établissement dispose d'un grand coin salon extérieur avec un café sur place et le Salon Republic, qui propose une variété de services liés à la beauté. L'établissement abrite diverses entreprises de services professionnels, notamment des services de comptabilité, d'avocats, d'assurance, de services financiers, d'immobilier, de marketing et de technologie. Le parking souterrain permet d'accéder rapidement aux suites par ascenseur et un service de voiturier est disponible pour les visiteurs et les invités. Le bâtiment possède de belles fenêtres et est entouré d'une abondance d'arbres. Les suites sont disponibles de 1 000 à 9 000 pieds carrés et le propriétaire construira des espaces pour répondre aux exigences des locataires. La signalisation des monuments le long de Ventura est disponible pour les baux plus importants.
- Ligne d’autobus
- Accès contrôlé
- Service de restauration
- Property Manager sur place
- Restaurant
- Système de sécurité
- Signalisation
- Accessible fauteuils roulants
- Sièges extérieurs
- Climatisation
Informations sur l’immeuble
Occupants
- Étage
- Nom de l’occupant
- Secteur d’activité
- 1er
- Salon Republic
- Enseigne
Présenté par
Westhills Plaza | 20700 Ventura Blvd
Hum, une erreur s’est produite lors de l’envoi de votre message. Veuillez réessayer.
Merci ! Votre message a été envoyé.





























