Connectez-vous/S’inscrire
Votre e-mail a été envoyé.
Certaines informations ont été traduites automatiquement.
Informations principales
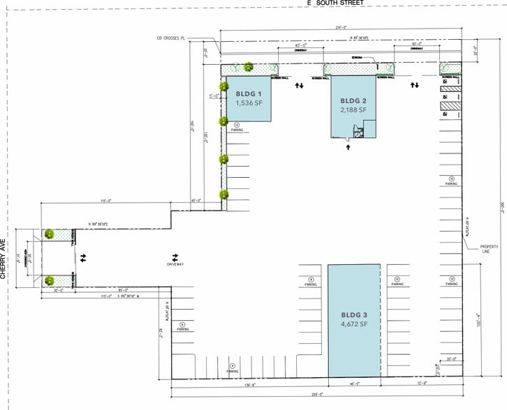
- Terrific street frontage on Cherry Avenue and East South Street
- Ideal for equipment storage, contractors yard or outside storage
- Entire site paved, fenced and lit
- Distance 1.2 miles to 91 freeway, 2.5 miles to 710 freeway and 3.25 miles to 405 freeway
- ±8,396 SF amongst 3 buildings with approximately 1,200 SF of new offices
LOT Disponible
Afficher les loyers en
| Loyer |
|
Surface du lot | 0,66 ha |
| Durée du bail | Négociable |
| Loyer | |
| Durée du bail | Négociable |
| Surface du lot | 0,66 ha |
Rare opportunity to lease 1.63 acres of industrial zoned land in Long Beach ±8,396 SF amongst 3 buildings with approximately 1,200 SF of new offices Possession is January 1, 2027
Informations sur l’immeuble
| Espace total disponible | 0,66 ha | Sous-type de bien | Terrain industriel |
| Type de bien | Terrain |
| Espace total disponible | 0,66 ha |
| Type de bien | Terrain |
| Sous-type de bien | Terrain industriel |
1 1
Fairly walkable
50/100
Exceptionally drivable
100/100
Some public transit
40/100
Fairly bikeable
50/100
1 sur 3
Vidéos
Visite extérieure 3D Matterport
Visite 3D
Photos
Street view
Rue
Carte
1 sur 1
Présenté par
2042 E South St
Vous êtes déjà membre ? Connectez-vous
Hum, une erreur s’est produite lors de l’envoi de votre message. Veuillez réessayer.
Merci ! Votre message a été envoyé.


