Votre e-mail a été envoyé.
Center & Main - Work Space 201 W Main St Bureau | 56–283 m² | À louer | Plainfield, IN 46168



Certaines informations ont été traduites automatiquement.
INFORMATIONS PRINCIPALES
- Beaucoup de lumière naturelle
- Signalisation disponible
- Stationnement sur place
- On-site Trash Service Included
TOUS LES ESPACES DISPONIBLES(2)
Afficher les loyers en
- ESPACE
- SURFACE
- DURÉE
- LOYER
- TYPE DE BIEN
- ÉTAT
- DISPONIBLE
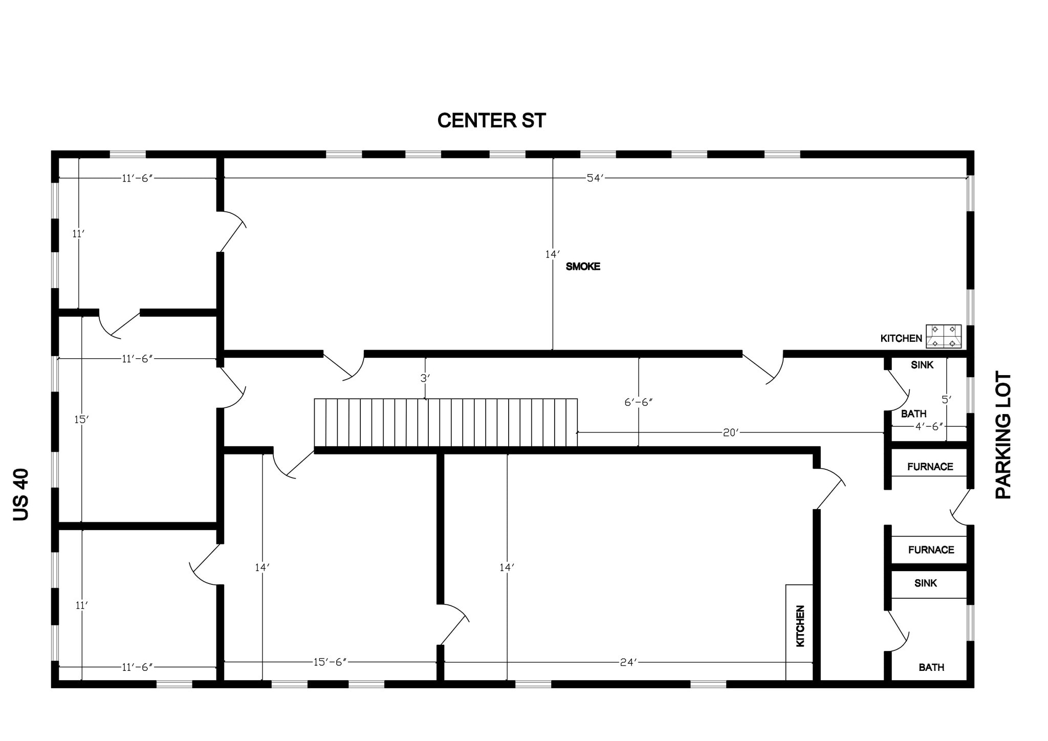
$1995/month - Utilities & High-speed Internet Provided! - Plug and Play. 3 Office Suite with tons of common area space including kitchen. Parking on-site. Great signage opportunity and high-traffic count. 1st floor common area entrance & conference room. Updates recently with new flooring and paint. Additional Private Offices available upon request.
- Le loyer comprend les services publics, les services de l’immeuble et les frais immobiliers.
- Convient pour 9 personnes
- 1 salle de conférence
- Espace en excellent état
- Ventilation et chauffage centraux
- Balcon
- Espace d’angle
- Plafonds suspendus
- Lumière naturelle
- Bail professionnel
- Entièrement aménagé comme Bureau standard
- 3 bureaux privés
- Plafonds finis: 2,74 mètres
- Plug & Play
- Connectivité Wi-Fi
- Toilettes privées
- Hauts plafonds
- Éclairage encastré
- Open space
- Détecteur de fumée
$3800/month. Space may be divided. Full Service Lease - All utilities, high-speed internet and on-site trash disposal PROVIDED by landlord. Updates in 2023 include new flooring, lighting, bathrooms & paint. Signage opportunities at major intersection. Controlled access entry with key fob. Available in February 1st. Space Features : Access Control Key Fobs to building, 3 Private Offices, 2 Kitchen areas, 2 Private Restrooms, Open Floor-plan, On-site Parking, Tons of Natural Light, etc... The Center & Main - Work Space - Plainfield, IN is an attractive office location to grow your business and develop relationships within the community. You will enjoy convenient walk-ability to local restaurants, diners, bars, and other local businesses. Internet, Utilities, Parking and on-site Trash included with the lease. Make the Center & Main - Work Space the new home of your growing business. Flexible lease terms available. Located on the SW Corner of Center St & Main St. It is directly South of the newly built Plainfield Performing Arts Center.
- Le loyer comprend les services publics, les services de l’immeuble et les frais immobiliers.
- Convient pour 5 à 15 personnes
- 1 salle de conférence
- Plug & Play
- Connectivité Wi-Fi
- Entièrement moquetté
- Espace d’angle
- Plafonds suspendus
- Lumière naturelle
- Détecteur de fumée
- Principalement open space
- 4 bureaux privés
- Espace en excellent état
- Ventilation et chauffage centraux
- Toilettes privées
- Système de sécurité
- Hauts plafonds
- Entreposage sécurisé
- Open space
- utlities & internet included, updated in 2023
| Espace | Surface | Durée | Loyer | Type de bien | État | Disponible |
| 2e étage, bureau Suite 200-210 | 56 m² | Négociable | 366,53 € /m²/an 30,54 € /m²/mois 20 431 € /an 1 703 € /mois | Bureau | Construction achevée | Maintenant |
| 3e étage, bureau 300 & 305 | 93 – 227 m² | Négociable | 174,10 € /m²/an 14,51 € /m²/mois 39 499 € /an 3 292 € /mois | Bureau | - | 01/02/2026 |
2e étage, bureau Suite 200-210
| Surface |
| 56 m² |
| Durée |
| Négociable |
| Loyer |
| 366,53 € /m²/an 30,54 € /m²/mois 20 431 € /an 1 703 € /mois |
| Type de bien |
| Bureau |
| État |
| Construction achevée |
| Disponible |
| Maintenant |
3e étage, bureau 300 & 305
| Surface |
| 93 – 227 m² |
| Durée |
| Négociable |
| Loyer |
| 174,10 € /m²/an 14,51 € /m²/mois 39 499 € /an 3 292 € /mois |
| Type de bien |
| Bureau |
| État |
| - |
| Disponible |
| 01/02/2026 |
2e étage, bureau Suite 200-210
| Surface | 56 m² |
| Durée | Négociable |
| Loyer | 366,53 € /m²/an |
| Type de bien | Bureau |
| État | Construction achevée |
| Disponible | Maintenant |
$1995/month - Utilities & High-speed Internet Provided! - Plug and Play. 3 Office Suite with tons of common area space including kitchen. Parking on-site. Great signage opportunity and high-traffic count. 1st floor common area entrance & conference room. Updates recently with new flooring and paint. Additional Private Offices available upon request.
- Le loyer comprend les services publics, les services de l’immeuble et les frais immobiliers.
- Entièrement aménagé comme Bureau standard
- Convient pour 9 personnes
- 3 bureaux privés
- 1 salle de conférence
- Plafonds finis: 2,74 mètres
- Espace en excellent état
- Plug & Play
- Ventilation et chauffage centraux
- Connectivité Wi-Fi
- Balcon
- Toilettes privées
- Espace d’angle
- Hauts plafonds
- Plafonds suspendus
- Éclairage encastré
- Lumière naturelle
- Open space
- Bail professionnel
- Détecteur de fumée
3e étage, bureau 300 & 305
| Surface | 93 – 227 m² |
| Durée | Négociable |
| Loyer | 174,10 € /m²/an |
| Type de bien | Bureau |
| État | - |
| Disponible | 01/02/2026 |
$3800/month. Space may be divided. Full Service Lease - All utilities, high-speed internet and on-site trash disposal PROVIDED by landlord. Updates in 2023 include new flooring, lighting, bathrooms & paint. Signage opportunities at major intersection. Controlled access entry with key fob. Available in February 1st. Space Features : Access Control Key Fobs to building, 3 Private Offices, 2 Kitchen areas, 2 Private Restrooms, Open Floor-plan, On-site Parking, Tons of Natural Light, etc... The Center & Main - Work Space - Plainfield, IN is an attractive office location to grow your business and develop relationships within the community. You will enjoy convenient walk-ability to local restaurants, diners, bars, and other local businesses. Internet, Utilities, Parking and on-site Trash included with the lease. Make the Center & Main - Work Space the new home of your growing business. Flexible lease terms available. Located on the SW Corner of Center St & Main St. It is directly South of the newly built Plainfield Performing Arts Center.
- Le loyer comprend les services publics, les services de l’immeuble et les frais immobiliers.
- Principalement open space
- Convient pour 5 à 15 personnes
- 4 bureaux privés
- 1 salle de conférence
- Espace en excellent état
- Plug & Play
- Ventilation et chauffage centraux
- Connectivité Wi-Fi
- Toilettes privées
- Entièrement moquetté
- Système de sécurité
- Espace d’angle
- Hauts plafonds
- Plafonds suspendus
- Entreposage sécurisé
- Lumière naturelle
- Open space
- Détecteur de fumée
- utlities & internet included, updated in 2023
APERÇU DU BIEN
Centre et salle principale - Espace de travail - EMPLACEMENT. EMPLACEMENT. EMPLACEMENT. Emplacement commercial idéal au centre-ville de Plainfield. Situé juste en face du nouveau centre des arts de la scène. Internet et services publics fournis.
- Accès 24 h/24
- Accès contrôlé
- Signalisation
- Sièges extérieurs
- Climatisation
- Balcon
- Détecteur de fumée
INFORMATIONS SUR L’IMMEUBLE
OCCUPANTS
- ÉTAGE
- NOM DE L’OCCUPANT
- SECTEUR D’ACTIVITÉ
- 1er
- Aanderson Insurance
- Finance et assurances
- Inconnu
- Indy Pillar Llc
- Immobilier
Présenté par
Indy Pillar LLC
Center & Main - Work Space | 201 W Main St
Hum, une erreur s’est produite lors de l’envoi de votre message. Veuillez réessayer.
Merci ! Votre message a été envoyé.






