Votre e-mail a été envoyé.
Certaines informations ont été traduites automatiquement.
Informations principales
- Class A ~6k SF Office / Flex In Central Park / Upsala Business Park
- 2K+ SF Warehouse: 18' clear & two 16' grade-level doors
- 19 Parking Spaces + E? V Charging Station
- Office Features: 9 private offices, conference room, break room, command center, 3 toilets, 1 shower
- Premium Finishes: Travertine tile floors, sleek lighting, modern touches
- Plug-and-play
Caractéristiques
Tous les espace disponibles(1)
Afficher les loyers en
- Espace
- Surface
- Durée
- Loyer
- Type de bien
- Aménagement
- Disponible
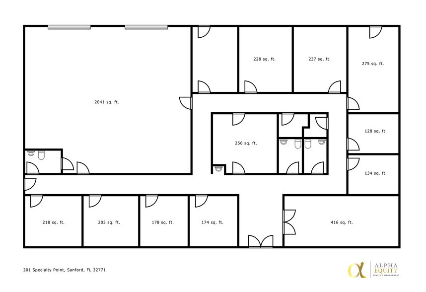
Welcome to 201 Specialty Point, a one-of-a-kind, single-tenant commercial facility ready for your business. Located in the heart of Upsala Business Park in Sanford, this ±5,961 SF building perfectly combines high-end office finishes with versatile warehouse space, making it an ideal home for a growing company. The building's striking reddish-orange exterior with a clean, textured stucco finish creates a strong, professional first impression, complemented by a front entrance accented by mature palm trees. The property boasts an impressive parking ratio of 3 per 1,000 SF, providing 19 dedicated parking spaces for staff and clients. The ±2,041 SF warehouse is designed for efficient operations, featuring an impressive 18' clear ceiling height and two 16' grade-level doors, perfect for light manufacturing, distribution, or a creative workspace. Inside, the modern office space is designed for efficiency and style. It includes multiple private offices, open workspaces, a conference room, a reception area, and a fully equipped break area. The office is elevated with premium finishes like elegant travertine tile floors and upgraded lighting. The property also features three well-appointed restrooms, including one with a full shower for added convenience. This truly "plug-in-and-go" facility is ready for immediate occupancy. An EV charging station is already installed, catering to modern, sustainable business needs. Strategically located with excellent visibility and easy access to SR-417 and SR-46, the property offers seamless flow for operations with ingress from Specialty Point and egress on Codisco Way. Whether you're scaling operations or relocating your regional hub, this iconic building provides the flexibility and impact your business needs. Experience the space virtually: https://my.matterport.com/show/?m=FcqQzgHGT3n ; https://vimeo.com/1121535840 Schedule your private tour today!
- Le loyer ne comprend pas les services publics, les frais immobiliers ou les services de l’immeuble.
- Plafonds finis: 4,88 mètres - 6,71 mètres
- Convient pour 15 à 48 personnes
| Espace | Surface | Durée | Loyer | Type de bien | Aménagement | Disponible |
| 1er étage | 554 m² | 3-5 Ans | 146,89 € /m²/an 12,24 € /m²/mois 81 346 € /an 6 779 € /mois | Bureau | Construction achevée | Maintenant |
1er étage
| Surface |
| 554 m² |
| Durée |
| 3-5 Ans |
| Loyer |
| 146,89 € /m²/an 12,24 € /m²/mois 81 346 € /an 6 779 € /mois |
| Type de bien |
| Bureau |
| Aménagement |
| Construction achevée |
| Disponible |
| Maintenant |
1er étage
| Surface | 554 m² |
| Durée | 3-5 Ans |
| Loyer | 146,89 € /m²/an |
| Type de bien | Bureau |
| Aménagement | Construction achevée |
| Disponible | Maintenant |
Welcome to 201 Specialty Point, a one-of-a-kind, single-tenant commercial facility ready for your business. Located in the heart of Upsala Business Park in Sanford, this ±5,961 SF building perfectly combines high-end office finishes with versatile warehouse space, making it an ideal home for a growing company. The building's striking reddish-orange exterior with a clean, textured stucco finish creates a strong, professional first impression, complemented by a front entrance accented by mature palm trees. The property boasts an impressive parking ratio of 3 per 1,000 SF, providing 19 dedicated parking spaces for staff and clients. The ±2,041 SF warehouse is designed for efficient operations, featuring an impressive 18' clear ceiling height and two 16' grade-level doors, perfect for light manufacturing, distribution, or a creative workspace. Inside, the modern office space is designed for efficiency and style. It includes multiple private offices, open workspaces, a conference room, a reception area, and a fully equipped break area. The office is elevated with premium finishes like elegant travertine tile floors and upgraded lighting. The property also features three well-appointed restrooms, including one with a full shower for added convenience. This truly "plug-in-and-go" facility is ready for immediate occupancy. An EV charging station is already installed, catering to modern, sustainable business needs. Strategically located with excellent visibility and easy access to SR-417 and SR-46, the property offers seamless flow for operations with ingress from Specialty Point and egress on Codisco Way. Whether you're scaling operations or relocating your regional hub, this iconic building provides the flexibility and impact your business needs. Experience the space virtually: https://my.matterport.com/show/?m=FcqQzgHGT3n ; https://vimeo.com/1121535840 Schedule your private tour today!
- Le loyer ne comprend pas les services publics, les frais immobiliers ou les services de l’immeuble.
- Convient pour 15 à 48 personnes
- Plafonds finis: 4,88 mètres - 6,71 mètres
Aperçu du bien
Welcome to 201 Specialty Point, a one-of-a-kind, single-tenant commercial facility ready for your business. Located in the heart of Upsala Business Park in Sanford, this ±5,961 SF building perfectly combines high-end office finishes with versatile warehouse space, making it an ideal home for a growing company. The building's striking reddish-orange exterior with a clean, textured stucco finish creates a strong, professional first impression, complemented by a front entrance accented by mature palm trees. The property boasts an impressive parking ratio of 3 per 1,000 SF, providing 19 dedicated parking spaces for staff and clients. The ±2,041 SF warehouse is designed for efficient operations, featuring an impressive 18' clear ceiling height and two 16' grade-level doors, perfect for light manufacturing, distribution, or a creative workspace. Inside, the modern office space is designed for efficiency and style. It includes multiple private offices, open workspaces, a conference room, a reception area, and a fully equipped break area. The office is elevated with premium finishes like elegant travertine tile floors and upgraded lighting. The property also features three well-appointed restrooms, including one with a full shower for added convenience. This truly "plug-in-and-go" facility is ready for immediate occupancy. An EV charging station is already installed, catering to modern, sustainable business needs. Strategically located with excellent visibility and easy access to SR-417 and SR-46, the property offers seamless flow for operations with ingress from Specialty Point and egress on Codisco Way. Whether you're scaling operations or relocating your regional hub, this iconic building provides the flexibility and impact your business needs. Experience the space virtually: https://my.matterport.com/show/?m=FcqQzgHGT3n ; https://www.youtube.com/watch?v=A9PeACENBio. Schedule your private tour today!
Informations sur l’immeuble
Présenté par
201 Specialty Pt
Hum, une erreur s’est produite lors de l’envoi de votre message. Veuillez réessayer.
Merci ! Votre message a été envoyé.






