Connectez-vous/S’inscrire
Votre e-mail a été envoyé.
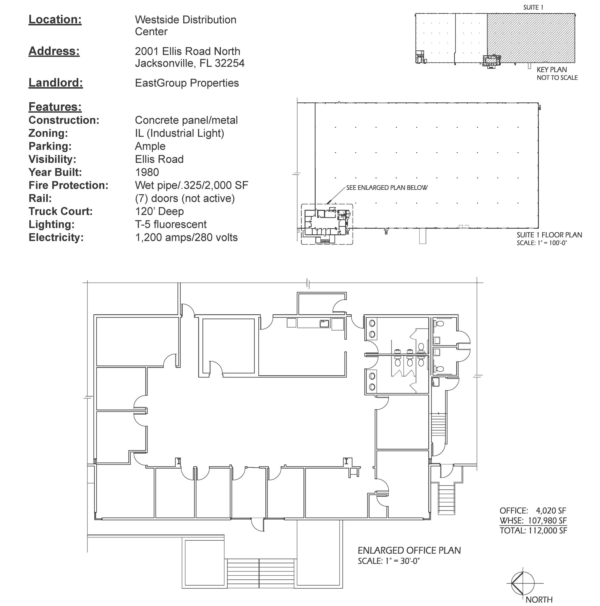
Westside Distribution Center 1 2001-2003 Ellis Rd N Industriel/Logistique | 10 405 m² | 4 étoiles | À louer | Jacksonville, FL 32254



Certaines informations ont été traduites automatiquement.
Informations principales
- ±112,000 SF Warehouse Space with ±1,450 SF Office Available 8/1/26
- 31’ Min. - 36’ Max. Ceiling Height
- Easy Access to I-295 and I-95
- Dock Doors: (6) 10’x10’ - 5 with EOD levelers (1) 20’x10’ - with 2 pit levelers (1) 10’x10’ door w/ 12’ ramp
- Zoned IL
Caractéristiques
Hauteur libre
10,97 m
Espacement des colonnes
15,24 m x 15,24 m
Portes de quai de chargement extérieures
20
Niveleurs
9
Places de stationnement standard
100
Tous les espace disponibles(1)
Afficher les loyers en
- Espace
- Surface
- Durée
- Loyer
- Type de bien
- Aménagement
- Disponible
Available August 1, 2026
- Le loyer ne comprend pas les services publics, les frais immobiliers ou les services de l’immeuble.
- Comprend 135 m² d’espace de bureau dédié
| Espace | Surface | Durée | Loyer | Type de bien | Aménagement | Disponible |
| 1er étage – 1 | 10 405 m² | Négociable | 61,97 € /m²/an 5,16 € /m²/mois 644 792 € /an 53 733 € /mois | Industriel/Logistique | - | 90 jours |
1er étage – 1
| Surface |
| 10 405 m² |
| Durée |
| Négociable |
| Loyer |
| 61,97 € /m²/an 5,16 € /m²/mois 644 792 € /an 53 733 € /mois |
| Type de bien |
| Industriel/Logistique |
| Aménagement |
| - |
| Disponible |
| 90 jours |
1 sur 1
Vidéos
Visite extérieure 3D Matterport
Visite 3D
Photos
Street view
Rue
Carte
1er étage – 1
| Surface | 10 405 m² |
| Durée | Négociable |
| Loyer | 61,97 € /m²/an |
| Type de bien | Industriel/Logistique |
| Aménagement | - |
| Disponible | 90 jours |
Available August 1, 2026
- Le loyer ne comprend pas les services publics, les frais immobiliers ou les services de l’immeuble.
- Comprend 135 m² d’espace de bureau dédié
Aperçu du bien
±112,000 SF Warehouse Space with ±1,450 SF Office Available 8/1/26
Faits sur l’installation manufacture
Surface de l’immeuble
18 674 m²
Surface du lot
3,55 ha
Année de construction
1980
Développement et livraisons
Béton armé
Terrain de camion
36,58 m
Système de sprinkler
Humide
Éclairage
Fluorescent
Eau
Ville
Égout
Ville
Gaz
Propane
Alimentation électrique
Ampères: 1 200 Volts: 277-480 Phase: 3 Fil: 4
Zonage
IL - Entrepôt/distribution
1 1
Somewhat walkable
20/100
Exceptionally drivable
100/100
Fairly bikeable
50/100
1 sur 7
Vidéos
Visite extérieure 3D Matterport
Visite 3D
Photos
Street view
Rue
Carte
1 sur 1
Présenté par
Westside Distribution Center 1 | 2001-2003 Ellis Rd N
Vous êtes déjà membre ? Connectez-vous
Hum, une erreur s’est produite lors de l’envoi de votre message. Veuillez réessayer.
Merci ! Votre message a été envoyé.


