Votre e-mail a été envoyé.
Certaines informations ont été traduites automatiquement.
Informations principales
- Bureaux médicaux et professionnels personnalisables à Raritan Commons, un emplacement privilégié du comté de Hunterdon avec une exposition et une visibilité directes sur la Route 31.
- Stratégiquement situé en face du centre médical de Hunterdon et à proximité d'hôtels, de restaurants, de lieux de divertissement et d'une population environnante aisée.
- Les employés et les clients bénéficient d'une entrée contrôlée par des feux de signalisation, d'un vaste parking en surface, d'un accès pour personnes handicapées, d'un hall d'accueil sophistiqué, etc.
- Il est facile de rejoindre Raritan Commons, grâce à un accès pratique aux principales autoroutes, notamment les routes 22, 28, 31, 202, 206 et les autoroutes 78 et 287.
Tous les espaces disponibles(3)
Afficher les loyers en
- Espace
- Surface
- Durée
- Loyer
- Type de bien
- Aménagement
- Disponible
Fully built-out dental space.
- Le loyer ne comprend pas les services publics, les frais immobiliers ou les services de l’immeuble.
- Principalement open space
- Entièrement aménagé comme Cabinet dentaire
- Espace en excellent état
- Le loyer ne comprend pas les services publics, les frais immobiliers ou les services de l’immeuble.
- Principalement open space
- Entièrement aménagé comme Bureau standard
- Espace en excellent état
- Le loyer ne comprend pas les services publics, les frais immobiliers ou les services de l’immeuble.
| Espace | Surface | Durée | Loyer | Type de bien | Aménagement | Disponible |
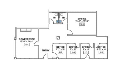
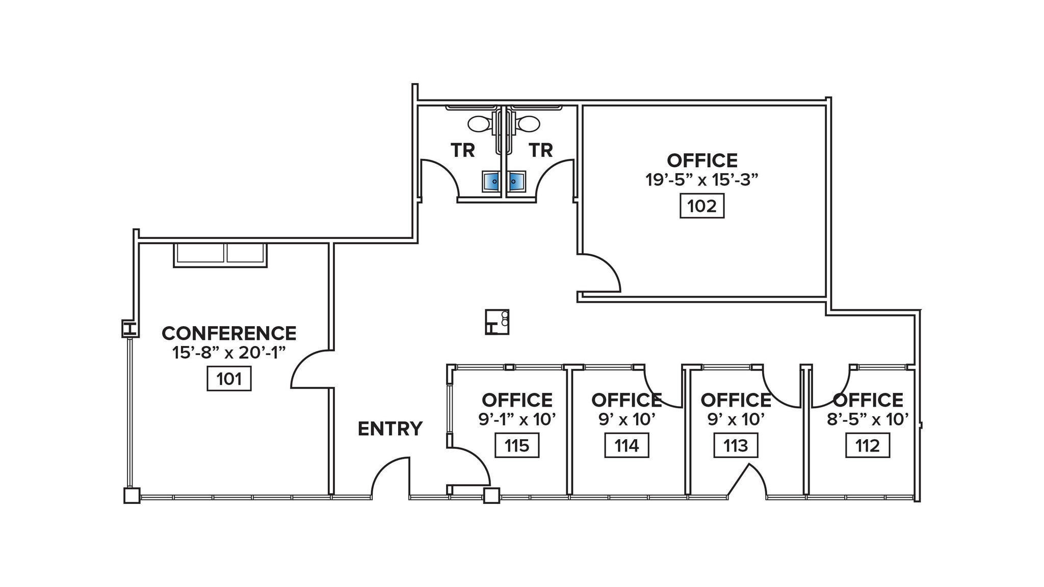
| 1er étage, bureau 103 | 314 m² | Négociable | 192,79 € /m²/an 16,07 € /m²/mois 60 610 € /an 5 051 € /mois | Bureaux/Médical | Construction achevée | 60 jours |
| 1er étage, bureau 115 | 189 m² | Négociable | 128,53 € /m²/an 10,71 € /m²/mois 24 251 € /an 2 021 € /mois | Bureau | Construction achevée | Maintenant |
| 2e étage, bureau 210 | 196 m² | Négociable | Sur demande Sur demande Sur demande Sur demande | Bureaux/Médical | - | Maintenant |
1er étage, bureau 103
| Surface |
| 314 m² |
| Durée |
| Négociable |
| Loyer |
| 192,79 € /m²/an 16,07 € /m²/mois 60 610 € /an 5 051 € /mois |
| Type de bien |
| Bureaux/Médical |
| Aménagement |
| Construction achevée |
| Disponible |
| 60 jours |
1er étage, bureau 115
| Surface |
| 189 m² |
| Durée |
| Négociable |
| Loyer |
| 128,53 € /m²/an 10,71 € /m²/mois 24 251 € /an 2 021 € /mois |
| Type de bien |
| Bureau |
| Aménagement |
| Construction achevée |
| Disponible |
| Maintenant |
2e étage, bureau 210
| Surface |
| 196 m² |
| Durée |
| Négociable |
| Loyer |
| Sur demande Sur demande Sur demande Sur demande |
| Type de bien |
| Bureaux/Médical |
| Aménagement |
| - |
| Disponible |
| Maintenant |
1er étage, bureau 103
| Surface | 314 m² |
| Durée | Négociable |
| Loyer | 192,79 € /m²/an |
| Type de bien | Bureaux/Médical |
| Aménagement | Construction achevée |
| Disponible | 60 jours |
Fully built-out dental space.
- Le loyer ne comprend pas les services publics, les frais immobiliers ou les services de l’immeuble.
- Entièrement aménagé comme Cabinet dentaire
- Principalement open space
- Espace en excellent état
1er étage, bureau 115
| Surface | 189 m² |
| Durée | Négociable |
| Loyer | 128,53 € /m²/an |
| Type de bien | Bureau |
| Aménagement | Construction achevée |
| Disponible | Maintenant |
- Le loyer ne comprend pas les services publics, les frais immobiliers ou les services de l’immeuble.
- Entièrement aménagé comme Bureau standard
- Principalement open space
- Espace en excellent état
2e étage, bureau 210
| Surface | 196 m² |
| Durée | Négociable |
| Loyer | Sur demande |
| Type de bien | Bureaux/Médical |
| Aménagement | - |
| Disponible | Maintenant |
- Le loyer ne comprend pas les services publics, les frais immobiliers ou les services de l’immeuble.
Aperçu du bien
Raritan Commons, situé au 200 Route 31 N, propose des bureaux médicaux et professionnels de premier ordre à louer à Flemington, dans le New Jersey. Le bâtiment s'étend sur 67 040 pieds carrés sur deux étages, avec une entrée bien visible contrôlée par des feux de signalisation. Situé au cœur du comté de Hunterdon, cet établissement à haute visibilité constitue un cadre idéal pour les nouvelles entreprises ou les entreprises en pleine croissance. L'établissement dispose de 336 places de parking en surface, y compris pour les personnes handicapées, ainsi que d'une entrée élégante menant à un hall d'accueil et de deux ascenseurs pour un accès pratique à tous les étages. Des espaces médicaux et de bureaux construits sur mesure sont disponibles, conçus sur mesure pour répondre à des besoins spécifiques, avec des salles de bains privées et des kitchenettes en option dans chaque suite. Un espace dentaire de deuxième génération entièrement construit est également disponible à la location, offrant 3 384 pieds carrés d'espace clé en main prêt à accueillir votre cabinet. Le Raritan Commons se trouve sur la voie nord de la Route 31, en face du centre médical de Hunterdon. L'établissement se trouve à proximité d'hôtels, de restaurants, de banques et de lieux de divertissement et bénéficie d'une population environnante aisée de plus de 39 000 habitants vivant dans un rayon de 8 miles, avec un revenu familial moyen d'environ 156 566 dollars par an. Grâce à un accès facile aux routes 22, 28, 31, 202 et 206 et aux autoroutes 78 et 287, il est facile d'accéder à l'établissement et de se connecter à la communauté.
- Lumière naturelle
- Bureaux cloisonnés
- Plug & Play
Informations sur l’immeuble
Brochure marketing
À proximité
Hôpitaux |
|||
|---|---|---|---|
| Hunterdon Medical Center | Soins intensifs | 2 min en voiture | 0,8 km |
Restaurants |
|||
|---|---|---|---|
| Starbucks | Café | USD | 10 min. à pied |
| Pork Chop's BBQ | Américain | €€€ | 9 min. à pied |
| Dockside Market & Grill | Américain | €€€ | 14 min. à pied |
Local commercial |
||
|---|---|---|
| Fulton Bank Of New Jersey | Banque | 3 min. à pied |
| BJ's Wholesale Club | Grossiste (club) | 5 min. à pied |
| Walmart | Grand magasin | 15 min. à pied |
Hôtels |
|
|---|---|
| Tribute Portfolio |
100 chambres
5 min en voiture
|
| Hampton by Hilton |
84 chambres
6 min en voiture
|
| Ramada |
104 chambres
7 min en voiture
|
| TownePlace Suites |
100 chambres
12 min en voiture
|
À propos du quartier Hunterdon
Le comté de Hunterdon est à peu près à égale distance de New York et de Philadelphie, ce qui permet aux entreprises d'attirer les talents de ces deux grandes zones métropolitaines. Les locataires peuvent facilement profiter de la main-d'œuvre locale hautement qualifiée, car le comté de Hunterdon et plusieurs comtés environnants figurent parmi les comtés aux revenus les plus élevés du New Jersey et des États-Unis. Les employés peuvent trouver ici des trajets relativement simples, car le cadre pittoresque de Hunterdon permet d'éviter une grande partie des embouteillages en semaine que l'on trouve dans les zones plus proches de New York ou de Philadelphie.
Une grande partie de l'inventaire du comté de Hunterdon est regroupée le long des autoroutes et des grands itinéraires. Flemington est le chef-lieu du comté et abrite plusieurs grandes propriétés dans son centre-ville et le long de l'U.S. 202, qui traverse Hunterdon du nord au sud. Plusieurs grands bureaux sont également situés le long de l'autoroute Phillipsburg-Newark, qui s'étend d'est en ouest près de la limite nord du comté. La plupart des bureaux peuvent atteindre New York ou Philadelphie en une heure et demie de voiture.
Les locataires du comté de Hunterdon représentent un large éventail d'industries, notamment les services énergétiques, l'industrie manufacturière et la biotechnologie. La société pétrolière et gazière britannique John Wood Group possède un grand site à Hampton, tandis que la société manufacturière irlandaise Ingersoll-Rand possède un grand bureau à Annandale. Les sociétés de biotechnologie Celldex Therapeutics et Visikol, Inc. comptent également parmi les principaux locataires. On y trouve plusieurs organisations gouvernementales et à but non lucratif importantes, notamment Arc of Hunterdon County, le Department of Children and Family Services et le New Jersey Department of Community Affairs.
Équipes de location
Équipes de location
Mark Hay,
Vice President
Robert Marek,
Executive Vice President
Melissa Nascimento, Executive Vice President of Marketing
À propos du propriétaire
Autres biens dans le portefeuille LARKEN ASSOCIATES
Présenté par
Société non fournie
Raritan Commons | 200 Route 31 N
Hum, une erreur s’est produite lors de l’envoi de votre message. Veuillez réessayer.
Merci ! Votre message a été envoyé.












