Partager cette annonce

Message

947 caractères restants

Hum, une erreur s’est produite lors de l’envoi de votre message. Veuillez réessayer.

Votre e-mail a été envoyé.

Toujours intéressé ?

Contactez le courtier pour plus d'informations sur cette propriété

Description

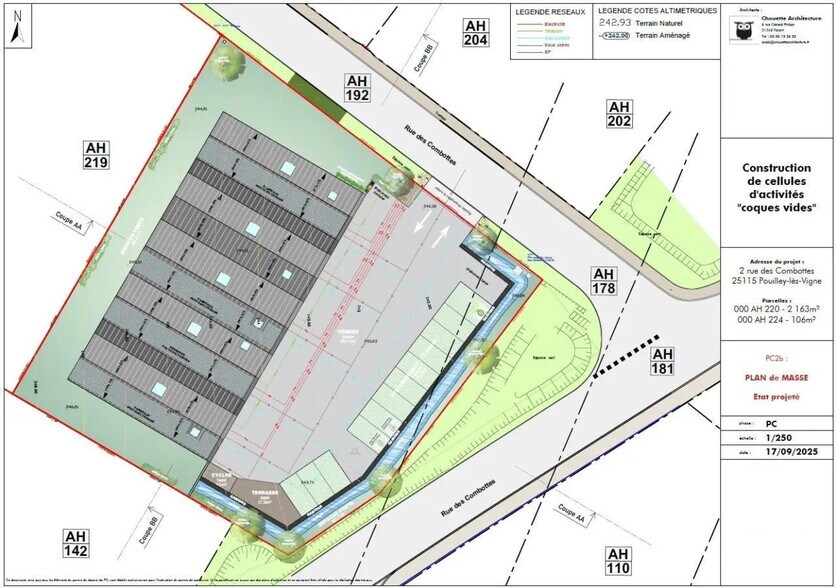
POUILLEY LES VIGNES Dans un ensemble immobilier neuf, 5 cellules d'activité à vendre . Lots à partir de 168 m² environ. Places de parking privatives pour chaque lot. A VENDRE Cellules à partir de 168 m² POUILLEY-LES-VIGNES Bâtiment d'activité neuf - 5 Cellules - Livraison 2ème semestre 2027. Ce programme propose 5 cellules pour les artisans et les petites et moyennes entreprises cherchant un emplacement dans le Grand Besançon. Situé sur un terrain clos avec espaces verts, ce bâtiment neuf propose des cellules livrées brut de béton (dalle quartzée), fluides en attente et compteurs individuels.  Une hauteur libre de 7 mètres, un accès de plain-pied par porte motorisée. 13 places de parkings dont 1 place de parking pour les personnes à mobilité réduite, pré équipement pour véhicules électriques ainsi que stationnements vélos. Le site met l'accent sur la végétalisation, la récupération des eaux de pluie, des espaces extérieurs aménagés. Installation de panneaux photovoltaïques en toiture. Un emplacement stratégique et accessible L'implantation à Pouilley-les-Vignes permet de travailler au calme tout en restant proche des grands axes :  Besançon à 23 minutes Accès autoroutier : l'échangeur de l'A36 (Besançon ouest) se trouve à 8 minutes, ce qui facilite les liaisons vers Dole, Dijon ou Montbéliard. Les services de proximité immédiate Pouilley-les-Vignes offre tous les services nécessaires à moins de 2 minutes à pied, tels que restauration, commerces, agences bancaires, etc Charpente : Bois Murs : Bardage double peau Sols du bâtiment : dalle béton avec surcharge au sol 2T/m² Hauteur sous poutre : 7,00 mètre(s) Porte(s) d'accès plain-pied : porte sectionnelle 3,50 x 3,50 m Eclairage intérieur : LED Puissance électrique : Tarif Bleu 36KVa pour chaque cellule Autre élément activité : Panneaux photovoltaïques

Informations sur l’immeuble

Prix 236 767 €
Surface du lot 124 - 152 m²
Nb de lots 5
Surface totale de l’immeuble 938 m²
Type de bien Local d'activités

5 Lots disponibles

Surface du lot 124 m²
Usage du lot en coprop. Local d’activités
Type de vente Propriétaire occupant

Surface du lot 136 m²
Usage du lot en coprop. Local d’activités
Type de vente Propriétaire occupant

Surface du lot 140 m²
Usage du lot en coprop. Local d’activités
Type de vente Propriétaire occupant

Surface du lot 141 m²
Usage du lot en coprop. Local d’activités
Type de vente Propriétaire occupant

Surface du lot 152 m²
Usage du lot en coprop. Local d’activités
Type de vente Propriétaire occupant
  • ID de l’annonce: 39671895

  • Date de mise sur le marché: 05/03/2026

  • Dernière mise à jour:

  • Adresse: 2 Rue Des Combottes, 25115 Pouilley-les-Vignes

Lot Bâtiment Type Etage Surface
Cellule 01 Version 5 cellules Locaux d'Activités RDC 136.27
Cellule 01 Version 5 cellules Mezzanine R+1 49.00
Cellule 02 Version 5 cellules Locaux d'Activités RDC 139.65
Cellule 02 Version 5 cellules Mezzanine R+1 49.17
Cellule 03 Version 5 cellules Locaux d'Activités RDC 140.61
Cellule 03 Version 5 cellules Mezzanine R+1 49.50
Cellule 04 Version 5 cellules Locaux d'Activités RDC 124.10
Cellule 04 Version 5 cellules Mezzanine R+1 43.82
Cellule 05 Version 5 cellules Locaux d'Activités RDC 151.89
Cellule 05 Version 5 cellules Mezzanine R+1 54.35
Lien copié
Votre compte LoopNet a été créé !

Veuillez partager vos commentaires

Nous vous invitons à nous faire part de vos commentaires sur la façon dont nous pouvons améliorer LoopNet afin de mieux répondre à vos besoins.
X
{{ getErrorText(feedbackForm.starRating, "Ce notation") }}
255 caractères max. ({{ remainingChars() }} caractèrecaractères restantsur)
{{ getErrorText(feedbackForm.msg, "Ce notation") }}
{{ getErrorText(feedbackForm.fname, "Ce prénom") }}
{{ getErrorText(feedbackForm.lname, "Ce nom") }}
{{ getErrorText(feedbackForm.phone, "Ce numéro de téléphone") }}
{{ getErrorText(feedbackForm.phonex, "Cette extension de téléphone") }}
{{ getErrorText(feedbackForm.email, "Cet email") }}