Connectez-vous/S’inscrire
Votre e-mail a été envoyé.
Certaines informations ont été traduites automatiquement.
INFORMATIONS PRINCIPALES SUR L'INVESTISSEMENT
- Heavy Power
- Redevelopment Opportunity
- Flexible Seller
- Unique Location
RÉSUMÉ ANALYTIQUE
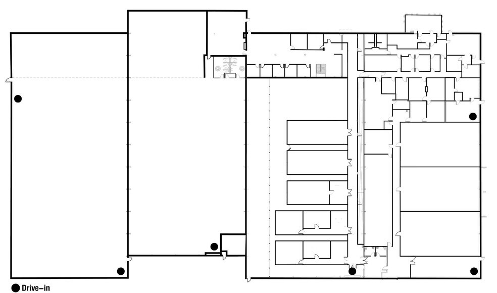
The Subject Property is a single-tenant industrial building located off Eric Circle in Verdi, Nevada. The property is a ±88,560 square foot facility sitting on ±4.0 acres of land, consisting of lab space built out of cultivation and empty warehouse with the ability to redevelop.
Lot Size ±4.0 AC
Building Size (SF) ±88,560 SF
Sale Type Investment or Owner-User
Cultivation facility currently in operation
Power 4,000 AMP I 480 Volt I 3 Phase
Clear Height 14’ - 20’
Drive-In Doors 6
Parking 25 Auto
APN 038-060-09
Year Built 1968
Zoning I - Industrial
Lot Size ±4.0 AC
Building Size (SF) ±88,560 SF
Sale Type Investment or Owner-User
Cultivation facility currently in operation
Power 4,000 AMP I 480 Volt I 3 Phase
Clear Height 14’ - 20’
Drive-In Doors 6
Parking 25 Auto
APN 038-060-09
Year Built 1968
Zoning I - Industrial
INFORMATIONS SUR L’IMMEUBLE
1 1
TAXES FONCIÈRES
| Numéro de parcelle | 038-060-09 | Évaluation des aménagements | 1 203 468 € |
| Évaluation du terrain | 233 621 € | Évaluation totale | 1 437 089 € |
TAXES FONCIÈRES
Numéro de parcelle
038-060-09
Évaluation du terrain
233 621 €
Évaluation des aménagements
1 203 468 €
Évaluation totale
1 437 089 €
1 sur 34
VIDÉOS
VISITE EXTÉRIEURE 3D MATTERPORT
VISITE 3D
PHOTOS
STREET VIEW
RUE
CARTE
1 sur 1
Présenté par
2 Eric Cir
Vous êtes déjà membre ? Connectez-vous
Hum, une erreur s’est produite lors de l’envoi de votre message. Veuillez réessayer.
Merci ! Votre message a été envoyé.



