Votre e-mail a été envoyé.
Catelli House 2 Arthur St 404 m² | À louer | Pudsey LS28 6JY



Certaines informations ont été traduites automatiquement.
Informations principales
- Modern office accommodation with meeting rooms
- Fully fitted kitchen and reception area
- 820 sq ft warehouse with roller shutter access
Caractéristiques
Tous les espace disponibles(1)
Afficher les loyers en
- Espace
- Surface
- Durée
- Loyer
- Type de bien
- Aménagement
- Disponible
Les espaces 2 de cet immeuble doivent être loués ensemble, pour un total de 404 m² (Surface contiguë):
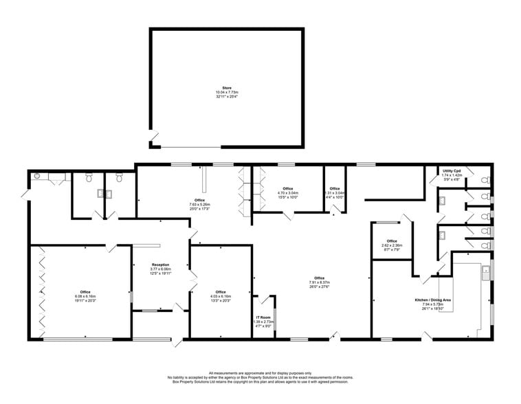
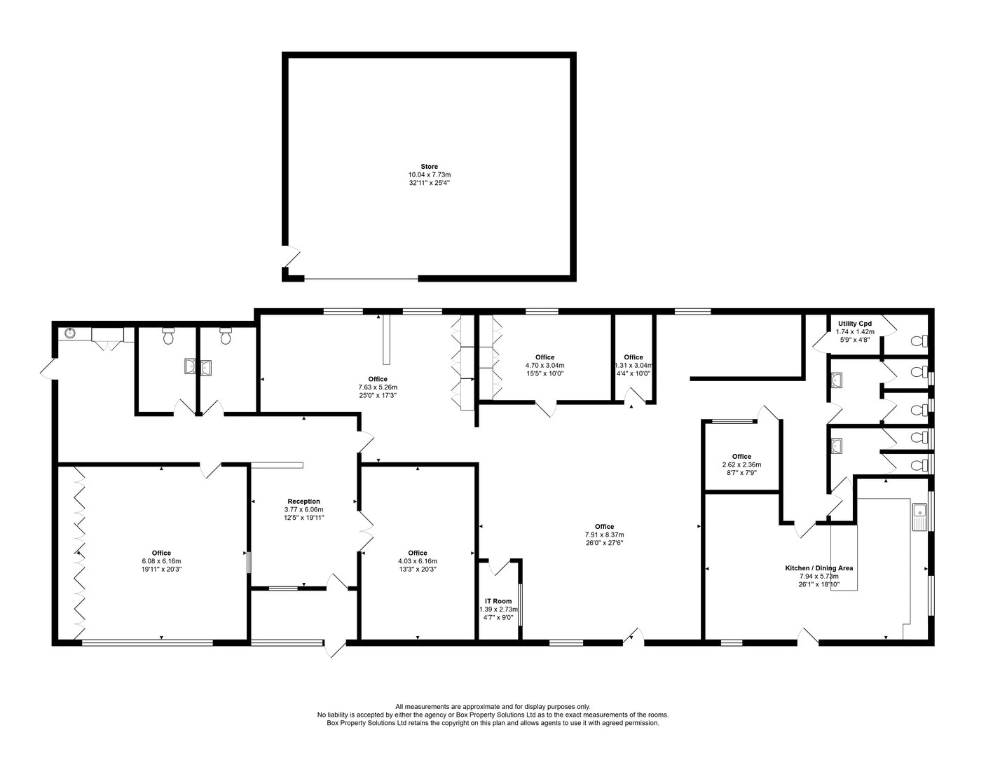
The property provides a self-contained office and warehouse facility totalling 4,349 sq ft, arranged to offer a high proportion of well-specified office accommodation alongside practical warehouse space. Internally, the offices comprise a mix of open-plan areas, private offices and meeting rooms, supported by a welcoming reception area and fully fitted kitchen facilities
- Classe d’utilisation : E
- Principalement open space
- Stores automatiques
- Fully fitted kitchen and reception area
- Toilettes incluses dans le bail
- 820 sq ft warehouse with roller shutter access
- Entièrement aménagé comme Bureau standard
- Convient pour 9 à 28 personnes
- Modern office accommodation with meeting rooms
- Secure gated compound with generous parking
- Cour
| Espace | Surface | Durée | Loyer | Type de bien | Aménagement | Disponible |
| RDC – Bureau Offices, RDC – Workshop | 404 m² | Négociable | 119,85 € /m²/an 9,99 € /m²/mois 48 425 € /an 4 035 € /mois | Bureau | Construction achevée | Maintenant |
RDC – Bureau Offices, RDC – Workshop
Les espaces 2 de cet immeuble doivent être loués ensemble, pour un total de 404 m² (Surface contiguë):
| Surface |
|
RDC – Bureau Offices - 325 m²
RDC – Workshop - 79 m²
|
| Durée |
| Négociable |
| Loyer |
| 119,85 € /m²/an 9,99 € /m²/mois 48 425 € /an 4 035 € /mois |
| Type de bien |
| Bureau |
| Aménagement |
| Construction achevée |
| Disponible |
| Maintenant |
RDC – Bureau Offices, RDC – Workshop
| Surface |
RDC – Bureau Offices - 325 m²
RDC – Workshop - 79 m²
|
| Durée | Négociable |
| Loyer | 119,85 € /m²/an |
| Type de bien | Bureau |
| Aménagement | Construction achevée |
| Disponible | Maintenant |
The property provides a self-contained office and warehouse facility totalling 4,349 sq ft, arranged to offer a high proportion of well-specified office accommodation alongside practical warehouse space. Internally, the offices comprise a mix of open-plan areas, private offices and meeting rooms, supported by a welcoming reception area and fully fitted kitchen facilities
- Classe d’utilisation : E
- Entièrement aménagé comme Bureau standard
- Principalement open space
- Convient pour 9 à 28 personnes
- Stores automatiques
- Modern office accommodation with meeting rooms
- Fully fitted kitchen and reception area
- Secure gated compound with generous parking
- Toilettes incluses dans le bail
- Cour
- 820 sq ft warehouse with roller shutter access
Aperçu du bien
The property comprises a single storey industrial building of brick construction.
Informations sur l’immeuble
Occupants
- Étage
- Nom de l’occupant
- Secteur d’activité
- RDC
- Leeds CIL
- Santé et assistance sociale
Présenté par
Adair Paxton
Catelli House | 2 Arthur St
Hum, une erreur s’est produite lors de l’envoi de votre message. Veuillez réessayer.
Merci ! Votre message a été envoyé.



