Connectez-vous/S’inscrire
Votre e-mail a été envoyé.
Belmont Plaza I 19775 Belmont Executive Plz Bureau | 219–3 132 m² | 4 étoiles | À louer | Ashburn, VA 20147



Certaines informations ont été traduites automatiquement.
Informations principales
- Base de commodités exceptionnelle à Belmont Chase, à côté du Whole Foods Market et plus encore.
- Taux de stationnement en surface abondant : 3,5/1 000 pieds carrés.
- Accès facile via les routes 7 et 28, l'I-495 et la route à péage de Dulles, ainsi que par l'aéroport international de Dulles.
Tous les espaces disponibles(6)
Afficher les loyers en
- Espace
- Surface
- Durée
- Loyer
- Type de bien
- Aménagement
- Disponible
- Le loyer comprend les services publics, les services de l’immeuble et les frais immobiliers.
- Plan d’étage avec bureaux fermés
- Entièrement aménagé comme Bureau standard
- Convient pour 7 à 21 personnes
- Entièrement aménagé comme Bureau standard
- Convient pour 6 à 19 personnes
- Principalement open space
- Peut être associé à un ou plusieurs espaces supplémentaires pour obtenir jusqu’à 854 m² d’espace adjacent.
- Entièrement aménagé comme Bureau standard
- Convient pour 18 à 55 personnes
- Principalement open space
- Peut être associé à un ou plusieurs espaces supplémentaires pour obtenir jusqu’à 854 m² d’espace adjacent.
- Entièrement aménagé comme Bureau standard
- Convient pour 31 à 98 personnes
- Plan d’étage avec bureaux fermés
- Entièrement aménagé comme Bureau standard
- Convient pour 13 à 40 personnes
- Plan d’étage avec bureaux fermés
Offices along the window line with views of Ashburn.
- Le loyer comprend les services publics, les services de l’immeuble et les frais immobiliers.
- Plan d’étage avec bureaux fermés
- Espace en excellent état
- Entièrement aménagé comme Bureau standard
- Convient pour 12 à 39 personnes
| Espace | Surface | Durée | Loyer | Type de bien | Aménagement | Disponible |
| 3e étage, bureau 310 | 239 m² | Négociable | 270,83 € /m²/an 22,57 € /m²/mois 64 763 € /an 5 397 € /mois | Bureau | Construction achevée | Maintenant |
| 3e étage, bureau 330 | 219 m² | Négociable | Sur demande Sur demande Sur demande Sur demande | Bureau | Construction achevée | 01/08/2026 |
| 3e étage, bureau 350 | 635 m² | Négociable | Sur demande Sur demande Sur demande Sur demande | Bureau | Construction achevée | 01/08/2026 |
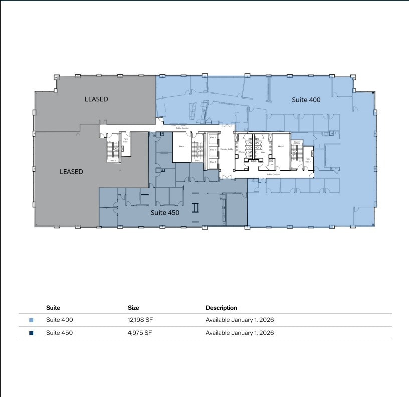
| 4e étage, bureau 400 | 1 133 m² | Négociable | Sur demande Sur demande Sur demande Sur demande | Bureau | Construction achevée | Maintenant |
| 4e étage, bureau 450 | 462 m² | Négociable | Sur demande Sur demande Sur demande Sur demande | Bureau | Construction achevée | Maintenant |
| 5e étage, bureau 525 B | 444 m² | Négociable | 270,83 € /m²/an 22,57 € /m²/mois 120 116 € /an 10 010 € /mois | Bureau | Construction achevée | Maintenant |
3e étage, bureau 310
| Surface |
| 239 m² |
| Durée |
| Négociable |
| Loyer |
| 270,83 € /m²/an 22,57 € /m²/mois 64 763 € /an 5 397 € /mois |
| Type de bien |
| Bureau |
| Aménagement |
| Construction achevée |
| Disponible |
| Maintenant |
3e étage, bureau 330
| Surface |
| 219 m² |
| Durée |
| Négociable |
| Loyer |
| Sur demande Sur demande Sur demande Sur demande |
| Type de bien |
| Bureau |
| Aménagement |
| Construction achevée |
| Disponible |
| 01/08/2026 |
3e étage, bureau 350
| Surface |
| 635 m² |
| Durée |
| Négociable |
| Loyer |
| Sur demande Sur demande Sur demande Sur demande |
| Type de bien |
| Bureau |
| Aménagement |
| Construction achevée |
| Disponible |
| 01/08/2026 |
4e étage, bureau 400
| Surface |
| 1 133 m² |
| Durée |
| Négociable |
| Loyer |
| Sur demande Sur demande Sur demande Sur demande |
| Type de bien |
| Bureau |
| Aménagement |
| Construction achevée |
| Disponible |
| Maintenant |
4e étage, bureau 450
| Surface |
| 462 m² |
| Durée |
| Négociable |
| Loyer |
| Sur demande Sur demande Sur demande Sur demande |
| Type de bien |
| Bureau |
| Aménagement |
| Construction achevée |
| Disponible |
| Maintenant |
5e étage, bureau 525 B
| Surface |
| 444 m² |
| Durée |
| Négociable |
| Loyer |
| 270,83 € /m²/an 22,57 € /m²/mois 120 116 € /an 10 010 € /mois |
| Type de bien |
| Bureau |
| Aménagement |
| Construction achevée |
| Disponible |
| Maintenant |
1 sur 1
Vidéos
Visite extérieure 3D Matterport
Visite 3D
Photos
Street view
Rue
Carte
3e étage, bureau 310
| Surface | 239 m² |
| Durée | Négociable |
| Loyer | 270,83 € /m²/an |
| Type de bien | Bureau |
| Aménagement | Construction achevée |
| Disponible | Maintenant |
- Le loyer comprend les services publics, les services de l’immeuble et les frais immobiliers.
- Entièrement aménagé comme Bureau standard
- Plan d’étage avec bureaux fermés
- Convient pour 7 à 21 personnes
1 sur 1
Vidéos
Visite extérieure 3D Matterport
Visite 3D
Photos
Street view
Rue
Carte
3e étage, bureau 330
| Surface | 219 m² |
| Durée | Négociable |
| Loyer | Sur demande |
| Type de bien | Bureau |
| Aménagement | Construction achevée |
| Disponible | 01/08/2026 |
- Entièrement aménagé comme Bureau standard
- Principalement open space
- Convient pour 6 à 19 personnes
- Peut être associé à un ou plusieurs espaces supplémentaires pour obtenir jusqu’à 854 m² d’espace adjacent.
1 sur 1
Vidéos
Visite extérieure 3D Matterport
Visite 3D
Photos
Street view
Rue
Carte
3e étage, bureau 350
| Surface | 635 m² |
| Durée | Négociable |
| Loyer | Sur demande |
| Type de bien | Bureau |
| Aménagement | Construction achevée |
| Disponible | 01/08/2026 |
- Entièrement aménagé comme Bureau standard
- Principalement open space
- Convient pour 18 à 55 personnes
- Peut être associé à un ou plusieurs espaces supplémentaires pour obtenir jusqu’à 854 m² d’espace adjacent.
1 sur 1
Vidéos
Visite extérieure 3D Matterport
Visite 3D
Photos
Street view
Rue
Carte
4e étage, bureau 400
| Surface | 1 133 m² |
| Durée | Négociable |
| Loyer | Sur demande |
| Type de bien | Bureau |
| Aménagement | Construction achevée |
| Disponible | Maintenant |
- Entièrement aménagé comme Bureau standard
- Plan d’étage avec bureaux fermés
- Convient pour 31 à 98 personnes
1 sur 1
Vidéos
Visite extérieure 3D Matterport
Visite 3D
Photos
Street view
Rue
Carte
4e étage, bureau 450
| Surface | 462 m² |
| Durée | Négociable |
| Loyer | Sur demande |
| Type de bien | Bureau |
| Aménagement | Construction achevée |
| Disponible | Maintenant |
- Entièrement aménagé comme Bureau standard
- Plan d’étage avec bureaux fermés
- Convient pour 13 à 40 personnes
1 sur 1
Vidéos
Visite extérieure 3D Matterport
Visite 3D
Photos
Street view
Rue
Carte
5e étage, bureau 525 B
| Surface | 444 m² |
| Durée | Négociable |
| Loyer | 270,83 € /m²/an |
| Type de bien | Bureau |
| Aménagement | Construction achevée |
| Disponible | Maintenant |
Offices along the window line with views of Ashburn.
- Le loyer comprend les services publics, les services de l’immeuble et les frais immobiliers.
- Entièrement aménagé comme Bureau standard
- Plan d’étage avec bureaux fermés
- Convient pour 12 à 39 personnes
- Espace en excellent état
Aperçu du bien
Bâtiment de classe A avec accès facile à Harry Byrd Hwy. Non loin de l'hôpital Inova Loudoun.
- Installations de conférences
- Signalisation
- Hauts plafonds
Informations sur l’immeuble
Type d’immeuble
Bureau
Année de construction
2006
Classement LoopNet
4 Étoiles
Hauteur du bâtiment
5 étages
Surface de l’immeuble
11 581 m²
Classe d’immeuble
A
Surface type par étage
2 223 m²
Stationnement
478 places de stationnement extérieur
Stationnement Couvert
1 1
Moderately walkable
60/100
Very drivable
80/100
Limited public transit
30/100
Moderately bikeable
60/100
1 sur 8
Vidéos
Visite extérieure 3D Matterport
Visite 3D
Photos
Street view
Rue
Carte
1 sur 1
Présenté par
Belmont Plaza I | 19775 Belmont Executive Plz
Vous êtes déjà membre ? Connectez-vous
Hum, une erreur s’est produite lors de l’envoi de votre message. Veuillez réessayer.
Merci ! Votre message a été envoyé.







