Votre e-mail a été envoyé.
Certaines informations ont été traduites automatiquement.
Informations principales sur le parc
- Situated at 19707–19845 Cabot Blvd, Hayward, CA 94544, with easy access to major highways and business amenities
- Ability to expand within business park
- All units feature new carpet, LVT flooring, fresh paint, and LED lighting
- Call brokers for more information
Faits sur le parc
| Espace total disponible | 1 074 m² | Rues transversales | W Winton Ave |
| Type de parc | Parc industriel |
| Espace total disponible | 1 074 m² |
| Type de parc | Parc industriel |
| Rues transversales | W Winton Ave |
Tous les espaces disponibles(3)
Afficher les loyers en
- Espace
- Surface
- Durée
- Loyer
- Type de bien
- Aménagement
- Disponible
Suite 19723 spans 3,493 square feet with 973 square feet of office space. It includes a private office and an open area, providing a functional layout for light industrial or distribution use. The suite is equipped with one grade-level door and has been updated with modern finishes. Like the others, it features new flooring, paint, and lighting. This unit is also available now for immediate occupancy.
- Comprend 90 m² d’espace de bureau dédié
- Toilettes privées
- Tenants have the ability to expand in the future
- 1 accès plain-pied
- 200 Amps of Power (To be verified by Tenant)
| Espace | Surface | Durée | Loyer | Type de bien | Aménagement | Disponible |
| 1er étage – 19723 | 325 m² | Négociable | Sur demande Sur demande Sur demande Sur demande | Industriel/Logistique | Construction partielle | 30 jours |
19707-19743 Cabot Blvd - 1er étage – 19723
- Espace
- Surface
- Durée
- Loyer
- Type de bien
- Aménagement
- Disponible
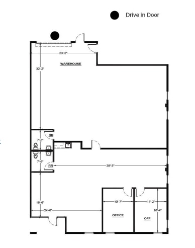
This unit features approximately 4,590 square feet, comprised of 3,348 square feet of warehouse space and 1,095 square feet of office area. It offers one drive-in door and is contiguous with Suite 19813, making it possible to combine both suites for a larger footprint. The space boasts a 14-foot clear height, 200-amp electrical service (to be verified by the tenant), and the opportunity to expand within the business park, providing a unique solution for growing companies.
- Comprend 102 m² d’espace de bureau dédié
- Toilettes privées
- Tenants have the ability to expand in the future
- 1 accès plain-pied
- 200 Amps of Power (To be verified by Tenant)
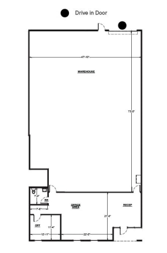
Suite 19833 offers 3,482 square feet of space, including 420 square feet of office area. It features a reception area and one grade-level door, making it ideal for businesses that require a welcoming front office and functional warehouse space. The suite will be available on February 1, 2026. It has been updated with new finishes and is part of a professionally managed industrial park. This unit is a strong fit for companies seeking a compact yet efficient layout.
- Comprend 39 m² d’espace de bureau dédié
- Hauts plafonds
- Tenants have the ability to expand in the future
- 1 accès plain-pied
- 200 Amps of Power (To be verified by Tenant)
| Espace | Surface | Durée | Loyer | Type de bien | Aménagement | Disponible |
| 1er étage – 19821 | 426 m² | Négociable | Sur demande Sur demande Sur demande Sur demande | Local d’activités | Construction partielle | 30 jours |
| 1er étage – 19833 | 323 m² | Négociable | Sur demande Sur demande Sur demande Sur demande | Local d’activités | Construction partielle | 30 jours |
19809-19845 Cabot Blvd - 1er étage – 19821
19809-19845 Cabot Blvd - 1er étage – 19833
19707-19743 Cabot Blvd - 1er étage – 19723
| Surface | 325 m² |
| Durée | Négociable |
| Loyer | Sur demande |
| Type de bien | Industriel/Logistique |
| Aménagement | Construction partielle |
| Disponible | 30 jours |
Suite 19723 spans 3,493 square feet with 973 square feet of office space. It includes a private office and an open area, providing a functional layout for light industrial or distribution use. The suite is equipped with one grade-level door and has been updated with modern finishes. Like the others, it features new flooring, paint, and lighting. This unit is also available now for immediate occupancy.
- Comprend 90 m² d’espace de bureau dédié
- 1 accès plain-pied
- Toilettes privées
- 200 Amps of Power (To be verified by Tenant)
- Tenants have the ability to expand in the future
19809-19845 Cabot Blvd - 1er étage – 19821
| Surface | 426 m² |
| Durée | Négociable |
| Loyer | Sur demande |
| Type de bien | Local d’activités |
| Aménagement | Construction partielle |
| Disponible | 30 jours |
This unit features approximately 4,590 square feet, comprised of 3,348 square feet of warehouse space and 1,095 square feet of office area. It offers one drive-in door and is contiguous with Suite 19813, making it possible to combine both suites for a larger footprint. The space boasts a 14-foot clear height, 200-amp electrical service (to be verified by the tenant), and the opportunity to expand within the business park, providing a unique solution for growing companies.
- Comprend 102 m² d’espace de bureau dédié
- 1 accès plain-pied
- Toilettes privées
- 200 Amps of Power (To be verified by Tenant)
- Tenants have the ability to expand in the future
19809-19845 Cabot Blvd - 1er étage – 19833
| Surface | 323 m² |
| Durée | Négociable |
| Loyer | Sur demande |
| Type de bien | Local d’activités |
| Aménagement | Construction partielle |
| Disponible | 30 jours |
Suite 19833 offers 3,482 square feet of space, including 420 square feet of office area. It features a reception area and one grade-level door, making it ideal for businesses that require a welcoming front office and functional warehouse space. The suite will be available on February 1, 2026. It has been updated with new finishes and is part of a professionally managed industrial park. This unit is a strong fit for companies seeking a compact yet efficient layout.
- Comprend 39 m² d’espace de bureau dédié
- 1 accès plain-pied
- Hauts plafonds
- 200 Amps of Power (To be verified by Tenant)
- Tenants have the ability to expand in the future
Sélectionner des occupants à ce bien
- Étage
- Nom de l’occupant
- Secteur d’activité
- 1er
- Buena Vista Construction
- -
- 1er
- California Emergency Service
- Administration publique
- 1er
- Fred Turner Co
- Grossiste
- 1er
- Golden Gate Food Service LLC
- Enseigne
- 1er
- J H Bryant Jr Inc
- Construction
- 1er
- Legacy Transmissions
- Services
- 1er
- SGS North America, Inc.
- Services professionnels, scientifiques et techniques
- 1er
- Stommel
- -
- Inconnu
- Tire Distributor Xperts
- Grossiste
Vue d’ensemble du parc
North Cabot Industrial Park is a newly improved, light industrial complex located at 19707–19845 Cabot Blvd, Hayward, CA 94544. The park offers move-in ready suites with modern finishes, flexible warehouse and office configurations, and efficient loading options. Tenants benefit from new landscaping, upgraded safety features, and the ability to expand within the park. The property is professionally managed by Lee & Associates Oakland Commercial Real Estate, Inc. Call listing brokers for more information about pricing today!
Présenté par
NORTH CABOT INDUSTRIAL PARK | Hayward, CA 94545
Hum, une erreur s’est produite lors de l’envoi de votre message. Veuillez réessayer.
Merci ! Votre message a été envoyé.










