Votre e-mail a été envoyé.
Certaines informations ont été traduites automatiquement.
Informations principales sur le parc
- Prime industrial location near Aventura, North Miami Beach, and Downtown Miami, with seamless access to Interstate 95 and Florida’s Turnpike.
- Ideal for e-commerce, contractor storage, specialty wholesalers, showrooms, and service-based users seeking functional, attractive workspaces.
- Surrounded by thriving residential neighborhoods and local amenities, providing a built-in customer base and strong regional synergy.
- Efficient warehouse units with a mix of dock-high and street-level access points are accessible from Ives Diary Road and NE 10th Avenue.
- Renovated three-story office building offers flexible modern suites in various layouts, ranging from 500 to 4,000+ SF, with assigned parking.
- Connectivity is unmatched, 15 miles from Downtown Miami and minutes from Port Everglades and Fort Lauderdale–Hollywood International Airport.
Faits sur le parc
| Espace total disponible | 3 093 m² | Max. Contigu | 1 480 m² |
| Min. Divisible | 171 m² | Type de parc | Parc industriel |
| Espace total disponible | 3 093 m² |
| Min. Divisible | 171 m² |
| Max. Contigu | 1 480 m² |
| Type de parc | Parc industriel |
Tous les espaces disponibles(7)
Afficher les loyers en
- Espace
- Surface
- Durée
- Loyer
- Type de bien
- Aménagement
- Disponible
Great Warehouse Unit within a fully secured park. 16 clear and oversize street level door.
- Il est possible que le loyer annoncé ne comprenne pas certains services publics, services d’immeuble et frais immobiliers.
- 1 accès plain-pied
- Comprend 30 m² d’espace de bureau dédié
- Espace en excellent état
Fully air-conditioned warehouse space. Ready for immediate occupancy within a secure business park.
- Le loyer ne comprend pas les services publics, les frais immobiliers ou les services de l’immeuble.
- Espace en excellent état
- 1 accès plain-pied
| Espace | Surface | Durée | Loyer | Type de bien | Aménagement | Disponible |
| 1er étage – 3C | 300 m² | Négociable | 230,31 € /m²/an 19,19 € /m²/mois 69 005 € /an 5 750 € /mois | Industriel/Logistique | Construction achevée | Maintenant |
| 1er étage – B | 313 – 613 m² | 1-10 Ans | 175,04 € /m²/an 14,59 € /m²/mois 107 212 € /an 8 934 € /mois | Industriel/Logistique | Construction achevée | Maintenant |
19591 NE 10th Ave - 1er étage – 3C
19591 NE 10th Ave - 1er étage – B
- Espace
- Surface
- Durée
- Loyer
- Type de bien
- Aménagement
- Disponible
Both Dock High and Street Level loading doors. Rare +/-20' clear warehouse in North Miami, new office renovations, within a fully secure park.
- Le loyer ne comprend pas les services publics, les frais immobiliers ou les services de l’immeuble.
- 2 accès plain-pied
- Peut être associé à un ou plusieurs espaces supplémentaires pour obtenir jusqu’à 1 480 m² d’espace adjacent.
- Comprend 134 m² d’espace de bureau dédié
- Espace en excellent état
- 1 quai de chargement
- Il est possible que le loyer annoncé ne comprenne pas certains services publics, services d’immeuble et frais immobiliers.
- 1 accès plain-pied
- Peut être associé à un ou plusieurs espaces supplémentaires pour obtenir jusqu’à 1 480 m² d’espace adjacent.
- Comprend 139 m² d’espace de bureau dédié
- Espace en excellent état
- 1 quai de chargement
| Espace | Surface | Durée | Loyer | Type de bien | Aménagement | Disponible |
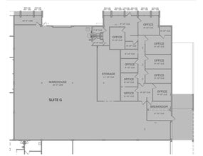
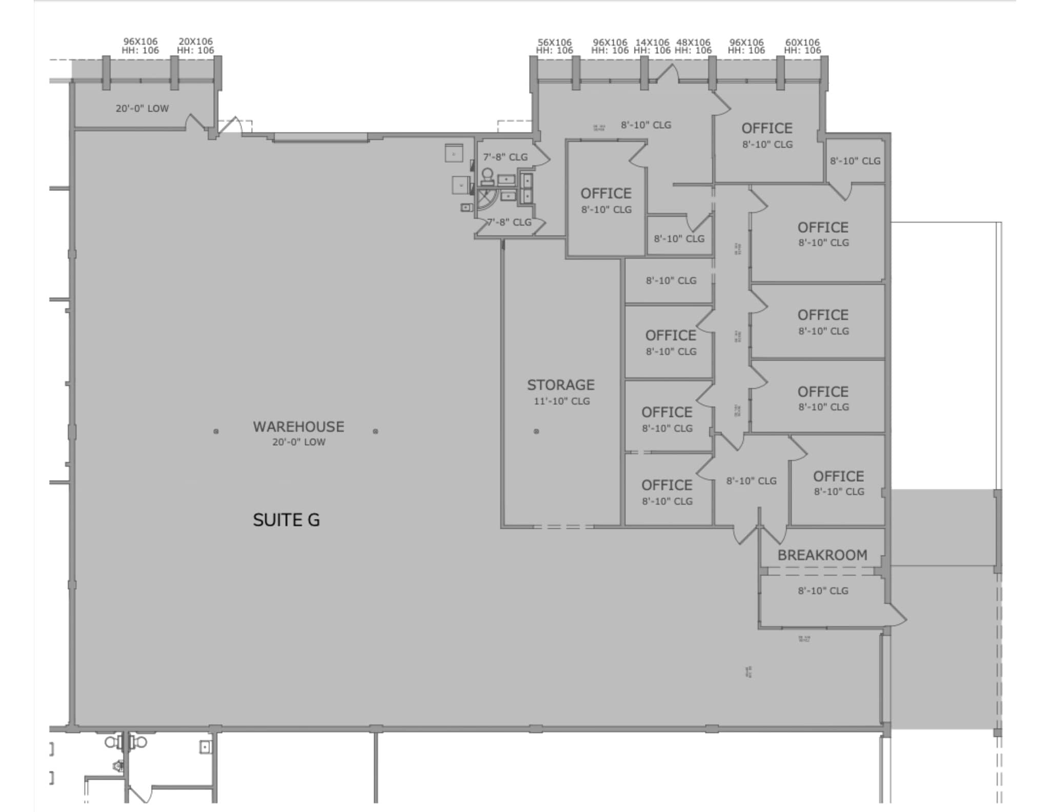
| 1er étage – G | 897 m² | 3 Ans | 165,83 € /m²/an 13,82 € /m²/mois 148 788 € /an 12 399 € /mois | Industriel/Logistique | Construction achevée | Maintenant |
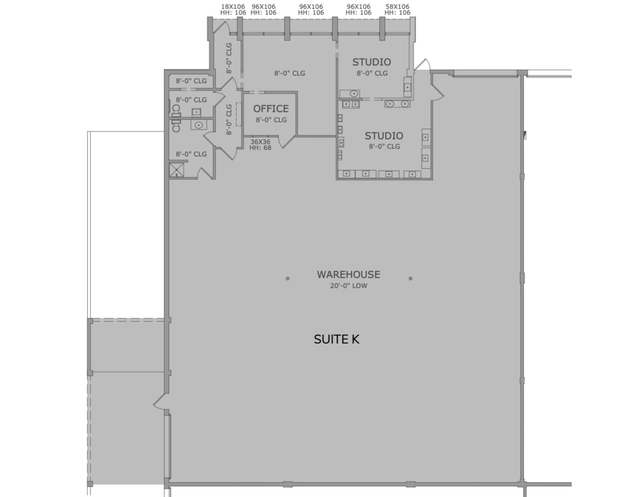
| 1er étage – K | 582 m² | Négociable | 230,31 € /m²/an 19,19 € /m²/mois 134 115 € /an 11 176 € /mois | Industriel/Logistique | Construction achevée | Maintenant |
19597 NE 10th Ave - 1er étage – G
19597 NE 10th Ave - 1er étage – K
- Espace
- Surface
- Durée
- Loyer
- Type de bien
- Aménagement
- Disponible
- Il est possible que le loyer annoncé ne comprenne pas certains services publics, services d’immeuble et frais immobiliers.
- 1 accès plain-pied
| Espace | Surface | Durée | Loyer | Type de bien | Aménagement | Disponible |
| 1er étage – H | 297 m² | 3 Ans | 230,31 € /m²/an 19,19 € /m²/mois 68 470 € /an 5 706 € /mois | Industriel/Logistique | Construction achevée | Maintenant |
19599 NE 10th Ave - 1er étage – H
- Espace
- Surface
- Durée
- Loyer
- Type de bien
- Aménagement
- Disponible
Interior bathroom, kitchenette, large conference rooms, and offices.
- Entièrement aménagé comme Bureau standard
- Convient pour 5 à 15 personnes
- Principalement open space
Office space totaling 2,510 square feet. Within Aventura Industrial Park, these 3rd-floor spaces offer ample parking, private restrooms, reception, conference rooms, and private offices. In the process of a full remodel, space is available immediately for occupancy.
- Il est possible que le loyer annoncé ne comprenne pas certains services publics, services d’immeuble et frais immobiliers.
- Principalement open space
- Salles de conférence
- Climatisation centrale
- Balcon
- Espace d’angle
- Entièrement aménagé comme Bureau standard
- Convient pour 7 à 21 personnes
- Espace en excellent état
- Aire de réception
- Toilettes privées
- Plafonds suspendus
| Espace | Surface | Durée | Loyer | Type de bien | Aménagement | Disponible |
| 2e étage, bureau 200 | 171 m² | 1-10 Ans | Sur demande Sur demande Sur demande Sur demande | Bureau | Construction achevée | Maintenant |
| 3e étage, bureau 300 | 233 m² | 1-10 Ans | 244,13 € /m²/an 20,34 € /m²/mois 56 928 € /an 4 744 € /mois | Bureau | Construction achevée | Maintenant |
19501 NE 10th Ave - 2e étage – Bureau 200
19501 NE 10th Ave - 3e étage – Bureau 300
19591 NE 10th Ave - 1er étage – 3C
| Surface | 300 m² |
| Durée | Négociable |
| Loyer | 230,31 € /m²/an |
| Type de bien | Industriel/Logistique |
| Aménagement | Construction achevée |
| Disponible | Maintenant |
Great Warehouse Unit within a fully secured park. 16 clear and oversize street level door.
- Il est possible que le loyer annoncé ne comprenne pas certains services publics, services d’immeuble et frais immobiliers.
- Comprend 30 m² d’espace de bureau dédié
- 1 accès plain-pied
- Espace en excellent état
19591 NE 10th Ave - 1er étage – B
| Surface | 313 – 613 m² |
| Durée | 1-10 Ans |
| Loyer | 175,04 € /m²/an |
| Type de bien | Industriel/Logistique |
| Aménagement | Construction achevée |
| Disponible | Maintenant |
Fully air-conditioned warehouse space. Ready for immediate occupancy within a secure business park.
- Le loyer ne comprend pas les services publics, les frais immobiliers ou les services de l’immeuble.
- 1 accès plain-pied
- Espace en excellent état
19597 NE 10th Ave - 1er étage – G
| Surface | 897 m² |
| Durée | 3 Ans |
| Loyer | 165,83 € /m²/an |
| Type de bien | Industriel/Logistique |
| Aménagement | Construction achevée |
| Disponible | Maintenant |
Both Dock High and Street Level loading doors. Rare +/-20' clear warehouse in North Miami, new office renovations, within a fully secure park.
- Le loyer ne comprend pas les services publics, les frais immobiliers ou les services de l’immeuble.
- Comprend 134 m² d’espace de bureau dédié
- 2 accès plain-pied
- Espace en excellent état
- Peut être associé à un ou plusieurs espaces supplémentaires pour obtenir jusqu’à 1 480 m² d’espace adjacent.
- 1 quai de chargement
19597 NE 10th Ave - 1er étage – K
| Surface | 582 m² |
| Durée | Négociable |
| Loyer | 230,31 € /m²/an |
| Type de bien | Industriel/Logistique |
| Aménagement | Construction achevée |
| Disponible | Maintenant |
- Il est possible que le loyer annoncé ne comprenne pas certains services publics, services d’immeuble et frais immobiliers.
- Comprend 139 m² d’espace de bureau dédié
- 1 accès plain-pied
- Espace en excellent état
- Peut être associé à un ou plusieurs espaces supplémentaires pour obtenir jusqu’à 1 480 m² d’espace adjacent.
- 1 quai de chargement
19599 NE 10th Ave - 1er étage – H
| Surface | 297 m² |
| Durée | 3 Ans |
| Loyer | 230,31 € /m²/an |
| Type de bien | Industriel/Logistique |
| Aménagement | Construction achevée |
| Disponible | Maintenant |
- Il est possible que le loyer annoncé ne comprenne pas certains services publics, services d’immeuble et frais immobiliers.
- 1 accès plain-pied
19501 NE 10th Ave - 2e étage – Bureau 200
| Surface | 171 m² |
| Durée | 1-10 Ans |
| Loyer | Sur demande |
| Type de bien | Bureau |
| Aménagement | Construction achevée |
| Disponible | Maintenant |
Interior bathroom, kitchenette, large conference rooms, and offices.
- Entièrement aménagé comme Bureau standard
- Principalement open space
- Convient pour 5 à 15 personnes
19501 NE 10th Ave - 3e étage – Bureau 300
| Surface | 233 m² |
| Durée | 1-10 Ans |
| Loyer | 244,13 € /m²/an |
| Type de bien | Bureau |
| Aménagement | Construction achevée |
| Disponible | Maintenant |
Office space totaling 2,510 square feet. Within Aventura Industrial Park, these 3rd-floor spaces offer ample parking, private restrooms, reception, conference rooms, and private offices. In the process of a full remodel, space is available immediately for occupancy.
- Il est possible que le loyer annoncé ne comprenne pas certains services publics, services d’immeuble et frais immobiliers.
- Entièrement aménagé comme Bureau standard
- Principalement open space
- Convient pour 7 à 21 personnes
- Salles de conférence
- Espace en excellent état
- Climatisation centrale
- Aire de réception
- Balcon
- Toilettes privées
- Espace d’angle
- Plafonds suspendus
Visite 3D Matterport
Vue d’ensemble du parc
Aventura Industrial Park est un centre d'affaires polyvalent composé de plusieurs bâtiments, situé au 19951–19599 Northeast 10th Avenue. Offrant des espaces de travail dynamiques pour répondre aux besoins des entreprises en pleine croissance, la propriété se trouve à proximité de certains des principaux quartiers commerciaux de Miami, notamment Aventura, Miami Gardens et North Miami Beach. Les bâtiments dédiés aux entrepôts à petites baies proposent des unités flexibles allant de 50 à plus de 2 000 mètres carrés. Beaucoup incluent des espaces de bureau ou de showroom intégrés, idéaux pour les opérations de commerce électronique, le stockage pour entrepreneurs, les grossistes spécialisés et les entreprises de services. Les unités sont équipées d'une alimentation électrique en triphasé, et les locataires bénéficient d'options de chargement à quai ou au niveau de la rue pour une efficacité logistique maximale. De plus, la propriété dispose d'un immeuble de bureaux récemment rénové de trois étages à l'entrée du parc, offrant des espaces professionnels allant de 50 à plus de 400 mètres carrés. Avec plusieurs options d'agencement, des aménagements intérieurs modernes et des places de stationnement attribuées, ces bureaux sont parfaits pour les entreprises recherchant un environnement fonctionnel et soigné dans un emplacement très visible. Aventura Industrial Park propose un stationnement abondant sur place et est entouré de grandes communautés résidentielles, créant ainsi une clientèle locale intégrée. Avec des commodités à proximité, notamment des commerces, des restaurants et des services du quotidien, les locataires profitent d'une grande praticité tant sur leur lieu de travail qu'à l'extérieur. Ce campus bien connecté offre un accès direct à l'Interstate 95 et au Florida’s Turnpike, à seulement 24 kilomètres du centre-ville de Miami et à quelques minutes de Port Everglades et de l'aéroport international de Fort Lauderdale-Hollywood (FLL). Que ce soit pour lancer, relocaliser ou développer une entreprise, Aventura Industrial Park offre la flexibilité et l'accessibilité nécessaires pour prospérer.
Brochure du parc
À propos du quartier Miami Gardens
Bien desservie par le Florida Turnpike et l'Interstate 95, Miami Gardens est une zone industrielle dynamique du sud de la Floride. Presque tous les comtés de Miami-Dade et de Broward se trouvent à moins d'une heure de route de Miami Gardens, ce qui en fait une zone très prisée par les entreprises de logistique. Parmi les grands locataires industriels figurent Amazon, UPS et GLB Trucking.
Comme la zone est centrale dans la région et qu'elle dispose de terrains aménageables, la construction de nouveaux espaces industriels y a été importante au cours de la dernière décennie, ce qui a permis de maintenir la zone à un niveau de prix abordable. Miami Gardens offre une réduction significative par rapport à son voisin du nord, Southeast Broward County, l'un des sous-marchés industriels les plus chers de la région.
Données démographiques
Accessibilité régionale
À proximité
Local commercial |
||
|---|---|---|
| Bank of America | Banque | 16 min. à pied |
Hôtels |
|
|---|---|
| aloft Hotel |
207 chambres
8 min en voiture
|
| Hilton |
208 chambres
10 min en voiture
|
| JW Marriott |
685 chambres
10 min en voiture
|
| SpringHill Suites |
168 chambres
14 min en voiture
|
| Le Meridien |
245 chambres
15 min en voiture
|
Équipe de location
Sebastian Juncadella, CEO
Ces dernières années, Sebastian a représenté et continue de représenter de nombreux propriétaires institutionnels tels que USAA, ARA, Seagis, Terreno, Lincoln Property, PGIM, TA Realty, Everwest, Longpoint et Foundry, entre autres. Voici quelques-unes de ses transactions les plus remarquables de plus de 100 000 pieds carrés réalisées entre 2020 et 2022 :
En ce qui concerne le nouveau développement industriel, Sebastian a participé à plus de 3 millions de pieds carrés de produits spéculatifs dans le sud de la Floride. Il a également consacré ses efforts au crédit-bail de deuxième génération, ayant réalisé plus de 115 transactions de catégorie B et C depuis 2017. Du côté des bureaux, Sebastian a représenté des locataires de renom tels que Facebook pour leur siège social en Amérique latine et des propriétaires de bureaux tels que TA Realty.
Entre 2013 et 2016, Sebastian a participé à plusieurs transactions importantes, notamment la représentation par le vendeur de la vente de 44 acres à Hialeah pour 28 millions de dollars et de la vente de 54 millions de dollars de deux acres dans le quartier Edgewater de Miami. Sebastian a également participé à l'accord qui a abouti au premier bail d'Amazon.com à Miami, pour 336 000 pieds carrés pour le compte de KTR Capital Partners. Il a également travaillé sur deux des projets de développement réussis de Prudential, Transal Logistics à Doral et Centergate à Hialeah, totalisant près d'un million de pieds carrés d'espace industriel ultramoderne.
En 2022, Sebastian a obtenu la très convoitée désignation industrielle SIOR décernée par la Society of Industrial and Office Realtors® aux meilleurs producteurs mondiaux dans le domaine de l'immobilier industriel parmi les courtiers de 29 pays. Sebastian a été le président 2021 de la CIASF (Association industrielle commerciale du sud de la Floride) fondée en 1980, étant le plus jeune dirigeant de l'histoire de l'organisation. En tant que directeur des adhésions en 2015-2016, Sebastian a contribué à doubler le nombre de membres de la CIASF. Il siège actuellement au conseil d'administration de l'association.
Sebastian est diplômé avec distinction du Boston College avec double spécialisation en finance et en philosophie, après avoir terminé ses études de commerce international à l'Universitat Pompei Fabra de Barcelone, en Espagne. Sebastian est bénévole et soutient Habitat for Humanity of Greater Miami, unissant ses efforts pour fournir des logements abordables aux chefs de famille méritants de notre communauté locale. Sebastian est membre de l'Association des anciens élèves jésuites préparatoires de Belen, promotion 2008.
Parlant couramment l'anglais et l'espagnol, Sebastian est un pêcheur passionné et membre de la Proficient Fishing Team et du Coral Reef Yacht Club à Coconut Grove, où il vit avec sa femme.
Richard Sanz, Sales Associate/Advisor
À propos du propriétaire
Autres biens dans le portefeuille EAST CAPITAL PARTNERS
Présenté par
Aventura Industrial Park | Miami, FL 33179
Hum, une erreur s’est produite lors de l’envoi de votre message. Veuillez réessayer.
Merci ! Votre message a été envoyé.
















