Votre e-mail a été envoyé.
2.07 to 75.24 acres available. 4 Parcels! 194 E Harris Rd Lot | Terrain industriel | 30,45 ha | À vendre | 2 502 323 € | Imperial, CA 92251



Certaines informations ont été traduites automatiquement.
Informations principales sur l'investissement
- Located in the Mesquite Lake Specific Plan Area
- Close to major transportation arteries
- Close to Spreckels Sugar
Informations sur l’immeuble
1 Lot disponible
Lot
| Prix | 2 502 323 € | Surface du lot | 30,45 ha |
| Prix par ha | 82 182,01 € |
| Prix | 2 502 323 € |
| Prix par ha | 82 182,01 € |
| Surface du lot | 30,45 ha |
Description
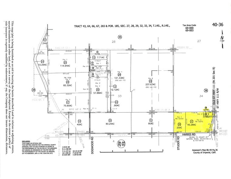
This 75.24 acre land listing is located in the Mesquite Lake Specific Plan Use area. There are four contiguous parcels that comprise this land offering. Parcel APN#040360036 consists of 25 gross acres, and is zoned Mesquite Lake Heavy Industrial (MLI3). The remaining three parcels, APN#040360037,038,039 consist of 50.24 gross acres, and are zoned Mesquite Lake Medium Industrial (MLI2). The land is strategically located next to major transportation arteries, those being Hwy 111, Hwy 86, Keystone Rd, Harris Rd. and Dogwood Rd. The Union Pacific Railroad has service approximately one mile to the west of the subject property. APN#040360036, has a CUP and a five year Sold Waste Permit, and facility renewal permit. There is a farming tenant with a four year lease on the subject property, but the owners have negotiated a buyout provision with the tenant in the event that a sale of the property can be negotiated. Directions : The property is located at the NW corner of Old Hwy 111 and Harris Rd. in rural Imperial, CA
Taxes foncières
| N° de parcelle | Évaluation des aménagements | 0 € | |
| Évaluation du terrain | 360 032 € | Évaluation totale | 360 032 € |
Taxes foncières
Présenté par
2.07 to 75.24 acres available. 4 Parcels! | 194 E Harris Rd
Hum, une erreur s’est produite lors de l’envoi de votre message. Veuillez réessayer.
Merci ! Votre message a été envoyé.

