Connectez-vous/S’inscrire
Votre e-mail a été envoyé.
1938 & 1942 Phillips Way 1938 Phillips Way Lot | Terrain commercial | 0,05 ha | À vendre | 506 856 € | Los Angeles, CA 90042



Certaines informations ont été traduites automatiquement.
INFORMATIONS PRINCIPALES SUR L'INVESTISSEMENT
- Two Side-by-Side Hillside Lots – Ideal for building two custom homes or a private compound
- Strong Development Potential – Perfect for builders, investors, or end-users
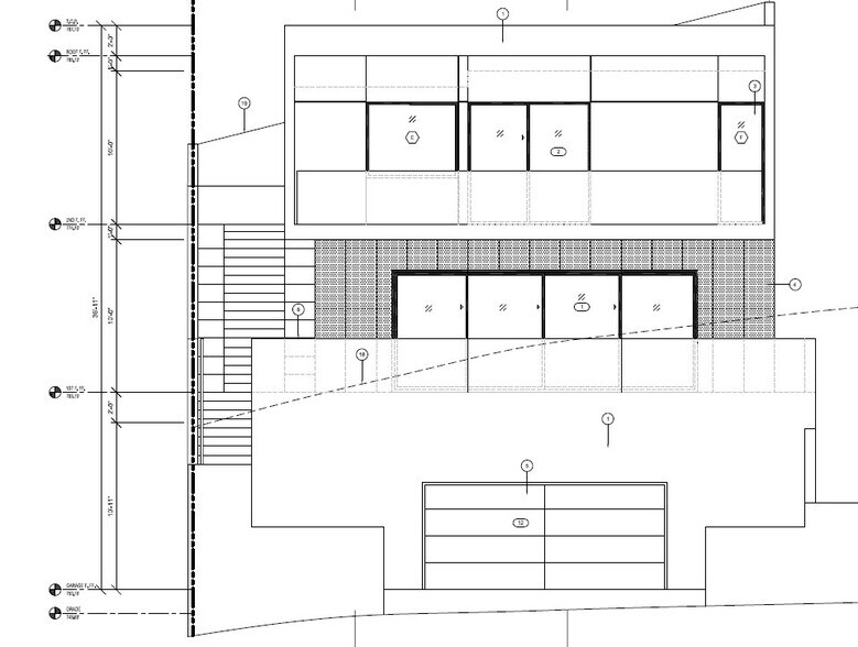
- Conceptual Plans Included (Not yet submitted):
RÉSUMÉ ANALYTIQUE
Scenic Hillside Development Opportunity – 1938 & 1942 Phillips Way, Highland Park
Seller may carry financing for up to 50% of the purchase price, subject to Buyer’s creditworthiness and Seller’s approval.
A prime opportunity for a developer or owner-user to build two custom homes in one of Northeast LA’s most picturesque hillside communities. Located in the desirable Highland Park area near Eagle Rock, 1938 and 1942 Phillips Way offer panoramic views stretching from Downtown Los Angeles to Palos Verdes—delivering a rare blend of serenity, privacy, and proximity to the city.
The seller has conceptual drawings available for each parcel. 1938 Phillips Way is designed as a 3-bedroom, 3.5-bathroom home with a study room, attached 2-car garage, and approximately 1,800 square feet of living space. 1942 Phillips Way is envisioned as a 2-bedroom, 2.5-bathroom residence with an attached 2-car garage and approximately 1,280 square feet. Please note that these plans have not been submitted to or approved by the City of Los Angeles, allowing flexibility for customization or redesign.
Whether you’re looking to build a private hillside compound or two striking single-family homes, this dual-lot offering provides an exceptional canvas with scale, views, and development potential in one of LA’s most sought-after neighborhoods.y.
Seller may carry financing for up to 50% of the purchase price, subject to Buyer’s creditworthiness and Seller’s approval.
A prime opportunity for a developer or owner-user to build two custom homes in one of Northeast LA’s most picturesque hillside communities. Located in the desirable Highland Park area near Eagle Rock, 1938 and 1942 Phillips Way offer panoramic views stretching from Downtown Los Angeles to Palos Verdes—delivering a rare blend of serenity, privacy, and proximity to the city.
The seller has conceptual drawings available for each parcel. 1938 Phillips Way is designed as a 3-bedroom, 3.5-bathroom home with a study room, attached 2-car garage, and approximately 1,800 square feet of living space. 1942 Phillips Way is envisioned as a 2-bedroom, 2.5-bathroom residence with an attached 2-car garage and approximately 1,280 square feet. Please note that these plans have not been submitted to or approved by the City of Los Angeles, allowing flexibility for customization or redesign.
Whether you’re looking to build a private hillside compound or two striking single-family homes, this dual-lot offering provides an exceptional canvas with scale, views, and development potential in one of LA’s most sought-after neighborhoods.y.
DATA ROOM Cliquez ici pour accéder à
INFORMATIONS SUR L’IMMEUBLE
| Prix | 506 856 € | Type de bien | Terrain |
| Type de vente | Investissement ou propriétaire occupant | Sous-type de bien | Terrain commercial |
| Nb de lots | 1 | Surface totale du lot | 0,05 ha |
| Zonage | LARE11 - Residential Estate | ||
| Prix | 506 856 € |
| Type de vente | Investissement ou propriétaire occupant |
| Nb de lots | 1 |
| Type de bien | Terrain |
| Sous-type de bien | Terrain commercial |
| Surface totale du lot | 0,05 ha |
| Zonage | LARE11 - Residential Estate |
1 LOT DISPONIBLE
Lot 8
| Prix | 506 856 € | Surface du lot | 0,05 ha |
| Prix par ha | 9 754 579,02 € |
| Prix | 506 856 € |
| Prix par ha | 9 754 579,02 € |
| Surface du lot | 0,05 ha |
Scenic Hillside Development Opportunity – 1938 & 1942 Phillips Way, Highland Park A prime opportunity for a developer or owner-user to build two custom homes in the desirable Highland Park area near Eagle Rock Seller may carry financing for up to 50%
1 1
TAXES FONCIÈRES
| Numéro de parcelle | 5479-006-002 | Évaluation des aménagements | 0 € |
| Évaluation du terrain | 88 271 € | Évaluation totale | 88 271 € |
TAXES FONCIÈRES
Numéro de parcelle
5479-006-002
Évaluation du terrain
88 271 €
Évaluation des aménagements
0 €
Évaluation totale
88 271 €
1 sur 22
VIDÉOS
VISITE EXTÉRIEURE 3D MATTERPORT
VISITE 3D
PHOTOS
STREET VIEW
RUE
CARTE
1 sur 1
Présenté par
1938 & 1942 Phillips Way | 1938 Phillips Way
Vous êtes déjà membre ? Connectez-vous
Hum, une erreur s’est produite lors de l’envoi de votre message. Veuillez réessayer.
Merci ! Votre message a été envoyé.
