Votre e-mail a été envoyé.
Certaines informations ont été traduites automatiquement.
INFORMATIONS PRINCIPALES
- Suites de bureaux et de bureaux/entrepôts disponibles
- Finitions nouvelles et modernes
- Desservi par BNSF Railroad - Quatre (4) portes de chemin de fer
- Espace prêt à emménager allant de 1 à 10 000 pieds carrés
- Gicleurs, huit (8) portes hautes de quai et deux (2) portes au niveau du sol
- Clôturé et sécurisé, stationnement pour roulottes disponible
CARACTÉRISTIQUES
TOUS LES ESPACES DISPONIBLES(2)
Afficher les loyers en
- ESPACE
- SURFACE
- DURÉE
- LOYER
- TYPE DE BIEN
- ÉTAT
- DISPONIBLE
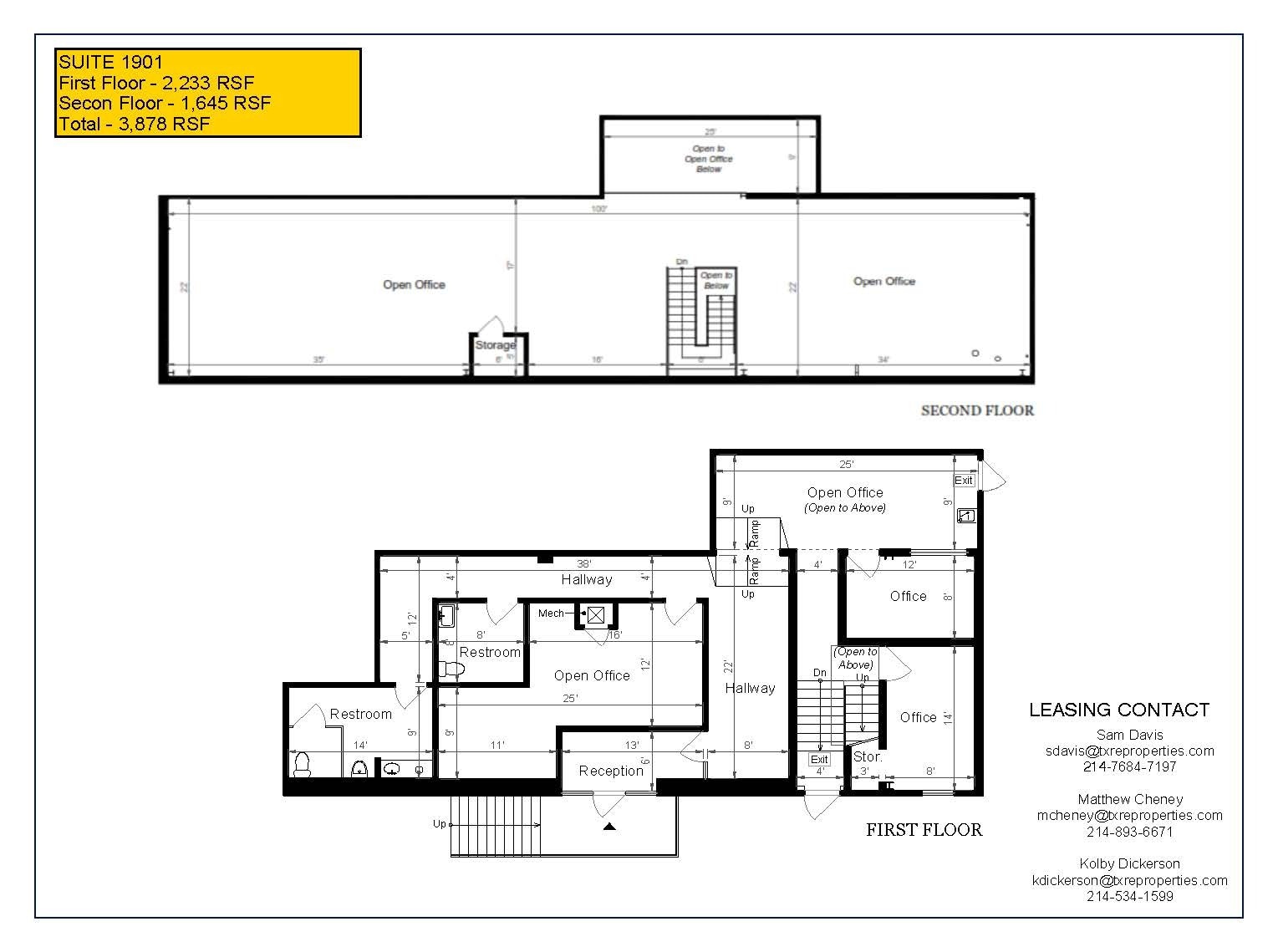
Suite 1901 offers a 2 restrooms, open office space, and two private offices on 2 separate floors.
- Le loyer comprend les services publics, les services de l’immeuble et les frais immobiliers.
- Convient pour 5 à 32 personnes
- 1 poste de travail
- Entièrement aménagé comme Bureau standard
- 2 bureaux privés
- Espace en excellent état
Suite 1917-1921 offers Reception areas, Multiple General Office Space, Work Room, It Room, Vault, 2 Break Rooms, 2 Restroom, 15 Private Offices, 3 Admin Rooms, 2 Conference Rooms Virtual Tour: https://tour.giraffe360.com/1917-windsor/
- Le loyer comprend les services publics, les services de l’immeuble et les frais immobiliers.
- Convient pour 8 à 79 personnes
- 1 salle de conférence
- Hauts plafonds
- Entièrement aménagé comme Bureau standard
- 17 bureaux privés
- Espace en excellent état
| Espace | Surface | Durée | Loyer | Type de bien | État | Disponible |
| 1er étage, bureau 1901 | 153 – 360 m² | Négociable | 140,58 € /m²/an 11,71 € /m²/mois 50 647 € /an 4 221 € /mois | Bureaux/Local commercial | Construction achevée | Maintenant |
| 1er étage, bureau 1921 | 279 – 491 m² | Négociable | 140,58 € /m²/an 11,71 € /m²/mois 68 997 € /an 5 750 € /mois | Bureau | Construction achevée | Maintenant |
1er étage, bureau 1901
| Surface |
| 153 – 360 m² |
| Durée |
| Négociable |
| Loyer |
| 140,58 € /m²/an 11,71 € /m²/mois 50 647 € /an 4 221 € /mois |
| Type de bien |
| Bureaux/Local commercial |
| État |
| Construction achevée |
| Disponible |
| Maintenant |
1er étage, bureau 1921
| Surface |
| 279 – 491 m² |
| Durée |
| Négociable |
| Loyer |
| 140,58 € /m²/an 11,71 € /m²/mois 68 997 € /an 5 750 € /mois |
| Type de bien |
| Bureau |
| État |
| Construction achevée |
| Disponible |
| Maintenant |
1er étage, bureau 1901
| Surface | 153 – 360 m² |
| Durée | Négociable |
| Loyer | 140,58 € /m²/an |
| Type de bien | Bureaux/Local commercial |
| État | Construction achevée |
| Disponible | Maintenant |
Suite 1901 offers a 2 restrooms, open office space, and two private offices on 2 separate floors.
- Le loyer comprend les services publics, les services de l’immeuble et les frais immobiliers.
- Entièrement aménagé comme Bureau standard
- Convient pour 5 à 32 personnes
- 2 bureaux privés
- 1 poste de travail
- Espace en excellent état
1er étage, bureau 1921
| Surface | 279 – 491 m² |
| Durée | Négociable |
| Loyer | 140,58 € /m²/an |
| Type de bien | Bureau |
| État | Construction achevée |
| Disponible | Maintenant |
Suite 1917-1921 offers Reception areas, Multiple General Office Space, Work Room, It Room, Vault, 2 Break Rooms, 2 Restroom, 15 Private Offices, 3 Admin Rooms, 2 Conference Rooms Virtual Tour: https://tour.giraffe360.com/1917-windsor/
- Le loyer comprend les services publics, les services de l’immeuble et les frais immobiliers.
- Entièrement aménagé comme Bureau standard
- Convient pour 8 à 79 personnes
- 17 bureaux privés
- 1 salle de conférence
- Espace en excellent état
- Hauts plafonds
APERÇU DU BIEN
Windsor Place offre une opportunité unique pour les bureaux, les commerces et l'industrie. Bénéficiant d'un emplacement privilégié et d'un accès facile, l'établissement répond à toutes les attentes. Le bâtiment est équipé d'équipements modernes, garantissant un environnement confortable et fonctionnel aux locataires et à leurs clients. Les caractéristiques comprennent un grand parking, de hauts plafonds et des plans d'étage spacieux. Le bâtiment dispose actuellement d'espaces prêts à emménager allant de 1 000 à 10 000 pieds carrés, dotés d'équipements modernes et de points d'entrée privés. Pour plus d'informations ou pour planifier une visite, contactez Kolby Dickerson ou Sam Davis au 214-684-7197.
FAITS SUR L’INSTALLATION ENTREPÔT
Présenté par
Windsor Place | 1901-1923 Windsor Pl
Hum, une erreur s’est produite lors de l’envoi de votre message. Veuillez réessayer.
Merci ! Votre message a été envoyé.








