Votre e-mail a été envoyé.
The Gateway at Station North 1900 N Howard St Bureau | 131–1 997 m² | À louer | Baltimore, MD 21218



Certaines informations ont été traduites automatiquement.
Informations principales
- Propriété orientée vers le transport en commun avec un accès pratique à l'I-83, à proximité d'un arrêt de tramway et de plusieurs lignes de bus
- À proximité d'une variété de restaurants et de boissons, de bars à cocktails et de restaurants de charme
- À proximité de nombreux lieux culturels et artistiques, notamment le Parkway Theater, le Motorhouse, le Charles Theater, The Lyric et The Myerhoff
- Situé au cœur du quartier des arts et des divertissements de Station North, juste en face de la célèbre attraction « Graffiti Alley »
- Situé au cœur de la ville de Baltimore, à proximité d'institutions phares telles que l'université Johns Hopkins, le MICA et l'université de Baltimore
- Stationnement sur place, accès par porte-clés, système d'interphone vidéo
Tous les espaces disponibles(3)
Afficher les loyers en
- Espace
- Surface
- Durée
- Loyer
- Type de bien
- Aménagement
- Disponible
- Il est possible que le loyer annoncé ne comprenne pas certains services publics, services d’immeuble et frais immobiliers.
- Principalement open space
- 8 bureaux privés
- 32 postes de travail
- Espace en excellent état
- Vidéosurveillance
- Hauts plafonds
- CVC disponible en-dehors des heures ouvrables
- Off-Lobby Access
- In-Suite Restroom
- Private offices, training room, eat-in break room
- Entièrement aménagé comme Centre d’appels
- Convient pour 11 à 72 personnes
- 2 salles de conférence
- Plafonds finis: 3,05 mètres - 4,27 mètres
- Système de sécurité
- Espace d’angle
- Lumière naturelle
- Open space
- Direct-Entry Access from Parking Lot
- Large Reception Area
- Opportunity for large conference room
Efficient office space ideal for professional services or a small business enterprise. Suite is well positioned to meet the needs of a non-profit organization or a small outpatient medical office. Prominent location directly off the main 2-story lobby of the building. Potential to expand and re-demise this suite to connect through to the northern lobby of the building, providing direct-entry access from the main parking lot.
- Entièrement aménagé comme Bureau de services professionnels
- Convient pour 3 à 8 personnes
- 4 postes de travail
- Espace en excellent état
- Aire de réception
- Lumière naturelle
- Efficient layout with mix of open & private office
- Reception/Waiting Area & private treatment rooms
- Recently built-out
- Principalement open space
- 4 bureaux privés
- Plafonds finis: 3,05 mètres - 4,27 mètres
- Plug & Play
- Plafonds suspendus
- High Visibility, Off-Lobby Access
- Break Room
- Can be re-combined with adjacent suite
Prime 2nd floor corner space with views over the Jones Falls, North Ave Bridge, I-83, Howard Street Bridge. Close proximity to MICA, UB, and other Station North cultural amenities. Suite features great historic glass line, authentic "mill" finishes, exposed wooden columns/beams/timber decking, and exterior brick walls. Suite includes dedicated double-height reception area which could also be modified as a feature conference room. Can be combined with Suite 101 (directly below) via interior stair, for total of 14,752 contiguous sqft.
- Entièrement aménagé comme Bureau standard
- Convient pour 45 à 80 personnes
- 4 salles de conférence
- Plafonds finis: 3,66 mètres
- Plug & Play
- Aire de réception
- Salle d’impression/photocopie
- Hauts plafonds
- Entreposage sécurisé
- Atrium
- Creative Office Space with exposed brick & beam
- Private reception area w/ atrium above main lobby
- Multiple breakout/conf. rooms for collaboration
- Principalement open space
- 20 bureaux privés
- 60 postes de travail
- Espace en excellent état
- Climatisation centrale
- Accès aux ascenseurs
- Espace d’angle
- Plafond apparent
- CVC disponible en-dehors des heures ouvrables
- Open space
- Glass-wall perimeter offices, high-bay LED lights
- Flexible workstation pods accommodate hybrid work
- Historic aesthetic and premium/modern finishes
| Espace | Surface | Durée | Loyer | Type de bien | Aménagement | Disponible |
| 1er étage, bureau 102 | 381 – 826 m² | Négociable | Sur demande Sur demande Sur demande Sur demande | Bureau | Construction achevée | Maintenant |
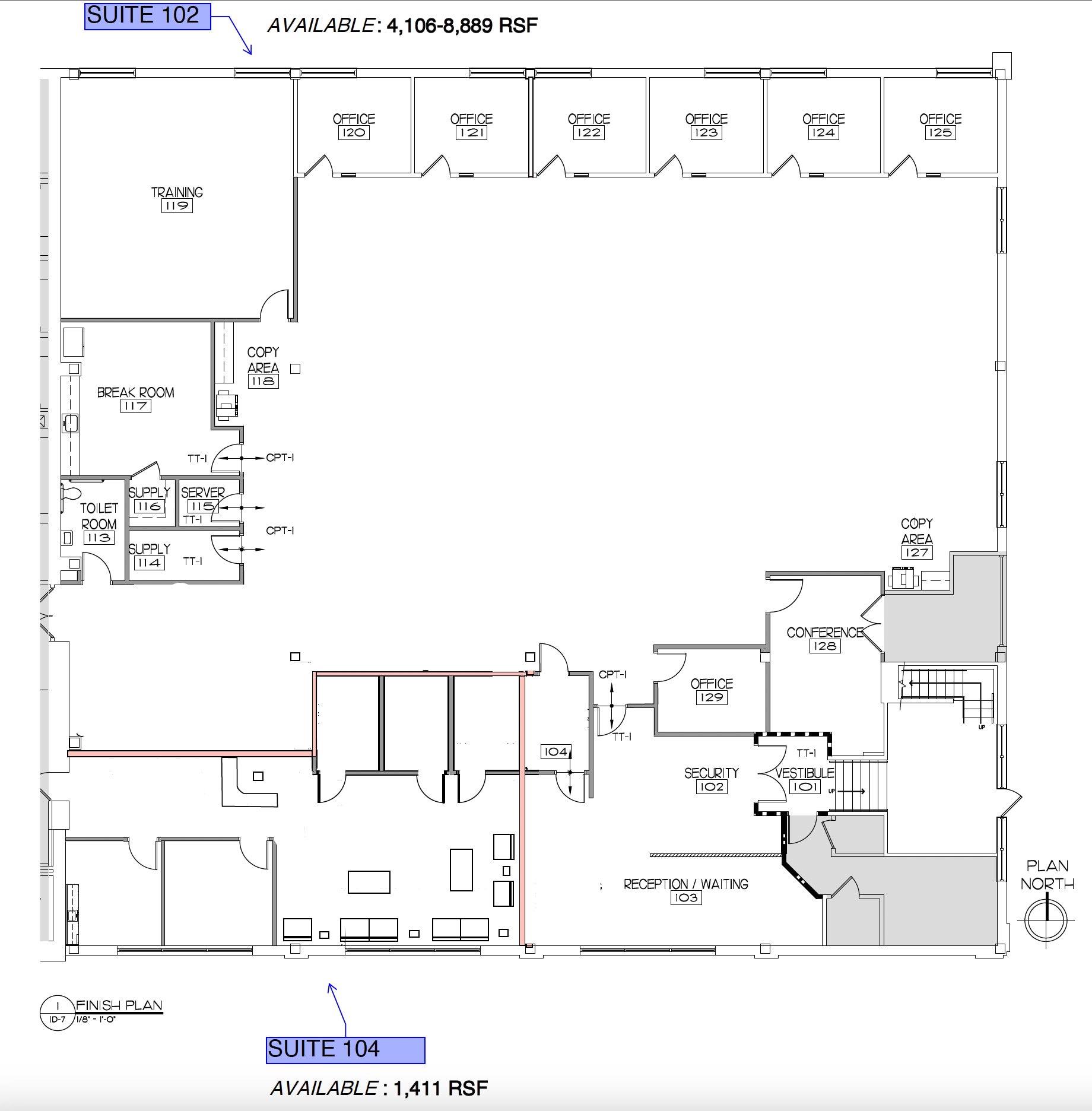
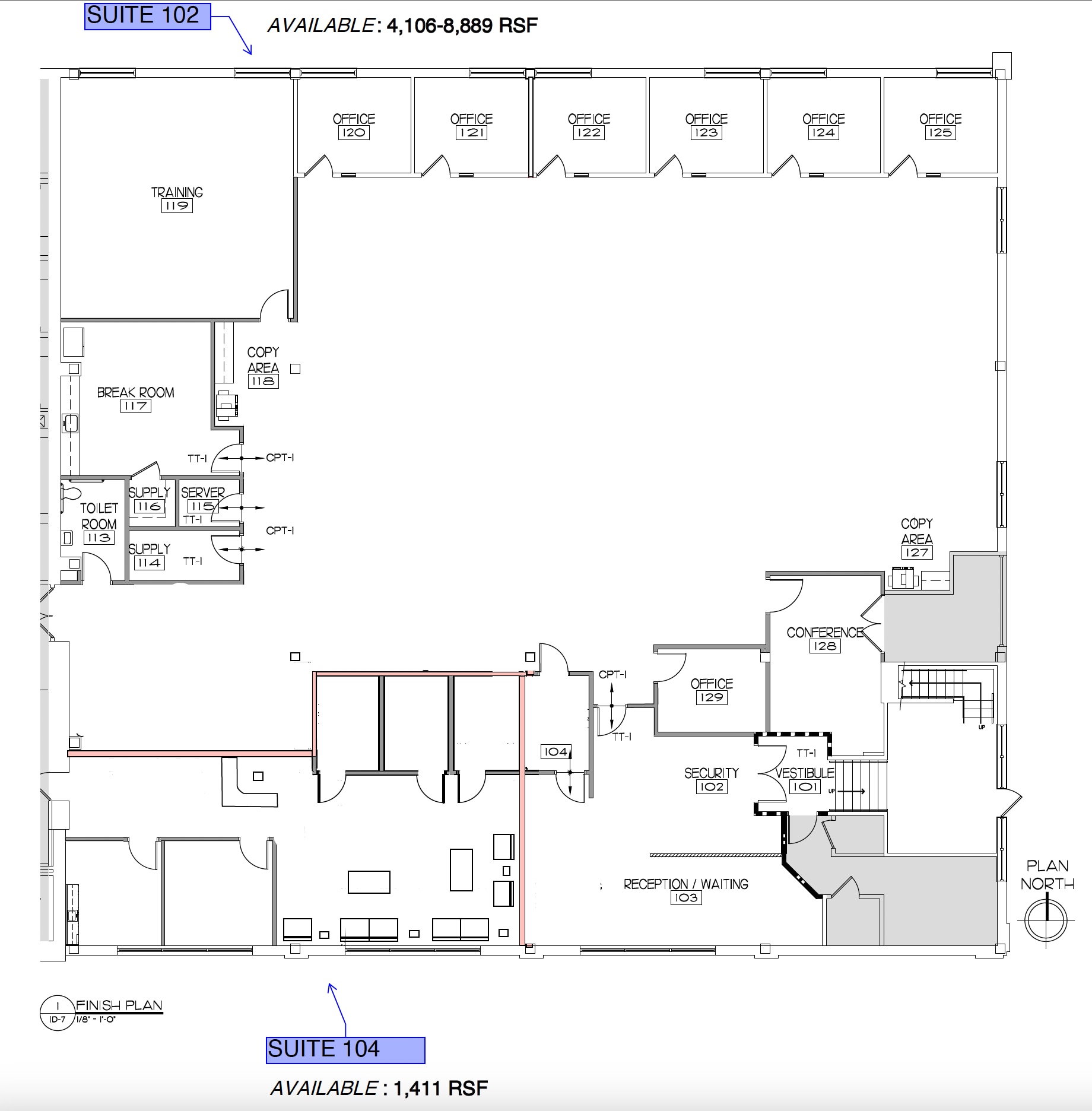
| 1er étage, bureau 104 | 131 m² | 3-10 Ans | Sur demande Sur demande Sur demande Sur demande | Bureau | Construction achevée | Maintenant |
| 2e étage, bureau 200 | 1 041 m² | Négociable | Sur demande Sur demande Sur demande Sur demande | Bureau | Construction achevée | Maintenant |
1er étage, bureau 102
| Surface |
| 381 – 826 m² |
| Durée |
| Négociable |
| Loyer |
| Sur demande Sur demande Sur demande Sur demande |
| Type de bien |
| Bureau |
| Aménagement |
| Construction achevée |
| Disponible |
| Maintenant |
1er étage, bureau 104
| Surface |
| 131 m² |
| Durée |
| 3-10 Ans |
| Loyer |
| Sur demande Sur demande Sur demande Sur demande |
| Type de bien |
| Bureau |
| Aménagement |
| Construction achevée |
| Disponible |
| Maintenant |
2e étage, bureau 200
| Surface |
| 1 041 m² |
| Durée |
| Négociable |
| Loyer |
| Sur demande Sur demande Sur demande Sur demande |
| Type de bien |
| Bureau |
| Aménagement |
| Construction achevée |
| Disponible |
| Maintenant |
1er étage, bureau 102
| Surface | 381 – 826 m² |
| Durée | Négociable |
| Loyer | Sur demande |
| Type de bien | Bureau |
| Aménagement | Construction achevée |
| Disponible | Maintenant |
- Il est possible que le loyer annoncé ne comprenne pas certains services publics, services d’immeuble et frais immobiliers.
- Entièrement aménagé comme Centre d’appels
- Principalement open space
- Convient pour 11 à 72 personnes
- 8 bureaux privés
- 2 salles de conférence
- 32 postes de travail
- Plafonds finis: 3,05 mètres - 4,27 mètres
- Espace en excellent état
- Système de sécurité
- Vidéosurveillance
- Espace d’angle
- Hauts plafonds
- Lumière naturelle
- CVC disponible en-dehors des heures ouvrables
- Open space
- Off-Lobby Access
- Direct-Entry Access from Parking Lot
- In-Suite Restroom
- Large Reception Area
- Private offices, training room, eat-in break room
- Opportunity for large conference room
1er étage, bureau 104
| Surface | 131 m² |
| Durée | 3-10 Ans |
| Loyer | Sur demande |
| Type de bien | Bureau |
| Aménagement | Construction achevée |
| Disponible | Maintenant |
Efficient office space ideal for professional services or a small business enterprise. Suite is well positioned to meet the needs of a non-profit organization or a small outpatient medical office. Prominent location directly off the main 2-story lobby of the building. Potential to expand and re-demise this suite to connect through to the northern lobby of the building, providing direct-entry access from the main parking lot.
- Entièrement aménagé comme Bureau de services professionnels
- Principalement open space
- Convient pour 3 à 8 personnes
- 4 bureaux privés
- 4 postes de travail
- Plafonds finis: 3,05 mètres - 4,27 mètres
- Espace en excellent état
- Plug & Play
- Aire de réception
- Plafonds suspendus
- Lumière naturelle
- High Visibility, Off-Lobby Access
- Efficient layout with mix of open & private office
- Break Room
- Reception/Waiting Area & private treatment rooms
- Can be re-combined with adjacent suite
- Recently built-out
2e étage, bureau 200
| Surface | 1 041 m² |
| Durée | Négociable |
| Loyer | Sur demande |
| Type de bien | Bureau |
| Aménagement | Construction achevée |
| Disponible | Maintenant |
Prime 2nd floor corner space with views over the Jones Falls, North Ave Bridge, I-83, Howard Street Bridge. Close proximity to MICA, UB, and other Station North cultural amenities. Suite features great historic glass line, authentic "mill" finishes, exposed wooden columns/beams/timber decking, and exterior brick walls. Suite includes dedicated double-height reception area which could also be modified as a feature conference room. Can be combined with Suite 101 (directly below) via interior stair, for total of 14,752 contiguous sqft.
- Entièrement aménagé comme Bureau standard
- Principalement open space
- Convient pour 45 à 80 personnes
- 20 bureaux privés
- 4 salles de conférence
- 60 postes de travail
- Plafonds finis: 3,66 mètres
- Espace en excellent état
- Plug & Play
- Climatisation centrale
- Aire de réception
- Accès aux ascenseurs
- Salle d’impression/photocopie
- Espace d’angle
- Hauts plafonds
- Plafond apparent
- Entreposage sécurisé
- CVC disponible en-dehors des heures ouvrables
- Atrium
- Open space
- Creative Office Space with exposed brick & beam
- Glass-wall perimeter offices, high-bay LED lights
- Private reception area w/ atrium above main lobby
- Flexible workstation pods accommodate hybrid work
- Multiple breakout/conf. rooms for collaboration
- Historic aesthetic and premium/modern finishes
Aperçu du bien
Baltimore's Premier Creative Office Space featuring turn-key buildouts, available immediately. Suites feature exposed brick, high ceilings, mass timber beams, and a mix of wood and steel columns, providing a modern "industrial-chic" aesthetic. Enjoy quick connections to Downtown Baltimore as well as Baltimore County, and an abundance of neighborhood amenities. Attractive for a variety of non-profit organizations, professional service providers, and other arts-centric users. On-site parking and basement-level storage space is available. Spaces offer functional open layouts with perimeter-lined offices and break-out rooms, to allow businesses to flexibly lay out their workstations and thrive in an age of hybrid-work. Dramatic atrium lobby and 2nd floor reception area makes for a "headquarters caliber" location, for a business looking to welcome clients and visitors into its space. High-end individual-stall restrooms offer maximum privacy and comfort.
- Accessible fauteuils roulants
- Station de recharge de voitures
Informations sur l’immeuble
Présenté par
The Gateway at Station North | 1900 N Howard St
Hum, une erreur s’est produite lors de l’envoi de votre message. Veuillez réessayer.
Merci ! Votre message a été envoyé.








