Votre e-mail a été envoyé.
Campus Commons - Campus South 1875 Campus Commons Dr Bureau | 157–1 514 m² | À louer | Reston, VA 20191



Certaines informations ont été traduites automatiquement.
Informations principales
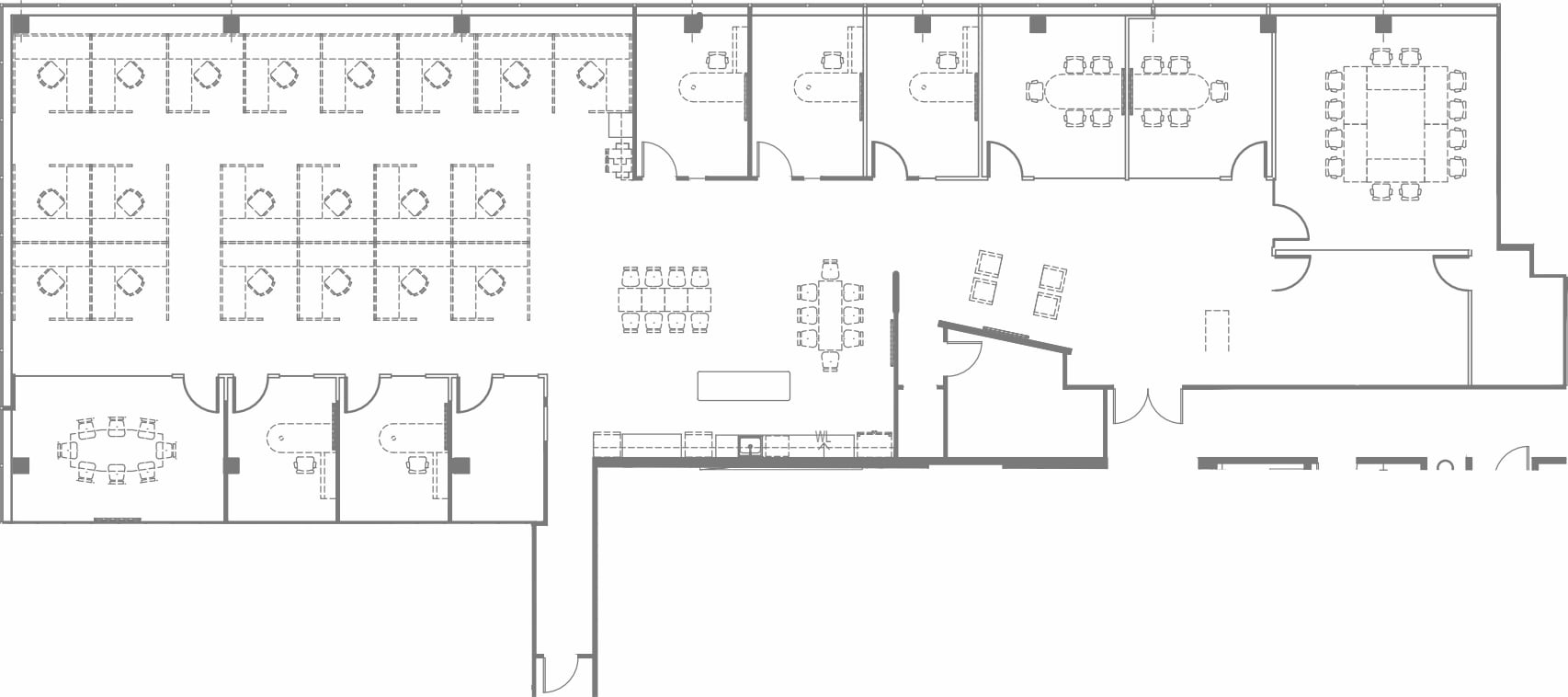
- Ready To Occupy Plug'n Play Space With Furniture, Glass Double Door Elevator Lobby Entry Into The Reception Area, Multiple Glass Conference Rooms, Upgraded Lighting Throughout The Suite, High 10' Finished Ceiling, IT Room With Supplemental HVAC, Combinati
Tous les espaces disponibles(4)
Afficher les loyers en
- Espace
- Surface
- Durée
- Loyer
- Type de bien
- Aménagement
- Disponible
Elevator Lobby Exposure, Kitchen, 4 Windowed Offices, Open Area Please contact broker for brochure and floor plans
- Le loyer comprend les services publics, les services de l’immeuble et les frais immobiliers.
- Disposition open space
- 1 salle de conférence
- Entièrement aménagé comme Bureau standard
- 4 bureaux privés
- Cuisine
Contiguous with suite 220.
- Le loyer comprend les services publics, les services de l’immeuble et les frais immobiliers.
- Peut être associé à un ou plusieurs espaces supplémentaires pour obtenir jusqu’à 732 m² d’espace adjacent.
Nice Small Space, Mostly Open Plan, Conference Room, Kitchen Please contact broker for brochure an floor plans.
- Le loyer comprend les services publics, les services de l’immeuble et les frais immobiliers.
- Disposition open space
- Peut être associé à un ou plusieurs espaces supplémentaires pour obtenir jusqu’à 732 m² d’espace adjacent.
- Entièrement aménagé comme Bureau standard
- 1 bureau privé
- Mostly open plan
Elevator Lobby Double Door Exposure Multiple Conference Rooms Kitchen Expansive Window Line PLEASE CONTACT BROKER FOR PROPERTY FLYER AND FLOOR PLANS.
- Le loyer comprend les services publics, les services de l’immeuble et les frais immobiliers.
- Principalement open space
- 4 salles de conférence
- Espace en excellent état
- Entièrement aménagé comme Bureau standard
- 5 bureaux privés
- 20 postes de travail
- Multiple Conference Rooms
| Espace | Surface | Durée | Loyer | Type de bien | Aménagement | Disponible |
| 2e étage, bureau 200 | 178 m² | 3-10 Ans | 234,10 € /m²/an 19,51 € /m²/mois 41 693 € /an 3 474 € /mois | Bureau | Construction achevée | Maintenant |
| 2e étage, bureau 210 | 575 m² | Négociable | 234,10 € /m²/an 19,51 € /m²/mois 134 648 € /an 11 221 € /mois | Bureau | - | Maintenant |
| 2e étage, bureau 220 | 157 m² | 3-10 Ans | 234,10 € /m²/an 19,51 € /m²/mois 36 712 € /an 3 059 € /mois | Bureau | Construction achevée | Maintenant |
| 3e étage, bureau 304 | 604 m² | Négociable | 245,58 € /m²/an 20,46 € /m²/mois 148 298 € /an 12 358 € /mois | Bureau | Construction achevée | Maintenant |
2e étage, bureau 200
| Surface |
| 178 m² |
| Durée |
| 3-10 Ans |
| Loyer |
| 234,10 € /m²/an 19,51 € /m²/mois 41 693 € /an 3 474 € /mois |
| Type de bien |
| Bureau |
| Aménagement |
| Construction achevée |
| Disponible |
| Maintenant |
2e étage, bureau 210
| Surface |
| 575 m² |
| Durée |
| Négociable |
| Loyer |
| 234,10 € /m²/an 19,51 € /m²/mois 134 648 € /an 11 221 € /mois |
| Type de bien |
| Bureau |
| Aménagement |
| - |
| Disponible |
| Maintenant |
2e étage, bureau 220
| Surface |
| 157 m² |
| Durée |
| 3-10 Ans |
| Loyer |
| 234,10 € /m²/an 19,51 € /m²/mois 36 712 € /an 3 059 € /mois |
| Type de bien |
| Bureau |
| Aménagement |
| Construction achevée |
| Disponible |
| Maintenant |
3e étage, bureau 304
| Surface |
| 604 m² |
| Durée |
| Négociable |
| Loyer |
| 245,58 € /m²/an 20,46 € /m²/mois 148 298 € /an 12 358 € /mois |
| Type de bien |
| Bureau |
| Aménagement |
| Construction achevée |
| Disponible |
| Maintenant |
2e étage, bureau 200
| Surface | 178 m² |
| Durée | 3-10 Ans |
| Loyer | 234,10 € /m²/an |
| Type de bien | Bureau |
| Aménagement | Construction achevée |
| Disponible | Maintenant |
Elevator Lobby Exposure, Kitchen, 4 Windowed Offices, Open Area Please contact broker for brochure and floor plans
- Le loyer comprend les services publics, les services de l’immeuble et les frais immobiliers.
- Entièrement aménagé comme Bureau standard
- Disposition open space
- 4 bureaux privés
- 1 salle de conférence
- Cuisine
2e étage, bureau 210
| Surface | 575 m² |
| Durée | Négociable |
| Loyer | 234,10 € /m²/an |
| Type de bien | Bureau |
| Aménagement | - |
| Disponible | Maintenant |
Contiguous with suite 220.
- Le loyer comprend les services publics, les services de l’immeuble et les frais immobiliers.
- Peut être associé à un ou plusieurs espaces supplémentaires pour obtenir jusqu’à 732 m² d’espace adjacent.
2e étage, bureau 220
| Surface | 157 m² |
| Durée | 3-10 Ans |
| Loyer | 234,10 € /m²/an |
| Type de bien | Bureau |
| Aménagement | Construction achevée |
| Disponible | Maintenant |
Nice Small Space, Mostly Open Plan, Conference Room, Kitchen Please contact broker for brochure an floor plans.
- Le loyer comprend les services publics, les services de l’immeuble et les frais immobiliers.
- Entièrement aménagé comme Bureau standard
- Disposition open space
- 1 bureau privé
- Peut être associé à un ou plusieurs espaces supplémentaires pour obtenir jusqu’à 732 m² d’espace adjacent.
- Mostly open plan
3e étage, bureau 304
| Surface | 604 m² |
| Durée | Négociable |
| Loyer | 245,58 € /m²/an |
| Type de bien | Bureau |
| Aménagement | Construction achevée |
| Disponible | Maintenant |
Elevator Lobby Double Door Exposure Multiple Conference Rooms Kitchen Expansive Window Line PLEASE CONTACT BROKER FOR PROPERTY FLYER AND FLOOR PLANS.
- Le loyer comprend les services publics, les services de l’immeuble et les frais immobiliers.
- Entièrement aménagé comme Bureau standard
- Principalement open space
- 5 bureaux privés
- 4 salles de conférence
- 20 postes de travail
- Espace en excellent état
- Multiple Conference Rooms
Aperçu du bien
* Finitions intérieures élégantes* Immeuble de bureaux de premier ordre avec extérieur en verre bleu réfléchissant haut de gamme, orné d'une grille à meneaux en acier inoxydable poli* Emplacement pratique sur la route à péage de Dulles entre Hunter Mill Rd et la sortie Wiehle Avenue. Douches et casiers communs à chaque étage.* Équipé d'un système CVC à volume d'air variable (VAV) avec zones contrôlées par des thermostats muraux* Système de sécurité Kastle Card Key Access *Fournisseur de fitness/Entraînement personnel sur place. Ce bâtiment a reçu la certification Wired Certified Gold. La certification Wired Certified Gold signifie qu'un bâtiment fournit aux locataires l'accès à plusieurs fournisseurs de services Internet de haute qualité et à une variété de types de câblage, y compris la fibre optique. Les mesures d'infrastructure mises en place garantissent que les sources de connectivité sont protégées, redondantes et préparées également aux besoins de connectivité des futurs locataires. Fournisseurs de services Internet disponibles : Verizon-Copper, Verizon-Fiber, Comcast Business-Fiber, Cox-Coaxial, Cox-Fiber, Verizon Fios-Fiber
- Système de sécurité
Informations sur l’immeuble
Présenté par
Campus Commons - Campus South | 1875 Campus Commons Dr
Hum, une erreur s’est produite lors de l’envoi de votre message. Veuillez réessayer.
Merci ! Votre message a été envoyé.









