Connectez-vous/S’inscrire
Votre e-mail a été envoyé.
Certaines informations ont été traduites automatiquement.
Tous les espace disponibles(1)
Afficher les loyers en
- Espace
- Surface
- Durée
- Loyer
- Type de bien
- Aménagement
- Disponible
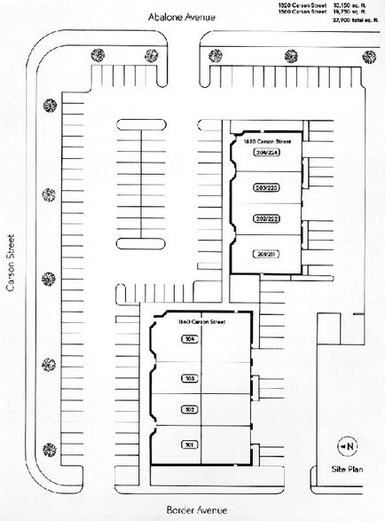
Carson St Retail Project Excellent Visibility & Signage 14 parking spaces Flexible Layout Hi Traffic Count Rear Loading Door 200 Amps, 120/208 volts, 3 ph.
- Il est possible que le loyer annoncé ne comprenne pas certains services publics, services d’immeuble et frais immobiliers.
| Espace | Surface | Durée | Loyer | Type de bien | Aménagement | Disponible |
| 1er étage, bureau 102 | 265 m² | 2-5 Ans | 204,52 € /m²/an 17,04 € /m²/mois 54 246 € /an 4 520 € /mois | Local commercial | - | Maintenant |
1er étage, bureau 102
| Surface |
| 265 m² |
| Durée |
| 2-5 Ans |
| Loyer |
| 204,52 € /m²/an 17,04 € /m²/mois 54 246 € /an 4 520 € /mois |
| Type de bien |
| Local commercial |
| Aménagement |
| - |
| Disponible |
| Maintenant |
1er étage, bureau 102
| Surface | 265 m² |
| Durée | 2-5 Ans |
| Loyer | 204,52 € /m²/an |
| Type de bien | Local commercial |
| Aménagement | - |
| Disponible | Maintenant |
Carson St Retail Project Excellent Visibility & Signage 14 parking spaces Flexible Layout Hi Traffic Count Rear Loading Door 200 Amps, 120/208 volts, 3 ph.
- Il est possible que le loyer annoncé ne comprenne pas certains services publics, services d’immeuble et frais immobiliers.
Occupants
- Étage
- Nom de l’occupant
- Secteur d’activité
- 1er
- 2B Bio Beauty
- Services
- 1er
- Behind The Salon Inc
- Services
- 1er
- Golf Exchange
- Enseigne
- 1er
- Jhc Creation Group Inc
- Construction
- 1er
- Pacparts
- Enseigne
- 1er
- Primocyn EAU Divine
- Enseigne
- 1er
- Yuko USA
- Services
Informations sur l’immeuble
Type d’immeuble
Bureau
Année de construction
1988
Hauteur du bâtiment
2 étages
Surface de l’immeuble
1 370 m²
Classe d’immeuble
B
Surface type par étage
685 m²
Stationnement
41 places de stationnement extérieur
1 1
Moderately walkable
70/100
Moderately drivable
70/100
Some public transit
50/100
Fairly bikeable
40/100
Principaux commerces à proximité
1 sur 6
Vidéos
Visite extérieure 3D Matterport
Visite 3D
Photos
Street view
Rue
Carte
1 sur 1
Présenté par
1860 W Carson St
Vous êtes déjà membre ? Connectez-vous
Hum, une erreur s’est produite lors de l’envoi de votre message. Veuillez réessayer.
Merci ! Votre message a été envoyé.



