Votre e-mail a été envoyé.
Tierra Vista 18525 Sutter Blvd 195–706 m² | À louer | Morgan Hill, CA 95037



Certaines informations ont été traduites automatiquement.
INFORMATIONS PRINCIPALES
- Zoné pour un usage général de bureau, de vente au détail, médical et de services personnels.
- Ascenseur desservi depuis le hall.
- Finitions haut de gamme dans l'ensemble des espaces communs et de la suite disponible.
- Signalisation des monuments, signalisation des annuaires et signalisation des portes.
- Des toilettes haut de gamme pour hommes et femmes à chaque étage avec du granit et de la pierre.
- Services de conciergerie à l'intérieur de la suite 5 jours par semaine et grand parking sur place.
TOUS LES ESPACES DISPONIBLES(3)
Afficher les loyers en
- ESPACE
- SURFACE
- DURÉE
- LOYER
- TYPE DE BIEN
- ÉTAT
- DISPONIBLE
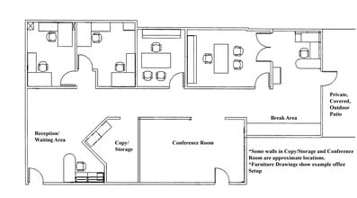
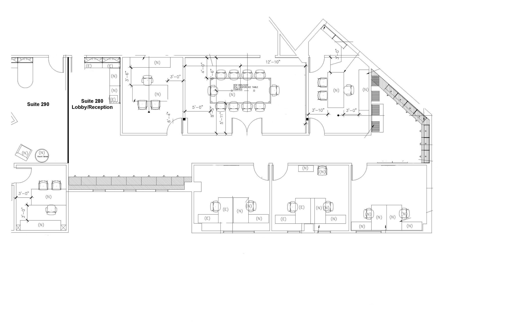
This impressive, second floor executive suite has an upscale lobby and reception area with granite counters, 5 offices, a spacious conference room, a large open area, and a break room. The two larger rooms in the back offer creative space for multiple work stations, conference rooms, private offices, training, or other innovative uses.
- Le loyer ne comprend pas les services publics, les frais immobiliers ou les services de l’immeuble.
- 5 bureaux privés
- Plafonds finis: 2,74 mètres
- Aire de réception
- Plafonds suspendus
- Bureau de réception et lobby
- 2 grandes chambres avec de hauts plafonds
- Entièrement aménagé comme Bureau de services professionnels
- 1 salle de conférence
- Ventilation et chauffage centraux
- Hauts plafonds
- CVC disponible en-dehors des heures ouvrables
- 5 bureaux spacieux
- Vues sur la ville
This spacious, professional suite has 5 large private offices, 1 conference room, spaces for several workstations and reception, and an additional space that could be converted to a break area. The thoughtful office design supports collaboration in many ways by utilizing interior windows, light, large open spaces, and private offices that are large enough for one to three people. (May be combined with adjacent suite 290.)
- Le loyer ne comprend pas les services publics, les frais immobiliers ou les services de l’immeuble.
- 1 salle de conférence
- Peut être associé à un ou plusieurs espaces supplémentaires pour obtenir jusqu’à 456 m² d’espace adjacent.
- Entièrement moquetté
- Lumière naturelle
- Accessible fauteuils roulants
- Spaces for Several Workspaces and Reception
- 5 bureaux privés
- Plafonds finis: 2,74 mètres
- Ventilation et chauffage centraux
- Plafonds suspendus
- CVC disponible en-dehors des heures ouvrables
- 5 Large Private Offices
- Large Conference Room
This exceptional suite has a private balcony, 4 large private offices, 1 conference room, 2 flex/copy/work areas, an inviting break area with soaring ceilings, and reception. The thoughtful office design supports collaboration in many ways by utilizing interior windows, natural light, and private and semi-private offices. The modern architecture offers the feeling of home balanced with an impressive, professional design. (May be combined with adjacent suite 280.)
- Le loyer ne comprend pas les services publics, les frais immobiliers ou les services de l’immeuble.
- 1 salle de conférence
- Peut être associé à un ou plusieurs espaces supplémentaires pour obtenir jusqu’à 456 m² d’espace adjacent.
- Balcon
- Plafonds suspendus
- CVC disponible en-dehors des heures ouvrables
- Trophy Office Space
- Reception Area
- 1 Conference Room
- 4 bureaux privés
- Plafonds finis: 2,74 mètres - 6,10 mètres
- Ventilation et chauffage centraux
- Espace d’angle
- Lumière naturelle
- Accessible fauteuils roulants
- Spacious Private Balcony
- 4 Private Offices
- 1 Additional Room for Office/ Work/Copy
| Espace | Surface | Durée | Loyer | Type de bien | État | Disponible |
| 2e étage, bureau 240 | 251 m² | Négociable | 210,23 € /m²/an 17,52 € /m²/mois 52 674 € /an 4 390 € /mois | Bureau | Construction achevée | Maintenant |
| 2e étage, bureau 280 | 261 m² | Négociable | 221,29 € /m²/an 18,44 € /m²/mois 57 646 € /an 4 804 € /mois | Bureaux/Médical | Construction achevée | Maintenant |
| 2e étage, bureau 290 | 195 m² | Négociable | 254,49 € /m²/an 21,21 € /m²/mois 49 673 € /an 4 139 € /mois | Bureaux/Médical | Construction achevée | Maintenant |
2e étage, bureau 240
| Surface |
| 251 m² |
| Durée |
| Négociable |
| Loyer |
| 210,23 € /m²/an 17,52 € /m²/mois 52 674 € /an 4 390 € /mois |
| Type de bien |
| Bureau |
| État |
| Construction achevée |
| Disponible |
| Maintenant |
2e étage, bureau 280
| Surface |
| 261 m² |
| Durée |
| Négociable |
| Loyer |
| 221,29 € /m²/an 18,44 € /m²/mois 57 646 € /an 4 804 € /mois |
| Type de bien |
| Bureaux/Médical |
| État |
| Construction achevée |
| Disponible |
| Maintenant |
2e étage, bureau 290
| Surface |
| 195 m² |
| Durée |
| Négociable |
| Loyer |
| 254,49 € /m²/an 21,21 € /m²/mois 49 673 € /an 4 139 € /mois |
| Type de bien |
| Bureaux/Médical |
| État |
| Construction achevée |
| Disponible |
| Maintenant |
2e étage, bureau 240
| Surface | 251 m² |
| Durée | Négociable |
| Loyer | 210,23 € /m²/an |
| Type de bien | Bureau |
| État | Construction achevée |
| Disponible | Maintenant |
This impressive, second floor executive suite has an upscale lobby and reception area with granite counters, 5 offices, a spacious conference room, a large open area, and a break room. The two larger rooms in the back offer creative space for multiple work stations, conference rooms, private offices, training, or other innovative uses.
- Le loyer ne comprend pas les services publics, les frais immobiliers ou les services de l’immeuble.
- Entièrement aménagé comme Bureau de services professionnels
- 5 bureaux privés
- 1 salle de conférence
- Plafonds finis: 2,74 mètres
- Ventilation et chauffage centraux
- Aire de réception
- Hauts plafonds
- Plafonds suspendus
- CVC disponible en-dehors des heures ouvrables
- Bureau de réception et lobby
- 5 bureaux spacieux
- 2 grandes chambres avec de hauts plafonds
- Vues sur la ville
2e étage, bureau 280
| Surface | 261 m² |
| Durée | Négociable |
| Loyer | 221,29 € /m²/an |
| Type de bien | Bureaux/Médical |
| État | Construction achevée |
| Disponible | Maintenant |
This spacious, professional suite has 5 large private offices, 1 conference room, spaces for several workstations and reception, and an additional space that could be converted to a break area. The thoughtful office design supports collaboration in many ways by utilizing interior windows, light, large open spaces, and private offices that are large enough for one to three people. (May be combined with adjacent suite 290.)
- Le loyer ne comprend pas les services publics, les frais immobiliers ou les services de l’immeuble.
- 5 bureaux privés
- 1 salle de conférence
- Plafonds finis: 2,74 mètres
- Peut être associé à un ou plusieurs espaces supplémentaires pour obtenir jusqu’à 456 m² d’espace adjacent.
- Ventilation et chauffage centraux
- Entièrement moquetté
- Plafonds suspendus
- Lumière naturelle
- CVC disponible en-dehors des heures ouvrables
- Accessible fauteuils roulants
- 5 Large Private Offices
- Spaces for Several Workspaces and Reception
- Large Conference Room
2e étage, bureau 290
| Surface | 195 m² |
| Durée | Négociable |
| Loyer | 254,49 € /m²/an |
| Type de bien | Bureaux/Médical |
| État | Construction achevée |
| Disponible | Maintenant |
This exceptional suite has a private balcony, 4 large private offices, 1 conference room, 2 flex/copy/work areas, an inviting break area with soaring ceilings, and reception. The thoughtful office design supports collaboration in many ways by utilizing interior windows, natural light, and private and semi-private offices. The modern architecture offers the feeling of home balanced with an impressive, professional design. (May be combined with adjacent suite 280.)
- Le loyer ne comprend pas les services publics, les frais immobiliers ou les services de l’immeuble.
- 4 bureaux privés
- 1 salle de conférence
- Plafonds finis: 2,74 mètres - 6,10 mètres
- Peut être associé à un ou plusieurs espaces supplémentaires pour obtenir jusqu’à 456 m² d’espace adjacent.
- Ventilation et chauffage centraux
- Balcon
- Espace d’angle
- Plafonds suspendus
- Lumière naturelle
- CVC disponible en-dehors des heures ouvrables
- Accessible fauteuils roulants
- Trophy Office Space
- Spacious Private Balcony
- Reception Area
- 4 Private Offices
- 1 Conference Room
- 1 Additional Room for Office/ Work/Copy
APERÇU DU BIEN
Le bâtiment professionnel/médical Tierra Vista est un impressionnant bâtiment haut de gamme bénéficiant d'un emplacement privilégié à seulement 10 minutes de San Jose, à la sortie de l'autoroute 101 et de Cochrane Road (première sortie) dans le parc d'affaires Morgan Hill Ranch, et à côté de Cochrane Plaza, un centre commercial très fréquenté. La propriété compte un excellent mélange de locataires, notamment la Chicago Title Company, une société de courtage hypothécaire, un chiropraticien, un acupuncteur, un mammographe, un chirurgien vasculaire, des orthopédistes, des assurances, des cabinets d'avocats, des dentistes et Stitched Up Needleworks. Une connexion Internet par fibre optique et par câble est disponible auprès de Spectrum et les commodités du quartier comprennent une variété de restaurants et de boutiques.
- Accès 24 h/24
- Signalisation
- Climatisation
INFORMATIONS SUR L’IMMEUBLE
Présenté par
Tierra Vista | 18525 Sutter Blvd
Hum, une erreur s’est produite lors de l’envoi de votre message. Veuillez réessayer.
Merci ! Votre message a été envoyé.









