Connectez-vous/S’inscrire
Votre e-mail a été envoyé.
Certaines informations ont été traduites automatiquement.
INFORMATIONS PRINCIPALES SUR L'INVESTISSEMENT
- 2025 Gut-Renovations
- Stainless Steel appliances
- Subway access at Utica Ave Station for A and C trains
- Hardwood Floors
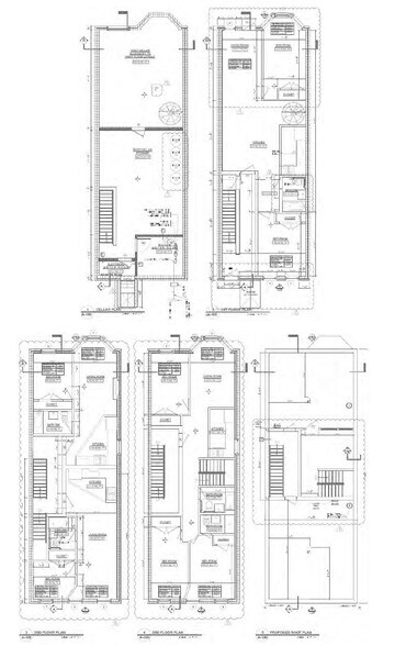
- Ground floor and 3rd floor duplexes
- Subway access at Crown Heights-Utica Ave Station for 1,2,3 and 4 trains
RÉSUMÉ ANALYTIQUE
Cushman & Wakefield is pleased to present to market 185 Utica Avenue, in Crown Heights, Brooklyn. The 4,050 SF 4-family property is located on Utica Avenue between Park Place and Prospect Place. Renovated to the studs in 2025, the building underwent an Alteration-1 and is brand new bar the exteriors walls. The property boasts a large 2BR ground-floor duplex with a private backyard and 9-foot ceilings. Floor two holds two 1BR units and floor three is a 3BR 2BA unit with a duplex to an extra BR/Office on the roof. All units have mini-split A/C and Washer/Dryers. The offering will be delivered fully vacant and with TCO, allowing for investors or Users to occupy and place their own tenants. Shared basement space holds three storage units for the 2nd and 3rd floor apartments. Please direct all inquiries to Cushman & Wakefield.
INFORMATIONS SUR L’IMMEUBLE
| Prix | 2 176 700 € | Classe d’immeuble | C |
| Prix par lot | 544 175 € | Surface du lot | 0,02 ha |
| Type de vente | Investissement | Surface de l’immeuble | 376 m² |
| Nb de lots | 4 | Occupation moyenne | 0% |
| Type de bien | Immeuble residentiel | Nb d’étages | 3 |
| Sous-type de bien | Appartement | Année de construction | 2025 |
| Style d’appartement | De faible hauteur | Zone de développement économique [USA] |
Oui
|
| Zonage | R6, C1-3 - Medium density residential district | ||
| Prix | 2 176 700 € |
| Prix par lot | 544 175 € |
| Type de vente | Investissement |
| Nb de lots | 4 |
| Type de bien | Immeuble residentiel |
| Sous-type de bien | Appartement |
| Style d’appartement | De faible hauteur |
| Classe d’immeuble | C |
| Surface du lot | 0,02 ha |
| Surface de l’immeuble | 376 m² |
| Occupation moyenne | 0% |
| Nb d’étages | 3 |
| Année de construction | 2025 |
| Zone de développement économique [USA] |
Oui |
| Zonage | R6, C1-3 - Medium density residential district |
CARACTÉRISTIQUES
CARACTÉRISTIQUES DU LOT
- Climatisation
- Espace d’entreposage
- Planchers en bois
- Électroménager en acier inoxydable
- Cour
- Sous-sol
LOT INFORMATIONS SUR LA COMBINAISON
| DESCRIPTION | NB DE LOTS | MOY. LOYER/MOIS | m² |
|---|---|---|---|
| 1+1 | 2 | - | 49 |
| 2+1 | 1 | - | 125 |
| 3+2 | 1 | - | 98 |
1 1
Walk Score®
Idéal pour les promeneurs (96)
Transit Score®
Un paradis pour l’usager (100)
Bike Score®
Très praticable en vélo (82)
TAXES FONCIÈRES
| Numéro de parcelle | 01367-0002 | Évaluation des aménagements | 47 121 € |
| Évaluation du terrain | 7 366 € | Évaluation totale | 54 487 € |
TAXES FONCIÈRES
Numéro de parcelle
01367-0002
Évaluation du terrain
7 366 €
Évaluation des aménagements
47 121 €
Évaluation totale
54 487 €
1 sur 3
VIDÉOS
VISITE EXTÉRIEURE 3D MATTERPORT
VISITE 3D
PHOTOS
STREET VIEW
RUE
CARTE
1 sur 1
Présenté par
185 Utica Ave
Vous êtes déjà membre ? Connectez-vous
Hum, une erreur s’est produite lors de l’envoi de votre message. Veuillez réessayer.
Merci ! Votre message a été envoyé.


