Votre e-mail a été envoyé.
Certaines informations ont été traduites automatiquement.
Informations principales
- La propriété locale, solide et à long terme fournit des services et de la valeur aux locataires.
- Accès facile à Fort Meade, à l'aéroport BWI, à Washington DC et à Baltimore.
- Excellent centre de remise en forme avec douches et café en libre-service à l'usage exclusif des locataires.
Tous les espaces disponibles(6)
Afficher les loyers en
- Espace
- Surface
- Durée
- Loyer
- Type de bien
- Aménagement
- Disponible
2,982 square foot office suite with private offices.
- Le loyer comprend les services publics, les services de l’immeuble et les frais immobiliers.
- Principalement open space
- 16 postes de travail
- Espace en excellent état
- Grandes fenêtres laissant entrer la lumière naturelle
- Entièrement aménagé comme Bureau de services financiers
- 4 bureaux privés
- Plafonds finis: 4,27 mètres
- Hauteurs de plafond de 14 pieds
- centre de remise en forme
Exceptional visibility off the main lobby. Corner Suite with glass on two sides.
- Le loyer comprend les services publics, les services de l’immeuble et les frais immobiliers.
- Disposition open space
- Espace en excellent état
- Exposition et visibilité excellentes
- Grandes fenêtres laissant entrer la lumière naturelle
- Entièrement aménagé comme Bureau standard
- 10 bureaux privés
- Douches
- Hauteurs de plafond de 14 pieds
Convenient 2nd-floor suite located directly off the elevator lobby
- Le loyer comprend les services publics, les services de l’immeuble et les frais immobiliers.
- Le loyer comprend les services publics, les services de l’immeuble et les frais immobiliers.
- Entièrement aménagé comme Bureau de services professionnels
7,017 square foot second floor office suite.
- Le loyer comprend les services publics, les services de l’immeuble et les frais immobiliers.
- Principalement open space
- 1 salle de conférence
- Grandes fenêtres laissant entrer la lumière naturelle
- centre de remise en forme
- Entièrement aménagé comme Bureau de services professionnels
- 11 bureaux privés
- Espace en excellent état
- Hauteurs de plafond de 14 pieds
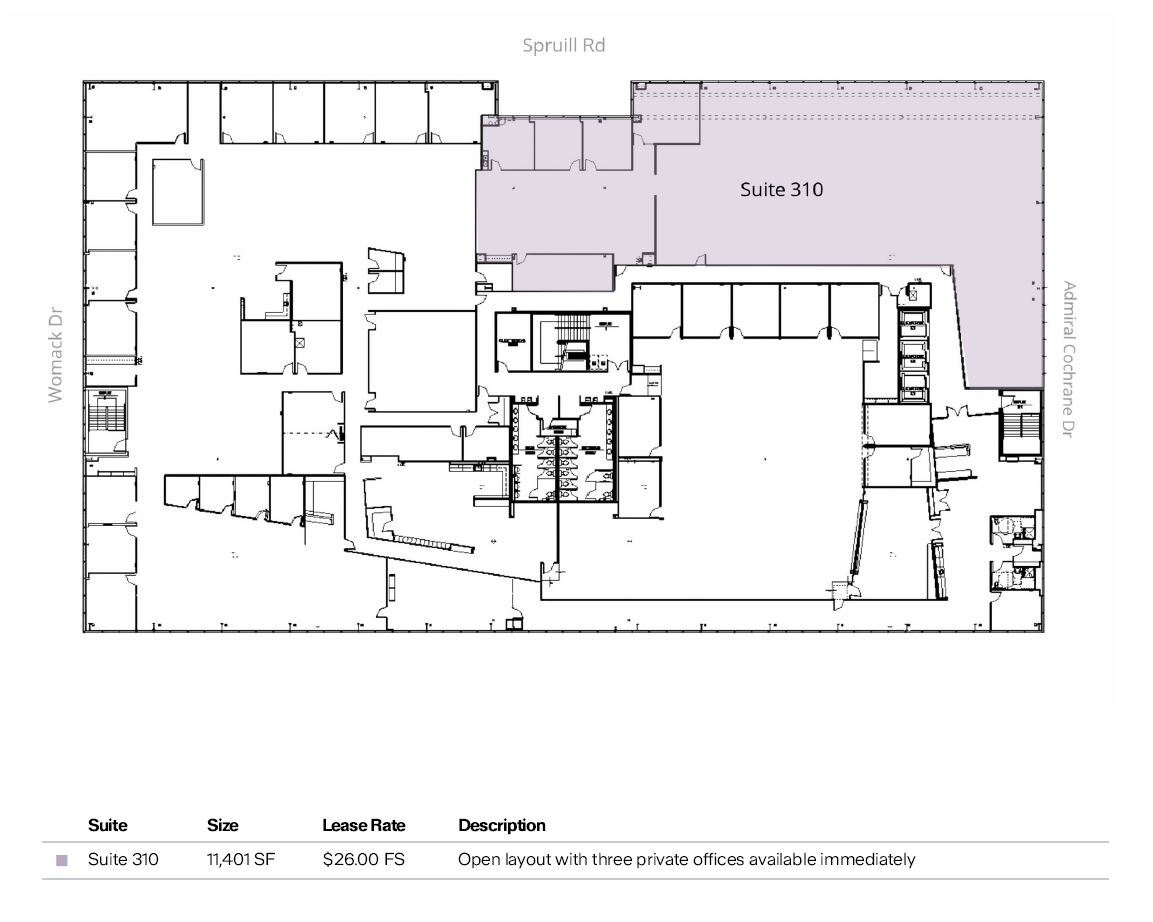
11,401 square foot third floor office suite with open floor plan and 3 private offices.
- Le loyer comprend les services publics, les services de l’immeuble et les frais immobiliers.
- Principalement open space
- centre de remise en forme
- Grandes fenêtres laissant entrer la lumière naturelle
- Partiellement aménagé comme Bureau standard
- 3 bureaux privés
- Hauteur de plafond de 14 pieds
| Espace | Surface | Durée | Loyer | Type de bien | Aménagement | Disponible |
| 1er étage, bureau 110 | 277 m² | Négociable | 238,69 € /m²/an 19,89 € /m²/mois 66 127 € /an 5 511 € /mois | Bureau | Construction achevée | Maintenant |
| 1er étage, bureau 150 | 910 m² | Négociable | 238,69 € /m²/an 19,89 € /m²/mois 217 252 € /an 18 104 € /mois | Bureau | Construction achevée | Maintenant |
| 2e étage | 1 018 m² | Négociable | 238,69 € /m²/an 19,89 € /m²/mois 243 087 € /an 20 257 € /mois | Bureau | - | 01/04/2027 |
| 2e étage, bureau 201 | 295 m² | Négociable | 238,69 € /m²/an 19,89 € /m²/mois 70 340 € /an 5 862 € /mois | Bureau | Construction achevée | Maintenant |
| 2e étage, bureau 215 | 652 m² | Négociable | 238,69 € /m²/an 19,89 € /m²/mois 155 605 € /an 12 967 € /mois | Bureau | Construction achevée | Maintenant |
| 3e étage, bureau 310 | 1 059 m² | Négociable | 238,69 € /m²/an 19,89 € /m²/mois 252 822 € /an 21 068 € /mois | Bureaux/Médical | Construction partielle | 30 jours |
1er étage, bureau 110
| Surface |
| 277 m² |
| Durée |
| Négociable |
| Loyer |
| 238,69 € /m²/an 19,89 € /m²/mois 66 127 € /an 5 511 € /mois |
| Type de bien |
| Bureau |
| Aménagement |
| Construction achevée |
| Disponible |
| Maintenant |
1er étage, bureau 150
| Surface |
| 910 m² |
| Durée |
| Négociable |
| Loyer |
| 238,69 € /m²/an 19,89 € /m²/mois 217 252 € /an 18 104 € /mois |
| Type de bien |
| Bureau |
| Aménagement |
| Construction achevée |
| Disponible |
| Maintenant |
2e étage
| Surface |
| 1 018 m² |
| Durée |
| Négociable |
| Loyer |
| 238,69 € /m²/an 19,89 € /m²/mois 243 087 € /an 20 257 € /mois |
| Type de bien |
| Bureau |
| Aménagement |
| - |
| Disponible |
| 01/04/2027 |
2e étage, bureau 201
| Surface |
| 295 m² |
| Durée |
| Négociable |
| Loyer |
| 238,69 € /m²/an 19,89 € /m²/mois 70 340 € /an 5 862 € /mois |
| Type de bien |
| Bureau |
| Aménagement |
| Construction achevée |
| Disponible |
| Maintenant |
2e étage, bureau 215
| Surface |
| 652 m² |
| Durée |
| Négociable |
| Loyer |
| 238,69 € /m²/an 19,89 € /m²/mois 155 605 € /an 12 967 € /mois |
| Type de bien |
| Bureau |
| Aménagement |
| Construction achevée |
| Disponible |
| Maintenant |
3e étage, bureau 310
| Surface |
| 1 059 m² |
| Durée |
| Négociable |
| Loyer |
| 238,69 € /m²/an 19,89 € /m²/mois 252 822 € /an 21 068 € /mois |
| Type de bien |
| Bureaux/Médical |
| Aménagement |
| Construction partielle |
| Disponible |
| 30 jours |
1er étage, bureau 110
| Surface | 277 m² |
| Durée | Négociable |
| Loyer | 238,69 € /m²/an |
| Type de bien | Bureau |
| Aménagement | Construction achevée |
| Disponible | Maintenant |
2,982 square foot office suite with private offices.
- Le loyer comprend les services publics, les services de l’immeuble et les frais immobiliers.
- Entièrement aménagé comme Bureau de services financiers
- Principalement open space
- 4 bureaux privés
- 16 postes de travail
- Plafonds finis: 4,27 mètres
- Espace en excellent état
- Hauteurs de plafond de 14 pieds
- Grandes fenêtres laissant entrer la lumière naturelle
- centre de remise en forme
1er étage, bureau 150
| Surface | 910 m² |
| Durée | Négociable |
| Loyer | 238,69 € /m²/an |
| Type de bien | Bureau |
| Aménagement | Construction achevée |
| Disponible | Maintenant |
Exceptional visibility off the main lobby. Corner Suite with glass on two sides.
- Le loyer comprend les services publics, les services de l’immeuble et les frais immobiliers.
- Entièrement aménagé comme Bureau standard
- Disposition open space
- 10 bureaux privés
- Espace en excellent état
- Douches
- Exposition et visibilité excellentes
- Hauteurs de plafond de 14 pieds
- Grandes fenêtres laissant entrer la lumière naturelle
2e étage
| Surface | 1 018 m² |
| Durée | Négociable |
| Loyer | 238,69 € /m²/an |
| Type de bien | Bureau |
| Aménagement | - |
| Disponible | 01/04/2027 |
Convenient 2nd-floor suite located directly off the elevator lobby
- Le loyer comprend les services publics, les services de l’immeuble et les frais immobiliers.
2e étage, bureau 201
| Surface | 295 m² |
| Durée | Négociable |
| Loyer | 238,69 € /m²/an |
| Type de bien | Bureau |
| Aménagement | Construction achevée |
| Disponible | Maintenant |
- Le loyer comprend les services publics, les services de l’immeuble et les frais immobiliers.
- Entièrement aménagé comme Bureau de services professionnels
2e étage, bureau 215
| Surface | 652 m² |
| Durée | Négociable |
| Loyer | 238,69 € /m²/an |
| Type de bien | Bureau |
| Aménagement | Construction achevée |
| Disponible | Maintenant |
7,017 square foot second floor office suite.
- Le loyer comprend les services publics, les services de l’immeuble et les frais immobiliers.
- Entièrement aménagé comme Bureau de services professionnels
- Principalement open space
- 11 bureaux privés
- 1 salle de conférence
- Espace en excellent état
- Grandes fenêtres laissant entrer la lumière naturelle
- Hauteurs de plafond de 14 pieds
- centre de remise en forme
3e étage, bureau 310
| Surface | 1 059 m² |
| Durée | Négociable |
| Loyer | 238,69 € /m²/an |
| Type de bien | Bureaux/Médical |
| Aménagement | Construction partielle |
| Disponible | 30 jours |
11,401 square foot third floor office suite with open floor plan and 3 private offices.
- Le loyer comprend les services publics, les services de l’immeuble et les frais immobiliers.
- Partiellement aménagé comme Bureau standard
- Principalement open space
- 3 bureaux privés
- centre de remise en forme
- Hauteur de plafond de 14 pieds
- Grandes fenêtres laissant entrer la lumière naturelle
Aperçu du bien
Profitez d'une vie de bureau moderne dans un emplacement privilégié d'Annapolis, dans le Maryland, au 185 Admiral Cochrane Drive. Le bâtiment dispose d'espaces communs de qualité supérieure avec une hauteur de plafond de 14 pieds et de grandes fenêtres laissant entrer un éclairage naturel exceptionnel, ainsi que d'un centre de remise en forme avec douches et d'un café en libre-service à l'usage exclusif des locataires. Plusieurs hôtels et centres commerciaux se trouvent à quelques minutes, ce qui facilite l'équilibre entre vie professionnelle et vie privée. Les déplacements sont également facilités grâce à l'accès facile du bâtiment à la route 50, à l'I-97 et à Fort Meade. Grâce à la propriété institutionnelle locale, les locataires peuvent s'attendre à un service et à un rapport qualité-prix exceptionnels.
- Property Manager sur place
Informations sur l’immeuble
Présenté par
185 Admiral Cochrane Dr
Hum, une erreur s’est produite lors de l’envoi de votre message. Veuillez réessayer.
Merci ! Votre message a été envoyé.













