Votre e-mail a été envoyé.
The Ideal Industrial Building 184-10-184-60 Jamaica Ave Industriel/Logistique | 329–15 114 m² | À louer | Jamaica, NY 11423



Certaines informations ont été traduites automatiquement.
Informations principales
- Deux bâtiments industriels interconnectés, idéaux pour la distribution sur le dernier kilomètre, sont situés bien en évidence le long du corridor de Jamaica Avenue.
- Profitez des généreux programmes d'amélioration destinés aux locataires et du loyer gratuit offert aux locataires qualifiés.
- Robuste et charge au sol élevée
- Grands blocs contigus d'espace industriel disponibles avec une propriété institutionnelle motivée et des conditions de location flexibles.
- Profitez d'un emplacement stratégique pour les opérations de livraison sur le dernier kilomètre, étant donné la proximité des aéroports JFK et LaGuardia.
- Nouveaux ascenseurs automatiques
Caractéristiques
Tous les espaces disponibles(8)
Afficher les loyers en
- Espace
- Surface
- Durée
- Loyer
- Type de bien
- État
- Disponible
- Brand new Loading docks with Dock levelers - Accessible to 14 loading docks and 5 freight elevators
- Espace en excellent état
- Peut être associé à un ou plusieurs espaces supplémentaires pour obtenir jusqu’à 1 291 m² d’espace adjacent.
- Niveau inférieur – B1 B
- 2 278 m²
- Négociable
- Sur demande Sur demande Sur demande Sur demande
- Industriel/Logistique
- -
- Maintenant
- 3e étage – 301
- 580 m²
- Négociable
- Sur demande Sur demande Sur demande Sur demande
- Industriel/Logistique
- -
- Maintenant
- Multiple Divisions - Newly Renovated building - Direct freight elevator access - New 5 pallet freight elevators
- 8 quais de chargement
- Accessible to 14 Loading docks and 5 freight elevators - Newly Renovated Building - Exclusive Bathrooms - Direct Freight access into space
- Newly Renovated building - Direct freight elevator access - New 5 pallet freight elevators
- Espace en excellent état
- Peut être associé à un ou plusieurs espaces supplémentaires pour obtenir jusqu’à 1 291 m² d’espace adjacent.
- Full HVAC - Multiple Divisions - Newly Renovated building
- Newly Renovated Building - Exclusive Bathrooms - Direct Freight access into space
| Espace | Surface | Durée | Loyer | Type de bien | État | Disponible |
| Niveau inférieur – B1 | 329 m² | Négociable | Sur demande Sur demande Sur demande Sur demande | Industriel/Logistique | Espace brut | 30 jours |
| Niveau inférieur – B1 B | 2 278 m² | Négociable | Sur demande Sur demande Sur demande Sur demande | Industriel/Logistique | - | Maintenant |
| 3e étage – 301 | 580 m² | Négociable | Sur demande Sur demande Sur demande Sur demande | Industriel/Logistique | - | Maintenant |
| 3e étage – 302 | 821 – 1 401 m² | Négociable | Sur demande Sur demande Sur demande Sur demande | Industriel/Logistique | - | 30 jours |
| 3e étage – 310 | 3 994 m² | Négociable | Sur demande Sur demande Sur demande Sur demande | Industriel/Logistique | - | Maintenant |
| 4e étage – 401 | 962 m² | Négociable | Sur demande Sur demande Sur demande Sur demande | Industriel/Logistique | Espace brut | Maintenant |
| 4e étage – 402 | 4 181 – 5 203 m² | Négociable | Sur demande Sur demande Sur demande Sur demande | Industriel/Logistique | - | Maintenant |
| 6e étage – PH 1 | 368 m² | Négociable | Sur demande Sur demande Sur demande Sur demande | Industriel/Logistique | - | 01/05/2026 |
Niveau inférieur – B1
| Surface |
| 329 m² |
| Durée |
| Négociable |
| Loyer |
| Sur demande Sur demande Sur demande Sur demande |
| Type de bien |
| Industriel/Logistique |
| État |
| Espace brut |
| Disponible |
| 30 jours |
Niveau inférieur – B1 B
| Surface |
| 2 278 m² |
| Durée |
| Négociable |
| Loyer |
| Sur demande Sur demande Sur demande Sur demande |
| Type de bien |
| Industriel/Logistique |
| État |
| - |
| Disponible |
| Maintenant |
3e étage – 301
| Surface |
| 580 m² |
| Durée |
| Négociable |
| Loyer |
| Sur demande Sur demande Sur demande Sur demande |
| Type de bien |
| Industriel/Logistique |
| État |
| - |
| Disponible |
| Maintenant |
3e étage – 302
| Surface |
| 821 – 1 401 m² |
| Durée |
| Négociable |
| Loyer |
| Sur demande Sur demande Sur demande Sur demande |
| Type de bien |
| Industriel/Logistique |
| État |
| - |
| Disponible |
| 30 jours |
3e étage – 310
| Surface |
| 3 994 m² |
| Durée |
| Négociable |
| Loyer |
| Sur demande Sur demande Sur demande Sur demande |
| Type de bien |
| Industriel/Logistique |
| État |
| - |
| Disponible |
| Maintenant |
4e étage – 401
| Surface |
| 962 m² |
| Durée |
| Négociable |
| Loyer |
| Sur demande Sur demande Sur demande Sur demande |
| Type de bien |
| Industriel/Logistique |
| État |
| Espace brut |
| Disponible |
| Maintenant |
4e étage – 402
| Surface |
| 4 181 – 5 203 m² |
| Durée |
| Négociable |
| Loyer |
| Sur demande Sur demande Sur demande Sur demande |
| Type de bien |
| Industriel/Logistique |
| État |
| - |
| Disponible |
| Maintenant |
6e étage – PH 1
| Surface |
| 368 m² |
| Durée |
| Négociable |
| Loyer |
| Sur demande Sur demande Sur demande Sur demande |
| Type de bien |
| Industriel/Logistique |
| État |
| - |
| Disponible |
| 01/05/2026 |
Niveau inférieur – B1
| Surface | 329 m² |
| Durée | Négociable |
| Loyer | Sur demande |
| Type de bien | Industriel/Logistique |
| État | Espace brut |
| Disponible | 30 jours |
- Brand new Loading docks with Dock levelers - Accessible to 14 loading docks and 5 freight elevators
- Espace en excellent état
- Peut être associé à un ou plusieurs espaces supplémentaires pour obtenir jusqu’à 1 291 m² d’espace adjacent.
3e étage – 302
| Surface | 821 – 1 401 m² |
| Durée | Négociable |
| Loyer | Sur demande |
| Type de bien | Industriel/Logistique |
| État | - |
| Disponible | 30 jours |
- Multiple Divisions - Newly Renovated building - Direct freight elevator access - New 5 pallet freight elevators
- 8 quais de chargement
3e étage – 310
| Surface | 3 994 m² |
| Durée | Négociable |
| Loyer | Sur demande |
| Type de bien | Industriel/Logistique |
| État | - |
| Disponible | Maintenant |
- Accessible to 14 Loading docks and 5 freight elevators - Newly Renovated Building - Exclusive Bathrooms - Direct Freight access into space
4e étage – 401
| Surface | 962 m² |
| Durée | Négociable |
| Loyer | Sur demande |
| Type de bien | Industriel/Logistique |
| État | Espace brut |
| Disponible | Maintenant |
- Newly Renovated building - Direct freight elevator access - New 5 pallet freight elevators
- Espace en excellent état
- Peut être associé à un ou plusieurs espaces supplémentaires pour obtenir jusqu’à 1 291 m² d’espace adjacent.
4e étage – 402
| Surface | 4 181 – 5 203 m² |
| Durée | Négociable |
| Loyer | Sur demande |
| Type de bien | Industriel/Logistique |
| État | - |
| Disponible | Maintenant |
- Full HVAC - Multiple Divisions - Newly Renovated building
6e étage – PH 1
| Surface | 368 m² |
| Durée | Négociable |
| Loyer | Sur demande |
| Type de bien | Industriel/Logistique |
| État | - |
| Disponible | 01/05/2026 |
- Newly Renovated Building - Exclusive Bathrooms - Direct Freight access into space
Visites 3D Matterport
Aperçu du bien
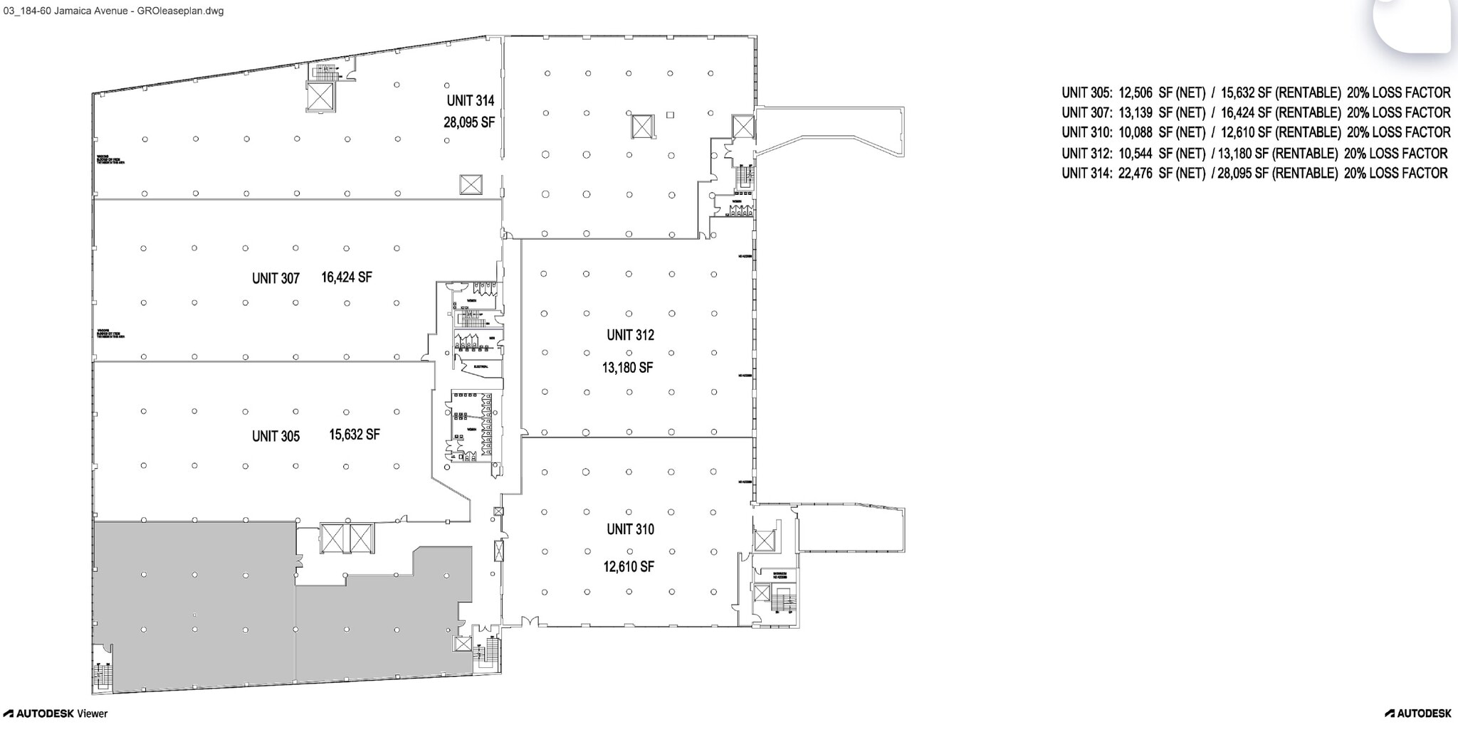
Le bâtiment industriel idéal est situé au 184-10 et au 184-60 Jamaica Avenue à Jamaica, dans le Queens. La propriété, d'une superficie totale de 618 222 pieds carrés, se compose de deux bâtiments industriels interconnectés de 5 et 6 étages situés sur un terrain de 152 100 pieds carrés. Le bâtiment a 490 pieds de façade le long de l'avenue Jamaica et est flanqué d'un parking de 30 000 pieds carrés avec 127 places. Le premier étage est le mieux adapté à la distribution/logistique avec de hauts plafonds et des portes drive-in. Avec des disponibilités supplémentaires aux niveaux supérieur et inférieur pour la fabrication et la R&D, le bâtiment industriel idéal propose un grand bloc contigu sur ces trois étages. Le Queens Logistics Center est idéalement situé le long de Jamaica Avenue, la principale artère de la région, et est accessible par les autoroutes I-295, I-678 et I-495. En outre, l'aéroport international John F. Kennedy, l'aéroport LaGuardia et Manhattan sont tous accessibles en moins de 30 minutes en voiture. Pour faciliter leurs déplacements, les employés bénéficient de la proximité de la gare de Jamaica, desservie par les lignes de métro E, J, M et Z et par le chemin de fer de Long Island.
Faits sur l’installation manufacture
Brochure marketing
À propos du quartier Sud-est du Queens
Le sud-est du Queens abrite les quartiers de Woodhaven, Kew Gardens, Jamaica et Ozone Park. La zone est dense et les employeurs ont la possibilité de faire appel à une solide main-d'œuvre dans le domaine du transport commercial dans un rayon de cinq miles.
Le marché industriel y est stimulé par la proximité de l'aéroport international John F. Kennedy et par la multitude de marchandises qui y transitent quotidiennement. Les prestataires logistiques apprécient également Southeast Queens pour ses principaux points d'accès. Les propriétés sont situées à proximité des autoroutes Van Wyck et Clearview, ce qui permet de rejoindre Manhattan, Brooklyn et le Bronx en 30 minutes de route.
Données démographiques
Accessibilité régionale
À proximité
Restaurants |
|||
|---|---|---|---|
| Macumba Bar & Resturant | Espagnol | €€ | 2 min. à pied |
| Crow Fried Chicken | Poulet | USD | 11 min. à pied |
| Number One Chinese Restaurant | Chinois | USD | 13 min. à pied |
Local commercial |
||
|---|---|---|
| Chase Bank | Banque | 9 min. à pied |
| GNC | Centre de nutrition | 12 min. à pied |
| Planet Fitness | Fitness | 17 min. à pied |
Équipes de location
Équipes de location
Joseph Lagano,
Principal
Lagano joue un rôle essentiel au sein d'une équipe performante qui représente 2,1 millions de pieds carrés de propriétés industrielles sur asphalte et hors asphalte pour quatre propriétaires institutionnels : Prologis Inc., LINK Industrial Properties, Terreno Realty LLC et Wildflower LTD. Bien que la principale spécialité de Lagano soit la représentation des propriétaires, il possède également une vaste expérience transactionnelle avec tous les types de locataires dans les secteurs du fret aérien, de la logistique, du commerce électronique et de la distribution.
Lagano accueille les nouveaux défis et opportunités pour aider les clients à prendre des décisions immobilières stratégiques qui positionneront leur entreprise ou leurs locataires sur la voie du succès. Tout au long de sa carrière, il a desservi tous les types de propriétés à Long Island, dans le Queens et sur le marché de l'aéroport international JFK. Ayant représenté de nombreux locataires de premier plan avec son équipe, notamment Luxottica Group, Elk Investors, Kuehne & Nagel, FedEx et UPS, Lagano sait comment aider les clients à répondre à leurs besoins en matière d'achat, de vente et de location.
Lagano est actuellement membre du conseil d'administration de la Commercial Industrial Brokers Society (CIBS) et de Gateway JFK, également connu sous le nom de Greater JFK Industrial Business Improvement District (IBID), ainsi que membre de la Chambre de commerce de JFK. Avant de rejoindre Avison Young, Lagano a travaillé chez JLL et Cushman & Wakefield.
Reid Berch, Principal
Berch représente actuellement plus de 2,1 millions de pieds carrés d'entrepôts, de distribution, de fret aérien et de bureaux dans le Queens et à l'aéroport international JFK pour plusieurs grands propriétaires institutionnels. Entre juin 2000 et le début de l'année 2021, l'équipe de Berch a conclu avec succès plus de 1 000 baux, achats et ventes dans le Queens, à Brooklyn, à Long Island et à l'aéroport international JFK.
Tout au long de sa carrière, Berch a représenté de nombreuses entreprises de renom, notamment Prologis, Bloomingdales, Blackstone, Terreno, UPS, DHL, AT&T, American Airlines, Delta, Mack Trucks, Coca Cola, Northrop Grumman, Sears Roebuck et Kraft Foods. Avant de rejoindre Avison Young, Berch a été vice-président exécutif chez JLL et directeur exécutif chez Cushman & Wakefield, où il a toujours été l'un des meilleurs producteurs pendant plus de 14 années consécutives. En outre, il a reçu de nombreux prix d'excellence.
Parmi les transactions notables de Berch figurent la vente de plus de 1,2 million de pieds carrés de l'ancien complexe Northrop Grumman à Bethpage et Hicksville, à Long Island, et la vente du centre de distribution de 640 000 pieds carrés de Bloomingdales à Long Island City, dans le Queens. La transaction récente a porté sur la location et la vente d'environ un million de pieds carrés de bâtiments sur ±33 acres dans le Queens et à Brooklyn à UPS.
Berch est membre du conseil d'administration de Gateway JFK, également connu sous le nom de Greater JFK Industrial Business Improvement District (IBID), ainsi que membre actif et partisan de la Commercial Industrial Brokers Society (CIBS) ainsi que de la Chambre de commerce de JFK.
Présenté par
Société non fournie
The Ideal Industrial Building | 184-10-184-60 Jamaica Ave
Hum, une erreur s’est produite lors de l’envoi de votre message. Veuillez réessayer.
Merci ! Votre message a été envoyé.







