Votre e-mail a été envoyé.
Former Panera Bread | 4,849 SF End-Cap 1781 Dunlawton Ave Local commercial | 450 m² | À louer | Port Orange, FL 32127



Certaines informations ont été traduites automatiquement.
Informations principales
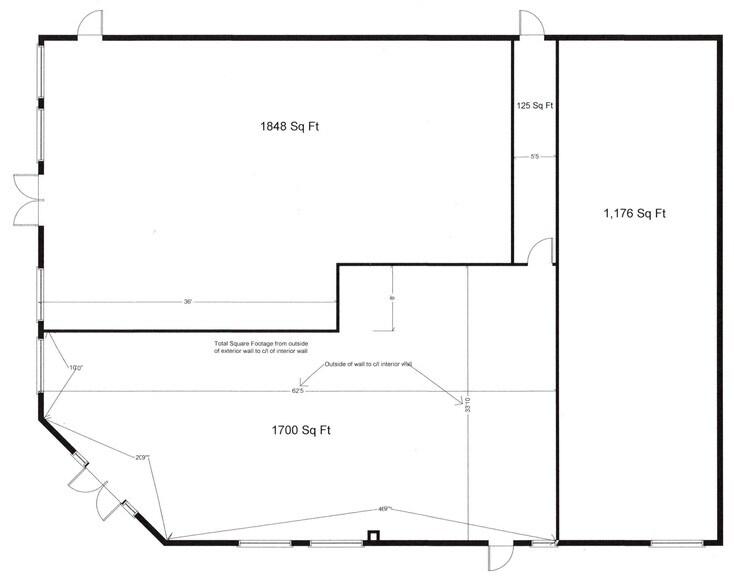
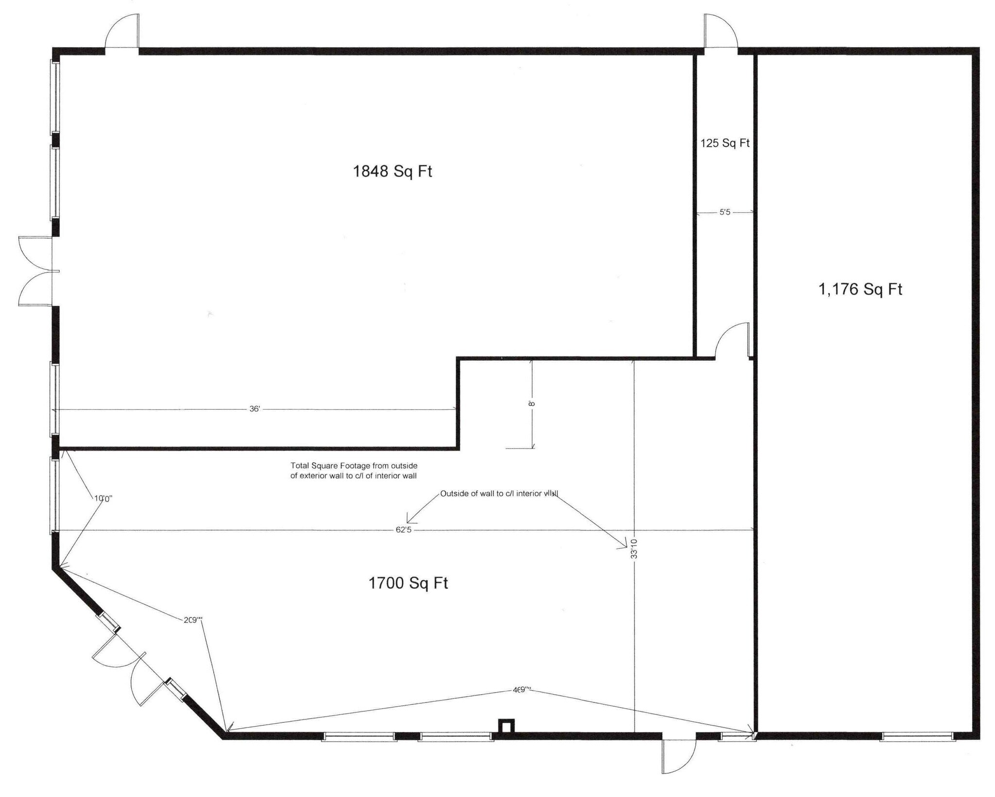
- 4,849 SF former Panera end-cap with outdoor seating
- Strong co-tenancy with Target, Lowe’s, Chick-fil-A, Starbucks, and others
- Divisible space with excellent visibility and LED signage
- Ideal for restaurant, retail, medical, or fitness users
Disponibilité de l’espace (1)
Afficher le tarif en
- Espace
- Surface
- Durée
- Loyer
- Type de loyer
| Espace | Surface | Durée | Loyer | Type de loyer | ||
| 1er étage, bureau 4 | 450 m² | Négociable | 413,12 € /m²/an 34,43 € /m²/mois 186 107 € /an 15 509 € /mois | Triple net (NNN) |
1er étage, bureau 4
Former Panera Bread for Lease in Port Orange Gateway Center. This 4,849 SF end-cap space with outdoor seating is located on high-traffic Dunlawton Avenue in a wellpositioned shopping center just off I-95. May be divided into smaller spaces ranging from 1,100 to 1,700 SF. High-visibility location for restaurant, retail, medical, fitness, showroom, or other uses. The property has direct frontage and signage, including an LED message board. Co-tenants include Hand & Stone, Great Clips, Pizza Hut, Tropical Smoothie Cafe, and Thai Kitchen by Saowanee. Outparcel to Target and Lowe’s and adjacent to Chick-fil-A, First Watch, Chipotle, Starbucks, and others, driving strong daily traffic and brand exposure. Front and rear parking available. Estimated CAM, Real Estate Taxes, and Insurance $13.35 per SF. LOCATION DESCRIPTION Located on Dunlawton Avenue, Port Orange’s primary eastwest corridor just east of I-95, with immediate access via the Dunlawton interchange.
- Le loyer ne comprend pas les services publics, les frais immobiliers ou les services de l’immeuble.
- Entièrement aménagé comme un espace de restaurant ou café
- Espace en extrémité très recherché
- 4,849 SF former Panera end-cap w/ outdoor seating
- Divisible space with excellent visibility and LED
- Strong co-tenancy with Target, Lowe’s, Chick-fil-A
- Ideal for restaurant, retail, medical, or fitness
Types de loyers
Le montant et le type de loyer que l’occupant (locataire) est tenu de payer au propriétaire (bailleur) sur la durée du bail sont négociés avant la signature du bail par les deux parties. Le type de loyer varie selon les services fournis. Par exemple, le prix d’un loyer triple net est habituellement inférieur à celui d’un bail à service complet puisque l’occupant est tenu d’assumer des dépenses supplémentaires par rapport au loyer de base. Contacter le broker chargé de l’annonce pour bien comprendre les coûts associés ou les dépenses supplémentaires pour chaque type de loyer.
1. Service complet: Un loyer qui comprend des services d’immeuble standards normaux fournis par le propriétaire dans le cadre d’une location annuelle de base.
2. Double net (NN): L’occupant paie seulement deux des frais de l’immeuble. Le propriétaire et l’occupant déterminent ces frais spécifiques avant la signature du bail.
3. Triple net (NNN): Un bail selon lequel l’occupant est responsable de tous les frais liés à sa part proportionnelle d’occupation de l’immeuble.
4. Brut modifié: Le brut modifié est un type général de bail dans lequel l’occupant est en général responsable de sa part proportionnelle d’une ou de plusieurs dépenses. C’est le propriétaire qui paie les frais restants. Consultez la liste ci-dessous pour connaître les structures de loyers bruts modifiés les plus courantes : 4. Plus services publics: Un type de bail brut modifié, où l’occupant est responsable à hauteur de sa part proportionnelle des services publics en plus du loyer. 4. Plus nettoyage: Un type de bail brut modifié, où l’occupant est responsable à hauteur de sa part proportionnelle du nettoyage en plus du loyer. 4. Plus électricité: Un type de bail brut modifié, où l’occupant est responsable à hauteur de sa part proportionnelle du coût de la consommation électrique en plus du loyer. 4. Plus électricité et nettoyage: Un type de bail brut modifié, où l’occupant est responsable à hauteur de sa part proportionnelle du coût de la consommation électrique et du nettoyage en plus du loyer. 4. Plus services publics et charges: Un type de bail brut modifié où l’occupant est responsable à hauteur de sa part proportionnelle des services publics et du coût de nettoyage en plus du loyer. 4. Bail industriel brut: Un type de bail brut modifié dans lequel l’occupant paie un ou plusieurs des frais en plus du loyer. Le propriétaire et l’occupant déterminent ces frais spécifiques avant la signature du bail.
5. Électricité à la charge de l’occupant: Le propriétaire paie pour tous les services et l’occupant est responsable de sa propre utilisation de l’éclairage et des prises électriques dans l’espace qu’il occupe.
6. Négociable ou sur demande: Cette option est utilisée lorsque le contact de location n’indique pas le type de loyer ou de service.
7. À déterminer: À déterminer : utilisé pour les immeubles dont le type de services ou de loyer n’est pas connu, souvent quand l’immeuble n’est pas encore construit.
Sélectionner des occupants à Former Panera Bread | 4,849 SF End-Cap
- Occupant
- Description
- US localisations
- Couverture
- Classy Nails
- Coiffeur/Barbier/Spa
- 1
- -
- Hand & Stone Massage and Facial Spa
- Massage
- 799
- International
- Panera Bread
- Boulangerie
- 2 845
- International
- Pizza Hut
- Pizza
- 8 486
- International
- Thai Kitchen By Saowannee
- -
- 1
- -
- Tropical Smoothie Cafe
- Restauration rapide
- 2 051
- National
| Occupant | Description | US localisations | Couverture |
| Classy Nails | Coiffeur/Barbier/Spa | 1 | - |
| Hand & Stone Massage and Facial Spa | Massage | 799 | International |
| Panera Bread | Boulangerie | 2 845 | International |
| Pizza Hut | Pizza | 8 486 | International |
| Thai Kitchen By Saowannee | - | 1 | - |
| Tropical Smoothie Cafe | Restauration rapide | 2 051 | National |
Informations sur l’immeuble
| Espace total disponible | 450 m² | Surface totale du terrain | 0,65 ha |
| Type de bien | Local commercial | Année de construction | 2005 |
| Surface commerciale utile | 1 309 m² | Ratio de stationnement | 0,71/1 000 m² |
| Espace total disponible | 450 m² |
| Type de bien | Local commercial |
| Surface commerciale utile | 1 309 m² |
| Surface totale du terrain | 0,65 ha |
| Année de construction | 2005 |
| Ratio de stationnement | 0,71/1 000 m² |
À propos du bien
Former Panera Bread for Lease in Port Orange Gateway Center. This 4,849 SF end-cap space with outdoor seating is located on high-traffic Dunlawton Avenue in a wellpositioned shopping center just off I-95. May be divided into smaller spaces ranging from 1,100 to 1,700 SF. High-visibility location for restaurant, retail, medical, fitness, showroom, or other uses. The property has direct frontage and signage, including an LED message board. Co-tenants include Hand & Stone, Great Clips, Pizza Hut, Tropical Smoothie Cafe, and Thai Kitchen by Saowanee. Outparcel to Target and Lowe’s and adjacent to Chick-fil-A, First Watch, Chipotle, Starbucks, and others, driving strong daily traffic and brand exposure. Front and rear parking available. Estimated CAM, Real Estate Taxes, and Insurance $13.35 per SF. LOCATION DESCRIPTION Located on Dunlawton Avenue, Port Orange’s primary eastwest corridor just east of I-95, with immediate access via the Dunlawton interchange.
- Ligne d’autobus
- Voie de virage exclusive
- Visibilité de l’autoroute
- Enseigne sur pylône
- Signalisation
Principaux commerces à proximité
Présenté par
Former Panera Bread | 4,849 SF End-Cap | 1781 Dunlawton Ave
Hum, une erreur s’est produite lors de l’envoi de votre message. Veuillez réessayer.
Merci ! Votre message a été envoyé.


