Votre e-mail a été envoyé.
17741 65A Ave Industriel/Logistique | 550 m² | À louer | Surrey, BC V3S 1Z8



Certaines informations ont été traduites automatiquement.
Informations principales
- Prime Cloverdale industrial location with excellent highway access
- Two grade-level loading doors for efficient operations
- Fully sprinklered, HVAC-equipped, and ample parking availability
- Bright warehouse with extensive glazing and 22’ clear height
- Multiple private offices, boardroom, and kitchenette included
Caractéristiques
Tous les espace disponibles(1)
Afficher les loyers en
- Espace
- Surface
- Durée
- Loyer
- Type de bien
- Aménagement
- Disponible
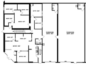
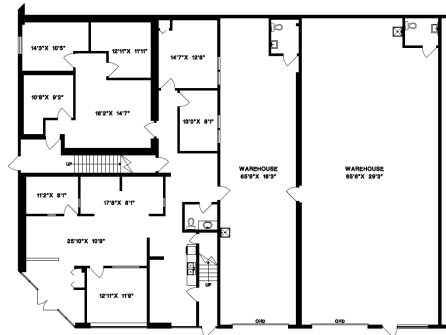
Opportunity to lease a bright warehouse unit with offices over two floors in the north Cloverdale industrial area. Quality tilt-up construction, extensive glazing, multiple private offices, boardroom, reception area, two kitchenettes, and large 2nd floor storage area. Incredible central location adjacent to Pacific Hwy 15, BC Hwy 10, and Fraser Hwy with easy access to Hwy 1, Hwy 99, the US border, and the SFPR. Surrounded by various professional services and retail options in the heart of Cloverdale. Ceiling height: 22’ clear / 11’ clear (warehouse) Parking: 18 stalls (plus ample street parking) Mechanical: HVAC, Fully sprinklered Power: 135A/347/600V 3 Phase Loading doors: Two (2) grade doors
- Le loyer ne comprend pas les services publics, les frais immobiliers ou les services de l’immeuble.
- 2 accès plain-pied
- Fully sprinklered property.
- Comprend 258 m² d’espace de bureau dédié
- Two grade level loading doors.
| Espace | Surface | Durée | Loyer | Type de bien | Aménagement | Disponible |
| RDC – 104 | 550 m² | Négociable | 121,07 € /m²/an 10,09 € /m²/mois 66 528 € /an 5 544 € /mois | Industriel/Logistique | Espace brut | Maintenant |
RDC – 104
| Surface |
| 550 m² |
| Durée |
| Négociable |
| Loyer |
| 121,07 € /m²/an 10,09 € /m²/mois 66 528 € /an 5 544 € /mois |
| Type de bien |
| Industriel/Logistique |
| Aménagement |
| Espace brut |
| Disponible |
| Maintenant |
RDC – 104
| Surface | 550 m² |
| Durée | Négociable |
| Loyer | 121,07 € /m²/an |
| Type de bien | Industriel/Logistique |
| Aménagement | Espace brut |
| Disponible | Maintenant |
Opportunity to lease a bright warehouse unit with offices over two floors in the north Cloverdale industrial area. Quality tilt-up construction, extensive glazing, multiple private offices, boardroom, reception area, two kitchenettes, and large 2nd floor storage area. Incredible central location adjacent to Pacific Hwy 15, BC Hwy 10, and Fraser Hwy with easy access to Hwy 1, Hwy 99, the US border, and the SFPR. Surrounded by various professional services and retail options in the heart of Cloverdale. Ceiling height: 22’ clear / 11’ clear (warehouse) Parking: 18 stalls (plus ample street parking) Mechanical: HVAC, Fully sprinklered Power: 135A/347/600V 3 Phase Loading doors: Two (2) grade doors
- Le loyer ne comprend pas les services publics, les frais immobiliers ou les services de l’immeuble.
- Comprend 258 m² d’espace de bureau dédié
- 2 accès plain-pied
- Two grade level loading doors.
- Fully sprinklered property.
Aperçu du bien
Strategically located adjacent to Pacific Highway 15, BC Highway 10, and Fraser Highway, the site offers quick access to Highway 1 (6 minutes), Highway 99 (12 minutes), the US border (17 minutes), and South Fraser Perimeter Road (20 minutes). Surrounded by professional services and retail amenities, this address provides convenience and connectivity for growing enterprises.
Faits sur l’installation manufacture
Occupants
- Nom de l’occupant
- Secteur d’activité
- Electrum Charging Solutions
- Manufacture
Présenté par
17741 65A Ave
Hum, une erreur s’est produite lors de l’envoi de votre message. Veuillez réessayer.
Merci ! Votre message a été envoyé.



