Votre e-mail a été envoyé.
Certaines informations ont été traduites automatiquement.
Informations principales sur le parc
- Fully equipped medical fit-out with generator for reliability.
- Surrounded by residential and retail for strong patient base.
- Ample parking and efficient layout for operational ease.
- Located in a vibrant medical and office corridor.
- Surrounded by residential and retail for strong client base.
- Prime location between Route 73 and AC Expressway.
- Collaborative environment with respected healthcare co-tenants.
- Flexible office layout designed for professional use.
- Easy access to Route 73 and AC Expressway for regional reach.
Faits sur le parc
| Espace total disponible | 1 181 m² | Type de parc | Parc de bureaux |
| Espace total disponible | 1 181 m² |
| Type de parc | Parc de bureaux |
Tous les espaces disponibles(2)
Afficher les loyers en
- Espace
- Surface
- Durée
- Loyer
- Type de bien
- Aménagement
- Disponible
- Convient pour 12 à 38 personnes
| Espace | Surface | Durée | Loyer | Type de bien | Aménagement | Disponible |
| 1er étage, bureau 105-106 | 438 m² | Négociable | Sur demande Sur demande Sur demande Sur demande | Bureau | - | Maintenant |
175 Berlin Cross Keys Rd - 1er étage – Bureau 105-106
- Espace
- Surface
- Durée
- Loyer
- Type de bien
- Aménagement
- Disponible
Medical fit-out with generator for operational continuity.
- Partiellement aménagé comme Cabinet médical standard
- Convient pour 20 à 64 personnes
- Plan d’étage avec bureaux fermés
| Espace | Surface | Durée | Loyer | Type de bien | Aménagement | Disponible |
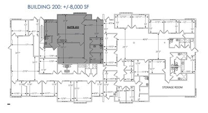
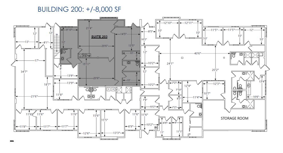
| 1er étage, bureau 203 | 743 m² | Négociable | Sur demande Sur demande Sur demande Sur demande | Bureaux/Médical | Construction partielle | 90 jours |
175 Berlin Cross Keys Rd - 1er étage – Bureau 203
175 Berlin Cross Keys Rd - 1er étage – Bureau 105-106
| Surface | 438 m² |
| Durée | Négociable |
| Loyer | Sur demande |
| Type de bien | Bureau |
| Aménagement | - |
| Disponible | Maintenant |
- Convient pour 12 à 38 personnes
175 Berlin Cross Keys Rd - 1er étage – Bureau 203
| Surface | 743 m² |
| Durée | Négociable |
| Loyer | Sur demande |
| Type de bien | Bureaux/Médical |
| Aménagement | Construction partielle |
| Disponible | 90 jours |
Medical fit-out with generator for operational continuity.
- Partiellement aménagé comme Cabinet médical standard
- Plan d’étage avec bureaux fermés
- Convient pour 20 à 64 personnes
Sélectionner des occupants à ce bien
- Étage
- Nom de l’occupant
- Secteur d’activité
- 1er
- Foot Health Center
- Santé et assistance sociale
Vue d’ensemble du parc
Building 100 at 175 Cross Keys Road offers a professional setting tailored for medical and office users seeking a prime location in Berlin’s thriving corridor. The space features a flexible layout designed to accommodate a range of professional configurations, making it ideal for practices that value efficiency and accessibility. Situated within a well-maintained complex, the building benefits from strong co-tenancy with established healthcare providers, creating a collaborative environment and a built-in referral network. Positioned between Route 73 and the Atlantic City Expressway, Building 100 provides exceptional regional connectivity for patients and staff. The surrounding area is rich with residential communities and retail amenities, ensuring convenience and visibility. With ample parking and proximity to major thoroughfares, this property delivers both functionality and strategic positioning for businesses looking to grow in a high-demand market.
Présenté par
Cross Keys Medical Center | Berlin, NJ 08009
Hum, une erreur s’est produite lors de l’envoi de votre message. Veuillez réessayer.
Merci ! Votre message a été envoyé.





