Votre e-mail a été envoyé.
Certaines informations ont été traduites automatiquement.
Informations principales
- +/-24' clear height
- Close proximity to both I-95 and the PA Turnpike
- Flexible loading options with 2 tailgates and 3 drive-ins.
- 3 ph 1,200 amp power 208-480 v
Caractéristiques
Tous les espace disponibles(1)
Afficher les loyers en
- Espace
- Surface
- Durée
- Loyer
- Type de bien
- Aménagement
- Disponible
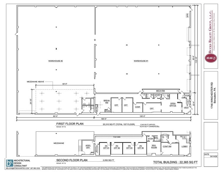
This air conditioned building offers a 24" clear height with the space broken down as follows: +/-18,071 sf of warehouse floor space +/- 2,239 sf of 1st floor office +/- 2,355 sf of 2nd floor office stacked above the 1st floor office Column spacing is approximately 33' x 42'with only four columns in the warehouse section. The building is serviced by 2 tailgates and 2 drive-ins located along the front of the facility and 1 drive-in located towards the left rear corner of the building. A +/-1,500 sf mezzanine (not included in the building sf) is also available near the rear drive-in. A floor plan is included herein. Available power is 3 ph 1,200 amp. 208 and 480 v
- Le loyer ne comprend pas les services publics, les frais immobiliers ou les services de l’immeuble.
- 2 accès plain-pied
- 2 quais de chargement
- Excellent loading options.
- Air conditioned
- Comprend 427 m² d’espace de bureau dédié
- Espace en excellent état
- High ceilings.
- Heavy power.
| Espace | Surface | Durée | Loyer | Type de bien | Aménagement | Disponible |
| 1er étage | 2 078 m² | 5-10 Ans | 100,99 € /m²/an 8,42 € /m²/mois 209 826 € /an 17 486 € /mois | Industriel/Logistique | Construction partielle | 30 jours |
1er étage
| Surface |
| 2 078 m² |
| Durée |
| 5-10 Ans |
| Loyer |
| 100,99 € /m²/an 8,42 € /m²/mois 209 826 € /an 17 486 € /mois |
| Type de bien |
| Industriel/Logistique |
| Aménagement |
| Construction partielle |
| Disponible |
| 30 jours |
1er étage
| Surface | 2 078 m² |
| Durée | 5-10 Ans |
| Loyer | 100,99 € /m²/an |
| Type de bien | Industriel/Logistique |
| Aménagement | Construction partielle |
| Disponible | 30 jours |
This air conditioned building offers a 24" clear height with the space broken down as follows: +/-18,071 sf of warehouse floor space +/- 2,239 sf of 1st floor office +/- 2,355 sf of 2nd floor office stacked above the 1st floor office Column spacing is approximately 33' x 42'with only four columns in the warehouse section. The building is serviced by 2 tailgates and 2 drive-ins located along the front of the facility and 1 drive-in located towards the left rear corner of the building. A +/-1,500 sf mezzanine (not included in the building sf) is also available near the rear drive-in. A floor plan is included herein. Available power is 3 ph 1,200 amp. 208 and 480 v
- Le loyer ne comprend pas les services publics, les frais immobiliers ou les services de l’immeuble.
- Comprend 427 m² d’espace de bureau dédié
- 2 accès plain-pied
- Espace en excellent état
- 2 quais de chargement
- High ceilings.
- Excellent loading options.
- Heavy power.
- Air conditioned
Aperçu du bien
Located in Bensalem, PA, the property is located within 3 miles of the nearest on ramps to I-95 and the PA Turnpike.
Faits sur l’installation manufacture
Occupants
- Étage
- Nom de l’occupant
- Secteur d’activité
- 1er
- Comly WM F & Son Inc
- Immobilier
- 1er
- Irene's Bakery & Gourmet
- Manufacture
Présenté par
1746 Winchester Rd
Hum, une erreur s’est produite lors de l’envoi de votre message. Veuillez réessayer.
Merci ! Votre message a été envoyé.



