Connectez-vous/S’inscrire
Votre e-mail a été envoyé.
Certaines informations ont été traduites automatiquement.
Informations principales sur la sous-location
- Lobby & common areas recently renovated
- Executive conference room on ground level
- Amenity rich neighborhood, close to Dupont Metro
- Fitness center with spa like locker rooms
- On site parking
Tous les espace disponibles(1)
Afficher les loyers en
- Espace
- Surface
- Durée
- Loyer
- Type de bien
- Aménagement
- Disponible
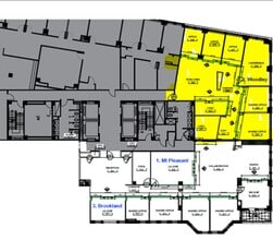
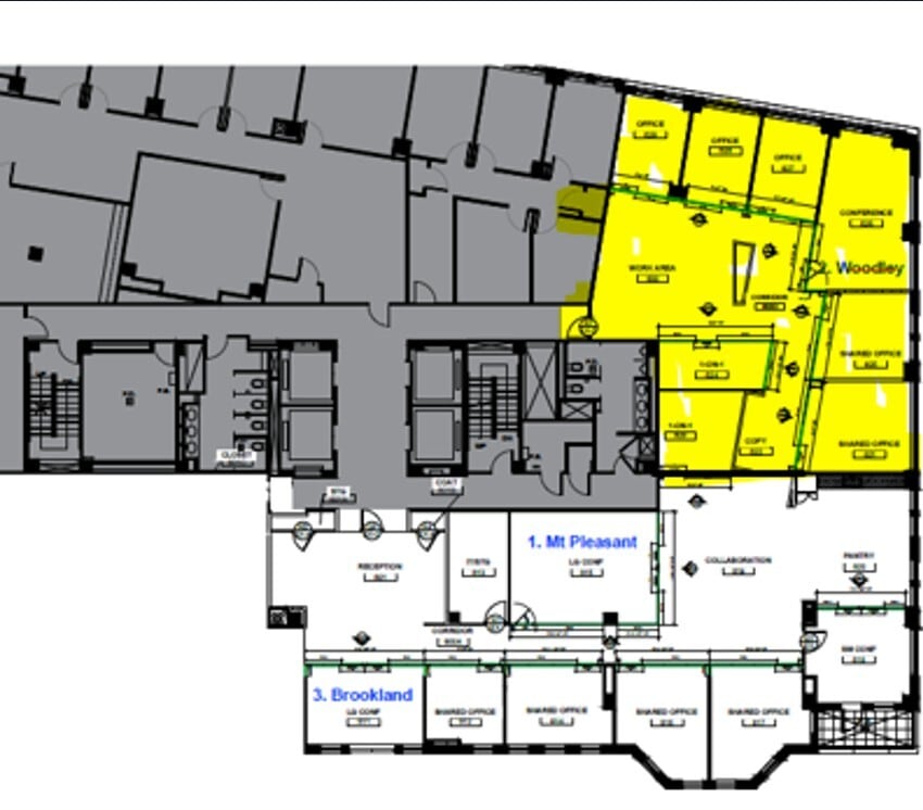
This corner suite features windows on two sides, a high-end build-out with six offices (including two designed for two occupants), a conference room, glass fronts on all offices, and available furniture.
- Espace en sous-location disponible auprès de l’occupant actuel
- Entièrement aménagé comme Bureau standard
- 1 salle de conférence
- Lumière naturelle
- Le loyer comprend les services publics, les services de l’immeuble et les frais immobiliers.
- 6 bureaux privés
- Espace en excellent état
- High end furnished space for sublease!
| Espace | Surface | Durée | Loyer | Type de bien | Aménagement | Disponible |
| 6e étage | 290 m² | Sept. 2032 | 405,35 € /m²/an 33,78 € /m²/mois 117 682 € /an 9 807 € /mois | Bureau | Construction achevée | Maintenant |
6e étage
| Surface |
| 290 m² |
| Durée |
| Sept. 2032 |
| Loyer |
| 405,35 € /m²/an 33,78 € /m²/mois 117 682 € /an 9 807 € /mois |
| Type de bien |
| Bureau |
| Aménagement |
| Construction achevée |
| Disponible |
| Maintenant |
1 sur 1
Vidéos
Visite extérieure 3D Matterport
Visite 3D
Photos
Street view
Rue
Carte
6e étage
| Surface | 290 m² |
| Durée | Sept. 2032 |
| Loyer | 405,35 € /m²/an |
| Type de bien | Bureau |
| Aménagement | Construction achevée |
| Disponible | Maintenant |
This corner suite features windows on two sides, a high-end build-out with six offices (including two designed for two occupants), a conference room, glass fronts on all offices, and available furniture.
- Espace en sous-location disponible auprès de l’occupant actuel
- Le loyer comprend les services publics, les services de l’immeuble et les frais immobiliers.
- Entièrement aménagé comme Bureau standard
- 6 bureaux privés
- 1 salle de conférence
- Espace en excellent état
- Lumière naturelle
- High end furnished space for sublease!
Caractéristiques
- Accès 24 h/24
- Ligne d’autobus
- Lumière naturelle
- Balcon
Informations sur l’immeuble
Type d’immeuble
Bureau
Année de construction/rénovation
1908/1976
Classement LoopNet
4 Étoiles
Hauteur du bâtiment
10 étages
Surface de l’immeuble
14 590 m²
Classe d’immeuble
A
Surface type par étage
1 459 m²
Hauteur du plafond non fini
3,05 m
Stationnement
Stationnement Extérieur
Stationnement Extérieur en enfilade
106 places de stationnement couvert
Occupants
- Étage
- Nom de l’occupant
- Secteur d’activité
- 7e
- AASCU
- Services
- 7e
- Chapman & Cutler LLC
- Services professionnels, scientifiques et techniques
- 6e
- Hattaway Communications
- Services
- 6e
- Ince Counseling
- Santé et assistance sociale
- 1er
- International Language Institute
- Services éducatifs
- 7e
- Pathnorth Virtual
- Services
- 10e
- Revolution Ventures
- Finance et assurances
- 6e
- Rji Capital Corp
- Services professionnels, scientifiques et techniques
- 9e
- The Case Foundation
- Services professionnels, scientifiques et techniques
1 1
Exceptionally walkable
100/100
Fairly drivable
40/100
Exceptional public transit
90/100
Exceptionally bikeable
90/100
1 sur 13
Vidéos
Visite extérieure 3D Matterport
Visite 3D
Photos
Street view
Rue
Carte
1 sur 1
Présenté par
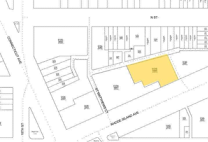
1717 Rhode Island Ave NW
Vous êtes déjà membre ? Connectez-vous
Hum, une erreur s’est produite lors de l’envoi de votre message. Veuillez réessayer.
Merci ! Votre message a été envoyé.





