Votre e-mail a été envoyé.
Certaines informations ont été traduites automatiquement.
Informations principales
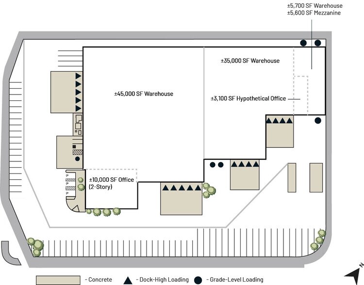
- Modern industrial facility positioned for Q3 2026 occupancy with flexible divisibility and robust loading capabilities.
- Prime Oakland location offering direct access to Interstate 880, the Bay Bridge, the Port of Oakland, and multiple airports.
- Significant power infrastructure with 1,200 AMPS existing and up to 5,200 AMPS available by late 2027.
- Secure, fully fenced site with ample parking, trailer stalls, dock-high doors, and grade-level loading to support distribution/manufacturing operation
Caractéristiques
Tous les espace disponibles(1)
Afficher les loyers en
- Espace
- Surface
- Durée
- Loyer
- Type de bien
- Aménagement
- Disponible
- Le loyer ne comprend pas les services publics, les frais immobiliers ou les services de l’immeuble.
- Espace en excellent état
- 6 accès plain-pied
- 19 quais de chargement
| Espace | Surface | Durée | Loyer | Type de bien | Aménagement | Disponible |
| 1er étage | 3 252 – 8 629 m² | Négociable | Sur demande Sur demande Sur demande Sur demande | Industriel/Logistique | - | 01/07/2026 |
1er étage
| Surface |
| 3 252 – 8 629 m² |
| Durée |
| Négociable |
| Loyer |
| Sur demande Sur demande Sur demande Sur demande |
| Type de bien |
| Industriel/Logistique |
| Aménagement |
| - |
| Disponible |
| 01/07/2026 |
1er étage
| Surface | 3 252 – 8 629 m² |
| Durée | Négociable |
| Loyer | Sur demande |
| Type de bien | Industriel/Logistique |
| Aménagement | - |
| Disponible | 01/07/2026 |
- Le loyer ne comprend pas les services publics, les frais immobiliers ou les services de l’immeuble.
- 6 accès plain-pied
- Espace en excellent état
- 19 quais de chargement
Aperçu du bien
1700 20th Street in Oakland presents an industrial opportunity tailored for high-performance logistics, manufacturing, and last-mile distribution users. The property offers a combination of warehouse and office components supported by strong power availability, efficient loading with multiple dock-high and grade-level positions, and secure perimeter fencing with a guard shack. Its strategic position provides immediate access to Interstate 880 and the Oakland Bay Bridge, placing tenants within minutes of the Port of Oakland, Oakland International Airport, San Francisco International Airport, and downtown San Francisco. The surrounding area delivers a deep labor pool, robust industrial workforce concentration, and proximity to established corporate neighbors. Ready for occupancy in Q3 2026, the asset is designed to help companies scale operations efficiently within one of the Bay Area’s most connected industrial hubs.
Faits sur l’installation distribution
Présenté par
1700 20th St
Hum, une erreur s’est produite lors de l’envoi de votre message. Veuillez réessayer.
Merci ! Votre message a été envoyé.







