Connectez-vous/S’inscrire
Votre e-mail a été envoyé.
Certaines informations ont été traduites automatiquement.
FAITS SUR LE PARC
| Espace total disponible | 336 m² | Type de parc | Parc industriel |
| Espace total disponible | 336 m² |
| Type de parc | Parc industriel |
TOUS LES ESPACES DISPONIBLES(2)
Afficher les loyers en
West 8 Business Park
1600-1682 W Sam Houston Pky N - Bldg 2
151 m²
|
9,89 € /pi²/an
0,82 € /pi²/mois
106,45 € /m²/an
8,87 € /m²/mois
1 335 € /mois
16 020 € /an
Type d’immeuble
Local d'activités
Surface de l’immeuble
3 716 m²
Surface du lot
1,12 ha
Année de construction
1978
Développement et livraisons
Maçonnerie
Hauteur libre
3,66 m
Accès plain-pied
17
Zonage
N/Ap
- ESPACE
- SURFACE
- DURÉE
- LOYER
- TYPE DE BIEN
- ÉTAT
- DISPONIBLE
- Le loyer ne comprend pas les services publics, les frais immobiliers ou les services de l’immeuble.
- Espace en excellent état
- Ventilation et chauffage centraux
- Toilettes incluses dans le bail
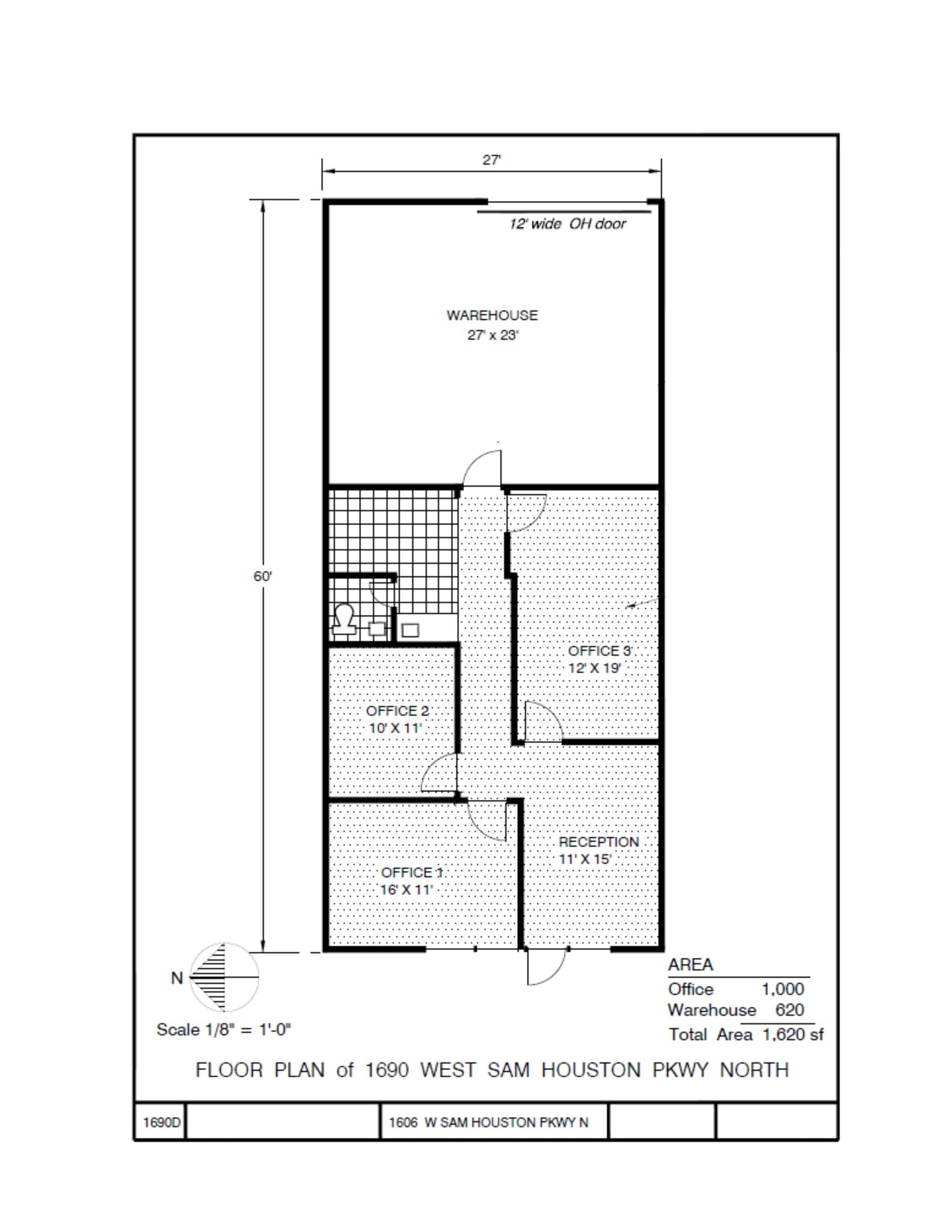
- Comprend 93 m² d’espace de bureau dédié
- 1 accès plain-pied
- Aire de réception
- CVC disponible en-dehors des heures ouvrables
| Espace | Surface | Durée | Loyer | Type de bien | État | Disponible |
| 1er étage – 1690 | 151 m² | Négociable | 106,45 € /m²/an 8,87 € /m²/mois 16 020 € /an 1 335 € /mois | Local d’activités | Construction achevée | Maintenant |
West 8 Business Park
1600-1682 W Sam Houston Pky N - Bldg 2
151 m²
|
9,89 € /pi²/an
0,82 € /pi²/mois
106,45 € /m²/an
8,87 € /m²/mois
1 335 € /mois
16 020 € /an
Type d’immeuble
Local d'activités
Surface de l’immeuble
3 716 m²
Surface du lot
1,12 ha
Année de construction
1978
Développement et livraisons
Maçonnerie
Hauteur libre
3,66 m
Accès plain-pied
17
Zonage
N/Ap
1600-1682 W Sam Houston Pky N - 1er étage – 1690
Surface
151 m²
Durée
Négociable
Loyer
106,45 € /m²/an
8,87 € /m²/mois
16 020 € /an
1 335 € /mois
Type de bien
Local d’activités
État
Construction achevée
Disponible
Maintenant
West 8 Business Park
1750-1792 W Sam Houston Pky N - Bldg 2
186 m²
|
9,89 € /pi²/an
0,82 € /pi²/mois
106,45 € /m²/an
8,87 € /m²/mois
1 648 € /mois
19 778 € /an
Type d’immeuble
Local d'activités
Surface de l’immeuble
3 908 m²
Surface du lot
1,20 ha
Année de construction
1978
Développement et livraisons
Maçonnerie
Hauteur libre
3,66 m
Accès plain-pied
18
Zonage
N/Ap
- ESPACE
- SURFACE
- DURÉE
- LOYER
- TYPE DE BIEN
- ÉTAT
- DISPONIBLE
- Le loyer ne comprend pas les services publics, les frais immobiliers ou les services de l’immeuble.
- 1 accès plain-pied
- Espace nécessitant des rénovations
| Espace | Surface | Durée | Loyer | Type de bien | État | Disponible |
| 1er étage – 1784 | 186 m² | Négociable | 106,45 € /m²/an 8,87 € /m²/mois 19 778 € /an 1 648 € /mois | Local d’activités | Construction partielle | Maintenant |
West 8 Business Park
1750-1792 W Sam Houston Pky N - Bldg 2
186 m²
|
9,89 € /pi²/an
0,82 € /pi²/mois
106,45 € /m²/an
8,87 € /m²/mois
1 648 € /mois
19 778 € /an
Type d’immeuble
Local d'activités
Surface de l’immeuble
3 908 m²
Surface du lot
1,20 ha
Année de construction
1978
Développement et livraisons
Maçonnerie
Hauteur libre
3,66 m
Accès plain-pied
18
Zonage
N/Ap
1750-1792 W Sam Houston Pky N - 1er étage – 1784
Surface
186 m²
Durée
Négociable
Loyer
106,45 € /m²/an
8,87 € /m²/mois
19 778 € /an
1 648 € /mois
Type de bien
Local d’activités
État
Construction partielle
Disponible
Maintenant
1 sur 1
VIDÉOS
VISITE EXTÉRIEURE 3D MATTERPORT
VISITE 3D
PHOTOS
STREET VIEW
RUE
CARTE
1600-1682 W Sam Houston Pky N - 1er étage – 1690
| Surface | 151 m² |
| Durée | Négociable |
| Loyer | 106,45 € /m²/an |
| Type de bien | Local d’activités |
| État | Construction achevée |
| Disponible | Maintenant |
- Le loyer ne comprend pas les services publics, les frais immobiliers ou les services de l’immeuble.
- Comprend 93 m² d’espace de bureau dédié
- Espace en excellent état
- 1 accès plain-pied
- Ventilation et chauffage centraux
- Aire de réception
- Toilettes incluses dans le bail
- CVC disponible en-dehors des heures ouvrables
1750-1792 W Sam Houston Pky N - 1er étage – 1784
| Surface | 186 m² |
| Durée | Négociable |
| Loyer | 106,45 € /m²/an |
| Type de bien | Local d’activités |
| État | Construction partielle |
| Disponible | Maintenant |
- Le loyer ne comprend pas les services publics, les frais immobiliers ou les services de l’immeuble.
- Espace nécessitant des rénovations
- 1 accès plain-pied
SÉLECTIONNER DES OCCUPANTS À CE BIEN
- ÉTAGE
- NOM DE L’OCCUPANT
- SECTEUR D’ACTIVITÉ
- 1er
- Classic Protection Systems
- Services professionnels, scientifiques et techniques
- 1er
- Sulmara Subsea
- Exploitation minière, carrière et extraction de pétrole et de gaz
- 1er
- Texas Components Corporation
- Services professionnels, scientifiques et techniques
- 1er
- Texas Microelectronics Corporation
- Exploitation minière, carrière et extraction de pétrole et de gaz
1 1
1 sur 22
VIDÉOS
VISITE EXTÉRIEURE 3D MATTERPORT
VISITE 3D
PHOTOS
STREET VIEW
RUE
CARTE
1 sur 1
Présenté par
West 8 Business Park | Houston, TX 77043
Vous êtes déjà membre ? Connectez-vous
Hum, une erreur s’est produite lors de l’envoi de votre message. Veuillez réessayer.
Merci ! Votre message a été envoyé.





