Votre e-mail a été envoyé.
170 Maiden Ln Bureau | 681–2 046 m² | À louer | San Francisco, CA 94108



Certaines informations ont été traduites automatiquement.
Informations principales
- Emplacement d'Union Square
- Large operable windows provide abundant natural light throughout the space.
- Convenient parking options located nearby for added accessibility.
- Accès facile aux transports en commun
- High ceilings and open layouts allow for flexible workspace design.
Tous les espaces disponibles(3)
Afficher les loyers en
- Espace
- Surface
- Durée
- Loyer
- Type de bien
- Aménagement
- Disponible
Full floors are available for lease in a prime Union Square location, offering easy access to public transportation and a variety of nearby amenities. The space features large operable windows that provide abundant natural light, along with high ceilings that enhance the open, airy atmosphere. On-site property management ensures seamless service, while direct access to Maiden Lane offers convenience. Strong ownership and convenient parking nearby further add to the appeal of these available floors on both the 3rd and 6th levels.
- Le loyer comprend les services publics, les services de l’immeuble et les frais immobiliers.
- Principalement open space
- 4 salles de conférence
- Plafonds finis: 3,35 mètres
- Climatisation centrale
- Partiellement aménagé comme Bureau standard
- 2 bureaux privés
- 2 postes de travail
- Espace en excellent état
- prime Union Square location
Full floors are available for lease in a prime Union Square location, offering easy access to public transportation and a variety of nearby amenities. The space features large operable windows that provide abundant natural light, along with high ceilings that enhance the open, airy atmosphere. On-site property management ensures seamless service, while direct access to Maiden Lane offers convenience. Strong ownership and convenient parking nearby further add to the appeal of these available floors on both the 3rd and 6th levels.
- Le loyer comprend les services publics, les services de l’immeuble et les frais immobiliers.
- Disposition open space
- 5 salles de conférence
- Plafonds finis: 3,35 mètres
- Peut être associé à un ou plusieurs espaces supplémentaires pour obtenir jusqu’à 1 364 m² d’espace adjacent.
- Cuisine
- Partiellement aménagé comme Bureau standard
- 10 bureaux privés
- 10 postes de travail
- Espace en excellent état
- Climatisation centrale
- Hauts plafonds
- Le loyer comprend les services publics, les services de l’immeuble et les frais immobiliers.
- Peut être associé à un ou plusieurs espaces supplémentaires pour obtenir jusqu’à 1 364 m² d’espace adjacent.
| Espace | Surface | Durée | Loyer | Type de bien | Aménagement | Disponible |
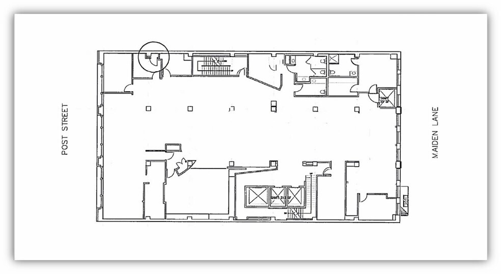
| 3e étage | 681 m² | Négociable | 358,04 € /m²/an 29,84 € /m²/mois 243 985 € /an 20 332 € /mois | Bureau | Construction partielle | Maintenant |
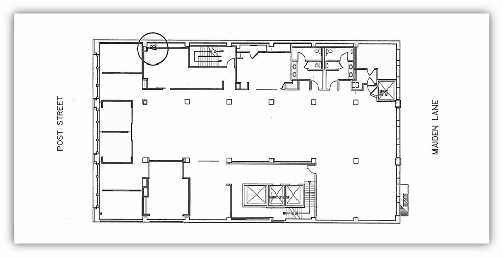
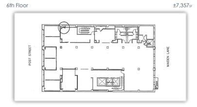
| 6e étage | 683 m² | Négociable | 358,04 € /m²/an 29,84 € /m²/mois 244 717 € /an 20 393 € /mois | Bureau | Construction partielle | Maintenant |
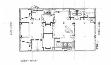
| 7e étage | 681 m² | Négociable | 358,04 € /m²/an 29,84 € /m²/mois 243 785 € /an 20 315 € /mois | Bureau | - | Maintenant |
3e étage
| Surface |
| 681 m² |
| Durée |
| Négociable |
| Loyer |
| 358,04 € /m²/an 29,84 € /m²/mois 243 985 € /an 20 332 € /mois |
| Type de bien |
| Bureau |
| Aménagement |
| Construction partielle |
| Disponible |
| Maintenant |
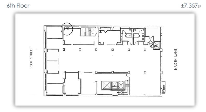
6e étage
| Surface |
| 683 m² |
| Durée |
| Négociable |
| Loyer |
| 358,04 € /m²/an 29,84 € /m²/mois 244 717 € /an 20 393 € /mois |
| Type de bien |
| Bureau |
| Aménagement |
| Construction partielle |
| Disponible |
| Maintenant |
7e étage
| Surface |
| 681 m² |
| Durée |
| Négociable |
| Loyer |
| 358,04 € /m²/an 29,84 € /m²/mois 243 785 € /an 20 315 € /mois |
| Type de bien |
| Bureau |
| Aménagement |
| - |
| Disponible |
| Maintenant |
3e étage
| Surface | 681 m² |
| Durée | Négociable |
| Loyer | 358,04 € /m²/an |
| Type de bien | Bureau |
| Aménagement | Construction partielle |
| Disponible | Maintenant |
Full floors are available for lease in a prime Union Square location, offering easy access to public transportation and a variety of nearby amenities. The space features large operable windows that provide abundant natural light, along with high ceilings that enhance the open, airy atmosphere. On-site property management ensures seamless service, while direct access to Maiden Lane offers convenience. Strong ownership and convenient parking nearby further add to the appeal of these available floors on both the 3rd and 6th levels.
- Le loyer comprend les services publics, les services de l’immeuble et les frais immobiliers.
- Partiellement aménagé comme Bureau standard
- Principalement open space
- 2 bureaux privés
- 4 salles de conférence
- 2 postes de travail
- Plafonds finis: 3,35 mètres
- Espace en excellent état
- Climatisation centrale
- prime Union Square location
6e étage
| Surface | 683 m² |
| Durée | Négociable |
| Loyer | 358,04 € /m²/an |
| Type de bien | Bureau |
| Aménagement | Construction partielle |
| Disponible | Maintenant |
Full floors are available for lease in a prime Union Square location, offering easy access to public transportation and a variety of nearby amenities. The space features large operable windows that provide abundant natural light, along with high ceilings that enhance the open, airy atmosphere. On-site property management ensures seamless service, while direct access to Maiden Lane offers convenience. Strong ownership and convenient parking nearby further add to the appeal of these available floors on both the 3rd and 6th levels.
- Le loyer comprend les services publics, les services de l’immeuble et les frais immobiliers.
- Partiellement aménagé comme Bureau standard
- Disposition open space
- 10 bureaux privés
- 5 salles de conférence
- 10 postes de travail
- Plafonds finis: 3,35 mètres
- Espace en excellent état
- Peut être associé à un ou plusieurs espaces supplémentaires pour obtenir jusqu’à 1 364 m² d’espace adjacent.
- Climatisation centrale
- Cuisine
- Hauts plafonds
7e étage
| Surface | 681 m² |
| Durée | Négociable |
| Loyer | 358,04 € /m²/an |
| Type de bien | Bureau |
| Aménagement | - |
| Disponible | Maintenant |
- Le loyer comprend les services publics, les services de l’immeuble et les frais immobiliers.
- Peut être associé à un ou plusieurs espaces supplémentaires pour obtenir jusqu’à 1 364 m² d’espace adjacent.
Aperçu du bien
170 Maiden Lane offers full-floor office availabilities in the heart of San Francisco’s Union Square district. This premier location provides immediate access to world-class retail, dining, and cultural amenities, as well as excellent connectivity to public transportation, including a short walk to Montgomery BART and Muni stations. The building features large operable windows that flood the interiors with natural light, creating an inviting and productive work environment. High ceilings and open floor plans allow for flexible configurations, while select floors include multiple conference rooms, custom kitchenettes, and the potential for furnished workstations. On-site property management ensures responsive service, and nearby parking options add convenience for employees and visitors. With long-term stable ownership and a prestigious address on Maiden Lane, this property is an exceptional opportunity for businesses seeking a central, accessible, and well-managed office environment in San Francisco’s most vibrant commercial hub.
- Métro
Informations sur l’immeuble
Présenté par
170 Maiden Ln
Hum, une erreur s’est produite lors de l’envoi de votre message. Veuillez réessayer.
Merci ! Votre message a été envoyé.









