Votre e-mail a été envoyé.
The Rivani Retail | For Lease 1691 Michigan Ave Local commercial | 124–1 255 m² | 4 étoiles | À louer | Miami Beach, FL 33139



Certaines informations ont été traduites automatiquement.
Informations principales
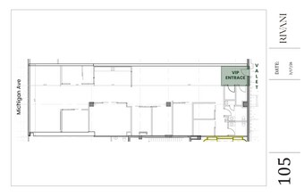
- Suite 105 - 3,548 SF (Restaurant Space)
- Suite 130 - 5,255 SF (Office / Retail Space)
- Suite 115A - 1,338 SF (Café / 2nd Gen. Restaurant)
- Suite 140 - 3,370 SF (2nd Gen. Restaurant)
Tous les espaces disponibles(4)
Afficher les loyers en
- Espace
- Surface
- Durée
- Loyer
- Type de bien
- Aménagement
- Disponible
Restaurant Space • Entrance directly from valet • Newly installed grease trap
- Restaurant Space
- Newly installed grease trap
- Entrance directly from valet
Café / 2nd Gen. Restaurant • Located next to building lobby • Ideal restaurant/café space • Grease trap and hood installed • Next to elevator landing for tower
- Café / 2nd Gen. Restaurant
- Ideal restaurant/café space
- Next to elevator landing for tower
- Located next to building lobby
- Grease trap and hood installed
Office / Retail Space • Currently built out as an office space • Ideal for office, retail or medical spa • Can be split into two
- Office / Retail Space
- Ideal for office, retail or medical spa
- Currently built out as an office space
- Can be split into two
2nd Gen Restaurant • Grease trap in place • Can be split into two
- Grease trap in place
- Can be split into two
| Espace | Surface | Durée | Loyer | Type de bien | Aménagement | Disponible |
| 1er étage, bureau Suite 105 | 330 m² | Négociable | Sur demande Sur demande Sur demande Sur demande | Local commercial | - | Maintenant |
| 1er étage, bureau Suite 115A | 124 m² | Négociable | Sur demande Sur demande Sur demande Sur demande | Local commercial | - | Maintenant |
| 1er étage, bureau Suite 130 | 488 m² | Négociable | Sur demande Sur demande Sur demande Sur demande | Local commercial | - | Maintenant |
| 1er étage, bureau Suite 140 | 313 m² | Négociable | Sur demande Sur demande Sur demande Sur demande | Local commercial | - | Maintenant |
1er étage, bureau Suite 105
| Surface |
| 330 m² |
| Durée |
| Négociable |
| Loyer |
| Sur demande Sur demande Sur demande Sur demande |
| Type de bien |
| Local commercial |
| Aménagement |
| - |
| Disponible |
| Maintenant |
1er étage, bureau Suite 115A
| Surface |
| 124 m² |
| Durée |
| Négociable |
| Loyer |
| Sur demande Sur demande Sur demande Sur demande |
| Type de bien |
| Local commercial |
| Aménagement |
| - |
| Disponible |
| Maintenant |
1er étage, bureau Suite 130
| Surface |
| 488 m² |
| Durée |
| Négociable |
| Loyer |
| Sur demande Sur demande Sur demande Sur demande |
| Type de bien |
| Local commercial |
| Aménagement |
| - |
| Disponible |
| Maintenant |
1er étage, bureau Suite 140
| Surface |
| 313 m² |
| Durée |
| Négociable |
| Loyer |
| Sur demande Sur demande Sur demande Sur demande |
| Type de bien |
| Local commercial |
| Aménagement |
| - |
| Disponible |
| Maintenant |
1er étage, bureau Suite 105
| Surface | 330 m² |
| Durée | Négociable |
| Loyer | Sur demande |
| Type de bien | Local commercial |
| Aménagement | - |
| Disponible | Maintenant |
Restaurant Space • Entrance directly from valet • Newly installed grease trap
- Restaurant Space
- Entrance directly from valet
- Newly installed grease trap
1er étage, bureau Suite 115A
| Surface | 124 m² |
| Durée | Négociable |
| Loyer | Sur demande |
| Type de bien | Local commercial |
| Aménagement | - |
| Disponible | Maintenant |
Café / 2nd Gen. Restaurant • Located next to building lobby • Ideal restaurant/café space • Grease trap and hood installed • Next to elevator landing for tower
- Café / 2nd Gen. Restaurant
- Located next to building lobby
- Ideal restaurant/café space
- Grease trap and hood installed
- Next to elevator landing for tower
1er étage, bureau Suite 130
| Surface | 488 m² |
| Durée | Négociable |
| Loyer | Sur demande |
| Type de bien | Local commercial |
| Aménagement | - |
| Disponible | Maintenant |
Office / Retail Space • Currently built out as an office space • Ideal for office, retail or medical spa • Can be split into two
- Office / Retail Space
- Currently built out as an office space
- Ideal for office, retail or medical spa
- Can be split into two
1er étage, bureau Suite 140
| Surface | 313 m² |
| Durée | Négociable |
| Loyer | Sur demande |
| Type de bien | Local commercial |
| Aménagement | - |
| Disponible | Maintenant |
2nd Gen Restaurant • Grease trap in place • Can be split into two
- Grease trap in place
- Can be split into two
Plan du site
Occupants
- Étage
- Nom de l’occupant
- Secteur d’activité
- 1er
- Berkshire Hathaway Homeservices EWM Realty
- Finance et assurances
- 2e
- Divisadero Street Capital
- Gestion de sociétés et d’entreprises
- 4e
- JSK Partnership, LLC
- Immobilier
- 2e
- Morabito
- Immobilier
- 5e
- Morgan Stanley
- Gestion de sociétés et d’entreprises
- 5e
- PennantPark
- Finance et assurances
- 6e
- RIVANI
- Immobilier
- 3e
- The Agatston Center
- Santé et assistance sociale
- 1er
- West Elm
- Enseigne
- 1er
- Williams Sonoma
- Enseigne
Informations sur l’immeuble
Aperçu du bien
The Rivani Miami Beach is a luxury Class X office development located at 1691 Michigan Ave, offering high-end workspace designed to integrate productivity, wellness, and hospitality. The building features concierge services, valet parking, wellness and fitness amenities, spa facilities, conference space, and curated food and beverage offerings, creating an elevated environment for modern professionals in the heart of Miami Beach.
- Accès contrôlé
- Concierge
- Installations de conférences
- Centre de fitness
- Service de restauration
- Restaurant
- Système de sécurité
- Signalisation
- Lumière naturelle
- Climatisation
- Agents de sécurité sur place
Principaux commerces à proximité
Présenté par
The Rivani Retail | For Lease | 1691 Michigan Ave
Hum, une erreur s’est produite lors de l’envoi de votre message. Veuillez réessayer.
Merci ! Votre message a été envoyé.










