Votre e-mail a été envoyé.
Certaines informations ont été traduites automatiquement.
Informations principales
- Corner building located at 17th and L Street
- Immediate Farragut North Metro access
- New state-of-the-art conference facility with 50-person capacity
- Brand new lobby
- Newly windowed fitness center
Tous les espaces disponibles(13)
Afficher les loyers en
- Espace
- Surface
- Durée
- Loyer
- Type de bien
- Aménagement
- Disponible
Retail space available immediately.
- Contigu et aligné avec d’autres locaux commerciaux
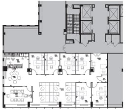
North-East corner of building L Street frontage Fully renovated common area Two Offices Breakroom/ Pantry Data Closet with Built-In Shelving Large Open Work Space
- Le loyer comprend les services publics, les services de l’immeuble et les frais immobiliers.
- Plan d’étage avec bureaux fermés
- Entièrement aménagé comme Bureau standard
Second generation, furnished space.
- Le loyer comprend les services publics, les services de l’immeuble et les frais immobiliers.
Newly renovated common area Shell space located in South-West corner of building
- Entièrement aménagé comme Bureau standard
- Plan d’étage avec bureaux fermés
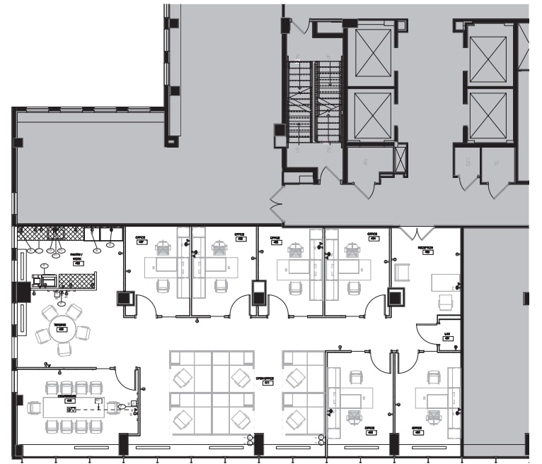
Excellent corner window at 17th and L. Available immediately. 6 windowed offices, 1 interior. Conference, pantry, reception, open work area.
- Le loyer comprend les services publics, les services de l’immeuble et les frais immobiliers.
- Espace en excellent état
- 7 bureaux privés
- Entièrement aménagé comme Bureau standard
- Plan d’étage avec bureaux fermés
- Le loyer comprend les services publics, les services de l’immeuble et les frais immobiliers.
- Plan d’étage avec bureaux fermés
- Entièrement aménagé comme Bureau standard
Built-out suite in excellent condition. Fully furnished. Front of building.
- Le loyer comprend les services publics, les services de l’immeuble et les frais immobiliers.
- Principalement open space
- Entièrement aménagé comme Bureau standard
- 6 bureaux privés
Shell condition Excellent Window Line along L street Elevator Exposure Flexible demise scenarios available
- Le loyer comprend les services publics, les services de l’immeuble et les frais immobiliers.
- Espace en excellent état
- Disposition open space
- Le loyer comprend les services publics, les services de l’immeuble et les frais immobiliers.
- Principalement open space
- Entièrement aménagé comme Bureau standard
Full floor opportunity at just 13,000 SF. Full window line along L and 17th with incredible corner view. Flexible demise.
- Le loyer comprend les services publics, les services de l’immeuble et les frais immobiliers.
Located on South side of building 3 offices and conference Large Pantry
- Entièrement aménagé comme Bureau standard
- 1 salle de conférence
- 3 bureaux privés
Direct Elevator Exposure North Facing Suite With Great Window Line Overlooking L Street
- Le loyer comprend les services publics, les services de l’immeuble et les frais immobiliers.
- Plan d’étage avec bureaux fermés
- Entièrement aménagé comme Bureau standard
- Espace en excellent état
| Espace | Surface | Durée | Loyer | Type de bien | Aménagement | Disponible |
| 1er étage, bureau RTL-4 | 217 m² | Négociable | Sur demande Sur demande Sur demande Sur demande | Local commercial | Espace brut | Maintenant |
| 2e étage, bureau 210 | 150 m² | Négociable | 423,78 € /m²/an 35,31 € /m²/mois 63 386 € /an 5 282 € /mois | Bureau | Construction achevée | Maintenant |
| 3e étage, bureau 306 | 253 m² | Négociable | 460,63 € /m²/an 38,39 € /m²/mois 116 398 € /an 9 700 € /mois | Bureau | - | Maintenant |
| 4e étage, bureau 440 | 203 m² | Négociable | Sur demande Sur demande Sur demande Sur demande | Bureau | Construction achevée | Maintenant |
| 4e étage, bureau 460 | 333 m² | Négociable | 479,05 € /m²/an 39,92 € /m²/mois 159 418 € /an 13 285 € /mois | Bureau | Construction achevée | Maintenant |
| 5e étage, bureau 509 | 71 m² | Négociable | Sur demande Sur demande Sur demande Sur demande | Bureau | Construction achevée | Maintenant |
| 5e étage, bureau 513 | 77 m² | Négociable | 442,20 € /m²/an 36,85 € /m²/mois 34 016 € /an 2 835 € /mois | Bureau | Construction achevée | Maintenant |
| 6e étage, bureau 605 | 275 m² | Négociable | 442,20 € /m²/an 36,85 € /m²/mois 121 520 € /an 10 127 € /mois | Bureau | Construction achevée | Maintenant |
| 7e étage, bureau 700 | 528 m² | Négociable | 442,20 € /m²/an 36,85 € /m²/mois 233 385 € /an 19 449 € /mois | Bureau | Espace brut | Maintenant |
| 8e étage, bureau 801 | 466 m² | 5-10 Ans | 442,20 € /m²/an 36,85 € /m²/mois 206 148 € /an 17 179 € /mois | Bureau | Construction achevée | Maintenant |
| 9e étage, bureau 900 | 1 211 m² | Négociable | 460,63 € /m²/an 38,39 € /m²/mois 557 942 € /an 46 495 € /mois | Bureau | Espace brut | Maintenant |
| 10e étage, bureau 1010 | 164 m² | Négociable | Sur demande Sur demande Sur demande Sur demande | Bureau | Construction achevée | Maintenant |
| 10e étage, bureau 1020 | 111 m² | Négociable | 460,63 € /m²/an 38,39 € /m²/mois 51 095 € /an 4 258 € /mois | Bureau | Construction achevée | 90 jours |
1er étage, bureau RTL-4
| Surface |
| 217 m² |
| Durée |
| Négociable |
| Loyer |
| Sur demande Sur demande Sur demande Sur demande |
| Type de bien |
| Local commercial |
| Aménagement |
| Espace brut |
| Disponible |
| Maintenant |
2e étage, bureau 210
| Surface |
| 150 m² |
| Durée |
| Négociable |
| Loyer |
| 423,78 € /m²/an 35,31 € /m²/mois 63 386 € /an 5 282 € /mois |
| Type de bien |
| Bureau |
| Aménagement |
| Construction achevée |
| Disponible |
| Maintenant |
3e étage, bureau 306
| Surface |
| 253 m² |
| Durée |
| Négociable |
| Loyer |
| 460,63 € /m²/an 38,39 € /m²/mois 116 398 € /an 9 700 € /mois |
| Type de bien |
| Bureau |
| Aménagement |
| - |
| Disponible |
| Maintenant |
4e étage, bureau 440
| Surface |
| 203 m² |
| Durée |
| Négociable |
| Loyer |
| Sur demande Sur demande Sur demande Sur demande |
| Type de bien |
| Bureau |
| Aménagement |
| Construction achevée |
| Disponible |
| Maintenant |
4e étage, bureau 460
| Surface |
| 333 m² |
| Durée |
| Négociable |
| Loyer |
| 479,05 € /m²/an 39,92 € /m²/mois 159 418 € /an 13 285 € /mois |
| Type de bien |
| Bureau |
| Aménagement |
| Construction achevée |
| Disponible |
| Maintenant |
5e étage, bureau 509
| Surface |
| 71 m² |
| Durée |
| Négociable |
| Loyer |
| Sur demande Sur demande Sur demande Sur demande |
| Type de bien |
| Bureau |
| Aménagement |
| Construction achevée |
| Disponible |
| Maintenant |
5e étage, bureau 513
| Surface |
| 77 m² |
| Durée |
| Négociable |
| Loyer |
| 442,20 € /m²/an 36,85 € /m²/mois 34 016 € /an 2 835 € /mois |
| Type de bien |
| Bureau |
| Aménagement |
| Construction achevée |
| Disponible |
| Maintenant |
6e étage, bureau 605
| Surface |
| 275 m² |
| Durée |
| Négociable |
| Loyer |
| 442,20 € /m²/an 36,85 € /m²/mois 121 520 € /an 10 127 € /mois |
| Type de bien |
| Bureau |
| Aménagement |
| Construction achevée |
| Disponible |
| Maintenant |
7e étage, bureau 700
| Surface |
| 528 m² |
| Durée |
| Négociable |
| Loyer |
| 442,20 € /m²/an 36,85 € /m²/mois 233 385 € /an 19 449 € /mois |
| Type de bien |
| Bureau |
| Aménagement |
| Espace brut |
| Disponible |
| Maintenant |
8e étage, bureau 801
| Surface |
| 466 m² |
| Durée |
| 5-10 Ans |
| Loyer |
| 442,20 € /m²/an 36,85 € /m²/mois 206 148 € /an 17 179 € /mois |
| Type de bien |
| Bureau |
| Aménagement |
| Construction achevée |
| Disponible |
| Maintenant |
9e étage, bureau 900
| Surface |
| 1 211 m² |
| Durée |
| Négociable |
| Loyer |
| 460,63 € /m²/an 38,39 € /m²/mois 557 942 € /an 46 495 € /mois |
| Type de bien |
| Bureau |
| Aménagement |
| Espace brut |
| Disponible |
| Maintenant |
10e étage, bureau 1010
| Surface |
| 164 m² |
| Durée |
| Négociable |
| Loyer |
| Sur demande Sur demande Sur demande Sur demande |
| Type de bien |
| Bureau |
| Aménagement |
| Construction achevée |
| Disponible |
| Maintenant |
10e étage, bureau 1020
| Surface |
| 111 m² |
| Durée |
| Négociable |
| Loyer |
| 460,63 € /m²/an 38,39 € /m²/mois 51 095 € /an 4 258 € /mois |
| Type de bien |
| Bureau |
| Aménagement |
| Construction achevée |
| Disponible |
| 90 jours |
1er étage, bureau RTL-4
| Surface | 217 m² |
| Durée | Négociable |
| Loyer | Sur demande |
| Type de bien | Local commercial |
| Aménagement | Espace brut |
| Disponible | Maintenant |
Retail space available immediately.
- Contigu et aligné avec d’autres locaux commerciaux
2e étage, bureau 210
| Surface | 150 m² |
| Durée | Négociable |
| Loyer | 423,78 € /m²/an |
| Type de bien | Bureau |
| Aménagement | Construction achevée |
| Disponible | Maintenant |
North-East corner of building L Street frontage Fully renovated common area Two Offices Breakroom/ Pantry Data Closet with Built-In Shelving Large Open Work Space
- Le loyer comprend les services publics, les services de l’immeuble et les frais immobiliers.
- Entièrement aménagé comme Bureau standard
- Plan d’étage avec bureaux fermés
3e étage, bureau 306
| Surface | 253 m² |
| Durée | Négociable |
| Loyer | 460,63 € /m²/an |
| Type de bien | Bureau |
| Aménagement | - |
| Disponible | Maintenant |
Second generation, furnished space.
- Le loyer comprend les services publics, les services de l’immeuble et les frais immobiliers.
4e étage, bureau 440
| Surface | 203 m² |
| Durée | Négociable |
| Loyer | Sur demande |
| Type de bien | Bureau |
| Aménagement | Construction achevée |
| Disponible | Maintenant |
Newly renovated common area Shell space located in South-West corner of building
- Entièrement aménagé comme Bureau standard
- Plan d’étage avec bureaux fermés
4e étage, bureau 460
| Surface | 333 m² |
| Durée | Négociable |
| Loyer | 479,05 € /m²/an |
| Type de bien | Bureau |
| Aménagement | Construction achevée |
| Disponible | Maintenant |
Excellent corner window at 17th and L. Available immediately. 6 windowed offices, 1 interior. Conference, pantry, reception, open work area.
- Le loyer comprend les services publics, les services de l’immeuble et les frais immobiliers.
- 7 bureaux privés
- Espace en excellent état
5e étage, bureau 509
| Surface | 71 m² |
| Durée | Négociable |
| Loyer | Sur demande |
| Type de bien | Bureau |
| Aménagement | Construction achevée |
| Disponible | Maintenant |
- Entièrement aménagé comme Bureau standard
- Plan d’étage avec bureaux fermés
5e étage, bureau 513
| Surface | 77 m² |
| Durée | Négociable |
| Loyer | 442,20 € /m²/an |
| Type de bien | Bureau |
| Aménagement | Construction achevée |
| Disponible | Maintenant |
- Le loyer comprend les services publics, les services de l’immeuble et les frais immobiliers.
- Entièrement aménagé comme Bureau standard
- Plan d’étage avec bureaux fermés
6e étage, bureau 605
| Surface | 275 m² |
| Durée | Négociable |
| Loyer | 442,20 € /m²/an |
| Type de bien | Bureau |
| Aménagement | Construction achevée |
| Disponible | Maintenant |
Built-out suite in excellent condition. Fully furnished. Front of building.
- Le loyer comprend les services publics, les services de l’immeuble et les frais immobiliers.
- Entièrement aménagé comme Bureau standard
- Principalement open space
- 6 bureaux privés
7e étage, bureau 700
| Surface | 528 m² |
| Durée | Négociable |
| Loyer | 442,20 € /m²/an |
| Type de bien | Bureau |
| Aménagement | Espace brut |
| Disponible | Maintenant |
Shell condition Excellent Window Line along L street Elevator Exposure Flexible demise scenarios available
- Le loyer comprend les services publics, les services de l’immeuble et les frais immobiliers.
- Disposition open space
- Espace en excellent état
8e étage, bureau 801
| Surface | 466 m² |
| Durée | 5-10 Ans |
| Loyer | 442,20 € /m²/an |
| Type de bien | Bureau |
| Aménagement | Construction achevée |
| Disponible | Maintenant |
- Le loyer comprend les services publics, les services de l’immeuble et les frais immobiliers.
- Entièrement aménagé comme Bureau standard
- Principalement open space
9e étage, bureau 900
| Surface | 1 211 m² |
| Durée | Négociable |
| Loyer | 460,63 € /m²/an |
| Type de bien | Bureau |
| Aménagement | Espace brut |
| Disponible | Maintenant |
Full floor opportunity at just 13,000 SF. Full window line along L and 17th with incredible corner view. Flexible demise.
- Le loyer comprend les services publics, les services de l’immeuble et les frais immobiliers.
10e étage, bureau 1010
| Surface | 164 m² |
| Durée | Négociable |
| Loyer | Sur demande |
| Type de bien | Bureau |
| Aménagement | Construction achevée |
| Disponible | Maintenant |
Located on South side of building 3 offices and conference Large Pantry
- Entièrement aménagé comme Bureau standard
- 3 bureaux privés
- 1 salle de conférence
10e étage, bureau 1020
| Surface | 111 m² |
| Durée | Négociable |
| Loyer | 460,63 € /m²/an |
| Type de bien | Bureau |
| Aménagement | Construction achevée |
| Disponible | 90 jours |
Direct Elevator Exposure North Facing Suite With Great Window Line Overlooking L Street
- Le loyer comprend les services publics, les services de l’immeuble et les frais immobiliers.
- Entièrement aménagé comme Bureau standard
- Plan d’étage avec bureaux fermés
- Espace en excellent état
Aperçu du bien
Construit en 1967 et rénové en 1996, ce bâtiment d'angle possède un tout nouveau lobby conçu par Wingate Hughes. Des installations de conférence et de remise en forme récemment livrées sont à la disposition des locataires. Il se trouve à moins d'un pâté de maisons du métro Farragut North.
- Installations de conférences
- Centre de fitness
- Property Manager sur place
Informations sur l’immeuble
Présenté par
1660 L St NW
Hum, une erreur s’est produite lors de l’envoi de votre message. Veuillez réessayer.
Merci ! Votre message a été envoyé.
































