Votre e-mail a été envoyé.
Tri-City Medical Arts Building 161 Thunder Dr Bureaux/Médical | 60–598 m² | À louer | Vista, CA 92083



Certaines informations ont été traduites automatiquement.
Informations principales
- Prominent building signage opportunities enhance visibility within the North County San Diego healthcare market.
- Easy access to major transportation routes, serving Vista, Oceanside, and the broader North County area.
Tous les espaces disponibles(5)
Afficher les loyers en
- Espace
- Surface
- Durée
- Loyer
- Type de bien
- Aménagement
- Disponible
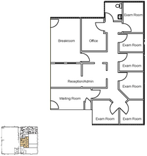
Suite 103 (Contiguous with Suite 106 - 4,214 SF) • Space Available: 1,531 SF • Lease Rate: Call for details • Lease Type: Call for details • Suite Description: 6 Exam Rooms. Private Office. Restroom. Breakroom. Waiting Room and Reception/Admin. Floor Plan: https://medwestrealty.com/wp-content/uploads/2023/09/103.png
- Entièrement aménagé comme Cabinet médical standard
- Espace en excellent état
- 1 bureau privé
- Peut être associé à un ou plusieurs espaces supplémentaires pour obtenir jusqu’à 391 m² d’espace adjacent.
Suite 104 • Space Available: 643 SF • Lease Rate: Call for details • Lease Type: Call for details • Suite Description: Waiting Room. In-Suite Restroom and 2 Exam Rooms. Floor Plan: https://medwestrealty.com/wp-content/uploads/2023/09/Suite-104.png
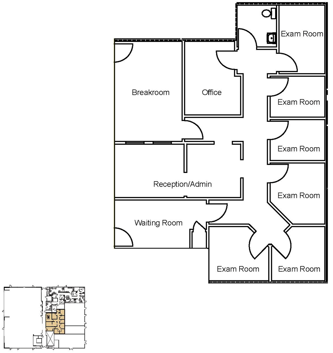
Suite 106 (Contiguous with Suite 108 - 11,730 RSF) • Space Available: 2,683 SF • Lease Rate: Call for details • Lease Type: Call for details • Suite Description: Waiting Room. Reception/Admin. 6 Exam Rooms. 2 Doctor’s Offices. 2 In-Suite Restrooms. Breakroom and 2 Storage Rooms. Floor Plan: https://medwestrealty.com/wp-content/uploads/2023/09/Suite-106.jpg Virtual Tour: https://my.matterport.com/show/?m=xeKmdTV3zDA
- Partiellement aménagé comme Cabinet médical standard
- Peut être associé à un ou plusieurs espaces supplémentaires pour obtenir jusqu’à 391 m² d’espace adjacent.
- Toilettes privées
- Plan d’étage avec bureaux fermés
- Aire de réception
- High Visibility
Suite 203 • Space Available: 812 SF • Lease Rate: Call for details • Lease Type: Call for details • Suite Description: Open Build-out. Floor Plan: https://medwestrealty.com/wp-content/uploads/2023/09/Suite-203.jpg
- Entièrement aménagé comme Cabinet médical standard
- Espace en excellent état
- Disposition open space
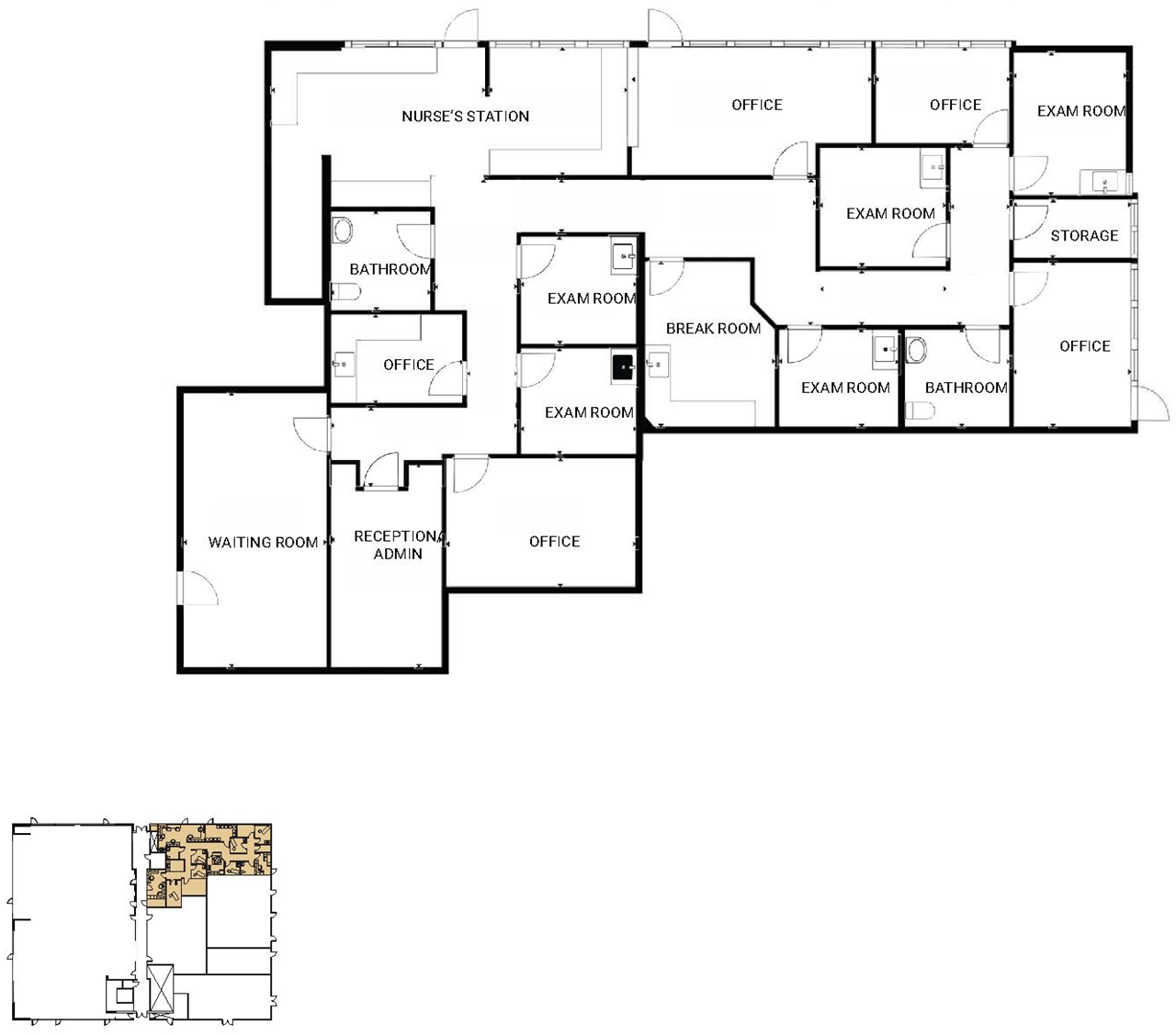
Suite 209 • Space Available: 764 SF • Lease Rate: Call for details • Lease Type: Call for details • Suite Description: Waiting Room. Reception/Admin. 3 Exam Rooms. In-Suite Restroom, and Nurses’ Station. Floor Plan: https://medwestrealty.com/wp-content/uploads/2023/09/Suite-209-scaled.png Virtual Tour: https://my.matterport.com/show/?m=Q7fn5GBYHsB
- Entièrement aménagé comme Cabinet médical standard
- Espace en excellent état
- Plan d’étage avec bureaux fermés
| Espace | Surface | Durée | Loyer | Type de bien | Aménagement | Disponible |
| 1er étage, bureau 103 | 142 m² | Négociable | Sur demande Sur demande Sur demande Sur demande | Bureaux/Médical | Construction achevée | Maintenant |
| 1er étage, bureau 104 | 60 m² | Négociable | Sur demande Sur demande Sur demande Sur demande | Bureaux/Médical | - | Maintenant |
| 1er étage, bureau 106 | 249 m² | Négociable | Sur demande Sur demande Sur demande Sur demande | Bureaux/Médical | Construction partielle | Maintenant |
| 2e étage, bureau 203 | 75 m² | Négociable | Sur demande Sur demande Sur demande Sur demande | Bureaux/Médical | Construction achevée | Maintenant |
| 2e étage, bureau 209 | 71 m² | Négociable | Sur demande Sur demande Sur demande Sur demande | Bureaux/Médical | Construction achevée | Maintenant |
1er étage, bureau 103
| Surface |
| 142 m² |
| Durée |
| Négociable |
| Loyer |
| Sur demande Sur demande Sur demande Sur demande |
| Type de bien |
| Bureaux/Médical |
| Aménagement |
| Construction achevée |
| Disponible |
| Maintenant |
1er étage, bureau 104
| Surface |
| 60 m² |
| Durée |
| Négociable |
| Loyer |
| Sur demande Sur demande Sur demande Sur demande |
| Type de bien |
| Bureaux/Médical |
| Aménagement |
| - |
| Disponible |
| Maintenant |
1er étage, bureau 106
| Surface |
| 249 m² |
| Durée |
| Négociable |
| Loyer |
| Sur demande Sur demande Sur demande Sur demande |
| Type de bien |
| Bureaux/Médical |
| Aménagement |
| Construction partielle |
| Disponible |
| Maintenant |
2e étage, bureau 203
| Surface |
| 75 m² |
| Durée |
| Négociable |
| Loyer |
| Sur demande Sur demande Sur demande Sur demande |
| Type de bien |
| Bureaux/Médical |
| Aménagement |
| Construction achevée |
| Disponible |
| Maintenant |
2e étage, bureau 209
| Surface |
| 71 m² |
| Durée |
| Négociable |
| Loyer |
| Sur demande Sur demande Sur demande Sur demande |
| Type de bien |
| Bureaux/Médical |
| Aménagement |
| Construction achevée |
| Disponible |
| Maintenant |
1er étage, bureau 103
| Surface | 142 m² |
| Durée | Négociable |
| Loyer | Sur demande |
| Type de bien | Bureaux/Médical |
| Aménagement | Construction achevée |
| Disponible | Maintenant |
Suite 103 (Contiguous with Suite 106 - 4,214 SF) • Space Available: 1,531 SF • Lease Rate: Call for details • Lease Type: Call for details • Suite Description: 6 Exam Rooms. Private Office. Restroom. Breakroom. Waiting Room and Reception/Admin. Floor Plan: https://medwestrealty.com/wp-content/uploads/2023/09/103.png
- Entièrement aménagé comme Cabinet médical standard
- 1 bureau privé
- Espace en excellent état
- Peut être associé à un ou plusieurs espaces supplémentaires pour obtenir jusqu’à 391 m² d’espace adjacent.
1er étage, bureau 104
| Surface | 60 m² |
| Durée | Négociable |
| Loyer | Sur demande |
| Type de bien | Bureaux/Médical |
| Aménagement | - |
| Disponible | Maintenant |
Suite 104 • Space Available: 643 SF • Lease Rate: Call for details • Lease Type: Call for details • Suite Description: Waiting Room. In-Suite Restroom and 2 Exam Rooms. Floor Plan: https://medwestrealty.com/wp-content/uploads/2023/09/Suite-104.png
1er étage, bureau 106
| Surface | 249 m² |
| Durée | Négociable |
| Loyer | Sur demande |
| Type de bien | Bureaux/Médical |
| Aménagement | Construction partielle |
| Disponible | Maintenant |
Suite 106 (Contiguous with Suite 108 - 11,730 RSF) • Space Available: 2,683 SF • Lease Rate: Call for details • Lease Type: Call for details • Suite Description: Waiting Room. Reception/Admin. 6 Exam Rooms. 2 Doctor’s Offices. 2 In-Suite Restrooms. Breakroom and 2 Storage Rooms. Floor Plan: https://medwestrealty.com/wp-content/uploads/2023/09/Suite-106.jpg Virtual Tour: https://my.matterport.com/show/?m=xeKmdTV3zDA
- Partiellement aménagé comme Cabinet médical standard
- Plan d’étage avec bureaux fermés
- Peut être associé à un ou plusieurs espaces supplémentaires pour obtenir jusqu’à 391 m² d’espace adjacent.
- Aire de réception
- Toilettes privées
- High Visibility
2e étage, bureau 203
| Surface | 75 m² |
| Durée | Négociable |
| Loyer | Sur demande |
| Type de bien | Bureaux/Médical |
| Aménagement | Construction achevée |
| Disponible | Maintenant |
Suite 203 • Space Available: 812 SF • Lease Rate: Call for details • Lease Type: Call for details • Suite Description: Open Build-out. Floor Plan: https://medwestrealty.com/wp-content/uploads/2023/09/Suite-203.jpg
- Entièrement aménagé comme Cabinet médical standard
- Disposition open space
- Espace en excellent état
2e étage, bureau 209
| Surface | 71 m² |
| Durée | Négociable |
| Loyer | Sur demande |
| Type de bien | Bureaux/Médical |
| Aménagement | Construction achevée |
| Disponible | Maintenant |
Suite 209 • Space Available: 764 SF • Lease Rate: Call for details • Lease Type: Call for details • Suite Description: Waiting Room. Reception/Admin. 3 Exam Rooms. In-Suite Restroom, and Nurses’ Station. Floor Plan: https://medwestrealty.com/wp-content/uploads/2023/09/Suite-209-scaled.png Virtual Tour: https://my.matterport.com/show/?m=Q7fn5GBYHsB
- Entièrement aménagé comme Cabinet médical standard
- Plan d’étage avec bureaux fermés
- Espace en excellent état
Aperçu du bien
Bâtiment des arts médicaux Tri-City 161 Thunder Drive, Vista, CA 92083 Le bâtiment Tri City Medical Arts est situé au 161 Thunder Drive à Vista, en Californie. Cet immeuble de bureaux médicaux offre plus de 30 000 pieds carrés de bureaux médicaux de premier ordre en face du célèbre centre médical Tri-City. Le bâtiment comprend plusieurs suites médicales allant de 800 pieds carrés à 8 600 pieds carrés avec de nombreuses fenêtres, de multiples options d'entrée et de grands plans d'étage ouverts, offrant un environnement idéal pour les cabinets médicaux. Vista et Oceanside, qui font partie de la région animée du nord du comté de San Diego, sont connus pour leur population croissante de jeunes familles et de retraités, créant une forte demande de services de santé de qualité. La région du nord du comté de San Diego continue de connaître une croissance significative du secteur médical, ce qui rend cet endroit très prisé par les prestataires de soins de santé. Grâce à son emplacement stratégique, à ses équipements modernes et à la proximité d'un important centre médical, le 161 Thunder Drive est bien placé pour répondre aux besoins d'une population croissante et diversifiée. ------------------------ Caractéristiques de la propriété : EMPLACEMENT DE CHOIX • Le bâtiment est situé en face du centre médical Tri-City, situé au cœur de Vista, en Californie VISIBILITÉ • Création d'une signalisation haut de gamme pour renforcer votre marque dans la communauté du nord du comté de San Diego VASTE ESPACE DE STATIONNEMENT • Grand parking de type commercial avec possibilité de se déplacer en voiture et sans rendez-vous pour les patients et le personnel ------------------------ 4 suites disponibles : ------------------------ Suite 106 • Espace disponible : 4 500 pieds carrés — 8 647 pieds carrés • Taux de location : 2,40 $/pied carré • Type de bail : NNN • Description de la suite : Shell Space. Prêt à être personnalisé par le locataire. ------------------------ Suite 108 • Espace disponible : 8 647 pieds carrés • Taux de location : 2,40 $/pied carré • Type de bail : NNN • Description de la suite : Shell Space. Prêt à être personnalisé par le locataire. ------------------------ Suite 203 • Espace disponible : 812 pieds carrés • Taux de location : 2,40 $/pied carré • Type de bail : NNN • Description de la suite : contiguë à la suite 214 jusqu'à 3 488 pieds carrés Construction ouverte. ------------------------ Suite 214 • Espace disponible : 2 674 pieds carrés • Taux de location : 2,40 $/pied carré • Type de bail : NNN • Description de la suite : contiguë à la suite 203 jusqu'à 3 486 pieds carrés Emplacement au deuxième étage avec une fenestration abondante. Plusieurs options d'entrée. 2 toilettes privatives. Grand plan d'étage ouvert prêt pour une configuration personnalisée. Voir le plan d'étage : https://medicalofficeproperty.com/wp-content/uploads/2023/09/161ThunderDrSuite214_rqrzgy8pg09whhp2rq7krw96d.pdf ------------------------ PLUS DE DÉTAILS : https://medicalofficeproperty.com/property/161-thunder-drive-vista-ca/ TÉLÉCHARGER LA BROCHURE : https://medwestrealty.com/wp-content/uploads/2023/09/MW_ShareMD161-Thunder-Dr-LB8.1-KH.pdf
- Signalisation
Informations sur l’immeuble
Présenté par
Tri-City Medical Arts Building | 161 Thunder Dr
Hum, une erreur s’est produite lors de l’envoi de votre message. Veuillez réessayer.
Merci ! Votre message a été envoyé.










