Votre e-mail a été envoyé.
158-164 Main St Local commercial | 223 m² | À louer | Northampton, MA 01060



Certaines informations ont été traduites automatiquement.
Informations principales
- Trafic piétonnier intense
- Emplacement au centre-ville
Tous les espace disponibles(1)
Afficher les loyers en
- Espace
- Surface
- Durée
- Loyer
- Type de bien
- Aménagement
- Disponible
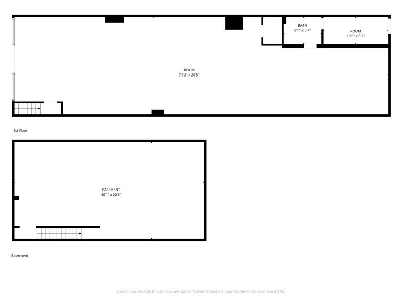
First floor retail space in a prime downtown location situated between Thornes Marketplace and 25 Central. The foot traffic from the crosswalk leads right to the unit's two large display windows! Already in white box form, the unit consists of 1800 square feet on the first floor with an additional 600 square feet of basement storage fitted with shelving. Features include a dual minisplit, HVAC system, sprinkler system, overhead lighting, and an employee restroom in the back. Tenant responsible for utilities. The space can be sub-dividable for two compatible businesses! Book your showing today!
- Loyer annoncé plus part proportionnelle des services publics
- Espace en excellent état
- Emplacement au centre-ville, excellente visibilité,
- Contigu et aligné avec d’autres locaux commerciaux
- Ventilation et chauffage centraux
- Espace commercial au rez-de-chaussée
| Espace | Surface | Durée | Loyer | Type de bien | Aménagement | Disponible |
| 1er étage | 223 m² | Négociable | 183,61 € /m²/an 15,30 € /m²/mois 40 939 € /an 3 412 € /mois | Local commercial | Espace brut | Maintenant |
1er étage
| Surface |
| 223 m² |
| Durée |
| Négociable |
| Loyer |
| 183,61 € /m²/an 15,30 € /m²/mois 40 939 € /an 3 412 € /mois |
| Type de bien |
| Local commercial |
| Aménagement |
| Espace brut |
| Disponible |
| Maintenant |
1er étage
| Surface | 223 m² |
| Durée | Négociable |
| Loyer | 183,61 € /m²/an |
| Type de bien | Local commercial |
| Aménagement | Espace brut |
| Disponible | Maintenant |
First floor retail space in a prime downtown location situated between Thornes Marketplace and 25 Central. The foot traffic from the crosswalk leads right to the unit's two large display windows! Already in white box form, the unit consists of 1800 square feet on the first floor with an additional 600 square feet of basement storage fitted with shelving. Features include a dual minisplit, HVAC system, sprinkler system, overhead lighting, and an employee restroom in the back. Tenant responsible for utilities. The space can be sub-dividable for two compatible businesses! Book your showing today!
- Loyer annoncé plus part proportionnelle des services publics
- Contigu et aligné avec d’autres locaux commerciaux
- Espace en excellent état
- Ventilation et chauffage centraux
- Emplacement au centre-ville, excellente visibilité,
- Espace commercial au rez-de-chaussée
Informations sur l’immeuble
Aperçu du bien
First floor retail space in a prime downtown location situated between Thornes Marketplace and 25 Central. The foot traffic from the crosswalk leads right to the unit's two large display windows! Already in white box form, the unit consists of 1800 square feet on the first floor with an additional 600 square feet of basement storage fitted with shelving. Features include a dual minisplit, HVAC system, sprinkler system, overhead lighting, and an employee restroom in the back. Tenant responsible for utilities. The space can be sub-dividable for two compatible businesses! Book your showing today!
Principaux commerces à proximité
Présenté par
158-164 Main St
Hum, une erreur s’est produite lors de l’envoi de votre message. Veuillez réessayer.
Merci ! Votre message a été envoyé.

