Votre e-mail a été envoyé.
Sun Tower 1550 Bedford Hwy Bureau | 12–300 m² | 4 étoiles | À louer | Bedford, NS B4A 1E6



Certaines informations ont été traduites automatiquement.
Informations principales
- Prime Location: Sun Tower sits at the bustling intersection of Bedford Highway and Dartmouth Road.
- Excellent Exposure: Your business benefits from maximum visibility in Bedford.
- First-Class Office Space: Enjoy a premium workspace with high-quality finishes.
- Convenient Access: Easily reachable via Bi-Centennial Highway, Burnside, and Bedford Highway.
Tous les espaces disponibles(4)
Afficher les loyers en
- Espace
- Surface
- Durée
- Loyer
- Type de bien
- Aménagement
- Disponible
Unit 210-15 at Sun Tower offers approximately 130 sq. ft. of efficient office space in a prime downtown Bedford location. Featuring one private office, this compact suite is ideal for individual professionals or small businesses seeking a well-located workspace within a modern office environment. Available June 2026. A great opportunity to secure a private, professional office space in one of Bedford’s most accessible commercial buildings. Call or email Haley for a viewing and to hear more about our leasing opportunities. (902) 580-0414 | leasing@universalgroup.ca
- 1 bureau privé
- Fully air-conditioned
- Heat and smoke detectors
- Underground and surface parking
- One private office
- Emergency lighting
- Two passenger elevators serving all floors
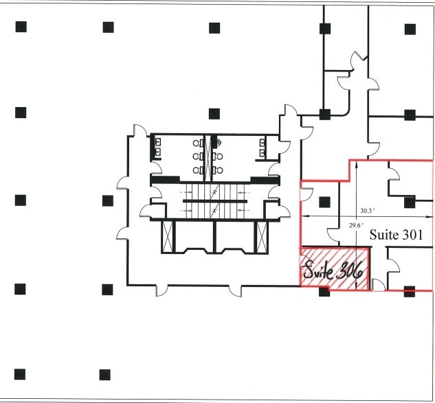
Unit 301 at Sun Tower offers approximately 819 SF of premium office space within a modern eight-storey office building in downtown Bedford. This unit is ideally suited for professional or service-based tenants seeking a well-designed workspace with two private offices and abundant natural light. This is an excellent opportunity to secure a bright, well-located office space in one of Bedford’s most prominent and accessible commercial buildings. Call or email Haley for a viewing and hear more about our leasing opportunities. (902) 580-0414 | leasing@universalgroup.ca
- Entièrement aménagé comme Bureau de services professionnels
- 2 bureaux privés
- Fully air-conditioned
- Heat and smoke detectors
- Underground and surface parking
- Disposition open space
- Two private offices
- Emergency lighting
- Two passenger elevators serving all floors
Unit 521 at Sun Tower offers approximately 1,125 sq. ft. of well-appointed office space in a prime downtown Bedford location. Featuring four private offices, this suite is ideal for professional users seeking an efficient layout within a modern and highly visible building. Parking: Free surface parking. Underground parking is available at $50/month. An excellent opportunity to secure professional office space in one of Bedford’s most accessible and visible commercial buildings. Call or email Haley for a viewing and to hear more about our leasing opportunities. (902) 580-0414 | leasing@universalgroup.ca
- 4 bureaux privés
- Fully air-conditioned
- Heat and smoke detectors
- Underground and surface parking
- Four private offices
- Emergency lighting
- Two passenger elevators serving all floors
Unit 700 at Sun Tower offers approximately 1,159 sq. ft. of well-appointed office space in a modern, first-class commercial building in the heart of downtown Bedford. Designed with functionality in mind, this suite includes three private offices, making it ideal for professional services, consulting firms, or administrative users seeking a polished and efficient workspace. The building’s striking exterior glass panels allow for abundant natural light while maximizing visibility and exposure for your business. This is an excellent opportunity to secure professional office space in one of Bedford’s most accessible and highly visible commercial buildings. Call or email Haley for a viewing and hear more about our leasing opportunities. (902) 580-0414 | leasing@universalgroup.ca
- Entièrement aménagé comme Bureau de services professionnels
- 3 bureaux privés
- Fully air-conditioned
- Heat and smoke detectors
- Underground and surface parking
- Disposition open space
- Three private offices
- Emergency lighting
- Two passenger elevators serving all floors
| Espace | Surface | Durée | Loyer | Type de bien | Aménagement | Disponible |
| 2e étage, bureau 210-15 | 12 m² | Négociable | 247,58 € /m²/an 20,63 € /m²/mois 2 990 € /an 249,18 € /mois | Bureau | - | Maintenant |
| 3e étage, bureau 301 | 76 m² | Négociable | 193,77 € /m²/an 16,15 € /m²/mois 14 744 € /an 1 229 € /mois | Bureau | Construction achevée | 30 jours |
| 5e étage, bureau 521 | 105 m² | Négociable | 193,77 € /m²/an 16,15 € /m²/mois 20 252 € /an 1 688 € /mois | Bureau | - | Maintenant |
| 7e étage, bureau 700 | 108 m² | Négociable | 193,77 € /m²/an 16,15 € /m²/mois 20 864 € /an 1 739 € /mois | Bureau | Construction achevée | 30 jours |
2e étage, bureau 210-15
| Surface |
| 12 m² |
| Durée |
| Négociable |
| Loyer |
| 247,58 € /m²/an 20,63 € /m²/mois 2 990 € /an 249,18 € /mois |
| Type de bien |
| Bureau |
| Aménagement |
| - |
| Disponible |
| Maintenant |
3e étage, bureau 301
| Surface |
| 76 m² |
| Durée |
| Négociable |
| Loyer |
| 193,77 € /m²/an 16,15 € /m²/mois 14 744 € /an 1 229 € /mois |
| Type de bien |
| Bureau |
| Aménagement |
| Construction achevée |
| Disponible |
| 30 jours |
5e étage, bureau 521
| Surface |
| 105 m² |
| Durée |
| Négociable |
| Loyer |
| 193,77 € /m²/an 16,15 € /m²/mois 20 252 € /an 1 688 € /mois |
| Type de bien |
| Bureau |
| Aménagement |
| - |
| Disponible |
| Maintenant |
7e étage, bureau 700
| Surface |
| 108 m² |
| Durée |
| Négociable |
| Loyer |
| 193,77 € /m²/an 16,15 € /m²/mois 20 864 € /an 1 739 € /mois |
| Type de bien |
| Bureau |
| Aménagement |
| Construction achevée |
| Disponible |
| 30 jours |
2e étage, bureau 210-15
| Surface | 12 m² |
| Durée | Négociable |
| Loyer | 247,58 € /m²/an |
| Type de bien | Bureau |
| Aménagement | - |
| Disponible | Maintenant |
Unit 210-15 at Sun Tower offers approximately 130 sq. ft. of efficient office space in a prime downtown Bedford location. Featuring one private office, this compact suite is ideal for individual professionals or small businesses seeking a well-located workspace within a modern office environment. Available June 2026. A great opportunity to secure a private, professional office space in one of Bedford’s most accessible commercial buildings. Call or email Haley for a viewing and to hear more about our leasing opportunities. (902) 580-0414 | leasing@universalgroup.ca
- 1 bureau privé
- One private office
- Fully air-conditioned
- Emergency lighting
- Heat and smoke detectors
- Two passenger elevators serving all floors
- Underground and surface parking
3e étage, bureau 301
| Surface | 76 m² |
| Durée | Négociable |
| Loyer | 193,77 € /m²/an |
| Type de bien | Bureau |
| Aménagement | Construction achevée |
| Disponible | 30 jours |
Unit 301 at Sun Tower offers approximately 819 SF of premium office space within a modern eight-storey office building in downtown Bedford. This unit is ideally suited for professional or service-based tenants seeking a well-designed workspace with two private offices and abundant natural light. This is an excellent opportunity to secure a bright, well-located office space in one of Bedford’s most prominent and accessible commercial buildings. Call or email Haley for a viewing and hear more about our leasing opportunities. (902) 580-0414 | leasing@universalgroup.ca
- Entièrement aménagé comme Bureau de services professionnels
- Disposition open space
- 2 bureaux privés
- Two private offices
- Fully air-conditioned
- Emergency lighting
- Heat and smoke detectors
- Two passenger elevators serving all floors
- Underground and surface parking
5e étage, bureau 521
| Surface | 105 m² |
| Durée | Négociable |
| Loyer | 193,77 € /m²/an |
| Type de bien | Bureau |
| Aménagement | - |
| Disponible | Maintenant |
Unit 521 at Sun Tower offers approximately 1,125 sq. ft. of well-appointed office space in a prime downtown Bedford location. Featuring four private offices, this suite is ideal for professional users seeking an efficient layout within a modern and highly visible building. Parking: Free surface parking. Underground parking is available at $50/month. An excellent opportunity to secure professional office space in one of Bedford’s most accessible and visible commercial buildings. Call or email Haley for a viewing and to hear more about our leasing opportunities. (902) 580-0414 | leasing@universalgroup.ca
- 4 bureaux privés
- Four private offices
- Fully air-conditioned
- Emergency lighting
- Heat and smoke detectors
- Two passenger elevators serving all floors
- Underground and surface parking
7e étage, bureau 700
| Surface | 108 m² |
| Durée | Négociable |
| Loyer | 193,77 € /m²/an |
| Type de bien | Bureau |
| Aménagement | Construction achevée |
| Disponible | 30 jours |
Unit 700 at Sun Tower offers approximately 1,159 sq. ft. of well-appointed office space in a modern, first-class commercial building in the heart of downtown Bedford. Designed with functionality in mind, this suite includes three private offices, making it ideal for professional services, consulting firms, or administrative users seeking a polished and efficient workspace. The building’s striking exterior glass panels allow for abundant natural light while maximizing visibility and exposure for your business. This is an excellent opportunity to secure professional office space in one of Bedford’s most accessible and highly visible commercial buildings. Call or email Haley for a viewing and hear more about our leasing opportunities. (902) 580-0414 | leasing@universalgroup.ca
- Entièrement aménagé comme Bureau de services professionnels
- Disposition open space
- 3 bureaux privés
- Three private offices
- Fully air-conditioned
- Emergency lighting
- Heat and smoke detectors
- Two passenger elevators serving all floors
- Underground and surface parking
Aperçu du bien
Sun Tower is an eight-storey modern office building totaling approximately 64,000 square feet where tenants benefit from a first-class environment with fine finishes throughout. The building’s striking exterior glass panels flood interior spaces with natural light while providing exceptional visibility and exposure for your business. Positioned at the intersection of the Bedford Highway and Dartmouth Road in Bedford, Sun Tower offers outstanding accessibility from major transportation routes including the Bi-Centennial Highway, Burnside, and the Bedford Highway. Its prime setting places businesses within a vibrant and well-connected commercial district. Parking: - Free surface parking - Underground parking available at $50/month
Informations sur l’immeuble
Présenté par
Sun Tower | 1550 Bedford Hwy
Hum, une erreur s’est produite lors de l’envoi de votre message. Veuillez réessayer.
Merci ! Votre message a été envoyé.






