Connectez-vous/S’inscrire
Votre e-mail a été envoyé.
Certaines informations ont été traduites automatiquement.
Caractéristiques
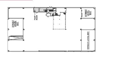
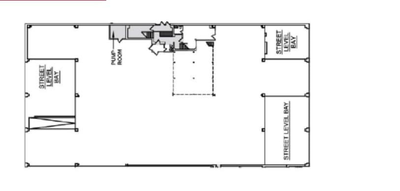
Hauteur libre
6,10 m
Espacement des colonnes
14,63 m x 10,67 m
Accès plain-pied
1
Portes de quai de chargement extérieures
9
Tous les espace disponibles(1)
Afficher les loyers en
- Espace
- Surface
- Durée
- Loyer
- Type de bien
- État
- Disponible
- Espace en sous-location disponible auprès de l’occupant actuel
- Espace en excellent état
- Comprend 28 m² d’espace de bureau dédié
| Espace | Surface | Durée | Loyer | Type de bien | État | Disponible |
| 1er étage | 1 804 m² | Avr. 2028 | Sur demande Sur demande Sur demande Sur demande | Industriel/Logistique | Construction achevée | Maintenant |
1er étage
| Surface |
| 1 804 m² |
| Durée |
| Avr. 2028 |
| Loyer |
| Sur demande Sur demande Sur demande Sur demande |
| Type de bien |
| Industriel/Logistique |
| État |
| Construction achevée |
| Disponible |
| Maintenant |
1 sur 1
Vidéos
Visite extérieure 3D Matterport
Visite 3D
Photos
Street view
Rue
Carte
1er étage
| Surface | 1 804 m² |
| Durée | Avr. 2028 |
| Loyer | Sur demande |
| Type de bien | Industriel/Logistique |
| État | Construction achevée |
| Disponible | Maintenant |
- Espace en sous-location disponible auprès de l’occupant actuel
- Comprend 28 m² d’espace de bureau dédié
- Espace en excellent état
Faits sur l’installation entrepôt
Surface de l’immeuble
4 266 m²
Surface du lot
0,32 ha
Année de construction
1994
Développement et livraisons
Maçonnerie
Eau
Ville
Égout
Ville
Chauffage
Gaz
Zonage
M1-1 - un quartier de fabrication légère qui permet des usages industriels, commerciaux et d'équipements collectifs
Occupants
- Étage
- Nom de l’occupant
- Secteur d’activité
- 3e
- General Noli
- Transport et entreposage
- 3e
- GIF Services
- Transport et entreposage
- 1er
- Hankyu Hanshin Express USA
- Transport et entreposage
- 1er
- SF Express
- Transport et entreposage
- 3e
- Teitelbaum Robert L Inc
- Construction
- 3e
- Unique Logistics
- Transport et entreposage
1 1
1 sur 13
Vidéos
Visite extérieure 3D Matterport
Visite 3D
Photos
Street view
Rue
Carte
1 sur 1
Présenté par
154-09 146th Ave
Vous êtes déjà membre ? Connectez-vous
Hum, une erreur s’est produite lors de l’envoi de votre message. Veuillez réessayer.
Merci ! Votre message a été envoyé.





