Votre e-mail a été envoyé.
Certaines informations ont été traduites automatiquement.
Informations principales sur le parc
- Stratégiquement situé juste à côté de l'I-15 (sorties Camino Del Norte et Carmel Mountain Road)
- Potential for roll-up doors and lab-ready configurations
- Suites feature polished concrete floors and exposed ceilings
- Eight-building campus designed for office, R&D, and biotech
Faits sur le parc
| Espace total disponible | 14 654 m² | Max. Contigu | 4 757 m² |
| Min. Divisible | 307 m² | Type de parc | Parc industriel |
| Espace total disponible | 14 654 m² |
| Min. Divisible | 307 m² |
| Max. Contigu | 4 757 m² |
| Type de parc | Parc industriel |
Tous les espaces disponibles(9)
Afficher les loyers en
- Espace
- Surface
- Durée
- Loyer
- Type de bien
- Aménagement
- Disponible
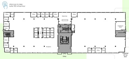
Prominent double-door entrance directly off lobby with 29 private offices, Conference room, Storage room, IT room, and Break area. Partial exposed ceiling with polished concrete and remainder of the space is 11’ drop ceilings. Potential to add loading.
- Le loyer ne comprend pas les services publics, les frais immobiliers ou les services de l’immeuble.
- Principalement open space
- 1 salle de conférence
- Entreposage sécurisé
- Entièrement aménagé comme Bureau standard
- 29 bureaux privés
- Espace en excellent état
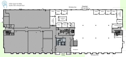
Furnished space with 4 Private offices, 2 Meeting rooms, IT room, Break area, and open cube space. 11’ ceilings, double-door glass entrance and ample natural light.
- Le loyer ne comprend pas les services publics, les frais immobiliers ou les services de l’immeuble.
- Disposition open space
- 3 salles de conférence
- Entièrement aménagé comme Bureau standard
- 4 bureaux privés
| Espace | Surface | Durée | Loyer | Type de bien | Aménagement | Disponible |
| 1er étage, bureau 100 | 1 579 – 3 402 m² | Négociable | 280,92 € /m²/an 23,41 € /m²/mois 955 658 € /an 79 638 € /mois | Bureau | Construction achevée | Maintenant |
| 2e étage, bureau 250 | 784 m² | Négociable | 280,92 € /m²/an 23,41 € /m²/mois 220 299 € /an 18 358 € /mois | Bureau | Construction achevée | Maintenant |
15333 Avenue Of Science - 1er étage – Bureau 100
15333 Avenue Of Science - 2e étage – Bureau 250
- Espace
- Surface
- Durée
- Loyer
- Type de bien
- Aménagement
- Disponible
Coming Available. Reception, 9 Offices, Conference room, Large training room, 7 Huddle rooms, 2 Phone rooms, Kitchen/cafeteria, 3 Storage rooms, IT/IT storage, Copy center.
- Le loyer ne comprend pas les services publics, les frais immobiliers ou les services de l’immeuble.
- 9 bureaux privés
- Peut être associé à un ou plusieurs espaces supplémentaires pour obtenir jusqu’à 4 757 m² d’espace adjacent.
- Partiellement aménagé comme Bureau standard
- 1 salle de conférence
Coming Available. 30 Offices, 2 Conference rooms, 4 Huddle rooms, Break area, Production room, Storage room.
- Le loyer ne comprend pas les services publics, les frais immobiliers ou les services de l’immeuble.
- 30 bureaux privés
- Peut être associé à un ou plusieurs espaces supplémentaires pour obtenir jusqu’à 4 757 m² d’espace adjacent.
- Partiellement aménagé comme Bureau standard
- 2 salles de conférence
| Espace | Surface | Durée | Loyer | Type de bien | Aménagement | Disponible |
| 1er étage, bureau 100 | 2 378 m² | Négociable | 280,92 € /m²/an 23,41 € /m²/mois 668 128 € /an 55 677 € /mois | Bureau | Construction partielle | 30 jours |
| 2e étage, bureau 200 | 2 378 m² | Négociable | 280,92 € /m²/an 23,41 € /m²/mois 668 128 € /an 55 677 € /mois | Bureau | Construction partielle | 30 jours |
15445 Innovation Dr - 1er étage – Bureau 100
15445 Innovation Dr - 2e étage – Bureau 200
- Espace
- Surface
- Durée
- Loyer
- Type de bien
- Aménagement
- Disponible
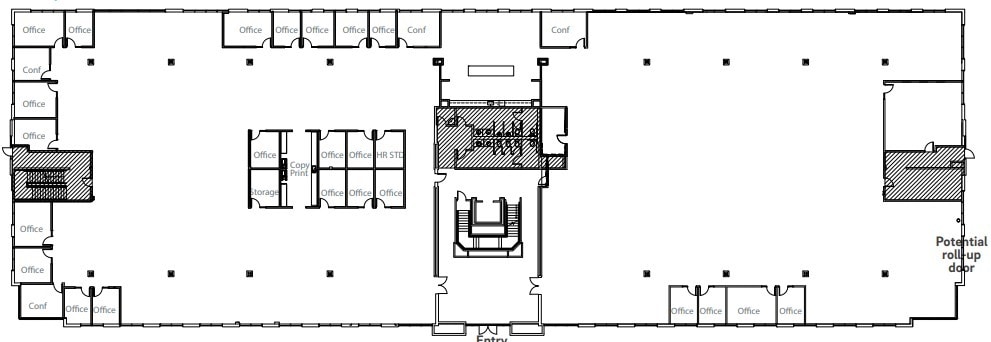
Reception, 30 Offices, 2 Break areas, 4 Conference rooms, IT room, IT lab, Electric room, File room, 3 Phone booths, Copy room, Storage and Open area. Divisible down to 7,105 rsf.
- Le loyer ne comprend pas les services publics, les frais immobiliers ou les services de l’immeuble.
- 30 bureaux privés
- Partiellement aménagé comme Bureau standard
- 4 salles de conférence
Reception, 12 Offices, Break area, IT/Storage and Open area for ±30-40 Cubicles.
- Le loyer ne comprend pas les services publics, les frais immobiliers ou les services de l’immeuble.
- Principalement open space
- 35 postes de travail
- Aire de réception
- Entièrement aménagé comme Bureau standard
- 12 bureaux privés
- Peut être associé à un ou plusieurs espaces supplémentaires pour obtenir jusqu’à 1 686 m² d’espace adjacent.
Coming Available. 8 Offices, Huddle room.
- Le loyer ne comprend pas les services publics, les frais immobiliers ou les services de l’immeuble.
- 8 bureaux privés
- Partiellement aménagé comme Bureau standard
- Peut être associé à un ou plusieurs espaces supplémentaires pour obtenir jusqu’à 1 686 m² d’espace adjacent.
Coming Available. 4 Offices, 2 Huddle rooms, Break/Copy room
- Le loyer ne comprend pas les services publics, les frais immobiliers ou les services de l’immeuble.
- 4 bureaux privés
- Partiellement aménagé comme Bureau standard
- Peut être associé à un ou plusieurs espaces supplémentaires pour obtenir jusqu’à 1 686 m² d’espace adjacent.
| Espace | Surface | Durée | Loyer | Type de bien | Aménagement | Disponible |
| 1er étage, bureau 100 | 660 – 2 339 m² | Négociable | 280,92 € /m²/an 23,41 € /m²/mois 657 088 € /an 54 757 € /mois | Bureau | Construction partielle | 30 jours |
| 2e étage, bureau 200 | 1 034 m² | Négociable | 280,92 € /m²/an 23,41 € /m²/mois 290 479 € /an 24 207 € /mois | Bureau | Construction achevée | Maintenant |
| 2e étage, bureau 201 | 307 m² | Négociable | 280,92 € /m²/an 23,41 € /m²/mois 86 126 € /an 7 177 € /mois | Bureau | Construction partielle | 30 jours |
| 2e étage, bureau 202 | 345 m² | Négociable | 280,92 € /m²/an 23,41 € /m²/mois 96 957 € /an 8 080 € /mois | Bureau | Construction partielle | 30 jours |
15435 Innovation Dr - 1er étage – Bureau 100
15435 Innovation Dr - 2e étage – Bureau 200
15435 Innovation Dr - 2e étage – Bureau 201
15435 Innovation Dr - 2e étage – Bureau 202
- Espace
- Surface
- Durée
- Loyer
- Type de bien
- Aménagement
- Disponible
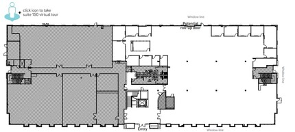
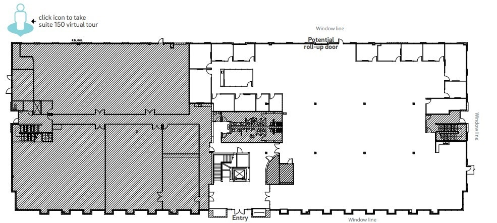
SPEC SUITE. Prominent double-door entrance directly off lobby with 11 Private offices, Conference room, Storage room, IT room, and Break area. Polished concrete floors with 11’ drop ceiling. Ability to add roll-up door to accommodate loading.
- Le loyer ne comprend pas les services publics, les frais immobiliers ou les services de l’immeuble.
- Principalement open space
- 2 salles de conférence
- Cuisine
- Lumière naturelle
- Entièrement aménagé comme Bureau standard
- 11 bureaux privés
- Espace en excellent état
- Entreposage sécurisé
| Espace | Surface | Durée | Loyer | Type de bien | Aménagement | Disponible |
| 1er étage, bureau 150 | 1 686 m² | Négociable | 280,92 € /m²/an 23,41 € /m²/mois 473 666 € /an 39 472 € /mois | Bureau | Construction achevée | Maintenant |
15231 Avenue of Science - 1er étage – Bureau 150
15333 Avenue Of Science - 1er étage – Bureau 100
| Surface | 1 579 – 3 402 m² |
| Durée | Négociable |
| Loyer | 280,92 € /m²/an |
| Type de bien | Bureau |
| Aménagement | Construction achevée |
| Disponible | Maintenant |
Prominent double-door entrance directly off lobby with 29 private offices, Conference room, Storage room, IT room, and Break area. Partial exposed ceiling with polished concrete and remainder of the space is 11’ drop ceilings. Potential to add loading.
- Le loyer ne comprend pas les services publics, les frais immobiliers ou les services de l’immeuble.
- Entièrement aménagé comme Bureau standard
- Principalement open space
- 29 bureaux privés
- 1 salle de conférence
- Espace en excellent état
- Entreposage sécurisé
15333 Avenue Of Science - 2e étage – Bureau 250
| Surface | 784 m² |
| Durée | Négociable |
| Loyer | 280,92 € /m²/an |
| Type de bien | Bureau |
| Aménagement | Construction achevée |
| Disponible | Maintenant |
Furnished space with 4 Private offices, 2 Meeting rooms, IT room, Break area, and open cube space. 11’ ceilings, double-door glass entrance and ample natural light.
- Le loyer ne comprend pas les services publics, les frais immobiliers ou les services de l’immeuble.
- Entièrement aménagé comme Bureau standard
- Disposition open space
- 4 bureaux privés
- 3 salles de conférence
15445 Innovation Dr - 1er étage – Bureau 100
| Surface | 2 378 m² |
| Durée | Négociable |
| Loyer | 280,92 € /m²/an |
| Type de bien | Bureau |
| Aménagement | Construction partielle |
| Disponible | 30 jours |
Coming Available. Reception, 9 Offices, Conference room, Large training room, 7 Huddle rooms, 2 Phone rooms, Kitchen/cafeteria, 3 Storage rooms, IT/IT storage, Copy center.
- Le loyer ne comprend pas les services publics, les frais immobiliers ou les services de l’immeuble.
- Partiellement aménagé comme Bureau standard
- 9 bureaux privés
- 1 salle de conférence
- Peut être associé à un ou plusieurs espaces supplémentaires pour obtenir jusqu’à 4 757 m² d’espace adjacent.
15445 Innovation Dr - 2e étage – Bureau 200
| Surface | 2 378 m² |
| Durée | Négociable |
| Loyer | 280,92 € /m²/an |
| Type de bien | Bureau |
| Aménagement | Construction partielle |
| Disponible | 30 jours |
Coming Available. 30 Offices, 2 Conference rooms, 4 Huddle rooms, Break area, Production room, Storage room.
- Le loyer ne comprend pas les services publics, les frais immobiliers ou les services de l’immeuble.
- Partiellement aménagé comme Bureau standard
- 30 bureaux privés
- 2 salles de conférence
- Peut être associé à un ou plusieurs espaces supplémentaires pour obtenir jusqu’à 4 757 m² d’espace adjacent.
15435 Innovation Dr - 1er étage – Bureau 100
| Surface | 660 – 2 339 m² |
| Durée | Négociable |
| Loyer | 280,92 € /m²/an |
| Type de bien | Bureau |
| Aménagement | Construction partielle |
| Disponible | 30 jours |
Reception, 30 Offices, 2 Break areas, 4 Conference rooms, IT room, IT lab, Electric room, File room, 3 Phone booths, Copy room, Storage and Open area. Divisible down to 7,105 rsf.
- Le loyer ne comprend pas les services publics, les frais immobiliers ou les services de l’immeuble.
- Partiellement aménagé comme Bureau standard
- 30 bureaux privés
- 4 salles de conférence
15435 Innovation Dr - 2e étage – Bureau 200
| Surface | 1 034 m² |
| Durée | Négociable |
| Loyer | 280,92 € /m²/an |
| Type de bien | Bureau |
| Aménagement | Construction achevée |
| Disponible | Maintenant |
Reception, 12 Offices, Break area, IT/Storage and Open area for ±30-40 Cubicles.
- Le loyer ne comprend pas les services publics, les frais immobiliers ou les services de l’immeuble.
- Entièrement aménagé comme Bureau standard
- Principalement open space
- 12 bureaux privés
- 35 postes de travail
- Peut être associé à un ou plusieurs espaces supplémentaires pour obtenir jusqu’à 1 686 m² d’espace adjacent.
- Aire de réception
15435 Innovation Dr - 2e étage – Bureau 201
| Surface | 307 m² |
| Durée | Négociable |
| Loyer | 280,92 € /m²/an |
| Type de bien | Bureau |
| Aménagement | Construction partielle |
| Disponible | 30 jours |
Coming Available. 8 Offices, Huddle room.
- Le loyer ne comprend pas les services publics, les frais immobiliers ou les services de l’immeuble.
- Partiellement aménagé comme Bureau standard
- 8 bureaux privés
- Peut être associé à un ou plusieurs espaces supplémentaires pour obtenir jusqu’à 1 686 m² d’espace adjacent.
15435 Innovation Dr - 2e étage – Bureau 202
| Surface | 345 m² |
| Durée | Négociable |
| Loyer | 280,92 € /m²/an |
| Type de bien | Bureau |
| Aménagement | Construction partielle |
| Disponible | 30 jours |
Coming Available. 4 Offices, 2 Huddle rooms, Break/Copy room
- Le loyer ne comprend pas les services publics, les frais immobiliers ou les services de l’immeuble.
- Partiellement aménagé comme Bureau standard
- 4 bureaux privés
- Peut être associé à un ou plusieurs espaces supplémentaires pour obtenir jusqu’à 1 686 m² d’espace adjacent.
15231 Avenue of Science - 1er étage – Bureau 150
| Surface | 1 686 m² |
| Durée | Négociable |
| Loyer | 280,92 € /m²/an |
| Type de bien | Bureau |
| Aménagement | Construction achevée |
| Disponible | Maintenant |
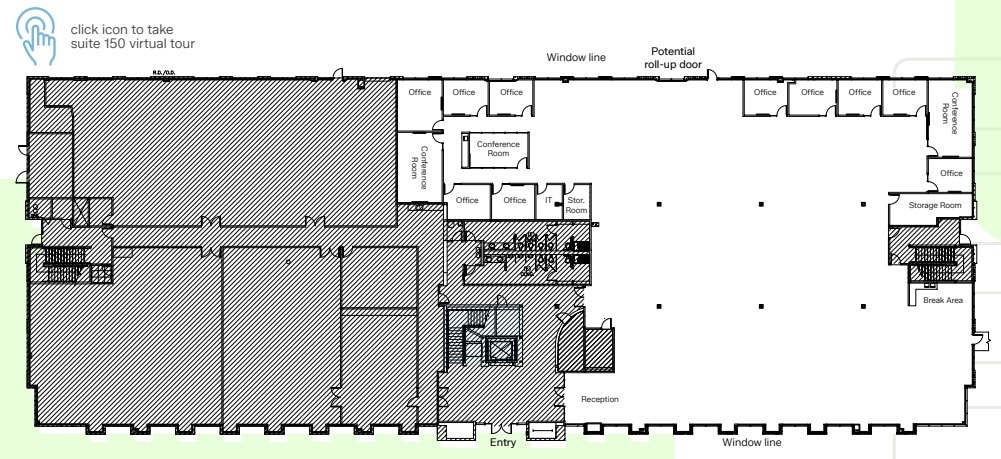
SPEC SUITE. Prominent double-door entrance directly off lobby with 11 Private offices, Conference room, Storage room, IT room, and Break area. Polished concrete floors with 11’ drop ceiling. Ability to add roll-up door to accommodate loading.
- Le loyer ne comprend pas les services publics, les frais immobiliers ou les services de l’immeuble.
- Entièrement aménagé comme Bureau standard
- Principalement open space
- 11 bureaux privés
- 2 salles de conférence
- Espace en excellent état
- Cuisine
- Entreposage sécurisé
- Lumière naturelle
Vue d’ensemble du parc
Innovation Corporate Center offers a premier Class A office and corporate headquarters campus in the heart of Rancho Bernardo, one of San Diego’s most desirable business districts. Spanning eight architecturally cohesive buildings totaling ±467,000 RSF, this master-planned environment is designed to support office, R&D, life science, and biotech users with flexible floorplates and collaborative layouts. Strategically positioned just off I-15 at Camino Del Norte and Carmel Mountain Road, the campus provides immediate freeway access and proximity to over one million square feet of adjacent retail, dining, and hospitality amenities. Tenants benefit from polished concrete floors, exposed ceilings, and abundant natural light, with suites offering a mix of private offices, conference rooms, IT infrastructure, and open workspaces. Several suites feature prominent lobby entrances and the potential for roll-up doors to support light industrial or lab functions. The surrounding Rancho Bernardo area is known for its highly educated workforce, scenic open space, and proximity to Palomar Medical Center Poway, making it ideal for life science and tech-oriented tenants. With a blend of modern design, functional efficiency, and amenity-rich surroundings, Innovation Corporate Center is a compelling choice for companies seeking a dynamic and scalable workplace.
Présenté par
Innovation Corporate Center | San Diego, CA 92128
Hum, une erreur s’est produite lors de l’envoi de votre message. Veuillez réessayer.
Merci ! Votre message a été envoyé.




















