
Cette fonctionnalité n’est pas disponible pour le moment.
Nous sommes désolés, mais la fonctionnalité à laquelle vous essayez d’accéder n’est pas disponible actuellement. Nous sommes au courant du problème et notre équipe travaille activement pour le résoudre.
Veuillez vérifier de nouveau dans quelques minutes. Veuillez nous excuser pour ce désagrément.
– L’équipe LoopNet
Votre e-mail a été envoyé.
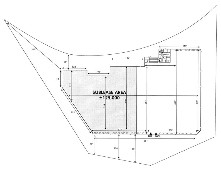
15300 Desman Rd Industriel/Logistique | 12 542–23 664 m² | 4 étoiles | À louer | La Mirada, CA 90638



Certaines informations ont été traduites automatiquement.
CARACTÉRISTIQUES
TOUS LES ESPACE DISPONIBLES(1)
Afficher les loyers en
- ESPACE
- SURFACE
- DURÉE
- LOYER
- TYPE DE BIEN
- ÉTAT
- DISPONIBLE
41' Warehouse Ceilings, Class A building for sublease. Excellent Mid-Counties Location with immediate access to the 5 and 91 freeways. ESFR Sprinklers, 2 secure yards and 7" concrete floor slab. Operating Expenses are $0.34 psf. Sublease ends 12/31/2026 (longer term is possible). This space can be divided and up to 135,000 sf can be leased.
- Espace en sous-location disponible auprès de l’occupant actuel
- Comprend 1 156 m² d’espace de bureau dédié
- Espace en excellent état
- Space can be divided
- Le loyer ne comprend pas les services publics, les frais immobiliers ou les services de l’immeuble.
- 2 accès plain-pied
- 43 quais de chargement
- Up to 135,000sf can be leased
Espace | Surface | Durée | Loyer | Type de bien | État | Disponible |
1er étage | 12 542 – 23 664 m² | Déc. 2026 | 100,49 € /m²/an 8,37 € /m²/mois 2 377 925 € /an 198 160 € /mois | Industriel/Logistique | Construction partielle | Maintenant |
1er étage
Surface |
12 542 – 23 664 m² |
Durée |
Déc. 2026 |
Loyer |
100,49 € /m²/an 8,37 € /m²/mois 2 377 925 € /an 198 160 € /mois |
Type de bien |
Industriel/Logistique |
État |
Construction partielle |
Disponible |
Maintenant |
1er étage
Surface | 12 542 – 23 664 m² |
Durée | Déc. 2026 |
Loyer | 100,49 € /m²/an |
Type de bien | Industriel/Logistique |
État | Construction partielle |
Disponible | Maintenant |
41' Warehouse Ceilings, Class A building for sublease. Excellent Mid-Counties Location with immediate access to the 5 and 91 freeways. ESFR Sprinklers, 2 secure yards and 7" concrete floor slab. Operating Expenses are $0.34 psf. Sublease ends 12/31/2026 (longer term is possible). This space can be divided and up to 135,000 sf can be leased.
- Espace en sous-location disponible auprès de l’occupant actuel
- Le loyer ne comprend pas les services publics, les frais immobiliers ou les services de l’immeuble.
- Comprend 1 156 m² d’espace de bureau dédié
- 2 accès plain-pied
- Espace en excellent état
- 43 quais de chargement
- Space can be divided
- Up to 135,000sf can be leased
APERÇU DU BIEN
High-Image Industrial facility in convenient location near major freeways. 41' Ceilings for stacking optimization.
FAITS SUR L’INSTALLATION ENTREPÔT
OCCUPANTS
- ÉTAGE
- NOM DE L’OCCUPANT
- SECTEUR D’ACTIVITÉ
- 1er
- All-Ways
- Transport et entreposage
Présenté par

15300 Desman Rd
Hum, une erreur s’est produite lors de l’envoi de votre message. Veuillez réessayer.
Merci ! Votre message a été envoyé.