Votre e-mail a été envoyé.
15 Graham Ave Local commercial | 397 m² | À louer | Brooklyn, NY 11206


Certaines informations ont été traduites automatiquement.
INFORMATIONS PRINCIPALES
- Corner Lot with 80 feet of frontage
- Bank Vault
- Partitioned offices
- Fully built out bank space
- HVAC
- excellent condition, turn key
DISPONIBILITÉ DE L’ESPACE (1)
Afficher le tarif en
- ESPACE
- SURFACE
- DURÉE
- LOYER
- TYPE DE LOYER
| Espace | Surface | Durée | Loyer | Type de loyer | ||
| 1er étage | 397 m² | Négociable | Sur demande Sur demande Sur demande Sur demande | Brut modifié |
1er étage
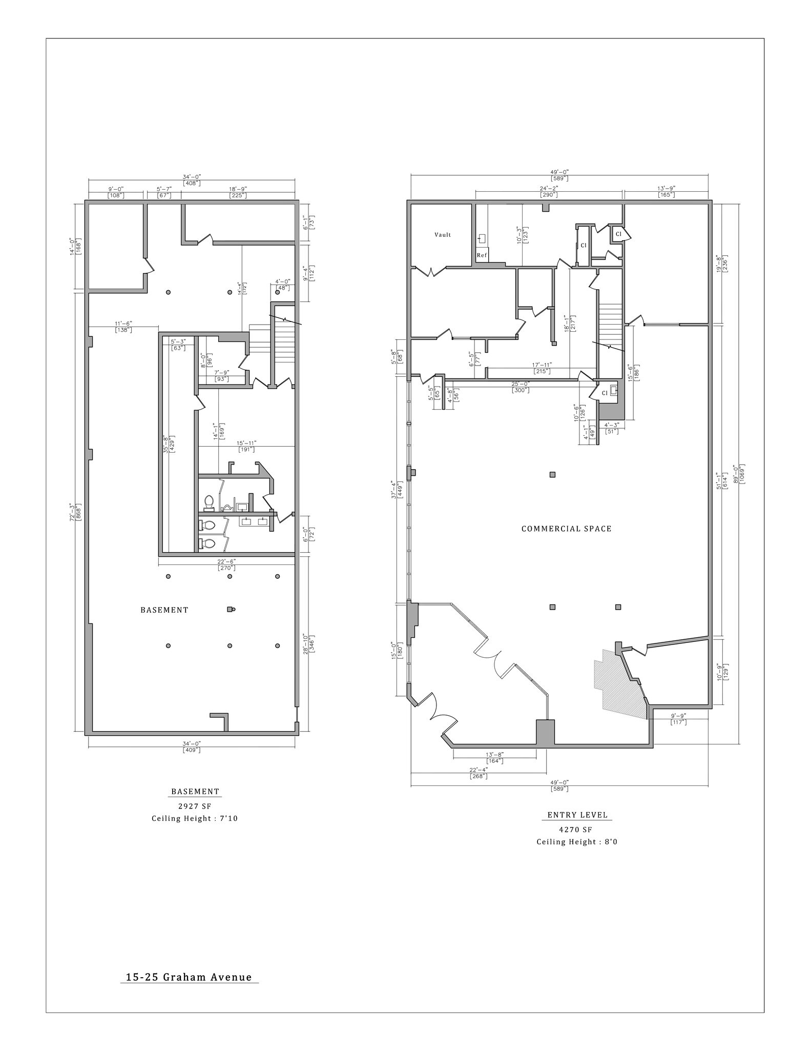
CORNER PARCEL WITH 80 FEET OF FRONTAGE Fully built out bank space for rent. Space is in excellent condition and is still utilized as an active bank. Bank vault on site, HVAC, bathrooms, partitioned offices, break rooms, offices and conference rooms, lighting, etc.
- Il est possible que le loyer annoncé ne comprenne pas certains services publics, services d’immeuble et frais immobiliers.
- Entièrement aménagé comme une banque
- Espace en excellent état
- Climatisation centrale
- Bureaux cloisonnés
- Toilettes privées
- Salle d’impression/photocopie
- Entièrement moquetté
- Système de sécurité
- Espace d’angle
- Plafonds suspendus
- Éclairage encastré
- CVC disponible en-dehors des heures ouvrables
- Sous-sol
- CORNER PARCEL WITH 80 FEET OF FRONTAGE
- HVAC
- Bathrooms
- Partitioned Offices
- TURN KEY BANK PROPERTY
Types de loyers
Le montant et le type de loyer que l’occupant (locataire) est tenu de payer au propriétaire (bailleur) sur la durée du bail sont négociés avant la signature du bail par les deux parties. Le type de loyer varie selon les services fournis. Par exemple, le prix d’un loyer triple net est habituellement inférieur à celui d’un bail à service complet puisque l’occupant est tenu d’assumer des dépenses supplémentaires par rapport au loyer de base. Contacter le broker chargé de l’annonce pour bien comprendre les coûts associés ou les dépenses supplémentaires pour chaque type de loyer.
1. Service complet: Un loyer qui comprend des services d’immeuble standards normaux fournis par le propriétaire dans le cadre d’une location annuelle de base.
2. Double net (NN): L’occupant paie seulement deux des frais de l’immeuble. Le propriétaire et l’occupant déterminent ces frais spécifiques avant la signature du bail.
3. Triple net (NNN): Un bail selon lequel l’occupant est responsable de tous les frais liés à sa part proportionnelle d’occupation de l’immeuble.
4. Brut modifié: Le brut modifié est un type général de bail dans lequel l’occupant est en général responsable de sa part proportionnelle d’une ou de plusieurs dépenses. C’est le propriétaire qui paie les frais restants. Consultez la liste ci-dessous pour connaître les structures de loyers bruts modifiés les plus courantes : 4. Plus services publics: Un type de bail brut modifié, où l’occupant est responsable à hauteur de sa part proportionnelle des services publics en plus du loyer. 4. Plus nettoyage: Un type de bail brut modifié, où l’occupant est responsable à hauteur de sa part proportionnelle du nettoyage en plus du loyer. 4. Plus électricité: Un type de bail brut modifié, où l’occupant est responsable à hauteur de sa part proportionnelle du coût de la consommation électrique en plus du loyer. 4. Plus électricité et nettoyage: Un type de bail brut modifié, où l’occupant est responsable à hauteur de sa part proportionnelle du coût de la consommation électrique et du nettoyage en plus du loyer. 4. Plus services publics et charges: Un type de bail brut modifié où l’occupant est responsable à hauteur de sa part proportionnelle des services publics et du coût de nettoyage en plus du loyer. 4. Bail industriel brut: Un type de bail brut modifié dans lequel l’occupant paie un ou plusieurs des frais en plus du loyer. Le propriétaire et l’occupant déterminent ces frais spécifiques avant la signature du bail.
5. Électricité à la charge de l’occupant: Le propriétaire paie pour tous les services et l’occupant est responsable de sa propre utilisation de l’éclairage et des prises électriques dans l’espace qu’il occupe.
6. Négociable ou sur demande: Cette option est utilisée lorsque le contact de location n’indique pas le type de loyer ou de service.
7. À déterminer: À déterminer : utilisé pour les immeubles dont le type de services ou de loyer n’est pas connu, souvent quand l’immeuble n’est pas encore construit.
PLAN DU SITE
SÉLECTIONNER DES OCCUPANTS À 15 GRAHAM AVE, BROOKLYN, NY 11206
- OCCUPANT
- DESCRIPTION
- US LOCALISATIONS
- COUVERTURE
- Popular Bank
- Autres services
- 27
- International
| OCCUPANT | DESCRIPTION | US LOCALISATIONS | COUVERTURE |
| Popular Bank | Autres services | 27 | International |
INFORMATIONS SUR L’IMMEUBLE
| Espace total disponible | 397 m² | Surface commerciale utile | 1 208 m² |
| Type de bien | Local commercial | Année de construction | 1951 |
| Sous-type de bien | Bien à usage mixte |
| Espace total disponible | 397 m² |
| Type de bien | Local commercial |
| Sous-type de bien | Bien à usage mixte |
| Surface commerciale utile | 1 208 m² |
| Année de construction | 1951 |
CARACTÉRISTIQUES
- Intersection avec signalisation
PRINCIPAUX COMMERCES À PROXIMITÉ
Présenté par
15 Graham Ave
Hum, une erreur s’est produite lors de l’envoi de votre message. Veuillez réessayer.
Merci ! Votre message a été envoyé.


