Votre e-mail a été envoyé.
Certaines informations ont été traduites automatiquement.
Informations principales
- The industrial condo offers a minimum 22-foot warehouse clearance supporting efficient industrial operations.
- A fire-sprinklered warehouse enhances safety and code compliance for industrial users.
- Electrical infrastructure includes 200 amps of 277/480-volt power suitable for industrial use.
- The property provides both dock-high and ground-level loading for flexible distribution functionality.
- The building is designed with a high-image concrete tilt-up construction in a managed business park.
Caractéristiques
Tous les espace disponibles(1)
Afficher les loyers en
- Espace
- Surface
- Durée
- Loyer
- Type de bien
- Aménagement
- Disponible
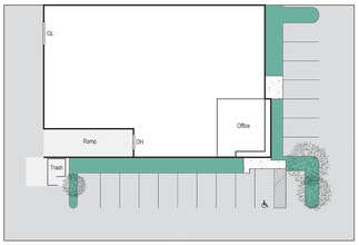
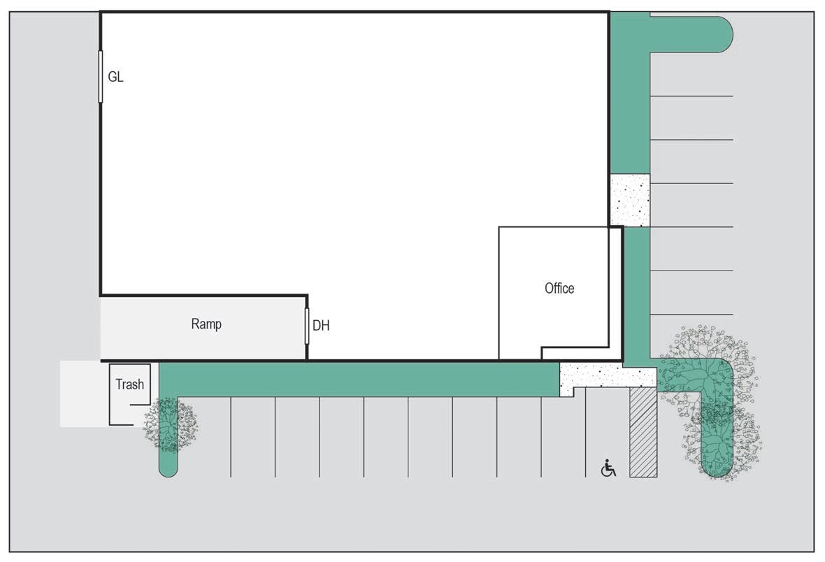
The available industrial condo contains approximately 7,032 square feet and includes warehouse space supported by approximately 500 square feet of finished office area. The unit features one ground-level door and one dock-high door, providing operational flexibility for loading and distribution. A minimum clearance of 22 feet allows for efficient racking configurations, while 200 amps of 277/480-volt power supports a range of industrial equipment. The space is fully fire sprinklered and configured for efficient single-unit occupancy.
- Il est possible que le loyer annoncé ne comprenne pas certains services publics, services d’immeuble et frais immobiliers.
- 1 accès plain-pied
- Dock and ground loading
- High clear warehouse design
- Comprend 46 m² d’espace de bureau dédié
- 1 quai de chargement
- Office and warehouse space
| Espace | Surface | Durée | Loyer | Type de bien | Aménagement | Disponible |
| 1er étage | 653 m² | Négociable | 165,25 € /m²/an 13,77 € /m²/mois 107 957 € /an 8 996 € /mois | Industriel/Logistique | Construction achevée | 01/07/2026 |
1er étage
| Surface |
| 653 m² |
| Durée |
| Négociable |
| Loyer |
| 165,25 € /m²/an 13,77 € /m²/mois 107 957 € /an 8 996 € /mois |
| Type de bien |
| Industriel/Logistique |
| Aménagement |
| Construction achevée |
| Disponible |
| 01/07/2026 |
1er étage
| Surface | 653 m² |
| Durée | Négociable |
| Loyer | 165,25 € /m²/an |
| Type de bien | Industriel/Logistique |
| Aménagement | Construction achevée |
| Disponible | 01/07/2026 |
The available industrial condo contains approximately 7,032 square feet and includes warehouse space supported by approximately 500 square feet of finished office area. The unit features one ground-level door and one dock-high door, providing operational flexibility for loading and distribution. A minimum clearance of 22 feet allows for efficient racking configurations, while 200 amps of 277/480-volt power supports a range of industrial equipment. The space is fully fire sprinklered and configured for efficient single-unit occupancy.
- Il est possible que le loyer annoncé ne comprenne pas certains services publics, services d’immeuble et frais immobiliers.
- Comprend 46 m² d’espace de bureau dédié
- 1 accès plain-pied
- 1 quai de chargement
- Dock and ground loading
- Office and warehouse space
- High clear warehouse design
Aperçu du bien
14726 Central Avenue is a high-image industrial condominium located within a professionally managed business park in Chino, California. The building features a modern concrete tilt-up design with a functional layout suited for a range of industrial users. Constructed with a minimum 22-foot warehouse clearance, the property supports efficient storage and operational flexibility. Loading capabilities are enhanced by both ground-level and dock-high access, allowing for versatile distribution and logistics use. The building is fully fire sprinklered and equipped with robust electrical capacity, offering 200 amps of 277/480-volt power to accommodate industrial requirements. A well-maintained exterior and landscaped common areas contribute to the property’s professional appearance. Positioned in an established industrial corridor, the site benefits from proximity to regional transportation routes and surrounding business amenities, making it an efficient and well-located industrial asset within the Inland Empire.
Faits sur l’installation entrepôt
Occupants
- Étage
- Nom de l’occupant
- Secteur d’activité
- 1er
- Rxylink Inc
- Manufacture
Présenté par
14726 Central Ave
Hum, une erreur s’est produite lors de l’envoi de votre message. Veuillez réessayer.
Merci ! Votre message a été envoyé.




