Votre e-mail a été envoyé.
Stanley Woolen Mill 146 Mendon St 130–7 142 m² | À louer | Uxbridge, MA 01569



Certaines informations ont été traduites automatiquement.
Informations principales
- Commerce de détail, bureau, restaurant, création, ingénierie, services, usage mixte.
- 5 minutes de l'autoroute à accès limité Rte 146, 55 minutes de Boston, 25 minutes de Providence et Worcester.
- LA TOTALITÉ DE 95 000 PIEDS CARRÉS POURRAIT ÊTRE DISPONIBLE.
- Fenêtres continues dans un bâtiment historique.
- Dans un parc national, entouré d'herbe, de grands arbres et de la rivière.
- Grand parking, entièrement équipé de gicleurs.
Tous les espaces disponibles(8)
Afficher les loyers en
- Espace
- Surface
- Durée
- Loyer
- Type de bien
- Aménagement
- Disponible
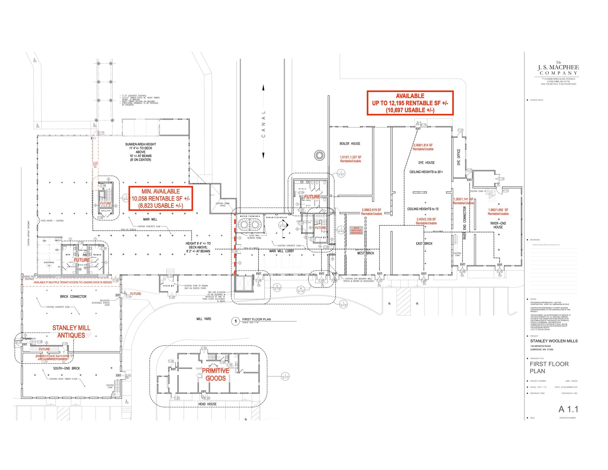
Multiple sub-portions of this area are practical. Memorable spaces with 9 entrances direct from parking, at grade and accessible, sandblasted brick and timber. Many possible restaurant, brewery, retail and service configurations as well as office. Windows on Park, River and Millyard, South, East and North. Patio facing Blackstone Canal State Park available for food service, brew pub. (Service Type is negotiable from Triple Net to Full Service.
- Loyer annoncé plus part proportionnelle des coûts de la consommation électrique
- 9 entrées directement depuis le parking ; toutes accessibles.
- Maison de teinture à portée libre de 40 pieds carrés avec grue.
- Terrasse extérieure face au parc national.
- Espace de vente au détail, de restauration, de création ou de bureau.
- Brasserie-Pub-Restaurant idéal.
- Brique et bois sablés spectaculaires.
This outbuilding is the most visible space for the 10,000 cars a day driving Route 16, and newly available with the departure of the antiques group shop tenant after seven successful years. Terrace space front and back for outdoor display or food service. Cafe-restaurant use only requires installation of ADA sidewalk and including end of hallway in one of the rest rooms for wheelchair dimensions. A new tenant can freely reconfigure the interior to their preferences without any historic restrictions. The existing buildout is a no-expense-spared 1950's renovation of the mill offices: Even the closets have solid core doors, brass mortise locks, patent ribbed paneling, acoustic ceiling with border, classic chrome fluorescent tube fixtures, etc. Should have mini-split HVAC to replace mobile units and propane heaters. Service Type is negotiable from Triple Net to Full Service.
- Loyer annoncé plus part proportionnelle des coûts de la consommation électrique
- 5 bureaux privés
- Espace nécessitant des rénovations
- Toilettes incluses dans le bail
- Ground floor 1,592 SF Rentable; 2nd floor 886 SF
- Outdoor terrace space front and back.
- Entièrement aménagé comme Bureau standard
- Plafonds finis: 2,44 mètres
- Espace d’angle
- Standalone outbuilding; windows in all facades
- Entry doors front & back, plus 3 side doors.
Build to Suit along 70 feet of the riverbank: Grandfathered rights to build on the footprint of the historic Spool barns, within twenty feet of the river. This is in the otherwise no-build 100-foot setback. Site is directly on the vehicle and pedestrian access to the State Park, and across from the 150 space shared parking permitted to be built when needed.
- Le loyer ne comprend pas les services publics, les frais immobiliers ou les services de l’immeuble.
- L’espace est une parcelle indépendante de ce bien
Multiple sub-portions of this area are practical. Space for display and sales in lobby is available. View of water turbine area in lobby and massive nineteenth-century vacuum pump. At-grade, fully Accessible entrance from north as well as on south (lobby), third entrance through historic stair tower. Excellent space for fitness, craft manufacturing, retail, brewery. Economical for firm with significant storage needs. Windows on two and a half sides, massive steel and timber, 30 X 100 & 20 X 100 foot bays. Service Type is negotiable from Triple Net to Full Service.
- Loyer annoncé plus part proportionnelle des coûts de la consommation électrique
- Acier massif et bois, portées de 20 et 30 pieds.
- Économique pour une utilisation avec des besoins de stockage.
- Permet de rejoindre State Park et Millyard.
- Lobby adjacent disponible pour l'exposition et la vente.
Multiple sub-portions of this area are practical. Retail-Restaurant-Creative or Office Space. Continuous windows viewing State Park, Sluice Gate machinery and Blackstone Canal, Tail Race and Millyard and Blackstone River. Restaurant could have tables along Canal Bank and bridges over canal, with canoe and kayak put-in. Direct Accessible entrances from Cross Street Parking via canopied Pedestrian bridge and via Canal Bank. Sandblasted timber, steel and brick. Service Type is negotiable from Triple Net to Full Service.
- Loyer annoncé plus part proportionnelle des coûts de la consommation électrique
- Le restaurant pourrait avoir des tables sur les ponts du canal.
- Fenêtres continues sur le parc, le canal, la rivière, le moulin
- Bois sablé, acier et brique.
Warehouse. I'll make renting the 3rd, 4th and 5th floors a bargain since they are only suitable for dead storage: Fully Sprinklered, but have to hoist outside to large loading doors on each level or use the stairs. (No elevator and no heat.) Additional attic space available
- Loyer annoncé plus part proportionnelle des coûts de la consommation électrique
- Entrepôt - stockage mort.
Warehouse - dead storage. I'll make renting the 3rd, 4th and 5th floors a bargain since they are only suitable for dead storage: Fully Sprinklered, but have to hoist outside to large loading doors on each level or use the stairs. (No elevator and no heat.)
- Loyer annoncé plus part proportionnelle des coûts de la consommation électrique
- Entrepôt - stockage mort.
Warehouse - dead storage. I'll make renting the 3rd, 4th and 5th floors a bargain since they are only suitable for dead storage: Fully Sprinklered, but have to hoist outside to large loading doors on each level or use the stairs. (No elevator and no heat.) Additional attic space available
- Loyer annoncé plus part proportionnelle des coûts de la consommation électrique
- Entrepôt - stockage mort.
| Espace | Surface | Durée | Loyer | Type de bien | Aménagement | Disponible |
| 1er étage, bureau East | 1 133 m² | 1-20 Ans | 112,92 € /m²/an 9,41 € /m²/mois 127 934 € /an 10 661 € /mois | Bureaux/Local commercial | Espace brut | Maintenant |
| 1er étage, bureau HH-1-ABC & HH-2-AB | 230 m² | 1-20 Ans | 137,71 € /m²/an 11,48 € /m²/mois 31 702 € /an 2 642 € /mois | Bureaux/Local commercial | Construction achevée | 01/05/2026 |
| 1er étage, bureau Riverbank Outbldg. | 130 m² | 1-20 Ans | 91,81 € /m²/an 7,65 € /m²/mois 11 941 € /an 995,05 € /mois | Local commercial | Espace brut | Maintenant |
| 1er étage, bureau West | 820 m² | 1-20 Ans | 110,17 € /m²/an 9,18 € /m²/mois 90 302 € /an 7 525 € /mois | Bureaux/Local commercial | Espace brut | Maintenant |
| 2e étage, bureau Canal | 1 708 m² | 1-20 Ans | 119,35 € /m²/an 9,95 € /m²/mois 203 903 € /an 16 992 € /mois | Bureau | Espace brut | Maintenant |
| 3e étage | 1 641 m² | 1-20 Ans | 27,54 € /m²/an 2,30 € /m²/mois 45 202 € /an 3 767 € /mois | Industriel/Logistique | Espace brut | Maintenant |
| 4e étage | 1 210 m² | 1-20 Ans | 27,54 € /m²/an 2,30 € /m²/mois 33 332 € /an 2 778 € /mois | Industriel/Logistique | Espace brut | Maintenant |
| 5e étage | 269 m² | 1-20 Ans | 27,54 € /m²/an 2,30 € /m²/mois 7 400 € /an 616,65 € /mois | Industriel/Logistique | Espace brut | Maintenant |
1er étage, bureau East
| Surface |
| 1 133 m² |
| Durée |
| 1-20 Ans |
| Loyer |
| 112,92 € /m²/an 9,41 € /m²/mois 127 934 € /an 10 661 € /mois |
| Type de bien |
| Bureaux/Local commercial |
| Aménagement |
| Espace brut |
| Disponible |
| Maintenant |
1er étage, bureau HH-1-ABC & HH-2-AB
| Surface |
| 230 m² |
| Durée |
| 1-20 Ans |
| Loyer |
| 137,71 € /m²/an 11,48 € /m²/mois 31 702 € /an 2 642 € /mois |
| Type de bien |
| Bureaux/Local commercial |
| Aménagement |
| Construction achevée |
| Disponible |
| 01/05/2026 |
1er étage, bureau Riverbank Outbldg.
| Surface |
| 130 m² |
| Durée |
| 1-20 Ans |
| Loyer |
| 91,81 € /m²/an 7,65 € /m²/mois 11 941 € /an 995,05 € /mois |
| Type de bien |
| Local commercial |
| Aménagement |
| Espace brut |
| Disponible |
| Maintenant |
1er étage, bureau West
| Surface |
| 820 m² |
| Durée |
| 1-20 Ans |
| Loyer |
| 110,17 € /m²/an 9,18 € /m²/mois 90 302 € /an 7 525 € /mois |
| Type de bien |
| Bureaux/Local commercial |
| Aménagement |
| Espace brut |
| Disponible |
| Maintenant |
2e étage, bureau Canal
| Surface |
| 1 708 m² |
| Durée |
| 1-20 Ans |
| Loyer |
| 119,35 € /m²/an 9,95 € /m²/mois 203 903 € /an 16 992 € /mois |
| Type de bien |
| Bureau |
| Aménagement |
| Espace brut |
| Disponible |
| Maintenant |
3e étage
| Surface |
| 1 641 m² |
| Durée |
| 1-20 Ans |
| Loyer |
| 27,54 € /m²/an 2,30 € /m²/mois 45 202 € /an 3 767 € /mois |
| Type de bien |
| Industriel/Logistique |
| Aménagement |
| Espace brut |
| Disponible |
| Maintenant |
4e étage
| Surface |
| 1 210 m² |
| Durée |
| 1-20 Ans |
| Loyer |
| 27,54 € /m²/an 2,30 € /m²/mois 33 332 € /an 2 778 € /mois |
| Type de bien |
| Industriel/Logistique |
| Aménagement |
| Espace brut |
| Disponible |
| Maintenant |
5e étage
| Surface |
| 269 m² |
| Durée |
| 1-20 Ans |
| Loyer |
| 27,54 € /m²/an 2,30 € /m²/mois 7 400 € /an 616,65 € /mois |
| Type de bien |
| Industriel/Logistique |
| Aménagement |
| Espace brut |
| Disponible |
| Maintenant |
1er étage, bureau East
| Surface | 1 133 m² |
| Durée | 1-20 Ans |
| Loyer | 112,92 € /m²/an |
| Type de bien | Bureaux/Local commercial |
| Aménagement | Espace brut |
| Disponible | Maintenant |
Multiple sub-portions of this area are practical. Memorable spaces with 9 entrances direct from parking, at grade and accessible, sandblasted brick and timber. Many possible restaurant, brewery, retail and service configurations as well as office. Windows on Park, River and Millyard, South, East and North. Patio facing Blackstone Canal State Park available for food service, brew pub. (Service Type is negotiable from Triple Net to Full Service.
- Loyer annoncé plus part proportionnelle des coûts de la consommation électrique
- Espace de vente au détail, de restauration, de création ou de bureau.
- 9 entrées directement depuis le parking ; toutes accessibles.
- Brasserie-Pub-Restaurant idéal.
- Maison de teinture à portée libre de 40 pieds carrés avec grue.
- Brique et bois sablés spectaculaires.
- Terrasse extérieure face au parc national.
1er étage, bureau HH-1-ABC & HH-2-AB
| Surface | 230 m² |
| Durée | 1-20 Ans |
| Loyer | 137,71 € /m²/an |
| Type de bien | Bureaux/Local commercial |
| Aménagement | Construction achevée |
| Disponible | 01/05/2026 |
This outbuilding is the most visible space for the 10,000 cars a day driving Route 16, and newly available with the departure of the antiques group shop tenant after seven successful years. Terrace space front and back for outdoor display or food service. Cafe-restaurant use only requires installation of ADA sidewalk and including end of hallway in one of the rest rooms for wheelchair dimensions. A new tenant can freely reconfigure the interior to their preferences without any historic restrictions. The existing buildout is a no-expense-spared 1950's renovation of the mill offices: Even the closets have solid core doors, brass mortise locks, patent ribbed paneling, acoustic ceiling with border, classic chrome fluorescent tube fixtures, etc. Should have mini-split HVAC to replace mobile units and propane heaters. Service Type is negotiable from Triple Net to Full Service.
- Loyer annoncé plus part proportionnelle des coûts de la consommation électrique
- Entièrement aménagé comme Bureau standard
- 5 bureaux privés
- Plafonds finis: 2,44 mètres
- Espace nécessitant des rénovations
- Espace d’angle
- Toilettes incluses dans le bail
- Standalone outbuilding; windows in all facades
- Ground floor 1,592 SF Rentable; 2nd floor 886 SF
- Entry doors front & back, plus 3 side doors.
- Outdoor terrace space front and back.
1er étage, bureau Riverbank Outbldg.
| Surface | 130 m² |
| Durée | 1-20 Ans |
| Loyer | 91,81 € /m²/an |
| Type de bien | Local commercial |
| Aménagement | Espace brut |
| Disponible | Maintenant |
Build to Suit along 70 feet of the riverbank: Grandfathered rights to build on the footprint of the historic Spool barns, within twenty feet of the river. This is in the otherwise no-build 100-foot setback. Site is directly on the vehicle and pedestrian access to the State Park, and across from the 150 space shared parking permitted to be built when needed.
- Le loyer ne comprend pas les services publics, les frais immobiliers ou les services de l’immeuble.
- L’espace est une parcelle indépendante de ce bien
1er étage, bureau West
| Surface | 820 m² |
| Durée | 1-20 Ans |
| Loyer | 110,17 € /m²/an |
| Type de bien | Bureaux/Local commercial |
| Aménagement | Espace brut |
| Disponible | Maintenant |
Multiple sub-portions of this area are practical. Space for display and sales in lobby is available. View of water turbine area in lobby and massive nineteenth-century vacuum pump. At-grade, fully Accessible entrance from north as well as on south (lobby), third entrance through historic stair tower. Excellent space for fitness, craft manufacturing, retail, brewery. Economical for firm with significant storage needs. Windows on two and a half sides, massive steel and timber, 30 X 100 & 20 X 100 foot bays. Service Type is negotiable from Triple Net to Full Service.
- Loyer annoncé plus part proportionnelle des coûts de la consommation électrique
- Permet de rejoindre State Park et Millyard.
- Acier massif et bois, portées de 20 et 30 pieds.
- Lobby adjacent disponible pour l'exposition et la vente.
- Économique pour une utilisation avec des besoins de stockage.
2e étage, bureau Canal
| Surface | 1 708 m² |
| Durée | 1-20 Ans |
| Loyer | 119,35 € /m²/an |
| Type de bien | Bureau |
| Aménagement | Espace brut |
| Disponible | Maintenant |
Multiple sub-portions of this area are practical. Retail-Restaurant-Creative or Office Space. Continuous windows viewing State Park, Sluice Gate machinery and Blackstone Canal, Tail Race and Millyard and Blackstone River. Restaurant could have tables along Canal Bank and bridges over canal, with canoe and kayak put-in. Direct Accessible entrances from Cross Street Parking via canopied Pedestrian bridge and via Canal Bank. Sandblasted timber, steel and brick. Service Type is negotiable from Triple Net to Full Service.
- Loyer annoncé plus part proportionnelle des coûts de la consommation électrique
- Fenêtres continues sur le parc, le canal, la rivière, le moulin
- Le restaurant pourrait avoir des tables sur les ponts du canal.
- Bois sablé, acier et brique.
3e étage
| Surface | 1 641 m² |
| Durée | 1-20 Ans |
| Loyer | 27,54 € /m²/an |
| Type de bien | Industriel/Logistique |
| Aménagement | Espace brut |
| Disponible | Maintenant |
Warehouse. I'll make renting the 3rd, 4th and 5th floors a bargain since they are only suitable for dead storage: Fully Sprinklered, but have to hoist outside to large loading doors on each level or use the stairs. (No elevator and no heat.) Additional attic space available
- Loyer annoncé plus part proportionnelle des coûts de la consommation électrique
- Entrepôt - stockage mort.
4e étage
| Surface | 1 210 m² |
| Durée | 1-20 Ans |
| Loyer | 27,54 € /m²/an |
| Type de bien | Industriel/Logistique |
| Aménagement | Espace brut |
| Disponible | Maintenant |
Warehouse - dead storage. I'll make renting the 3rd, 4th and 5th floors a bargain since they are only suitable for dead storage: Fully Sprinklered, but have to hoist outside to large loading doors on each level or use the stairs. (No elevator and no heat.)
- Loyer annoncé plus part proportionnelle des coûts de la consommation électrique
- Entrepôt - stockage mort.
5e étage
| Surface | 269 m² |
| Durée | 1-20 Ans |
| Loyer | 27,54 € /m²/an |
| Type de bien | Industriel/Logistique |
| Aménagement | Espace brut |
| Disponible | Maintenant |
Warehouse - dead storage. I'll make renting the 3rd, 4th and 5th floors a bargain since they are only suitable for dead storage: Fully Sprinklered, but have to hoist outside to large loading doors on each level or use the stairs. (No elevator and no heat.) Additional attic space available
- Loyer annoncé plus part proportionnelle des coûts de la consommation électrique
- Entrepôt - stockage mort.
Aperçu du bien
Le projet polyvalent Stanley Mill est magnifiquement situé entre sa propre pelouse sur la Route 16 et le parc d'État de Blackstone River, avec la rivière qui le longe et le débit de la vanne du canal et des boîtiers de turbine encastrés dans du verre dans le hall d'entrée. Fenêtres continues autour des quatre étages de l'usine principale, vaste espace de stationnement et éligible à toutes les incitations au développement économique. Location, clé en main ou structure de propriété qui vous convient. Remarque : disposition pour un stationnement partagé supplémentaire sur le terrain adjacent au parc et possibilité d'ajouter une dépendance de 1 400 pieds carrés. Sur la route 16 et la rivière Blackstone, à 5 minutes de l'autoroute 146 à accès limité, à 55 minutes de Boston, à 25 minutes de Providence et Worcester.
- Cour
- Property Manager sur place
- Bord de l’eau
- Panneau monumental
- Sièges extérieurs
Informations sur l’immeuble
Occupants
- Étage
- Nom de l’occupant
- Secteur d’activité
- 1er
- Lucille's Flowers
- Enseigne
- 1er
- Primitive Goods Antiques Group Shop
- Enseigne
- 1er
- Stanley Mill Antiques Group Shop
- Enseigne
- 2e
- US Dept. of Agriculture Regional Veterinary Servic
- Administration publique
Présenté par
LTI Uxbridge Stanley LP
Stanley Woolen Mill | 146 Mendon St
Hum, une erreur s’est produite lors de l’envoi de votre message. Veuillez réessayer.
Merci ! Votre message a été envoyé.























