Votre e-mail a été envoyé.
Certaines informations ont été traduites automatiquement.
Informations principales
- The building is unobstructed and presents 4 sides of glass on all floors. The building features a renovated lobby, and tenant-only garage.
- The neighborhood offers multiple dining, shopping, and hotel options within walking distance.
- Centrally located between the East End and CBD, 1444 I offers easy commuter access via 14th St and the adjacent McPherson Square Metro.
- 1444 I is perfectly positioned on I Street to allow views of both McPherson Park and Franklin Square Park from all street-facing suites.
Tous les espaces disponibles(11)
Afficher les loyers en
- Espace
- Surface
- Durée
- Loyer
- Type de bien
- Aménagement
- Disponible
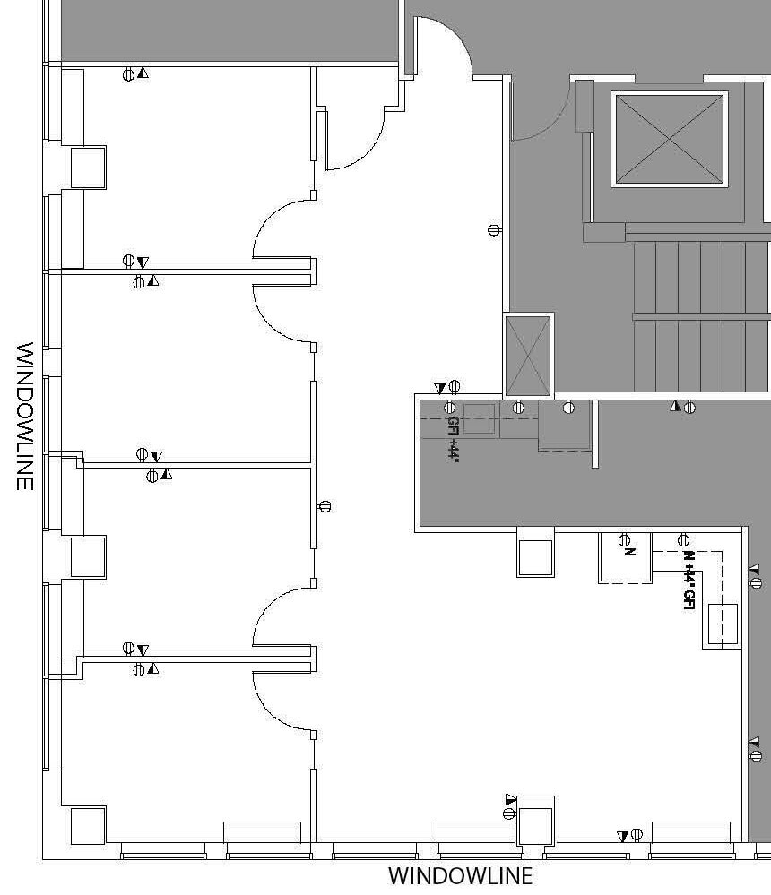
Built out as Chiropractor space, contiguous with LL-2
- Entièrement aménagé comme Bureau standard
- Garage de stationnement sur place.
- Plan d’étage avec bureaux fermés
- Le bâtiment dispose d'un hall d'accueil récemment rénové.
This suite is located on the front of the building with I Street windowline as well as on either side of the suite. There are 7 offices (all with windows). There are 2 conference rooms and a designated reception area.
- Entièrement aménagé comme Bureau standard
- Espace nécessitant des rénovations
- Garage de stationnement sur place.
- Principalement open space
- Peut être associé à un ou plusieurs espaces supplémentaires pour obtenir jusqu’à 1 113 m² d’espace adjacent.
- Le bâtiment dispose d'un hall d'accueil récemment rénové.
This suite is on the backside of the building. It has 10 offices. All of the offices offer windows. There is a kitchen and conference room within the suite.
- Entièrement aménagé comme Bureau standard
- Peut être associé à un ou plusieurs espaces supplémentaires pour obtenir jusqu’à 1 113 m² d’espace adjacent.
- Le bâtiment dispose d'un hall d'accueil récemment rénové.
- Plan d’étage avec bureaux fermés
- Garage de stationnement sur place.
Office intensive (12-windowed) layout with open workspaces. Suite features a kitchen, medium sized conference room and additional huddle room. Great elevator identity on both sides of floor. Floorplan occupies 3/4's of the entire floor.
- 12 bureaux privés
- 8 postes de travail
- Peut être associé à un ou plusieurs espaces supplémentaires pour obtenir jusqu’à 1 113 m² d’espace adjacent.
- Cuisine
- Le bâtiment dispose d'un hall d'accueil récemment rénové.
- 1 salle de conférence
- Espace en excellent état
- Aire de réception
- Garage de stationnement sur place.
Intimate suite w/ 4 individual offices and a large open work area on the front of the building with elevator exposure. Two sides of windowline with views directly at Franklin Park!
- Entièrement aménagé comme Bureau standard
- Espace en excellent état
- Plan d’étage avec bureaux fermés
- Peut être associé à un ou plusieurs espaces supplémentaires pour obtenir jusqu’à 272 m² d’espace adjacent.
Intimate, built out suite with four offices, medium sized conference room and reception area. Two sides of windowline with elevator exposure.
- Le loyer comprend les services publics, les services de l’immeuble et les frais immobiliers.
- Plan d’étage avec bureaux fermés
- Entièrement aménagé comme Bureau standard
- Peut être associé à un ou plusieurs espaces supplémentaires pour obtenir jusqu’à 272 m² d’espace adjacent.
Full shell floor with 4 sides of glass
- Plan d’étage avec bureaux fermés
- Le bâtiment dispose d'un hall d'accueil récemment rénové.
- Garage de stationnement sur place.
Full floor with 4 sides of glass, balcony access, McPherson and Franklin Park views
- Entièrement aménagé comme Bureau standard
- Garage de stationnement sur place.
- Plan d’étage avec bureaux fermés
- Le bâtiment dispose d'un hall d'accueil récemment rénové.
- Entièrement aménagé comme Bureau standard
- Plan d’étage avec bureaux fermés
Brand-new, full floor spec suite designed by OTJ. Office-intensive design with four sides of glass and continuous windowline all the way around the floor. The front of the space provides stellar views of both McPherson Square and Franklin Park. Metterport linked here: https://my.matterport.com/show/?m=sBaHEgX2pvP
- 12 bureaux privés
- 16 postes de travail
- Garage de stationnement sur place.
- 1 salle de conférence
- Espace en excellent état
- Le bâtiment dispose d'un hall d'accueil récemment rénové.
Perfectly situated on I Street in between Two Parks featuring window line with great views
- Entièrement aménagé comme Bureau standard
- 4 postes de travail
- 12 bureaux privés
| Espace | Surface | Durée | Loyer | Type de bien | Aménagement | Disponible |
| Niveau inférieur, bureau LL-2 | 287 m² | Négociable | Sur demande Sur demande Sur demande Sur demande | Bureaux/Médical | Construction achevée | Maintenant |
| 2e étage, bureau 200 | 325 m² | 3-10 Ans | Sur demande Sur demande Sur demande Sur demande | Bureau | Construction achevée | Maintenant |
| 2e étage, bureau 201 | 294 m² | Négociable | Sur demande Sur demande Sur demande Sur demande | Bureau | Construction achevée | Maintenant |
| 3e étage, bureau 300/302 | 493 m² | Négociable | Sur demande Sur demande Sur demande Sur demande | Bureau | Meublé et équipé | Maintenant |
| 4e étage, bureau 401 | 148 m² | 2-7 Ans | Sur demande Sur demande Sur demande Sur demande | Bureau | Construction achevée | Maintenant |
| 4e étage, bureau 425 | 124 m² | Négociable | Sur demande Sur demande Sur demande Sur demande | Bureau | Construction achevée | Maintenant |
| 5e étage, bureau 500 | 613 m² | 5-10 Ans | Sur demande Sur demande Sur demande Sur demande | Bureau | Espace brut | Maintenant |
| 8e étage, bureau 800 | 619 m² | 2-10 Ans | Sur demande Sur demande Sur demande Sur demande | Bureau | Construction achevée | Maintenant |
| 9e étage, bureau 950 | 82 m² | 5 Ans | Sur demande Sur demande Sur demande Sur demande | Bureau | Construction achevée | Maintenant |
| 10e étage, bureau 1000 | 621 m² | 5-11 Ans | Sur demande Sur demande Sur demande Sur demande | Bureau | Meublé et équipé | Maintenant |
| 11e étage, bureau 1101 | 320 m² | 3-10 Ans | Sur demande Sur demande Sur demande Sur demande | Bureau | Construction achevée | 60 jours |
Niveau inférieur, bureau LL-2
| Surface |
| 287 m² |
| Durée |
| Négociable |
| Loyer |
| Sur demande Sur demande Sur demande Sur demande |
| Type de bien |
| Bureaux/Médical |
| Aménagement |
| Construction achevée |
| Disponible |
| Maintenant |
2e étage, bureau 200
| Surface |
| 325 m² |
| Durée |
| 3-10 Ans |
| Loyer |
| Sur demande Sur demande Sur demande Sur demande |
| Type de bien |
| Bureau |
| Aménagement |
| Construction achevée |
| Disponible |
| Maintenant |
2e étage, bureau 201
| Surface |
| 294 m² |
| Durée |
| Négociable |
| Loyer |
| Sur demande Sur demande Sur demande Sur demande |
| Type de bien |
| Bureau |
| Aménagement |
| Construction achevée |
| Disponible |
| Maintenant |
3e étage, bureau 300/302
| Surface |
| 493 m² |
| Durée |
| Négociable |
| Loyer |
| Sur demande Sur demande Sur demande Sur demande |
| Type de bien |
| Bureau |
| Aménagement |
| Meublé et équipé |
| Disponible |
| Maintenant |
4e étage, bureau 401
| Surface |
| 148 m² |
| Durée |
| 2-7 Ans |
| Loyer |
| Sur demande Sur demande Sur demande Sur demande |
| Type de bien |
| Bureau |
| Aménagement |
| Construction achevée |
| Disponible |
| Maintenant |
4e étage, bureau 425
| Surface |
| 124 m² |
| Durée |
| Négociable |
| Loyer |
| Sur demande Sur demande Sur demande Sur demande |
| Type de bien |
| Bureau |
| Aménagement |
| Construction achevée |
| Disponible |
| Maintenant |
5e étage, bureau 500
| Surface |
| 613 m² |
| Durée |
| 5-10 Ans |
| Loyer |
| Sur demande Sur demande Sur demande Sur demande |
| Type de bien |
| Bureau |
| Aménagement |
| Espace brut |
| Disponible |
| Maintenant |
8e étage, bureau 800
| Surface |
| 619 m² |
| Durée |
| 2-10 Ans |
| Loyer |
| Sur demande Sur demande Sur demande Sur demande |
| Type de bien |
| Bureau |
| Aménagement |
| Construction achevée |
| Disponible |
| Maintenant |
9e étage, bureau 950
| Surface |
| 82 m² |
| Durée |
| 5 Ans |
| Loyer |
| Sur demande Sur demande Sur demande Sur demande |
| Type de bien |
| Bureau |
| Aménagement |
| Construction achevée |
| Disponible |
| Maintenant |
10e étage, bureau 1000
| Surface |
| 621 m² |
| Durée |
| 5-11 Ans |
| Loyer |
| Sur demande Sur demande Sur demande Sur demande |
| Type de bien |
| Bureau |
| Aménagement |
| Meublé et équipé |
| Disponible |
| Maintenant |
11e étage, bureau 1101
| Surface |
| 320 m² |
| Durée |
| 3-10 Ans |
| Loyer |
| Sur demande Sur demande Sur demande Sur demande |
| Type de bien |
| Bureau |
| Aménagement |
| Construction achevée |
| Disponible |
| 60 jours |
Niveau inférieur, bureau LL-2
| Surface | 287 m² |
| Durée | Négociable |
| Loyer | Sur demande |
| Type de bien | Bureaux/Médical |
| Aménagement | Construction achevée |
| Disponible | Maintenant |
Built out as Chiropractor space, contiguous with LL-2
- Entièrement aménagé comme Bureau standard
- Plan d’étage avec bureaux fermés
- Garage de stationnement sur place.
- Le bâtiment dispose d'un hall d'accueil récemment rénové.
2e étage, bureau 200
| Surface | 325 m² |
| Durée | 3-10 Ans |
| Loyer | Sur demande |
| Type de bien | Bureau |
| Aménagement | Construction achevée |
| Disponible | Maintenant |
This suite is located on the front of the building with I Street windowline as well as on either side of the suite. There are 7 offices (all with windows). There are 2 conference rooms and a designated reception area.
- Entièrement aménagé comme Bureau standard
- Principalement open space
- Espace nécessitant des rénovations
- Peut être associé à un ou plusieurs espaces supplémentaires pour obtenir jusqu’à 1 113 m² d’espace adjacent.
- Garage de stationnement sur place.
- Le bâtiment dispose d'un hall d'accueil récemment rénové.
2e étage, bureau 201
| Surface | 294 m² |
| Durée | Négociable |
| Loyer | Sur demande |
| Type de bien | Bureau |
| Aménagement | Construction achevée |
| Disponible | Maintenant |
This suite is on the backside of the building. It has 10 offices. All of the offices offer windows. There is a kitchen and conference room within the suite.
- Entièrement aménagé comme Bureau standard
- Plan d’étage avec bureaux fermés
- Peut être associé à un ou plusieurs espaces supplémentaires pour obtenir jusqu’à 1 113 m² d’espace adjacent.
- Garage de stationnement sur place.
- Le bâtiment dispose d'un hall d'accueil récemment rénové.
3e étage, bureau 300/302
| Surface | 493 m² |
| Durée | Négociable |
| Loyer | Sur demande |
| Type de bien | Bureau |
| Aménagement | Meublé et équipé |
| Disponible | Maintenant |
Office intensive (12-windowed) layout with open workspaces. Suite features a kitchen, medium sized conference room and additional huddle room. Great elevator identity on both sides of floor. Floorplan occupies 3/4's of the entire floor.
- 12 bureaux privés
- 1 salle de conférence
- 8 postes de travail
- Espace en excellent état
- Peut être associé à un ou plusieurs espaces supplémentaires pour obtenir jusqu’à 1 113 m² d’espace adjacent.
- Aire de réception
- Cuisine
- Garage de stationnement sur place.
- Le bâtiment dispose d'un hall d'accueil récemment rénové.
4e étage, bureau 401
| Surface | 148 m² |
| Durée | 2-7 Ans |
| Loyer | Sur demande |
| Type de bien | Bureau |
| Aménagement | Construction achevée |
| Disponible | Maintenant |
Intimate suite w/ 4 individual offices and a large open work area on the front of the building with elevator exposure. Two sides of windowline with views directly at Franklin Park!
- Entièrement aménagé comme Bureau standard
- Plan d’étage avec bureaux fermés
- Espace en excellent état
- Peut être associé à un ou plusieurs espaces supplémentaires pour obtenir jusqu’à 272 m² d’espace adjacent.
4e étage, bureau 425
| Surface | 124 m² |
| Durée | Négociable |
| Loyer | Sur demande |
| Type de bien | Bureau |
| Aménagement | Construction achevée |
| Disponible | Maintenant |
Intimate, built out suite with four offices, medium sized conference room and reception area. Two sides of windowline with elevator exposure.
- Le loyer comprend les services publics, les services de l’immeuble et les frais immobiliers.
- Entièrement aménagé comme Bureau standard
- Plan d’étage avec bureaux fermés
- Peut être associé à un ou plusieurs espaces supplémentaires pour obtenir jusqu’à 272 m² d’espace adjacent.
5e étage, bureau 500
| Surface | 613 m² |
| Durée | 5-10 Ans |
| Loyer | Sur demande |
| Type de bien | Bureau |
| Aménagement | Espace brut |
| Disponible | Maintenant |
Full shell floor with 4 sides of glass
- Plan d’étage avec bureaux fermés
- Garage de stationnement sur place.
- Le bâtiment dispose d'un hall d'accueil récemment rénové.
8e étage, bureau 800
| Surface | 619 m² |
| Durée | 2-10 Ans |
| Loyer | Sur demande |
| Type de bien | Bureau |
| Aménagement | Construction achevée |
| Disponible | Maintenant |
Full floor with 4 sides of glass, balcony access, McPherson and Franklin Park views
- Entièrement aménagé comme Bureau standard
- Plan d’étage avec bureaux fermés
- Garage de stationnement sur place.
- Le bâtiment dispose d'un hall d'accueil récemment rénové.
9e étage, bureau 950
| Surface | 82 m² |
| Durée | 5 Ans |
| Loyer | Sur demande |
| Type de bien | Bureau |
| Aménagement | Construction achevée |
| Disponible | Maintenant |
- Entièrement aménagé comme Bureau standard
- Plan d’étage avec bureaux fermés
10e étage, bureau 1000
| Surface | 621 m² |
| Durée | 5-11 Ans |
| Loyer | Sur demande |
| Type de bien | Bureau |
| Aménagement | Meublé et équipé |
| Disponible | Maintenant |
Brand-new, full floor spec suite designed by OTJ. Office-intensive design with four sides of glass and continuous windowline all the way around the floor. The front of the space provides stellar views of both McPherson Square and Franklin Park. Metterport linked here: https://my.matterport.com/show/?m=sBaHEgX2pvP
- 12 bureaux privés
- 1 salle de conférence
- 16 postes de travail
- Espace en excellent état
- Garage de stationnement sur place.
- Le bâtiment dispose d'un hall d'accueil récemment rénové.
11e étage, bureau 1101
| Surface | 320 m² |
| Durée | 3-10 Ans |
| Loyer | Sur demande |
| Type de bien | Bureau |
| Aménagement | Construction achevée |
| Disponible | 60 jours |
Perfectly situated on I Street in between Two Parks featuring window line with great views
- Entièrement aménagé comme Bureau standard
- 12 bureaux privés
- 4 postes de travail
Aperçu du bien
This 77,026 square foot office building was delivered in 1983. The building is unobstructed and presents 4 sides of glass on all floors. The building features a recently updated lobby and a garage exclusive for tenants. Centrally located between the East End and Central Business District and 2 blocks from the White House the building offers easy access in and out of the city from 14th St and is next door to the McPherson Square Metro Station. Multiple dining, shopping, and hotel options are within short walking distance. The front of building suites facing I Street enjoy views of both Franklin Park and McPherson Square Park, with the 8th and 9th floors offering small private balconies for respective tenants. Brand 10th floor full floor spec suite.
- Local à vélos
- Balcon
Informations sur l’immeuble
Présenté par
1444 I St NW
Hum, une erreur s’est produite lors de l’envoi de votre message. Veuillez réessayer.
Merci ! Votre message a été envoyé.




















