Votre e-mail a été envoyé.
Certaines informations ont été traduites automatiquement.
Tous les espaces disponibles(7)
Afficher les loyers en
- Espace
- Surface
- Durée
- Loyer
- Type de bien
- Aménagement
- Disponible
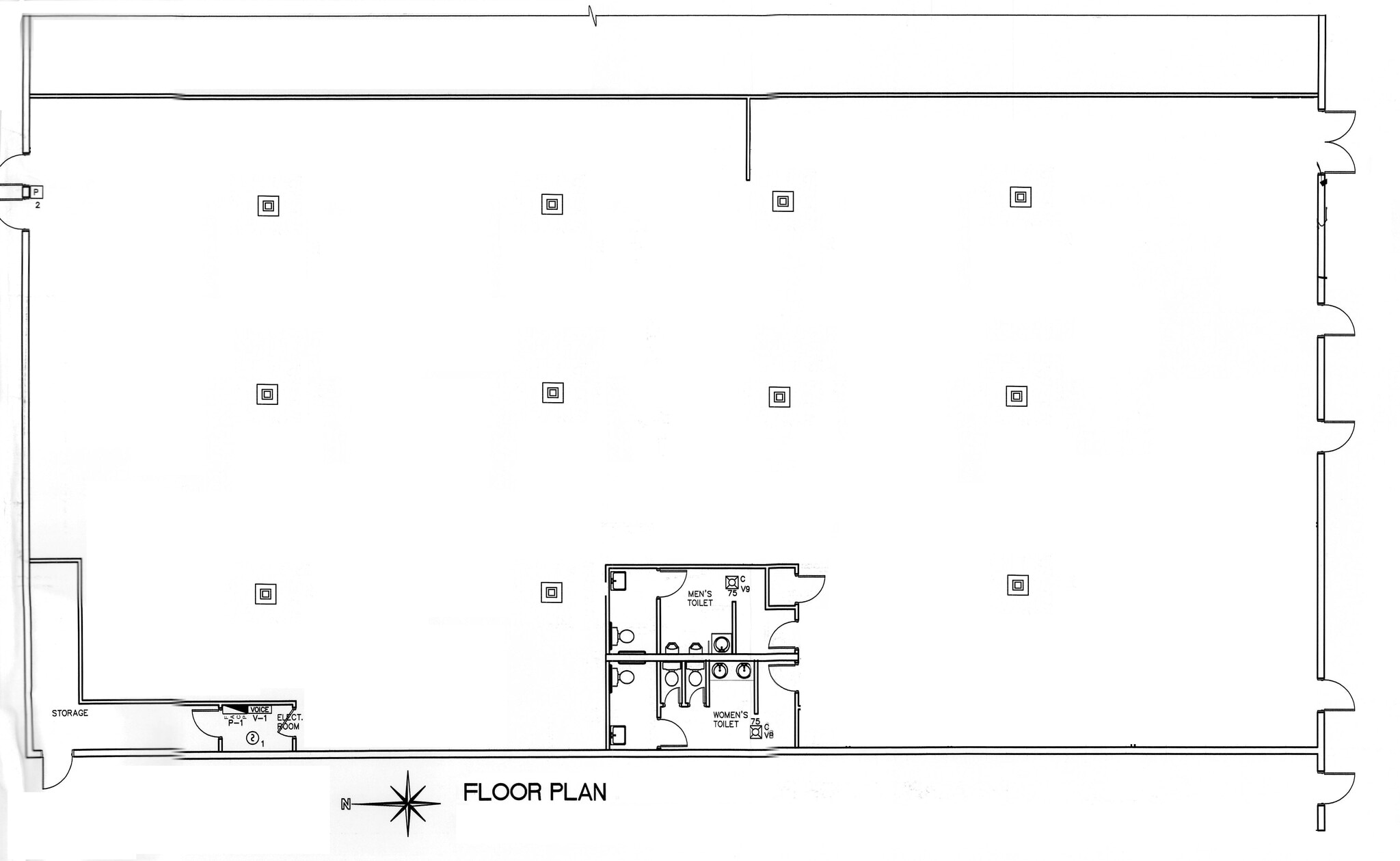
Spacious 10,000+ SF unit that has been white boxed and is ready for a new tenant.
- Le loyer ne comprend pas les services publics, les frais immobiliers ou les services de l’immeuble.
- Hauts plafonds
- Le loyer ne comprend pas les services publics, les frais immobiliers ou les services de l’immeuble.
- Le loyer ne comprend pas les services publics, les frais immobiliers ou les services de l’immeuble.
Suite is currently in raw condition.
- Le loyer ne comprend pas les services publics, les frais immobiliers ou les services de l’immeuble.
- Peut être associé à un ou plusieurs espaces supplémentaires pour obtenir jusqu’à 1 302 m² d’espace adjacent.
- Le loyer ne comprend pas les services publics, les frais immobiliers ou les services de l’immeuble.
- Peut être associé à un ou plusieurs espaces supplémentaires pour obtenir jusqu’à 1 302 m² d’espace adjacent.
- Principalement open space
- Le loyer ne comprend pas les services publics, les frais immobiliers ou les services de l’immeuble.
- Peut être associé à un ou plusieurs espaces supplémentaires pour obtenir jusqu’à 1 521 m² d’espace adjacent.
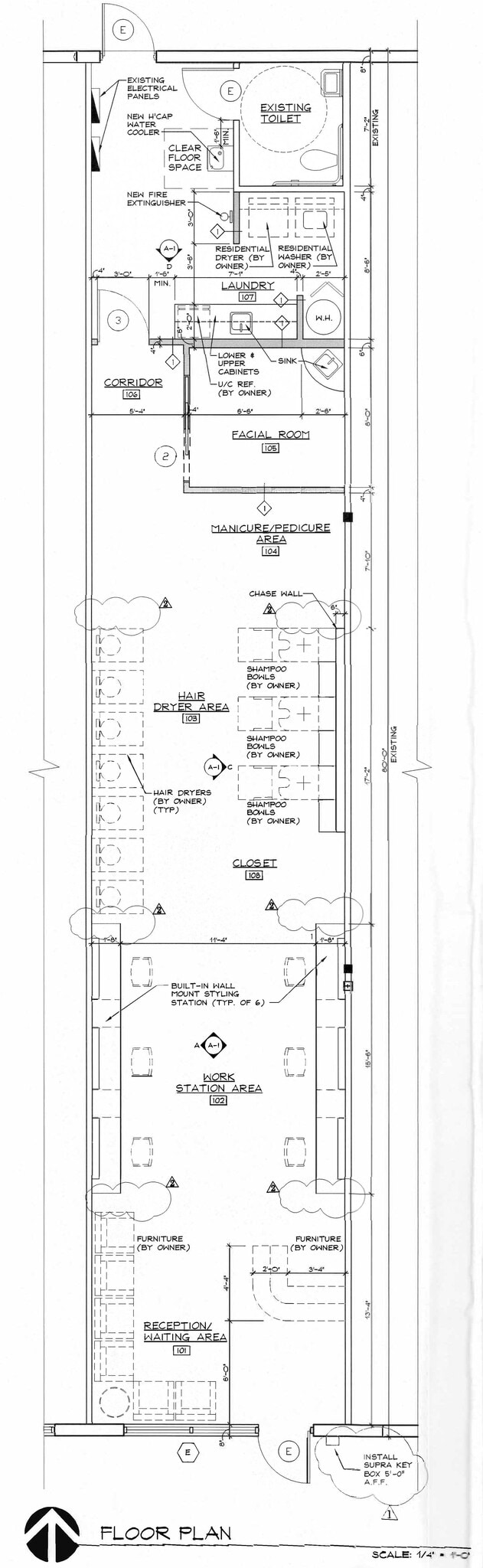
Built-out office that would fit a high-traffic user or call center with lots of perimeter offices, training room, and a large open area. Space is possible to divide into smaller units.
- Le loyer ne comprend pas les services publics, les frais immobiliers ou les services de l’immeuble.
- Peut être associé à un ou plusieurs espaces supplémentaires pour obtenir jusqu’à 1 521 m² d’espace adjacent.
- Principalement open space
| Espace | Surface | Durée | Loyer | Type de bien | Aménagement | Disponible |
| 1er étage, bureau 14435-14441 | 935 m² | Négociable | 275,42 € /m²/an 22,95 € /m²/mois 257 559 € /an 21 463 € /mois | Local commercial | Espace brut | Maintenant |
| 1er étage, bureau 14473 | 103 m² | Négociable | 275,42 € /m²/an 22,95 € /m²/mois 28 350 € /an 2 363 € /mois | Local commercial | - | Maintenant |
| 2e étage, bureau 200 | 685 m² | Négociable | 224,92 € /m²/an 18,74 € /m²/mois 154 108 € /an 12 842 € /mois | Bureaux/Médical | Espace brut | 01/06/2026 |
| 3e étage, bureau 300 | 442 m² | Négociable | 224,92 € /m²/an 18,74 € /m²/mois 99 528 € /an 8 294 € /mois | Bureaux/Médical | Espace brut | 01/06/2026 |
| 3e étage, bureau 301 | 860 m² | Négociable | 224,92 € /m²/an 18,74 € /m²/mois 193 414 € /an 16 118 € /mois | Bureaux/Médical | - | Maintenant |
| 4e étage, bureau 400 | 701 m² | Négociable | 224,92 € /m²/an 18,74 € /m²/mois 157 661 € /an 13 138 € /mois | Bureaux/Médical | Espace brut | 01/06/2026 |
| 4e étage, bureau 401 | 820 m² | Négociable | 224,92 € /m²/an 18,74 € /m²/mois 184 512 € /an 15 376 € /mois | Bureaux/Médical | - | Maintenant |
1er étage, bureau 14435-14441
| Surface |
| 935 m² |
| Durée |
| Négociable |
| Loyer |
| 275,42 € /m²/an 22,95 € /m²/mois 257 559 € /an 21 463 € /mois |
| Type de bien |
| Local commercial |
| Aménagement |
| Espace brut |
| Disponible |
| Maintenant |
1er étage, bureau 14473
| Surface |
| 103 m² |
| Durée |
| Négociable |
| Loyer |
| 275,42 € /m²/an 22,95 € /m²/mois 28 350 € /an 2 363 € /mois |
| Type de bien |
| Local commercial |
| Aménagement |
| - |
| Disponible |
| Maintenant |
2e étage, bureau 200
| Surface |
| 685 m² |
| Durée |
| Négociable |
| Loyer |
| 224,92 € /m²/an 18,74 € /m²/mois 154 108 € /an 12 842 € /mois |
| Type de bien |
| Bureaux/Médical |
| Aménagement |
| Espace brut |
| Disponible |
| 01/06/2026 |
3e étage, bureau 300
| Surface |
| 442 m² |
| Durée |
| Négociable |
| Loyer |
| 224,92 € /m²/an 18,74 € /m²/mois 99 528 € /an 8 294 € /mois |
| Type de bien |
| Bureaux/Médical |
| Aménagement |
| Espace brut |
| Disponible |
| 01/06/2026 |
3e étage, bureau 301
| Surface |
| 860 m² |
| Durée |
| Négociable |
| Loyer |
| 224,92 € /m²/an 18,74 € /m²/mois 193 414 € /an 16 118 € /mois |
| Type de bien |
| Bureaux/Médical |
| Aménagement |
| - |
| Disponible |
| Maintenant |
4e étage, bureau 400
| Surface |
| 701 m² |
| Durée |
| Négociable |
| Loyer |
| 224,92 € /m²/an 18,74 € /m²/mois 157 661 € /an 13 138 € /mois |
| Type de bien |
| Bureaux/Médical |
| Aménagement |
| Espace brut |
| Disponible |
| 01/06/2026 |
4e étage, bureau 401
| Surface |
| 820 m² |
| Durée |
| Négociable |
| Loyer |
| 224,92 € /m²/an 18,74 € /m²/mois 184 512 € /an 15 376 € /mois |
| Type de bien |
| Bureaux/Médical |
| Aménagement |
| - |
| Disponible |
| Maintenant |
1er étage, bureau 14435-14441
| Surface | 935 m² |
| Durée | Négociable |
| Loyer | 275,42 € /m²/an |
| Type de bien | Local commercial |
| Aménagement | Espace brut |
| Disponible | Maintenant |
Spacious 10,000+ SF unit that has been white boxed and is ready for a new tenant.
- Le loyer ne comprend pas les services publics, les frais immobiliers ou les services de l’immeuble.
- Hauts plafonds
1er étage, bureau 14473
| Surface | 103 m² |
| Durée | Négociable |
| Loyer | 275,42 € /m²/an |
| Type de bien | Local commercial |
| Aménagement | - |
| Disponible | Maintenant |
- Le loyer ne comprend pas les services publics, les frais immobiliers ou les services de l’immeuble.
2e étage, bureau 200
| Surface | 685 m² |
| Durée | Négociable |
| Loyer | 224,92 € /m²/an |
| Type de bien | Bureaux/Médical |
| Aménagement | Espace brut |
| Disponible | 01/06/2026 |
- Le loyer ne comprend pas les services publics, les frais immobiliers ou les services de l’immeuble.
3e étage, bureau 300
| Surface | 442 m² |
| Durée | Négociable |
| Loyer | 224,92 € /m²/an |
| Type de bien | Bureaux/Médical |
| Aménagement | Espace brut |
| Disponible | 01/06/2026 |
Suite is currently in raw condition.
- Le loyer ne comprend pas les services publics, les frais immobiliers ou les services de l’immeuble.
- Peut être associé à un ou plusieurs espaces supplémentaires pour obtenir jusqu’à 1 302 m² d’espace adjacent.
3e étage, bureau 301
| Surface | 860 m² |
| Durée | Négociable |
| Loyer | 224,92 € /m²/an |
| Type de bien | Bureaux/Médical |
| Aménagement | - |
| Disponible | Maintenant |
- Le loyer ne comprend pas les services publics, les frais immobiliers ou les services de l’immeuble.
- Principalement open space
- Peut être associé à un ou plusieurs espaces supplémentaires pour obtenir jusqu’à 1 302 m² d’espace adjacent.
4e étage, bureau 400
| Surface | 701 m² |
| Durée | Négociable |
| Loyer | 224,92 € /m²/an |
| Type de bien | Bureaux/Médical |
| Aménagement | Espace brut |
| Disponible | 01/06/2026 |
- Le loyer ne comprend pas les services publics, les frais immobiliers ou les services de l’immeuble.
- Peut être associé à un ou plusieurs espaces supplémentaires pour obtenir jusqu’à 1 521 m² d’espace adjacent.
4e étage, bureau 401
| Surface | 820 m² |
| Durée | Négociable |
| Loyer | 224,92 € /m²/an |
| Type de bien | Bureaux/Médical |
| Aménagement | - |
| Disponible | Maintenant |
Built-out office that would fit a high-traffic user or call center with lots of perimeter offices, training room, and a large open area. Space is possible to divide into smaller units.
- Le loyer ne comprend pas les services publics, les frais immobiliers ou les services de l’immeuble.
- Principalement open space
- Peut être associé à un ou plusieurs espaces supplémentaires pour obtenir jusqu’à 1 521 m² d’espace adjacent.
Caractéristiques
- Ligne d’autobus
- Restaurant
- Signalisation
Informations sur l’immeuble
Occupants
- Étage
- Nom de l’occupant
- Secteur d’activité
- 2e
- APX Engineering Group
- Services professionnels, scientifiques et techniques
- 1er
- De Leon Barbrshop
- Services
- 1er
- Dollar Tree
- Enseigne
- 1er
- Karate America
- Arts, divertissement et loisirs
- 1er
- Lavish Nail Bar
- Services
- 1er
- Miramar West Animal Hospital
- Services professionnels, scientifiques et techniques
- 3e
- Spectrum Brands
- Grossiste
- 1er
- Strayer University
- Services éducatifs
- 1er
- Sunbelt Title Agency
- Services professionnels, scientifiques et techniques
- 1er
- Tulip Carpet Cleaning Miramar
- Construction
Présenté par
Monarch Gardens | 14401-14485 Miramar Pky
Hum, une erreur s’est produite lors de l’envoi de votre message. Veuillez réessayer.
Merci ! Votre message a été envoyé.








