Votre e-mail a été envoyé.
Bayview Corporate Center 1433 Hooper Ave Bureau | 251–773 m² | 4 étoiles | À louer | Toms River, NJ 08753



Certaines informations ont été traduites automatiquement.
Tous les espaces disponibles(3)
Afficher les loyers en
- Espace
- Surface
- Durée
- Loyer
- Type de bien
- Aménagement
- Disponible
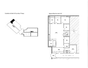
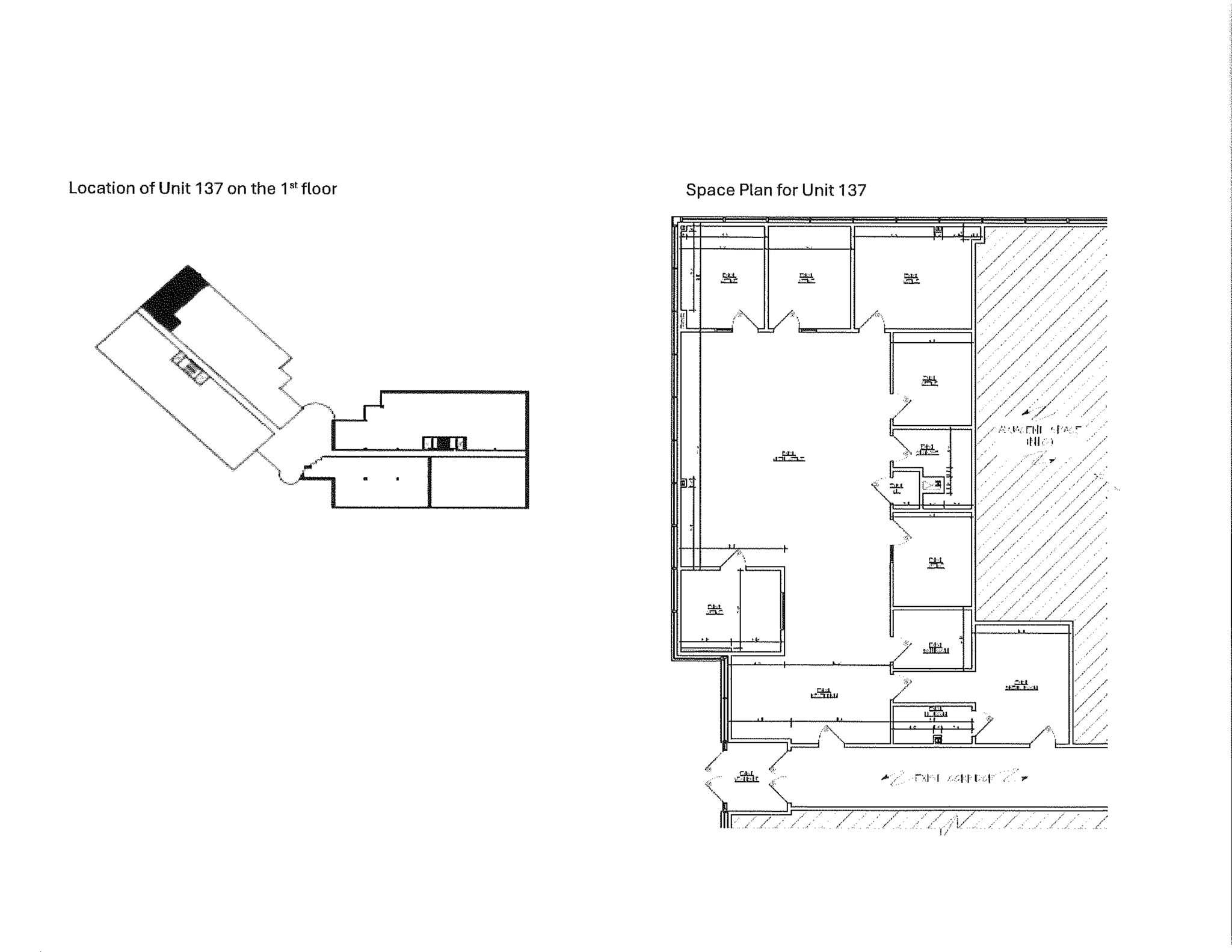
Unit 137 has 2,698 sf and 6/1 parking ration (parking for 750 cars) floor plan attached.
- Il est possible que le loyer annoncé ne comprenne pas certains services publics, services d’immeuble et frais immobiliers.
- Entièrement aménagé comme Bureau standard
Unit 212 is 2730 SF. 6/1 parking ratio (parking for 750 cars). floor plan attached.
- Il est possible que le loyer annoncé ne comprenne pas certains services publics, services d’immeuble et frais immobiliers.
- Principalement open space
- Détecteur de fumée
- Entièrement aménagé comme Bureau standard
- Ventilation et chauffage centraux
- Bâtiment surélevé
Unit 241 is 2,891 SF parking for 750 cars
- Il est possible que le loyer annoncé ne comprenne pas certains services publics, services d’immeuble et frais immobiliers.
- Principalement open space
- 1 salle de conférence
- Entièrement aménagé comme Bureau standard
- 12 bureaux privés
- Ventilation et chauffage centraux
| Espace | Surface | Durée | Loyer | Type de bien | Aménagement | Disponible |
| 1er étage, bureau Unit 137 | 251 m² | Négociable | 201,97 € /m²/an 16,83 € /m²/mois 50 625 € /an 4 219 € /mois | Bureau | Construction achevée | Maintenant |
| 2e étage, bureau 212 | 254 m² | 3-10 Ans | 201,97 € /m²/an 16,83 € /m²/mois 51 225 € /an 4 269 € /mois | Bureau | Construction achevée | Maintenant |
| 2e étage, bureau 241 | 269 m² | Négociable | 201,97 € /m²/an 16,83 € /m²/mois 54 246 € /an 4 521 € /mois | Bureau | Construction achevée | Maintenant |
1er étage, bureau Unit 137
| Surface |
| 251 m² |
| Durée |
| Négociable |
| Loyer |
| 201,97 € /m²/an 16,83 € /m²/mois 50 625 € /an 4 219 € /mois |
| Type de bien |
| Bureau |
| Aménagement |
| Construction achevée |
| Disponible |
| Maintenant |
2e étage, bureau 212
| Surface |
| 254 m² |
| Durée |
| 3-10 Ans |
| Loyer |
| 201,97 € /m²/an 16,83 € /m²/mois 51 225 € /an 4 269 € /mois |
| Type de bien |
| Bureau |
| Aménagement |
| Construction achevée |
| Disponible |
| Maintenant |
2e étage, bureau 241
| Surface |
| 269 m² |
| Durée |
| Négociable |
| Loyer |
| 201,97 € /m²/an 16,83 € /m²/mois 54 246 € /an 4 521 € /mois |
| Type de bien |
| Bureau |
| Aménagement |
| Construction achevée |
| Disponible |
| Maintenant |
1er étage, bureau Unit 137
| Surface | 251 m² |
| Durée | Négociable |
| Loyer | 201,97 € /m²/an |
| Type de bien | Bureau |
| Aménagement | Construction achevée |
| Disponible | Maintenant |
Unit 137 has 2,698 sf and 6/1 parking ration (parking for 750 cars) floor plan attached.
- Il est possible que le loyer annoncé ne comprenne pas certains services publics, services d’immeuble et frais immobiliers.
- Entièrement aménagé comme Bureau standard
2e étage, bureau 212
| Surface | 254 m² |
| Durée | 3-10 Ans |
| Loyer | 201,97 € /m²/an |
| Type de bien | Bureau |
| Aménagement | Construction achevée |
| Disponible | Maintenant |
Unit 212 is 2730 SF. 6/1 parking ratio (parking for 750 cars). floor plan attached.
- Il est possible que le loyer annoncé ne comprenne pas certains services publics, services d’immeuble et frais immobiliers.
- Entièrement aménagé comme Bureau standard
- Principalement open space
- Ventilation et chauffage centraux
- Détecteur de fumée
- Bâtiment surélevé
2e étage, bureau 241
| Surface | 269 m² |
| Durée | Négociable |
| Loyer | 201,97 € /m²/an |
| Type de bien | Bureau |
| Aménagement | Construction achevée |
| Disponible | Maintenant |
Unit 241 is 2,891 SF parking for 750 cars
- Il est possible que le loyer annoncé ne comprenne pas certains services publics, services d’immeuble et frais immobiliers.
- Entièrement aménagé comme Bureau standard
- Principalement open space
- 12 bureaux privés
- 1 salle de conférence
- Ventilation et chauffage centraux
Aperçu du bien
L'un des seuls immeubles de bureaux de classe A de Toms River, juste sur Hooper Avenue. Trois étages plus le sous-sol, un atrium vitré, des ascenseurs, des salles de bains communes et certaines privatives. Le propriétaire négociera les tarifs de location à long terme. Très bien situé près du centre commercial Ocean County. Emplacement très recherché avec un accès facile par le GSP et la route 9. Le taux de location est de 22$ le pied carré brut modifié, y compris l'essence et les frais de conciergerie. Le locataire paie lui-même son électricité.
- Atrium
Informations sur l’immeuble
Présenté par
Bayview Corporate Center | 1433 Hooper Ave
Hum, une erreur s’est produite lors de l’envoi de votre message. Veuillez réessayer.
Merci ! Votre message a été envoyé.




